The Union Steam Ship Company of New Zealand, Ltd., who owned sailing ships before the days of steamships, are one of the most progressive of British shipping companies; and that enterprising spirit which caused them to be among the earliest in the field with triple-screw steamships, water tube boilers, turbines, combination reciprocating and turbine engines, geared steam turbines, and oil-fuelled steamships, is being appropriately maintained by the company being the first to introduce a boldly conceived, up-to-date and progressive system of propulsion by Diesel motors into large liner practice.
The Shipbuilder.
Her owners displayed admirable pluck in ordering her, for at that time the motor ship was more or less in its infancy. There was, in fact no guarantee that because smaller freighters had shown satisfactory results a liner of the Aorangi type would be equally economical. Yet the Union Steamship Company, with what may well be termed characteristic enterprise-- they have always been pioneers-- decided that the experiment should be made. Happily, the results are magnificent, they are more than was expected, and the Company, which is now in its 49th year, deserve the most cordial congratulation.
Hampshire Advertiser.
Among the "Great Liners" are those of fleeting fame for size, speed or splendour which remain, despite the transient qualities of their repute, the most remembered today. Yet, the pioneers, the pacesetters-- the vessels conceived by shipowners, designed by naval architects and engineers and built by shipyards of vision, courage and determination-- to dare to create the novel and new, the revolutionary and epoch-making, are largely forgotten. A century ago one such vessel, belonging to a line equally overlooked but exemplifying such innovation, entered service and by doing so, marked a new era in maritime engineering that still predominates today and eventually consigned steam propulsion to history.
Her name was Aorangi of the Union Steamship Co. of New Zealand, born and bred at that font of so many great ships, the River Clyde, to ply one of the longest of all imperial mailship sealanes, the fabled All Red Route linking Far-Flung Dominions of the True North and Southern Cross across the vast expanses of the South Pacific. During her 28 years' faithful service, Aorangi would mature into a familiar friend along the waystops of her epic 7,600-nautical mile route-- Vancouver, Victoria, Honolulu, Suva, Auckland and Sydney-- and in doing so, fulfill the ambitions of one of the Empire's most audacious transportation schemes and, in fact, be the last to maintain it.
On the occasion of the centenary of her maiden voyage (2 January 1925), discover that first great diesel-powered ocean liner and Red Route Reliable,
R.M.M.S. AORANGI, 1925-1953
![]() |
| R.M.M.S. Aorangi by Charles Dixon. Credit: Wallace B. Chung and Madeline H. Chung Collection, University of British Columbia. |
![]() |
| R.M.M.S. Aorangi by Charles Dixon. Credit: author's collection. |
![]() |
| R.M.M.S. Aorangi at Vancouver, c. 1948-49. Credit: Oceanliner Legends, Facebook |
![]() |
| R.M.M.S. Aorangi at Sydney, c. 1950-53. Credit: Flickr, gorgs8 |
![]() |
| An Imperial Progress: The All Red Route linking Mother Country and her far-flung Dominions. Credit: University of British Columbia, Wallace B. Chung and Madeline H. Chung Collection. |
It is not Canada alone, but the whole Empire, that will be benefit by the All-Red Route. We are struggling in favor of the scheme, but it must not be thought that we are seeking it solely in order to benefit ourselves. Need I reiterate that the projected improved steamship will bring distant parts of the Empire nearer to the Mother Country.
Commercially and strategically, the All-Red Route has advantages over the Suez Canal route, and it must prove of enormous advantage to the Empire. Canada is, in a sense, prepared for the day when it will be an accomplished fact, and she will be linked up more effectively with New Zealand and Australia and the British Islands on the other.
Hon. L.P. Brodeur, Canadian Minister of Marine and Fisheries, 3 September 1907.
Completion of the Suez Canal and Canadian Pacific's trans-Continental railway transformed imperial transportation. Both were arteries of steam, in liner and locomotive respectively, the former a creation of the Mother Country, the latter of one of her Dominions. If the CPR unified and opened up Canada, almost from the onset it was viewed, too, as but one leg in an all encompassing transportation system linking Hong Kong and the Orient and the Antipodes both faster and "less foreign" than via the Suez Canal being entirely through British Dominions and territories, the "pink coloured bits" on the maps. It was called "The All Red Route" for that reason and was always conceived as two routes, one across the North Pacific to Hong Kong, China and Japan from Vancouver and from the same port into the South Pacific to the Antipodes. Whilst Canada via the CPR led the way in spurring and developing the North Pacific route, the southern variant, quite rightly, was the inspiration of Australia and New Zealand.
In 1893, Australian shipowner James Huddart whose own line serving domestic ports dated to 1876, founded the Canadian-Australasian Steamship Co. to provide an "Imperial Route" from Vancouver and Victoria to Sydney via Brisbane, Fiji and Honolulu. Huddart's ambitions for his own trans-Atlantic link were not fulfilled with CPR and Allan already well maintaining that part of the route. Indeed, with a series of accidents and financially overextended, Huddart found maintaining Canadian-Australasian difficult enough on its own. Brisbane was dropped in 1893, but Suva (Fiji) was added two years later and most importantly, Auckland in 1897 under a mail contract with the New Zealand government. Finding suitable tonnage for the arduous long route was never easy and lacking the finances for newbuildings, Huddart chartered New Zealand Shipping Co.'s new Aorangi and paid for major alterations to complete her in 1897, the cost of which proved too much for the firm and resulting in New Zealand Shipping Co. essentially assuming the running of the Canadian-Australasian whilst searching for a new owner.
It was perhaps inevitable that this would be Union Steam Ship Co. of New Zealand, founded in 1875 by James Mills and coming to dominate the island's extensive local shipping trade as well as the all-important trans-Tasman route to Australia in addition to routes extending north to the South Sea islands. With their similar funnel colours and presence, Union were the veritable "Cunard of New Zealand." In 1885, Union and the American Oceanic Steam Ship Co. were awarded a joint mail contract by New Zealand and Australia for a San Francisco-Hawaii-Samoa-Antipodes service. This ended in 1900 upon the American annexation of the Hawaiian Islands as under U.S. shipping laws, foreign ships were excluded from carrying passengers and freight on the U.S. Mainland-Honolulu sectors.
![]() |
| Sir James Mills, KCMG (1847-1936), founder of the Union Steam Ship Co. |
So it was that was that at the right time and place, Union S.S. Co. stepped in and in October 1900 announced they had purchased almost all of New Zealand Shipping Co.'s shares in Canadian-Australasian and assumed effective control, management and operation of the line as well as providing its tonnage. Here, the exacting requirements of the trans-Tasman trade facilitated the regular shifting of Union ships to the C-A route (as done on the San Francisco run as well) and all the ships wore full Union S.S. Co. livery with only the C-A houseflag to distinguish them although whilst on the Vancouver run, most of the crews were Australian. Union was one of the great innovators in the Pacific trade and among their claims to fame was operating the first turbine-powered liner on the Pacific, the handsome twin-funneled, triple-screw Maheno (1905/5,282 grt), when she ran on the C-A route in 1906.
| R.M.S. Makura of 1908 late in her long career. She was the very first ship specifically designed for the Canadian-Australasian Line. Credit: Auckland National Library. |
In 1908, the Vancouver service was greatly improved with the addition of the 6,437 grt Marama (built the previous year for the trans-Tasman run) and finally, a purpose-built ship for the C-A route, the lovely Makura of 8,075 grt, capable of 17 knots and introducing new standards of accommodation.
In 1910, a very busy Union S.S. Co. also completed their purchase of the Canadian-Australasian Line upon the purchase of all remaining New Zealand Shipping Co. shares and instituted a policy of fleet modernisation in anticipation of renegotiating the mail contract which was due to expire the next year. To replace the 27-year-old Aorangi saw a return to the connection with Huddart, Parker Ltd. in the form of chartering their brand new Zealandia (6,683 grt) which upon arrival at Sydney from her builders, John Brown, directly entered the Vancouver service that August.
On 9 May 1911 Union S.S. Co.'s Chairman Sir James Mills signed the new mail contract in Ottawa with the Dominion of Canada for the Canadian-Australasian Line. This paid Union S.S. Co. $180,509 (£36,000) per annum for five years for a sailing in each direction every 28 days. The Dominion of New Zealand matched this, but tellingly, Australia did not and would not until 1951. This new contract came into effect with Marama from Auckland on 4 August and from Vancouver on 6 September. It was possible for British mails to be landed at Auckland in 33 days versus 36 or 37 days via Suez.
Mail subsidies were the financial sinew of many if not most overseas liner trades especially those lacking the dense passenger traffic of the North Atlantic run, and where The Mail Ship was literally primarily that and the delivery of "the mails" assumed primacy over all else. What was an essential of international communication was treated by the Dominion governments of Canada, Australia and New Zealand often as indulgence of taxpayer money nor was the share of any subsidies equitably or evenly shared between. Nor was it shared by the Home Government. As an example, Canada's contribution of $180,509 in 1911 was reduced to $130,509 in 1921 and again to $100,000 in 1924 and continued at that rate right through to 1935. As we shall see, it was substantially increased before the decade was out yet ended during the war and not revived on any level until 1951. It meant that the "Canadian-Australasian Royal Mail Line," despite its corporate ties with Union S.S. and eventually, P&O and Canadian Pacific, would be as constrained in its operations and fleet renewal as any line running a long distance mail route especially compared to its principal American competitor on the route, Oceanic Steamship Co.
![]() |
| R.M.S. Marama which undertook the first sailing from Auckland on 4 August 1911 under the new mail contract. Credit: NZ Ministry for Culture and Heritage. |
Events moved quickly that summer and taking passage in Allan Line's Virginian, Sir James Mills, accompanied by his daughter, arrived in Liverpool on 17 June 1911, telling reporters "his visit to this country was in connection with his shipbuilding programme."
On 18 August 1911 it was announced by Union S.S. Co.'s General Manager Charles Holdsworth that the line had placed a contract with John Brown, Clydebank, for one 14,000-15,000-grt, 522 ft. by 66 ft. vessel of 17 knots carrying 800 passengers and using the new combination type of machinery (reciprocating and turbine) with triple screws.
![]() |
| Niagara is sent down the ways at John Brown, Clydebank with the hull of Aquitania to the left. Credit: National Library of New Zealand |
Launched as Niagara (the first and only time a Union S.S. ship would not bear a Maori inspired name) by Mrs. Laura Borden, wife of Canada's Prime Minister Robert Boden, on 17 August 1912, the ship in name, ceremony and purpose exemplified the inter-Dominion cooperation that The All Red Route was all about.
![]() |
| Union's "perfect ship," the long-lived Niagara at Auckland. Credit: New Zealand Herald photograph, Auckland Libraries. |
Built literally next to Aquitania, the two ships were symbols of the heyday of the Edwardian Liner, and remain to this day two of the most successful passengers ships ever built. At 13,415 gross tons and principal dimensions of 524 ft. by 66 ft., Niagara was not only the largest liner yet built for service beneath the Southern Cross but, continuing her owners reputation for technical innovation, was the first British liner designed and built to burn oil as well as the first triple-screw "combination" machinery (reciprocating engine/exhaust turbine) equipped liner on the Antipodes route. Designed by Union's own naval architect, Capt. Coll McDonald, Niagara was strong, fast, handsome and supremely reliable. Introducing new standards of accommodation and appointments for the route, her 281 First, 210 Second and 176 Third Class passengers enjoyed Edwardian "floating palace" style that Makura first hinted at. Niagara, which entered service in March 1913, was aptly dubbed "The Queen of the Pacific" and remains regarded by many as Union's "perfect ship"
https://wantedonthevoyage.blogspot.com/2021/04/true-north-to-southern-cross-rms-niagara.html
Niagara's advent coincided, remarkably, with that of CPR's magnificent sister ships for the Vancouver-Orient run, Empress of Russia and Empress of Asia that same summer (Niagara and Empress of Russia in fact making their maiden arrivals at Vancouver within nine days of one another) so that, at a stroke, Canada and Vancouver were at the nexus of trans-imperial commerce and communication in a manner and scale which even the exponents of The All Red Route could scarcely have imagined 25 years previously.
![]() |
| Indifferent quality but a very rare rendering of Aotearoa as she was intended to look on completion in May 1915. Credit: Otago Witness, 27 June 1917. |
Tenders are now being prepared in response to the inquiry of the Union Steamship Company of New Zealand for two passenger steamers-- one 550 ft. and the other 520 ft. long.
Lloyd's List, 2 September 1913.
Such was the immediate success of Niagara that Union S.S. ordered an improved and slightly larger consort to her from Fairfield of Govan on 26 September in 1913 and laid down later that year as yard no. 499 with the proposed name Aotearoa, the Maori name for what is now New Zealand. Although built on the same general lines as Niagara (with dimensions of 550 ft. by 66 ft.), her modern cruiser stern was modelled after that introduced by the Empress of Russia and Empress of Asia and, again as another Union innovation, she would be fitted with twin-screw geared steam turbines, the first liner so-powered on the Antiopdean route.
In early July 1914, H.M. King George V and Queen Mary visited Govan as part of their Clydebank visit, The Daily Record (9 July) reporting: "Passing through the shed the Royal Party had a close view of the New Zealand Union Steamship Company's fine new mail steamer of 15,300 tons. She is 550 feet long, 68 feet board, and when launched in October will have a launching weight of 9,000 tons. The combination of water tube boilers, super water heaters, and geared turbines will make the new steamer of the most modern types." It was anticipated Aotearoa would enter service in May 1915 from Sydney to Vancouver, presumably being delivered out via the Cape as was Niagara.
The Great War cut-short the halcyon heyday of the Edwardian Ocean Liner and whilst Niagara and Makura continued their regular route throughout it, construction of Aotearoa was immediately halted in late summer 1914. As the war evolved into an endless stalement on land, on sea it raged on a global scale and the Admiralty seized the uncompleted hull in 1915 and it was sent down the ways without ceremony on 20 June.
![]() |
| Showing off her fine lines even missing her upper superstructure, the armed merchant cruiser Avenger gives a good hint at how splendid looking Aotearoa would have been. Credit: Flickr, Tim Webb |
![]() |
| H.M.S. Avenger's New Zealander engine room officers. Credit: Otago Witness, 13 March 1917. |
Completed with her originally intended funnels, masts and deck fittings but less her upper promenade deck, Aotearoa was delivered as the armed merchant cruiser H.M.S. Avenger (MI.75) on 14 December 1915 and fitted with eight 5-inch and two-6 pounder guns. Later reports indicated she made 18 knots on trials and she was one of the fastest, most advanced of Britain's "diverse" fleet of armed merchant cruisers. Many New Zealanders formed her ship's company including most her of engineering officers.
![]() |
| H.M.S. Avenger at Devonport. Credit: lostinwatersdeep.co.uk |
Commissioned 14 March 1916 under Commander A.L. Ashby at Fairfields, Govan, Avenger served with some distinction with the famous 10th Cruiser Squadron on blockade duties in Scotland based on Scapa Flow as well as patrols in the Canaries.
![]() |
| H.M.S. Avenger sinking. Credit: GreatWarForum. |
Returning to Scapa Flow for refuelling, she was torpedoed at 2:07 a.m. on 14 June 1917 by U-69, 80 miles west of the Shetland Islands and sank ten hours later with the loss of one crew member, David Kerr, greaser, killed in the explosion, out a compliment of 385.
At a stroke, Union and The All Red Route to the Antipodes lost what proved its one chance to field "a matched pair" of splendid sisters to compliment Empress of Russia and Empress of Asia on the Orient route. With the coming of peace in autumn 1918, like so many British lines, Union S.S. would face the rigours not of war but its aftermath of depleted fleets, war ravaged shipbuilding industry, post-war inflation, shortages and labour unrest. That it took a decade after Aotearoa was launched to replace her is significant, that she was replaced at all seemed remarkable given the challenges. That her replacement would prove the last built for Canadian-Australasian is best left for the end of the story of Aorangi and her subsequent career.
![]() |
| Passenger List cover. Credit: Australian National Maritime Museum. |
Mr. Holdsworth also stated that construction of another magnificent mail ship, faster and bigger than the Niagara would be commenced very shortly, all arrangements having been concluded with Fairfields. The vessel will be an oil-burner and be similar to the Avenger which had just been completed for the. company when war broke out.
Poverty Bay Herald, 17 March 1919.
The First World War had cost Union Steamship Co. eight ships totalling 54,716 grt as well as a large measure of their independence and New Zealand identity. On 28 November 1917 the ever more voracious Penisular & Oriental S.N. Co., after buying out the New Zealand Shipping Co. the previous year, acquired all of the ordinary shares of Union S.S.. When the shares were sorted, what was once a New Zealand company was now 60% British-owned, 15% by Australians and 25% by New Zealanders. In truth, P&O, as it did with most of their subsidiaries, not the least of which was, since 1913, the British India Steam S.N., left individual management in place and indeed, B.I. management actually wound up at the head of P.&O.. Union's fleet of 76 ships totalling 252,146 grt, ran outwardly with little changes other than the onerous ones imposed in the immediate post-war war, not the least of which was the global influenza pandemic.
This [loss of Aotearoa] naturally caused delay in the plans of the company to have two ships Niagara type on the Canadian route. However, within six weeks of her destruction we had booked a berth with the builders, but found that owing to congestion of orders we were eighth in the list of waiting companies. Consequently delivery of another new ship had been delayed again, we hope to have her completed within the next fifteen or eighteen months.
Union S.S. Managing Director Charles Holdsworth interview with The Victoria Daily Times, 26 May 1920.
Outwardly, too, there was no lessening of Charles Holdworth's expansionist aspirations, not the least of which was the immediate replacement of the lost Aotearoa. What was still sometimes called the Cunard of the Antipodes emulated its northern counterpart's epic post-war newbuilding plans announced in summer 1919 with their own intentions to join the flurry of newbuilding orders flooding British shipyards within six months of the Armistice. Union's plans, in fact, had been finalised by autumn 1917 and initially represented essentially a repeat order for second Aotearoa, most likely built like the first by Fairfields.
When she sailed south from Vancouver on 21 February 1919, Niagara numbered Union S.S. Co. Managing Director Charles Holdsworth among her passengers, returning from Britain and reported by the Canadian press as "having completed negotiations for a new ship to replace the lost Aotearoa."
The Union S.S. Company announces than an order has been placed with a Clyde firm for the construction of a vessel to take the place of the Avenger, which was lost in the North Sea as a result of enemy action. The vessel will be about 14,000 tons gross, and will be utilised in conjunction with the Niagara on the Vancouver run.
The Sydney Morning Herald, 11 June 1919.
J.C. Irons, Vancouver manager for the Canadian-Australian Line, states that plans have been under way for sometime to the Avenger which was intended Canadian Australasian service.
Victoria Daily Times, 11 June 1919.
In Wellington on 10 June 1919, Union Steamship Co. announced the order with "a Clyde firm" (identified as Fairfields in previous reports) for a new 14,000-ton liner to replace the lost Avenger. Interestingly, that ship was always referred to by her naval name indicating that Union were perhaps still intending to name her replacement Aotearoa. Striking a more cautious note, the Feilding Star (Dunedin, New Zealand) on the 11th reported that "owing to the uncertainty of conditions in the shipbuilding trade in Great Britain, it is not possible to say when the ship will be completed."
Victoria, Nov. 22. That the Union Steamship Company is now building a liner 'larger, speedier and more palatial than even the Makura and Niagara to operate between Australia and British Columbia by way of New Zealand, Suva and Honolulu', was the statement tonight of D. H. Ross, Canadian trade commissioner to Australia, with headquarters at Melbourne.
This new vessel will probably be in operation during 1920, Mr. Ross added, and would take the place of the Avenger, which was completed for the Union Steamship Company, but used as an auxiliary cruiser by the admiralty and sunk by a submarine.
Vancouver Daily World, 22 November 1919.
| Credit: San Francisco Daily Journal of Commerce, 26 November 1919. |
The growing importance of the big Canadian trade to New Zealand and Australia is shown by the fact that the Canadian-Australasian Line and its parent company, the Union Steamship Company of New Zealand, are active in keeping up to the requirements of the trade. This is necessitating more passenger apace and cargo carriers. Some months ago the Canadian-Australasian Line announced that a new, passenger ship would be built. It is now stated that this ship, building at Fairfields, will be larger than the Empresses of the C.P.O.S. and will be speedier and larger than the present magnificent liners, Makura and Niagara. It is hoped tho vessel will be ready next year. This ship will be 600 ft long and will carry passengers and cargo between Honolulu, Suva, New Zealand, Australia, and Canada. She will take the place of the splendid new steamer Avenger, which was completed for the company just about the time war broke out and was later sunk by a submarine while on naval service, having been commandeered by the Admiralty.
Poverty Bay Herald, 24 December 1919
At the same time it was announced that Union Steamship had ordered their first motorship, Hauraki (1922/7,113 grt) from Denny's of Dumbarton, to be powered by North British diesels, the Northern Advocate (12 February 1920) adding that "The Union is having built a steamer to take the place of the 15,000 ton steamer Avenger, sunk during the war while on Admiralty service. The new vessel, which will be commissioned this year in the Canadian-Australian service, will be 600 ft long." By the beginning of 1920, the proposed newbuilding had indeed grown considerably in size and capacity with news accounts now citing 18,000 grt, 600 ft. in length, accommodation for 900 passengers and a speed of 18 knots from oil-fired geared turbines.
No name has yet been selected for the new large passenger steamer of the Union Steam Ship Company, which is to he built in place of the Aotea-roa (renamed the Avenger, torpedoed in the North Sea in July, 1917 while employed as a cruiser). The keel is to be laid down about the middle of this year by the Fairfield Shipping Company. The vessel will be about 600 ft. long, with a speed of 18 or 19 knots, and she will have oil fuel and, geared turbines. She will displace 24.000 tons, and will have accommodation of nearly a thousand passengers. As evidence of the enterprise of the Union Steam Ship Company in planning such a ship, it may be mentioned that the cost of building her will be largely in excess of the cost of the giant Mauretania when she was built.
Greymouth Evening Star, 17 March 1920.
Mr. Holdsworth's next visit to Vancouver, en route to London, in June 1920 was occasion to resuscitate the newbuilding rumours at which time The Islander 5 June, reported that "Within fifteen months the Union Steamship Company of New Zealand expects to secure delivery of the new ocean leviathan which the company have ordered for the Canadian-Australian trade. The new liner… will be of 18,000 tons gross register and 600 feet long. She is being constructed by the Fairfield Shipbuilding & Engineering Company, on the Clyde." The new vessel will be similar to the Avenger (fourteen thousand tons gross), and will be utilised in conjunction with the Niagara on the Vancouver run."
Tellingly, all of these reports were confined to the colonial newspapers with nary a mention in the British press. And whilst there was a veritable flurry of important new contracts signed with Fairfields for such legendary liners for the Canadian services as Canadian Pacific's Empress of Canada and Athenia and Letitia for Donaldson, this was a trying time for shipowners and shipbuilders indeed. The need to replenish war losses was offset by tremendous inflation in shipbuilding costs, rampant labour unrest, shortage of materials and changing trade patterns in the wake of both the war and the new Panama Canal. Indeed, strikes so delayed completion of Empress of Canada that her planned round the world cruise starting 15 March 1921 had to be cancelled and in the event, she did not enter service until the following May.
As a consequence, talk of the new Union liner faded by mid summer 1920 and plans for a super Niagara quietly shelved for the ensuing two years. It was an important 24 months that saw marine engineering embrace the "motor ship," when the Diesel was new enough to be spelled with a capital D and exhaust pipes replaced funnels and the smell of diesel fuel and the clatter of crankshafts, pistons and air compressors introduced new aromas and sounds to the engine room. Charles Holdsworth would finally realise his ambition to replace Aotearoa and also chalk up another important technical "first" for Union S.S. Co. .
It was learned in Glasgow yesterday that the Fairfield Shipbuilding and Engineering Company, Govan, has received an order for a vessel for the Union Steamship Company of New Zealand. The new vessel was ordered several years ago, but owing to the high costs of production the work was not started at that time.
Edinburgh Evening News, 19 September 1922.
A month after the yard had completed a major refitting to that other great pioneering Canadian route liner, Virginian, the first turbine-powered Atlantic vessel, Fairfield won the revised contract for the new Union Steamship liner on 18 September 1922. As an almost an aside to its report of the order, the Dundee Evening Telegraph two days later stated that "the vessel will be used for the frozen meat trade, and will be fitted with the Sulzer type of Diesel engines." For Fairfields, the order to proceed with construction of the new vessel was timely as they had justhanded over the Anchor Line's Tuscania on the 22nd.
Gradually the importance of the specification of the new Union liner was grasped and reflected in ensuing reports, the Northern Whig, 29 September 1922 reporting that "The vessel will be, it understood, about 600 feet long, and have a speed of about 18 knots. A notable innovation is that her propelling machinery will consist of internal combustion machinery of the Fairfield-Sulzer type, which will be constructed at the Fairfield Company's works."
The shipping and marine engineering trade press heralded the new order and the choice of machinery as no other in the post-war era to date. Hitherto, the renewal of Britain's passenger fleet had been dominated by the restoration of pre-war survivors, the newly acquired former German liners and an endless progression of intermediate liners commissioned by Cunard-Anchor. Here, was something so daring as to be revolutionary. Moreover, it was done on scale that itself was astonishing, the dimensions of the new motorship being comparable to the new Empress of Canada, the largest trans-Pacific liner and the biggest ship built in Britain for a non trans-Atlantic route. The new ship, too, would be considerably larger than the Aotearoa and Niagara.
Empress of Canada 21,517 grt 650 ft. x 77 ftUnion SS newbuilding 17,491 grt 600 ft. x 72 ft.Aotearoa 14,744 grt 550 ft. x 66 ft.Niagara 13,415 grt 534 ft. x 66 ft.
Entirely novel, Aorangi heralded a new era. Britain's and the world's first motorliner, British India Line's Domala had been launched on 24 December 1920, and made her maiden voyage to India from London on 30 December 1920. Like Union's Hauraki, she was powered by North British diesels. But the new Union ship was of an entirely different character, quality and size than the 8,441 grt, 464 ft. x 58 ft. Domala, and would be the very first large and important express passenger liner powered by diesel engines. Indeed, she would be the biggest diesel-powered ship in the world at 600 ft. by 72 ft. and a 22,000-ton displacement and her engines projected to develop 12,000 bhp or double that previously built. It was the beginning of The Motor Ship Era and that month alone, seven diesel-propelled ships had been contracted from British yard and eight others had run trials.
![]() |
| Credit: Vancouver Sun, 28 October 1922. |
Union Steamship Company of New Zealand has placed an order with the Fairfield Shipbuilding and Engineering Company for a motor-driven passenger liner, which will put to a supreme test all that the advocates of the new motive power hove claimed. This new liner will be 610 feet long over all, with a beam of feet, and she will have a displacement of about 22,000 tons.
The order for this vessel may be regarded as the most daring advance at a single step which has been undertaken since men first began to talk of the coming of the motor ship (writes Mr. Archibald Hurd in the London Daily Telegraph). This vessel is not only to have the relatively high speed of 18 knots, but she is to be employed on the long sea passage between New Zealand and Vancouver. Ten years ago, the idea of installing any kind of motor generator in so large a vessel intended for so long a route and with a designed speed of 18 knots would have been regarded as madness. It may be safely said no shipowner would have entertained the proposal. It speaks well for the enterprise of all concerned that not agreement should have been made for laying down this great ship, with triple screws, in the confident expectation that she will develop from 12,000 to 13,000 b.h.p.
We are within sight of a new type of passenger ship. Some of the most experienced naval arehiteets and most skilled engineers are devoting themselves to the problem of evolving a new type which will represent not only cheaper travel, but far more comfort than has hitherto been possible. No mean proportion of the great liners which ply between this country and the American continent are now burning oil instead of coal, but they still retain their steam boilers. Experience has already shown that is the most extravagant way of using oil fuel, and consequently the pioneers in motor ship design are increasingly turning their attention to the design of the passenger ship of the future.
Belfast Telegraph, 17 October 1922.
The Diesel engine, it was said, could not yet be manufactured in the necessary high powers, and when high propulsive efficiency had to be obtained by a muitiplicity of cylinders driving several shafts the result was much less economical and less satisfactory from the mechanical point of view than the twin-screw, geared turbine.
Now, without warning, there comes the statement that a firm associated In the past with some of the most notable departures in naval architecture and marine engineering are to build and engine a motor-propelled liner that will challenge comparison with the finest, largest and fastest vessel on the Pacific and that one of their own construction and with all the best vessels on the Morth Atlantic, with the exception of perhaps the first half dozen. There are few of the liners afloat today that ran be placed in the same class with the Fairfield built Canadian Pacific steamer Empress of Canada. There may be some larger, and perhaps faster, but there is none in which the machinery department has been carried to a higher degree of efficiency and general perfection.
Yet this is the vessel which the same firm now propose. It is understood, to repeat for other owners, with the enormously Important difference that Diesel engines are to be used Instead of turbines.
The liner which they are to build for the Union Steamship Company of New Zealand is to be of practically the same length as the Empress of Canada, and the same speed. As is well known, the Empress steamers are the finest vessels in the large fleet of the Canadian Pacific Hallway Company, and if it had been announced that that company was to have built a duplicate of their latest, largest and fastest Empress ship for propulsion by Diesel engines, much more would have been said about it than has been said about the contract which has been placed. The announcement would have been received as Indicating the beginning of a revolution in marine engineering practice, and the more optimistic among the supporters of internal combustion engines would have been predicting the approaching close of the long reign of the steam engine at sea. But that is exactly what has happened, except for the quite unimportant difference that the new vessel will have other owners.
The Times.
News of the new ship was first reported in the New Zealand press on 30 September 1922 and on 4 October the head office of Union in Wellington received full and remarkably complete details on the new vessel which were printed in The Press:
Those interested in engineering will appreciate tile following technical particulars of the new ehip. Tha propelling machinery will consist of four two-cycle Sulzer Diesel engines with 16 cylinders driving four propeller shafts and screws and developing, 15,000 indicated horse-power, and giving a speed of 18 knots (the Niagara is 17½ knots). The new ship will be the latest motor-ship yet built, and a notable advance in marine engineering. The highest speed of motor engined ships to-day is 14 knots. The Union Co. has already a cargo vessel, the Haurak, which is Diesel-engined, and she has a speed of 13 knots. The dimensions of the new ship are specified as follows: length 600 feet, beam 72 feet, depth 46 feet 6 inches, gross tonnage about 16,500 tons. Provision has been made for an equipment of 16 silent cargo winches, an improvement that passengers who have to sleep on board while cargo is being worked will very much appreciate.
Cargo-carrying will be an important feature of the new ship, for the Union Company has a strong faith in the development of the trade across the Pacific in the main exports of New Zealand, especially of refrigerated cargo. There will be eight hatches and these will open up four insulated cargo holds and four general cargo holds. The space for insulated cargo will be equal to a capacity of 85,000 cubic feet and suitable for the carriage of meat or butter. The general cargo apace will be equal to 260,000 cubic feet.
The luxurious character of the passenger accommodation in the best steamers in the North Atlantic trade will be emulated to a large extent in the Union Co.'s new ship. She will have accommodation for 920 passengers in all—411 first-class, 276 second class, and 233 third-class. The first-class passenger accommodation will have 53 one berth cabins and 322 two-berth cabins (including eight cabins de luxe), 16 bedroom suites, and 36 three-berth cabins. There will be one, two and four-berth cabins in the second class. The scheme of decoration and furnishing is said to be particularly ornate, and no expense, it is understood, is to be spared in, this respect, and in providing for the comfort, victualling, and recreation of the passengers. In addition to the usual dining saloons, smoking rooms, lounges, and music and social rooms for the various classes of passengers, there will be a verandah cafe and a gymnasium. Everything possible will be done, it is understood, to make the time on board pass quickly and and in comfort, not to say luxury.
The Press, 4 October 1922.
The hoopla surrounding her contracting and specification overshadowed her actual construction and the date of her laying down as no. 603 at Govan is unknown but widely reported to have occurred in late November 1922.
![]() |
| Credit: The Victoria Daily Times, 23 December 1922. |
Indeed, according to a flurry of rumours in the British Columbia press the following month, the new wonder ship would have a sister as well:
Upon the arrival of Makura at Victoria from the Antipodes on 23 December 1922, the Victoria Daily Times reported that "Union Steamship Company of New Zealand, operators of the Canadian-Australian Line, had placed, or is about to place, and order for another liner similar to the one ordered from Fairfield Shipbuilding and Engineering Company on the Clyde recently. The new contact, it is reported, is likely to go to Messrs. John Brown & Co., Ltd., Clydebank… the new brought by the Makura is the first reaching here that another fine passenger liner was contemplated by the Union Steamship Company."
That was, however, the last that was heard of the endeavour and no. 603 would prove to be the greatest as well as the last newbuilding commissioned for the Vancouver-Australasia run.
The new ship's early construction accomplished in obscurity, late May 1923 saw a flurry of press release generated reports especially in the colonial press. Upon arriving at Victoria on the 26th aboard Niagara, D. Alken, general manager of Canadian-Australasian told reporters that the new ship would be launched "about June of next year" and was to be named Aorangi after her famous predecessor. He anticipated she might make her maiden voyage in "the fall of next year" and in any event, would run with only one fleetmate, most assuredly Niagara, indicating that she would replace Makura.
It was reported on 16 August 1923 that Capt. Crawford would make one more voyage commanding Makura before he would go to Britain to supervise the completion of Aorangi. But upon Makura's arrival on the 25th, Capt. Crawford denied he would be leaving the ship anytime soon and stated that Aorangi "will not be completed until next August."
Curiously, given the Canadian and British press had been referring to her as such since May, the Australian papers reported on 26 September 1923 as news that the new ship would indeed be named Aorangi. This may have been occasioned by an official Union Steamship announcement that coincided with another flurry of press reports on the new ship in the colonial press. Although few new details were released, her speed was set at 17 knots to enable her to cross in 18 days from Vancouver to Auckland and "it is expected that she will be ready towards the end of 1924."
![]() |
| Capt. Robert Crawford (1872-1931), Credit: New Zealand Ship and Marine Society. |
On 6 October 1923 Capt. R. Crawford, late of Makura, was officially appointed master of Aorangi and replaced by Capt. A.E. Barlow. Crawford brought Makura into Sydney and then returned to New Zealand as a passenger to visit his brother who lived in Motukihi and would then voyage to Britain to supervise Aorangi's fitting out. Once again, his reassignment was postponed owing to delays in completing Aorangi and he was once in command of Makura on her return to Canada on 30 December. It was reported that it was expected that Aorangi would be now be launched in either May or June.
Before leaving for Australia this a afternoon Captain Robert Crawford, of the R.M.S. Makura, definitely stated that the Aorangi, being built in the Old Country for the Union Steamship Company, of New Zealand, would be placed on the Australia and Vancouver run in all probability this year. She will replace the Makura which will be placed in the San Francisco service. The Aorangi, according to Captain Crawford, will reduce the Pacific time considerably. It is expected that three days will be saved by the operation of the new motorship.
Captain Crawford will command her and will go to the Old Country to bring her out to Australia and eventually Canada. 'Progress on the work is very satisfactory,' stated the captain, 'and it is expected that the liner will be ready by next June. She is to be equipped with internal combustion engines, and will be a big improvement over the Makura and Niagara. She is to have Diesel engines and will have a much better speed than either the Makura or the Niagara.'
The Victoria Daily Times, 5 January 1924.
Personnel changes in anticipation of the completion of Aorangi were announced on 5 March 1924. In addition to Capt. R. Crawford going from Makura to take command, Chief Steward Reid of Niagara would go to the new ship as would Second Engineer Lockhart who would be promoted to Chief Engineer.
The construction and testing of Aorangi's great Sulzer diesels at Fairfield's engine shop at Govan aroused more interest, at least in the shipping and engineering press, than the ship herself. The Liverpool Journal of Commerce which proved to be the great champion of the evolving Motor Ship Era, covered every aspect.
![]() |
| Two of Aorangi's Sulzer diesels on the test bed at Fairfields. Credit: The Motor Ship, June 1924. |
![]() |
| Aorangi engine shop trial results. Credit: Liverpool Journal of Commerce, March 1924. |
On 15 March 1924 it reported the first demonstration test of one of the completed engines had been undertaken. This was sufficiently important to attract an impressive list of witnesses including Sir Alexander M. Kennedy, Fairfield's chairman; Rear-Admiral Douglas Brownrigg, director; Mr. Robert Traill, director and engineering manager; and Mr. A. J. Hendin, director and shipbuilding manager. Others present included Mr.. A. C. V. Henderson and, Mr. Archibald J. P. Henderson (Anchor Line) Mr. G. J. Innes (Messrs. P. Henderson and Co.), Mr, J. Austin (Cunard Line), Mr. H. A. Wilson (Anglo-Ameriean Oil Company), Commander F.J. Cleary (United States Navy), and Mr W. Isherwood. "In the course of the demonstration the engine was reversed several times from full speed ahead. and submitted to other tests, from which it emerged with every success." It was also reported that "The trials nave included a continuous run for 72 at the designed service power, followed by 12 hours at 10 per cont. overload. There was also a three hours run at 20 lien cent. overload. On all the tests the engine ran perfectly. "
![]() |
| Credit: The Province, 29 May 1924. |
Although it had originally been planned that Aorangi be completed in time to take the Christmas sailing from Vancouver to Australasia, the boilermakers' strike set back her construction by a good five months. It was not until early June 1924 that she was finally ready for launching and her machinery completed and ready for installation.
The Fairfield Company now has got the new Union of New Zealand motor liner to the launching stage, and when she takes the water next week she will be a big milestone in British shipbuilding, for the she is the first motor liner to be built, and fully deserves all the notice that she is getting.
Liverpool Journal of Commerce, 10 June 1924.
Considerable interest has centred around the series of large motor driven passenger liners now on hand, interest which was first stimulated by the placing of an order by the Union Steam Ship Company of New Zealand with the Fairfield Shipbuilding & Engineering Co. Ltd., Govan, for a quadruple-screw ship of about 22,000 tons displacement to be propelled by Sulzer engines. The contract marked a great step forward in motorship construction, and the second stage of its progress was reached on Tuesday when the vessel, the Aorangi, was launched with great ceremony before a large number of guests. The launching ceremony was performed by Mrs. Holdsworth, wife of the managing director of the Union Company.
Shipbuilding and Shipping Record.
![]() |
| Mrs. Charles Holdsworth, wife of Union's managing director, christens Aorangi. Credit: Shipbuilding and Shipping Record. |
Great interest was taken in the launch by the Govan townspeople, and the floating of the vessel, which was accomplished in 55 seconds, was witnessed by large crowds of spectators, who raised enthusiastic cheers when the new ship was successfully water borne.
From the launching platform she looked as if she practically covered the width of the river, and it was noticeable that the principal check was on the down river side of the hull.
Liverpool Journal of Commerce
In what was the most celebrated christening of a liner from a British yard since before the war, Aorangi was sent down the ways at Govan on 17 June 1924 by Mrs. Charles Holdsworth, wife of the managing director of Union Steamship. The great hull, painted grey primer, was topped by a completely plated superstructure complete with davits and bridge.
On the launching platform were Sir Alexander M. Kennedy, chairman of Fairfield Shipbuilding, Rear-Admiral Sir Douglas Brownrigg and other directors of the yard; Sir James Mill, KCMG, chairman and Charles Holdsworth, managing director, of Union Steamship; Mr. Robert Sulzer of the engine builders; and Lord Provost Montgomery and other prominent Glasgow citizens and shipbuilding and and shipping representatives. At the launching luncheon which followed, Mrs. Holdsworth was presented with the mallet with which she cut the launching cord and a diamond spray as a gift from the builders and Sir James Mills gave her a diamond broach on behalf of the owners.
![]() |
| Aorangi roars down the Govan slipway. Credit: Shipbuilding and Shipping Record. |
![]() |
| Aorangi afloat and taken in hand by tugs. Credit: Shipbuilding and Shipping Record. |
At the luncheon which took place after the launch, Sir Alexander Kennedy, Chairman and managing director of the Fairfield Shipbuilding Company, who presided, proposed the toast of success to the Aorangi, which he said would be the largest and most powerful of her type afloat and would also be the first ocean-going ship to be propelled by Diesel engines on four shafts. The Union Steam Ship Company had, with their proverbial foresight decided to build that ship at a time when the future seemed very black indeed, but appearances to-day seemed to indicate that they had acted right.
The development of the motor ship as exemplified in the vessel launched that day was full of promise for the future. Much of the tonnage now laid up would have little or no chance of holding its place in shipping with modern and up-to-date ships, and it was not unreasonable to suppose that such owners would feel it desirable to equip themselves with new and improved tonnage. They certainly could not be accused of having disregarded their customers' needs, and they were entitled to expect that shipowners would now take a more hopeful view of the future by preparing to enter the world's markets again with up-to-date ships.
The toast was replied to by Sir James Mills, K.C.M.G., chairman of the Union Company, and Mr. Charles Holdsworth, managing director. Mrs. Holdsworth was presented with a diamond spray by the builders and a brooch by the owners. Mr. Robert Traill, engineering manager, who responded to the toast of 'The Builders,' proposed by Mr. Holdsworth, outlined some of the features of the installation and said that, although the adoption of these engines had been spoken of as something in the nature of an experiment, such methods of reference were wrong, as the Sulzer engine had been well tried out and was known to be capable of the services which the owners would require of it. In conclusion, he referred to the presence at the gathering of Mr. Robert Sulzer, who in the course of a few remarks said that it might seem strange that Switzerland should supply marine engines. One of the directors had spent some time at sea, and came to the conclusion that the best way their engines could go to the sea was by putting them in ships. He was thankful to Mr. Holdsworth and his colleagues for their pioneer work, and he hoped that the heart of the Aorangi would beat so regularly that Mr. Holdsworth would not lose a single hour of sleep.
Shipbuilding and Shipping Record.
![]() |
| Aorangi being towed to the fitting out berth. Credit: Shipbuilding and Shipping Record. |
![]() |
| When she was launched, Aorangi's superstructure was fully erected, including her davits, bridge and kingposts. Credit: eBay auction photo. |
The Province reported on 23 August 1924 that "there is a possibility that the port of Vancouver will see the new Canadian-Australasian liner M.S. Aorangi early in January… if arrangements now contemplated are carried out the Aorangi will sail from England late this year with passengers for Los Angeles, San Francisco and Vancouver, or through to Australian. She will come via Panama and inaugurate her Australian service from Vancouver." This "possibility" first advertised in the Daily Telegraph on the 14th for what would be the typical and epic delivery voyage of an Antipodian mailship: "An Ocean Cruise of 17,000 miles embracing calls at Kingston, Panama Canal, Los Angeles, San Francisco, Vancouver, Honolulu, Suva, Auckland and Sydney." The sailing date "from the United Kingdom" was rather vaguely stated as "about the end of December."
Things were made a bit more definite on 4 September 1924 when Canadian Australasian Line in Canada announced that Aorangi would commence her maiden voyage from Vancouver, in place of Makura, on 11 February 1925. In reporting the news, The Province added that "Machinery and cabin fittings are now being installed. There is still a large amount of interior cabinet work and decorating to be done, as well as installation of equipment for elevators, baths, bakeries, laundries, print ship and other that will be make the vessel a self-contained city." At the time, it was stated that the ship would commence her delivery voyage "direct from the Clyde." The Daily Standard of Brisbane, picking up the story, stated that Aorangi's delivery voyage would be "the longest cruise made by any liner on her maiden voyage. Many shipbuilding orders have been with been withheld pending report concerning this cruise of the world's largest motor liner, which in shipping circles is being keenly watched. The Liverpool Journal of Commerce of 9 October added: "The trial of this new vessel of the Union Steamship Company, of New Zealand, will be one of the most important events of recent times in the shipbuilding industry. If the Aorangi can cruise 15,000 miles without replenishing her bunkers the result will be of vital importance not only to merchant but to naval shipping in the Pacific."
![]() |
| Credit: The Daily Mail, 8 September 1924. |
The pace of her completion picking up, on 16 September 1924 it was announced that Aorangi's trials would "take place on the Clyde during November."
![]() |
| Credit: The Sphere, 22 November 1924. |
It was announced in Australia on 22 September 1924 that Aorangi's maiden voyage from Sydney would commence on 12 March 1925 and from Auckland on the 17th for Suva, Honolulu and Vancouver. By early November Aorangi's epic maiden outbound voyage was set to begin from Glasgow on 30 December and Southampton on 2 January 1925.
With some understatement, the Liverpool Journal of Commerce on 3 December 1924 reported that "next week one of the most important tests in the history of Britain's Mercantile Marine will be carried out, when the Aorangi, of 23,000 tons, the world's biggest motorship, will leave the Clyde for sea trials of 1,000 miles." Not since the trials of Virginian or Lusitania, had the tests of single ship been more anticipated or reported.
![]() |
| Aorangi (left) and Letitia in the fitting out basin at Govan, November 1924. Credit shipsnostalgia.com fairfield |
![]() |
| Aorangi nearing completion at Govan. Credit: Shipbuilder. |
In advance of the tests of the big liner, the handsome motorboat for the liner, built of teak by Messrs. Hugh McLean & Sons, Glasgow, and measuring 30 ft. x 9 ft. and powered by a 36 bhp Gleniffer paraffin motor, underwent trials on the Clyde early in December and recorded a mean speed of 8.25 knots. The craft would be fitted with wireless.
![]() |
| Aorangi leaves Govan on her trials. Credit: British Columbia Archives. |
![]() |
| The Pride of Clyde, Aorangi in the river of her birth on trials. Credit: State Library of South Australia. |
![]() |
| Aorangi shows off her fine lines in the Clyde as she begins her trials. Credit: Mediastorehouse.com |
Aorangi left Govan on the morning 8 December 1924 for a prolonged series of trials that would last until the 16th. On the 12th she encountered a full gale off the coast of England but her captain declared "that in the saloon the ship seemed practically motionless." During the 60-hour endurance trial, she average 17.91 knots.
During the 60 hours trial the vessel cruised in the Irish Sea, in St. George's Channel and along the south coast of Ireland to Fastnet. During part of this trial there was a half gale of wind with high head seas, which tested the machinery thoroughly, but the ship and machinery behaved excellently all through. The freedom from vibration was very noticeable, especially at the stern, where, in the majority of vessels, the tremor is so pronounced as to be uncomfortable.
In the accommodation at the stern of Aorangi it was difficult to say if the engines were running or at rest. The four propellers, running at a moderate speed, gave a very high overall efficiency, the propulsive co-efficient exceeding .58. The adoption of the four screw arrangement, therefore, has been amply justified, both on the score of comfort and economy.
Liverpool Journal of Commerce, 23 December 1924.
The results of the trials were as follows:
On the Measured Mile
I.H.P. 15,500
B.H.P. 12,400
R.P.M. 124.4
Speed 18.237 knots
60 Hours Sea Trial (Average)
I.H.P. 15,300
B.H.P. 12,200
R.P.M 123
Speed 17.91 knots
Fuel Consumption (lbs. per BHP per hour)
Main engines .395
Auxiliary diesels .036
Trials ended on 16 December 1924 and then, with 300 guests aboard who travelled by train from Glasgow to Princes Pier, Greenock and embarked on the liner anchored off the Tail of the Bank on the 17th for a 100-mile cruise off the coast of Scotland to south of Arran and then sailed for Glasgow.
Aorangi's departure on her delivery voyage was set on 18 December 1924 to depart Southampton on 2 January 1925.
Whilst alongside Meadowside Dock, Glasgow, travel agents were invited to tour Aorangi and have luncheon aboard on Christmas Eve. "The accommodation provided on the steamer is most luxuriant and an opportunity was given during the function for the inspection of all parts of the vessel." (Bellshill Speaker).
Aorangi sailed from Glasgow on 30 December 1924 and arrived at Southampton on New Years Day 1925 after a "brief but breezy trip" that Capt. Crawford said "was sufficient to prove that she was a good sea ship." (The Scotsman).
![]() |
| Aorangi in Glasgow's Meadowside Dock with an Anchor liner, on the eve of her departure for Southampton on her delivery voyage. Credit: Daily Mirror, 1 January 1925. |
Her dimensions and her passenger capacity entitle her to be placed at the top of the merchant steamers trading to the South Pacific Ocean. No expense has been spared in the design, construction and outfitting of public rooms and private accommodations for passengers, and in consideration of the fact that this vessel will be the initial first-class passenger liner to use diesel engine propulsion, we grant her the title of the 'Most Modern Passenger Vessel Afloat.'
Pacific Marine Review.
Her builders, the Fairfield Shipbuilding and Engineering Company, Limited, of Govan, Glasgow, have constructed many fine ships both for the naval and mercantile services, but none, we think, finer than the Aorangi, which goes out to our Colonial Empire as an outstanding example of the best and most modern shipbuilding practice, combining the charm and grace of the British tradition in liner building with the most recent advance in propelling machinery design. Both owners and builders have the satisfaction of knowing that their initiative has been fully rewarded.
The Engineer.
It is not often that one sees history made before his eyes as Honolulu sees today in the arrival of the Aorangi. It is not the least exaggeration to say that she is one of 'the series of marked advances that have brought marine transportation to its present high state: the first clipper ship; the first steamship; the first screw propellor; the first turbine; the first motorship. For the Aorangi is such that she begins the second and greater chapter of the Diesel-driven vessel. What that means is said in a few words. Many quite competent authorities predict the disappearance of steam from the high seas, except in the case of such highly-specialized vessels as war craft and, perhaps, the very large Majestics and Leviathans.
Steam will be replaced by heavy oil, burning in cylinders somewhat after the fashion of gasoline in an automobile engine. It is easy to believe, indeed, that the waning of steam already is well on its way; that the Aorangi is the newly-risen sun in which reciprocating engine and turbine are fading like stars before the dawn, unable to compete with the amazing cheapness of Dr. Diesel's motors..
Honolulu Star-Advertiser, 13 February 1925.
![]() |
| Aorangi cloaked her revolutionary machinery with classic, imposing lines. Credit: pininterest |
![]() |
| Looking every inch the classic 1920s British mailship, R.M.M.S. Aorangi makes port. Credit: shipsnostalgia, Makarios. |
The Aorangi is the first large four screw fast liner to be propelled by marine oil engines, and it is most appropriate that the Fairfield Company should be associated with the Union Steam Ship Company of New Zealand in this important development. Much credit to Mr. C. Holdsworth—the managing director of the Union Company—for the pioneer work which his courageous and progressive policy has made possible. In this respect, however, it may be recalled that this old-established Colonial line over which Mr. Holdsworth presides is noteworthy as one of the most progressive of British shipping companies. It owned sailing ships before the days of the steamship, and was among the earliest of shipowners to introduce such new features as triple screws and the water-tube boiler, which innovations were later followed by the steam turbine, the combined reciprocating and turbine arrangement, by geared turbines, and by oil fuel burning boilers. All these improvements have been surpassed by the company in the Aorangi, which holds the largest installation of two-stroke cycle Diesel machinery yet constructed.
The Engineer.
![]() |
| Credit: Syren and Shipping. |
David Boyd, her designer, who arrived on the Aorangi yesterday, is an alladin. He has achieved the impossible in her construction and had gone farther and made her the most palatial craft plying the Pacific Ocean.
The Los Angeles Times, 25 January 1925.
![]() |
| David Boyd, Naval Architect. Credit: The Province. |
Designed by Mr. David Boyd, naval architect of Messrs. William Esplen, Son and Swainston, Ltd. London (hull) and Mr. W.T. Tucker, Union Steamship Superintendent Engineer (main machinery), Aorangi's inspiration was owed to Mr. C. Holdsworth, managing director of the Union Company, who "is to be congratulated on the courage and foresight he had shown in the production of the ship and her machinery." (Shipbuilder).
![]() |
| Aorangi-- a revolutionary with classic lines. Credit: shipsnostalgia.com |
... it will be seen that the external appearance of the vessel is characterised by a straight stem, cruiser stern, large superstructures, two pole masts and two funnels, her graceful lines giving a yacht-like form coupled with the spaciousness of the modern large liner.
Shipbuilder.
It will be noted in the illustration showing the artist's conception of the Aorangi when she is finished that she carries two funnels. One of these will be used for exhaust and engine room ventilation; the other is a dummy. Old timers will be glad that the Union Steamship Company has retained the real steamship lines. The absence of boilers and uptakes to the stacks allows a decidedly better arrangement of passenger accommodations and a considerable saving of space in the most valuable part of the ship for that purpose.
Pacific Marine Review.
She was a magnificent looking ship as well, with fine sweeping lines splendidly set off by the Union Company's colouring, dark green hull with a yellow line at upper deck level, red boot-topping, and red funnels with a black top and two black rings.
J.H. Isherwood, Sea Breezes.
![]() |
| The "Magnificent Looking" Aorangi. Credit: shipspotting.com |
Funnels as Steamship Decorations
Two funnels will decorate the motorship Aorangi of the Union Steamship Co. of New Zealand, now building in the United Kingdom for the company's Canadian-Australasian line. Right-O! And buttons decorate the coat sleeves of men, though they no longer serve to hold back lace frills when one shakes a cocktail or a pair of dice.
When every steamship in the world has become a motor-ship, which is not at all unlikely, we probably shall see funnels perching amidships as though scores of firemen were shoveling coal into roaring furnaces and black smoke were staining the leeward horizon. Useless funnels, of course, for the exhaust from Diesel engines is nothing considerable, yet testifying to man's inherent conservatism and dislike for a change too radical.
Shipping men and passengers and folk inland who never have seen an ocean-going vessel know what should be the appearance of such craft and, by Jove, the craft must not violate any canons. She must have funnels so folk won't say: "What a strange vessel!'
Honolulu Star-Advertiser, 21 September 1924.
![]() |
| A beauty home from the sea, an immaculate and impressive, Aorangi berths at Auckland. Credit: shipsnostalgia gordy ross |
In keeping with a company that rarely had anything but "lookers" in their fleet, Union Line management chose to emulate British India Line whose pioneering Domala and Dumana, the very first passenger motorliners built as such, took on the wholly traditional appearance of their steam turbine-driven fleetmates. In doing so, Aorangi was given two tall and, possibly, slightly too slender profiled Aquitania-esque funnels, the second of which exhausted the main diesels whilst the forward one vented the auxiliary engine spaces. She copied the cruiser stern of the lost Aotearoa, which balanced the imposing high freeboard of the forepart. The superstructure was long and substantial but not overwhelming and the overall appearance was neat and attractive.
![]() |
| Aorangi showing her fine lines in a quartering stern aspect. Credit: eBay auction photo. |
Even so, Aorangi did not please some ship conscious Aucklanders upon her maiden arrival at the port and especially when compared to the graceful and much loved Niagara:
Studied with a nautical eye as she came up the harbour, the Aorangi did not strike one as a thing of beauty, stately as she seemed in her way, in the fashion of a 'ship-shape ship.' Her cruiser stern detracted from the evenness of her lies and her funnels, too, seemed small in proportion to her size. On all sides, it was admitted that she was not by any means as beautiful a model as her smaller sister, the Niagara.
Looked at from her wake, however, the cruiser stern appeared to conform to the general design of the hull, which regarded as a whole is not unpicturesque, and of a model to which we are now becoming accustomed.
Auckland Star.
![]() |
| Aorangi. Credit: National Australian Maritime Museum. |
The largest ship yet built for the Antipodean route, Aorangi measured 17,491 tons (gross), 10,733 tons (net) and 22,000 tons (displacement) with a deadweight capacity of 8,345 tons on a load draught of 27 ft. 6 ins. Dimensionally, she was 600 ft. long overall and 580 ft. b.p. with a beam of 72 ft. 2 inches. Her block co-efficient was 65.
Aorangi had six decks which seem to be referred to by different names on commercial deck plans, her builders plans and those printed in contemporary shipping journals: Boat (A), Promenade (B or Forecastle), Shelter (C), Upper (D or Main), Main (E) and Lower (Hold).
![]() |
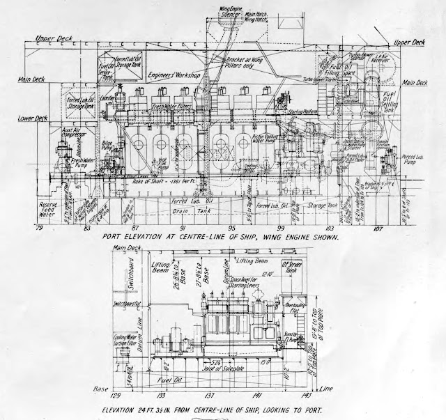
| Midship Section. Credit: Shipbuilding and Shipping Record. |
The hull had a full cellular double bottom, 4-ft. 1-in. deep (5-ft. 6-in deep under the main engine room) fitted for the carriage of water ballast, fresh water and fuel oil. Aorangi, built to a two-compartment standard, was divided by 12 watertight bulkheads extending to Upper (D) Deck.
![]() |
| Detail of Aorongi's aft superstructure shown as she lies alongside at Vancouver. Credit: Major Harold Brown Collection, British Columbia Archives. |
The superstructure was substantial and extending far aft, imparting a solid and imposing appearance and housing the principal public rooms for First and Second Class as well as the best accommodation for First as well as extensive open, covered and glass-enclosed promenade deck space. The Boat (A) Deck extended 425 ft. 6 in. and the forecastle measured 93 ft. 3 in. in length.
The engine-room will be slightly aft of amidships and about 72 ft. in length. Forward of this are arranged fuel-oil tanks, and farther forward the auxiliary engine-room, in which will be installed four 410 b.h.p. four-cylinder Sulzer engines driving dynamos, besides which is arranged a separate boiler-room with two boilers.
The Motor Ship.
One of the main advantages of diesel propulsion was the significant reduction of the machinery "foot print." In Aorangi, the total length occupied in the hull for her machinery, including fuel tanks, was 61 frames or 152 ft. and the main engine room was but 72 ft. long.
The main fuel tanks, sited amidships, and extending to Main E Deck, and subdivided into eight separate cells were augmented by storage in the double bottom so that the total amount of bunkers (3,060 tons in all) carried was more than sufficient for a complete round voyage from Vancouver to Sydney, a distance of no less than 15,000 nautical miles, "a fact which strikingly illustrates one of the great advantages of the application of the internal-combustion engine to ship propulsion." (Shipbuilder). Moreover, it afforded tremendous economy given that diesel fuel was far cheaper on the North American West Coast than Australiasia. Aorangi's double bottom tanks also carried 1,000 tons of fresh water.
![]() |
| Detail of Aorongi's forward superstructure shown as she lies alongside at Vancouver. Credit: Major Harold Brown Collection, British Columbia Archives. |
There are eight cargo hatchways, each of which is served by two steel derricks each capable of lifting 5-ton loads. Of these derricks, four are supported by each mast, while the remainder are supported from derrick posts, of which there are four, each carrying two derricks, so that there are in all 16 derricks. For working the derricks 16 steam winches are provided, one for each derrick. The winches have been supplied by Messrs. Clarke, Chapman & Co., Ltd., of Gateshead-on-Tyne, and are of a silent-running type specially designed for passenger ships to avoid disturbance of the passengers. There is also a large warping winch on the shelter deck aft.
Shipbuilder.
With eight holds (three forward, no.4 just forward of the forward funnel and trunked through the accommodation, and four aft), Aorangi had a total cargo capacity of 225,000 cu. ft. of which 90,000 cu. ft. was refrigerated and carried in the after holds and 'tween decks, and accessed by a total of eight hatches. Truly a Royal Mail Motor Ship, Aorangi had extensive mail rooms for letters and parcels and sorting rooms. "The forward lower holds and the corresponding 'tween decks between the lower and main decks are utilised as cargo spaces, with the exception that No. 4 lower 'tween decks and part of No. 3 are allocated to baggage and mail rooms. The after holds and lower 'tween decks, with the exception of No. 5 'tween decks, are insulated for carrying refrigerated cargo, including fruit, meat and dairy produce. No. 5 'tween decks is occupied by the ship's insulated and other provision rooms." (Shipbuilder).
![]() |
| R.M.M.S. Aorangi by J.E. Hobbs. Credit: shipsnostalgia awatea36. |
Her owners, the Union Steamship Company of New Zealand, have named this vessel the Aorangi (the Cloud Piercer), a name which may well be prophetic, for this fine ship is indeed the concrete argument needed to pierce the mental clouds of doubt regarding the application of the diesel engine to propulsion.
Pacific Marine Review.
The large number of visitors not to speak of the shipyard employees and inhabitants of Govan who witnessed the launch of the Aorangi on June 17th were present on an historic occasion, representing as it did the passing of another milestone in the history of shipbuilding. For although the motor vessel is rapidly ousting the steamer in popularity and already some oil-engined passenger liners are in service, the Aorangi is to be far the largest and fastest ship equipped with internal-combustion engines and represents the first ocean leviathan in which this means of propulsion is to be employed.
At the time the order was placed in September, 1922, we remarked that 'there is little doubt this will be the forerunner of many orders for ships of the same and larger size,' and time has proved the statement to be correct, for there are now about a dozen large passenger and cargo liners being constructed. Thus the accuracy of the judgment of both the owners and the builders (the Union Steamship Co., of New Zealand, and the Fairfield Shipbuilding and Engineering Co. respectively), in taking what at that time seemed to be a revolutionary step, has already been amply justified.
The Motor Ship.
Aorangi is best remembered as being the world's first major passenger liner powered by diesel engines. She truly ushered in The Motor Ship Age which would dominate the marine engineering and naval architecture of the greatest shipbuilding nation in the world, Great Britain, during the inter-war era. Indeed, it would prove the last real innovation of British marine engineering and whilst championed at least as much by the Italians and improved upon by the Germans in the mid 1930s with diesel-electric derivations and challenged by the Americans with turbo-electric machinery, the British Motor Ship dominated the era. And Aorangi paved the way, building upon the remarkable record of progressive innovation that Union Steamship Co. had already established.
It was innovation tempered already by experience and whilst the first purpose-built passenger-cargo ships, British India's Domala and Dumana, had used the first British designed marine diesels by North British, they had proven unsatisfactory in service. Indeed, Union's first motorship, Hauraki (1922/7,113 grt) was one of the six ships with North British diesels. Thus, the far more promising and proven Swiss Sulzer design was instead chosen for Aorangi but on a scale hitherto not attempted.
![]() |
| One of Aorangi's four main Fairfield Sulzer engines. Credit: Shipbuilder. |
![]() |
| Main engine tops. Credit: Marine Engineering. |
The heart of Aorangi as a ship and epoch maker was the Fairfield-Sulzer two-stroke diesel engine, with six cylinders of 27.4 in. dia. and a 39 in. stroke, designed to work at 127 rpm and develop 3,250 bhp with substantial overload capacity and were, at the time, the most powerful marine oil engines in the world. These essential dimensions had been duplicated in four-cylinder engines with equal or larger cylinder diameter and piston strokes. With these diesels, already well-proven in service, her owners and builders went further and installed four of them to achieve the desired 13,000 brake horsepower to propel a vessel that was easily double the size of any previous motorship. Here, although the basic motor design was proven, significant improvements were incorporated both in the engines themselves and in the design and strength of the ship's structure to accommodate them to ensure the dreaded issue of vibration, already a factor in motorships, was minimised or eliminated in a ship of unprecedented size and speed for a diesel-powered one.
![]() |
| Main engine room cross section at frame 98 looking aft. Credit: The Shipbuilder. |
![]() |
| Main engine room plan. Credit: The Shipbuilder. |
The new motor is a Sulzer type, and perhaps the chief interest centred in it lies in the changes that have been made from what may be considered normal design. The engine runs at a relatively high speed, and in the ship, at a speed of 18 knots, it will operate at 127 r.p.m. and develop its rated output of 3,250 b.h.p. at a piston speed of 825 ft. p.m. It is for this reason that the piston stroke is comparatively short in view of the power, as the normal piston speed of the standard engines has hitherto been kept down to 750 ft. p.m. with a maximum of about 800 ft. p.m.
A complete absence of vibration has to be assured in a big passenger liner, and still greater attention had to be paid to this point than would ordinarily be the case, in view of the fact that it is a quadruple-screw installation. The Fairfield Co., therefore, took no risks on this score, and have made a very rigid engine. This has involved additional weight, probably to the extent of a hundred tons all told in the quadruple-screw installation, and the engine as illustrated (that is, complete with air compressors and thrust block, but without auxiliaries) works out at about 295 tons, a figure that could have been greatly reduced had not the additional stiffness been given. The result is more than encouraging to the builders. for it could truly be said that, when running at about 130 r.p.m., there was no vibration on the upper staging, and, going below the bedplate, we were scarcely able to detect a tremor of any sort. We are given to understand also that, during the over speed trial referred to later, the same very favourable condition prevailed.
What has been done is to make a rigid structure of the bedplate by having double longitudinal girders, with very strong athwartships girders, whilst the columns are made exceptionally heavy. The engine is to be bolted direct on to the tank top, having a flat sole, the depth of the girders below the engine being in the neighbourhood of 5 ft. 6 ins.
The designers have adopted a somewhat ingenious method of avoiding wear or vibration in connection with the vertical or governor shaft driven at the bottom by skew gearing from the crankshaft, and driving the camshaft at the top. In the general way, it is usual to provide a thrust bearing at the bottom to take the load. This has been omitted, and above and below the gearwheel on the shaft at the bottom are plain bearings. About half-way up, however, is arranged a Mitchell thrust and above are plain bearings. The whole is, of course, enclosed, and the method adopted is likely to prevent troubles that have in some cases arisen through undue wear in this part of the mechanism, where, naturally, it is most desirable to avoid it.
The Motor Ship.
![]() |
| Side elevation of port main wing engine (top) and port diesel generator (bottom). Credit: The Shipbuilder. |
The design of the engines embodies several departures from normal Sulzer practice. The bearing surfaces have been increased to reduce pressure. Much heavier framing is incorporated, particularly in the columns and bedplates. The soleplate has been altered and is built with a flat base arranged to permit direct attachment to the tank top. The double bottom framing in way of the propelling machinery is made especially deep and is strengthened considerably to distribute the load and stress due to propulsion.
In place of the usual rotary valves controlling the supply of scavenge air through the upper row of scavenge ports, the engines of the Aorangi have groups of multiple disk valves fitted in the scavenging trunk. These valves admit air through the control port as soon as the exhaust air in the cylinder falls below the pressure of the scavenge air in the trunk. Conversely, these valves are closed as soon as the compression pressure from the cylinder exceeds the scavenge air pressure. The position of the control stand is at the level of the cylinder tops, and situated on each engine at the forward end above the injection air compressors.
Scavenging air is provided by separate motor driven rotary blowers. There are three of these blowers, each of them being capable of supplying the normal scavenge air for two engines. The main engines are arranged in parallel in one engine room and the principal auxiliaries are in a separate compartment. Salt water is used for both piston and jacket cooling, and the piston crown is flooded under all conditions of running.
Pacific Marine Review.
Two three-stage air compressors are arranged at the forward end of the engine, being driven from the main shaft by a crankshaft having two throws at 120° to each other. Each compressor is of sufficient capacity to supply the injection air for one main engine while running at full power. Each h.-p. cylinder has a diameter of 5 in., while the stroke for all stages is 20 in. The h.-p. and 1.-p. stages are effected on the up-stroke and the m.-p. on the down-stroke of the pistons. The suction and discharge valves in the m.-p. and 1.-p. stages are contained in cone-shaped cages ground into sockets in the cylinder walls. The h.-p. suction and discharge valves are contained in the cast-steel cover of the h.-p. stage immediately above the piston top. Straight tube coolers are provided after each stage. Each of the air-compressor cylinders and coolers is surrounded by a jacket through which circulating water passes before reaching the main cylinders. The air is drawn from the turbo-blower suction trunk, but an additional supply is available, if required, from the turbo-blower discharge, this being capable of augmenting the capacity of the compressors by about 12 per cent.
Shipbuilder.
![]() |
| Main engine control station. Credit: Marine Engineering. |
![]() |
| Port engine controls. Credit: Marine Engineering. |
The Aorangi ranks among the comparatively few ocean liners which are driven by quadruple screws, and this gives her a further distinction among motor-driven ships. Her propellers, with two spares, are made by Messrs. J. Stone and Co., of Deptford, and are of a specially compounded alloy. The diameter of each is 13 ft. and the weight 51 tons.
Syren and Shipping.
Aorangi was the first of that remarkable group of quadruple-screw British motorships and, interestingly, like the last so constructed-- Dominion Monarch of 1939-- both were commissioned specifically for the Australasian routes and they remain the largest ever built. The decision to adopt four screws was simple enough: to employ engines of what was then accepted to be of the maximum practical horsepower hitherto proven in single and twin-screw installations and merely multiply them to achieve the total horsepower required in much larger vessels. "Mr. Robert Traill, engineering director of the Fairfield Co., after pointing out the advantages of the Diesel engine for such a ship, said that they had been criticised in some quarters for adopting a quadruple-screw. arrangement, but in doing so they had been able to use engines of practically similar size (but with four cylinders) as others which had already proved their reliability at sea. Thus they were assured that no experiment was involved." (The Motor Ship).
![]() |
| Auxiliary engine room cross section at frame 135 looking forward. Credit: The Shipbuilder. |
![]() |
| Plan of auxilary engine room. Credit: The Shipbuilder. |
![]() |
| Auxiliary engine tops. Credit: Marine Engineering. |
![]() |
| Allen 300 K/w generators. Credit: Marine Engineering. |
![]() |
| Main switchboard. Credit: Marine Engineering. |
In view of the interest now attaching to the question of auxiliary machinery on motor ships and the fact that this is the first motor vessel of its type, a few notes may be added concerning the arrangements to be employed. A system combining steam and electrical auxiliaries is to be utilized. There will be two large boilers with heating surfaces of about 3,500 sq. ft., and among the steam-driven auxiliaries will be a general service, ballast, bilge, fresh-water, lubricating-oil and oil-fuel pumps, in addition to the feed and condenser pumps, an emergency-air compressor and an auxiliary generator. The Diesel driven generating plant will comprise four 410 h.p. four-cylinder Sulzer two-cycle engines driving dynamos of about 250 kw., and these will supply power to the three turbo-blowers, bilge pumps, cooling-water pumps and a sanitary pump. An emergency oil-engine-driven lighting set is also to be fitted.
The Motor Ship.
![]() |
| Credit: Syren and Shipping. |
These engines will generate the aggregate equivalent of 20,000 indicated horsepower, and any three of them will, at ordinary pressure, be sufficient to maintain the vessel's normal sea speed. In addition, each engine has a reserve of power which would, should need arise, enable the ship to be driven continously at speed much above the normal. The margin of power characterises also the minor machinery on the main engines, scavenging pumps and air compressors being of a total power in excess of normal requirements, with a reserve unit in each case. The electrical installation for power and lighting is sufficient to have one unit normally unemployed and in reserve.
The Blue Peter
From the onset, the realisation that these early diesels required far more maintenance than conventional steam plants resulted in provision for underway maintenance and repairs if needed by ensuring the ship could maintain her service speed on three main engines and provide electricity on three generators rather than four. When new, Aorangi often overran her scheduled timetable in fact which was progammed more to compliment that of her running mate Niagara than fully reflect her potential speed. In this, she was superior to the other bookend of quadruple-screw motorliners, Dominion Monarch, which lacked the reserve power to make up delays en route.
Here, the operational trade off was the quadrupling of maintenance required at the end of voyages and none of these four-screw motorships endeared themselves to their engineers, many of whom saw little of their ship's turnaround ports and whose constant attention of these complex and massive pieces of machinery was essential to the vessel's operation and efficiency. It was a factor, too, that ultimately shortened their carriers or at least precluded ones outside that originally intended. Aorangi went to the breakers aged 28 just five years after a major refit and at a time when ships of her size and capacity were in enormous demand on the migrant run to Australia. And there is no doubt her machinery played a role in her comparatively early demise.
For those interested in a firsthand account of what it was like to work with Aorangi's diesels, this superb account by G.A. Ricketts, published in Marine News (the journal of the NZ Ship & Marine Society), Vol. 30 no. 2 (1980) is highly recommended:
https://nzshipmarine.recollect.co.nz/nodes/view/1795?lsk=176bf13f9c01682bc2131a5d598debd8#idx8539
Aorangi required only five engineers and four men per watch as compared to 24 engineers and men in a coal-burning ship. She carried 23 engineers and 22 greasers and firemen, a saving of 60 men in engine room personnel.
A Sperry master gyro-compass of the latest type, steering and bearing repeaters, a Sperry continuous course recorder, and a Sperry gyro-pilot for automatic steering have been installed.
The automatic hydro-electric 'Sal' log, a combined speed indicator and distance recorder, for which the agents in this country are Messrs. Henry Hughes & Son, Ltd., of London, has been installed on board the Aorangi. This is the first log of the type to be fitted in a British-built ship, although some 200 have been supplied to the Japanese Navy.
Shipbuilder.
The operation of this most modern passenger vessel will be watched with great interest and her performance on one of the world's best test routes will give great impetus to the dieselization of the world's merchant fleet.
Pacific Marine Review.
![]() |
| Credit: Pacific Marine Review November 1925. |
![]() |
| Credit: Liverpool Journal of Commerce, 24 September 1925. |
![]() |
| Maclachlan gravity davits in operation. Aorangi and Orient's Orama were the first major liners fitted with these davits. Credit: Syren and Shipping. |
![]() |
| View of the freestanding mounting of the gravity davits. Credit: Syren and Shipping. |
![]() |
| Aorangi's gravity davits showing the deck space they created on the Boat Deck. Credit: Auckland Weekly News, Auckland Libraries Collection. |
Not a little charm is lent also by the neat way in which the ship’s boats have been stowed. The davits are of a new kind and represent the latest practice in boat launching equipment.
The Engineer.
In addition to her machinery, Aorangi was a pacesetter for being one of the first major liners (together with BI's Tairea, Takliwa and Talamba and Orient Line's Orama) to feature the new gravity style lifeboat davit devised by the Maclachlan Automatic Boat Davit Co., Glasgow. This materially increased the usable deck space on the boat deck while improving the means and method of lowering her otherwise traditionally made wood clinker 16 life boats, one motorboat and an emergency boat.
![]() |
| Credit: Syren and Shipping. |
The equipment of life-saving appliances embodies a number of noteworthy features, and the elaborate requirements of the Board of Trade are more than fulfilled in the new ship. There are in all 16 lifeboats, arranged eight on each side of the ship, of which 15 are 30 ft. long and one 28ft. long. One of the 30-ft. lifeboats is equipped as a motorboat, and has been supplied by Messrs. Hugh McLean & Sons, Ltd., of Govan, Glasgow. Each boat is controlled by a separate set of davits, and each has a separate launching station. The boat launching appliances, which are of a new type, have been supplied by the Maclachlan Automatic Boat-davit Co., Ltd., of Glasgow, and are capable of placing all the lifeboats in the water in a few minutes. There are 16 sets of Maclachlan davits, 14 of which operate large single lifeboats with a capacity for 86 persons each, one set operates a motorboat with a capacity for 50 persons, and the remaining set operates a 28-ft. emergency lifeboat with a capacity for 56 persons. The adoption of the Maclachlan apparatus in this instance affords a number of advantages, as will be seen from the photograph of the boat deck reproduced in Fig. 21. All boats are directly attached to davits, and are stowed at a height which gives 7 ft. headroom below right out to the ship's sides. Single wire-rope falls are used, thus ensuring rapid and reliable lowering of the lifeboats to the water, and as both falls are operated simultaneously the boat is lowered on an even electrically-driven boat winches are installed for lifting the boats back on board. One such winch is provided for each set of davits, so that there are 16 boat winches in all.
The Shipbuilder.
It is stated that the accommodation on the Aorangi is equal to that of an oil-fired geared turbine steamer some 30 ft. longer.
The Motor Ship.
![]() |
| Credit: Syren and Shipping. |
Rivalling Canadian Pacific's Empress of Canada and Empress of Australia as the most impressive and luxurious vessel yet seen in the Pacific upon her introduction, Aorangi was even more notable among those trading to the Antipodes at the time, although she merely improved on the standards that her running mate, Niagara, introduced to the route a dozen years previously. Like her, Aorangi was built for the unique climate variations experienced on a voyage from Far North to Southern Cross and as such combined elements of North Atlantic liner and tropical mailship that made Union liners intrinsically characterful. There was no question that with her introduction, New Zealand and Australia were no longer in the backwaters when it came to the qualities of the liners that linked them with the Empire and indeed, they could boast of one of the most technically innovative and aesthetic pleasing of all passenger liners of the era.
R.M.M.S. AORANGI
Rigging & General Arrangement Plans (incomplete)
credit: The Shipbuilder and Marine Engine Builder, January 1925
courtesy Bernard Simon
(For full-size scan, LEFT CLICK on image)
![]() |
| Rigging Plan. |
![]() |
| Bridges & House Top. |
![]() |
| Boat Deck. |
![]() |
| Promenade Deck. |
![]() |
| Shelter Deck. |
![]() |
| Upper Deck. |
![]() |
| Main Deck. |
![]() |
| Lower Deck. |
![]() |
| Hold Plan. |
R.M.M.S. AORANGI
Rigging & General Arrangement Plans
credit: The Engineer, 9 January 1925
courtesy Bob Fivehouse
(For full-size scan, LEFT CLICK on image)
![]() |
| Rigging Plan. |
![]() |
| House Tops. |
![]() |
| Boat Deck. |
![]() |
| Promenade Deck. |
![]() |
| Shelter Deck. |
![]() |
| Upper Deck. |
![]() |
| Main Deck. |
![]() |
| Lower Deck & Hold Deck. |
R.M.M.S. AORANGI
Deck Plan, c. 1938
credit: National Australian Maritime Museum
(For full-size scan, LEFT CLICK on image)
![]() |
| Deck A. (Boat Deck). |
![]() |
| Deck B. (Promenade Deck). |
![]() |
| Deck C. (Shelter Deck). |
![]() |
| Deck D. (Upper Deck). |
![]() |
| Deck E. (Main Deck). |
Aorangi was laid out along otherwise conventional lines for a British three-class liner although from the onset, her passenger numbers (380 First, 56 interchangeable, 284 Second and 224 Third) made her more spacious than her North Atlantic counterparts and if anything, this element was improved over the years as her capacity was reduced in successive refits. It was still the traditional Third Class forward, First Class amidships and Second Class aft layout and Aorangi was sensibly and rationally arranged inside, navigating her interiors aided by the embossing of deck names on the rubber decking at stair landings as well as introducing the passenger lift to Antipodean liners, two being fitted in the main First Class stairway. Traditional elements of Atlantic liners like two-storey central wells were found in her First Class lounge and dining saloon as well as a veranda café whose adjoining covered dancing deck space was a typical tropical liner feature.
The Boat Deck (A) had, in the forward house (37 ft. by 36 ft.), officers' accommodation, the hatch for no. 4 hold (worked by a pair of kingposts athwart the forward funnel), the First Class forward staircase, gymnasium and in the amidships house, the First Class Lounge Gallery, midships staircase and engineers' accommodation for 62 officers and men. Thanks to the novel gravity davits which carried the boats seven-feet high over the deck, the whole of the outside deck was made available for passenger open promenading and deck sports. Aft was more open deck space for Second Class extending right to the fantail with a separate house (31 ft. by 28 ft.) containing the hospital.
The Promenade Deck (Forecastle, A) The main house, measuring 242 ft. by 40 ft. wide) was surrounded by a wide covered promenade deck which was glazed forward, and contained the principal First Class public rooms and deluxe accommodation for 16 passengers. The forward First Class entrance and staircase and twin passenger lifts followed, then the main lounge amidships, smoking room and veranda cafe. The aft house, 75 ft. by 40 ft., contained the Second Class lounge, entrance, ladies sitting room and smoking room and covered promenade.
The Shelter Deck (C) had the forecastle house forward with deck crew accommodation and mess deck and had Third Class open deck space and in the foremast house (22 ft. x 42 ft.), Third Class smoking room, bar, lounge and barber shop. In the main house was First Class accommodation forward for 104 passengers, special staterooms amidships for 34 and aft of amidships cabins that were interchangable between First and Second Class for 56 passengers and finally, Second Class accommodation aft for 52 passengers. The First Class bureau and shop were situated inboard on this deck as was the well to the dining saloon between them. The deckhouse was surrounded by a covered promenade deck which like that of the deck above was glazed for 38 ft. forward.
The Upper Deck (D) was the uppermost hull deck. Forward was Third Class accommodation for 34 and its dining saloon, seating 144, and pantry. This was followed by a large block of First Class accommodation, arranged on the Bibby pattern and with eight inside single berth cabins, for 102 passengers. Approaching the forward First Class stairway was, the nursery and private dining room on the starboardside and chief steward's office on the port side, and foyer to the dining saloon. The galley for the First and Second Class dining saloon was amidships between them. That for Second Class again was styled in similar manner to that for First and had seats for 180. Aft were Second Class cabins for 120 passengers and then stewards accommodation right aft.
Main Deck (E) was devoted entirely to accommodation with that for Third Class (193 berths) forward and then a large block of First Class staterooms, again laid on the Bibby pattern, with 120 beds, which extended to amidships and the engine compartments. Aft of these was Second Class accommodation for 114 passengers and finally stewards' quarters.
![]() |
| Elegant to the end, this view of Aorangi's First Class Lounge dates to her post-war refit in 1948. Credit: wikipedia.org |
The architectural treatment of a liner involves very considerable difficulties. The passenger, in the case of the vessel in question is at sea for at least a fortnight, and naturally, interest in the surroundings becomes very critical; hence the styles adopted; and the detail of every part is designed to please the average and cultured traveller.
The problem of ship decoration is very difficult, in so far as the architect has to try and strike a compromise between recognised styles and various tastes. His efforts have to give pleasure to the many, instead of one particular client. Hence we believe that ship interior decoration should not be too individualistic. The best examples of the traditional periods form a good source of inspiration for the architect and generally the results prove more successful to the average travelling public.
We think the Aorangi exemplifies in its public rooms the successful application of these principles.
There is a consistent cohesion of architecture handling throughout this vessel and the general effect shows a fine discrimination in the handling of conventional forms. The luxurious standard of comfort set up by modern liners has been well maintained in the Aorangi
The British Builder.
Upon the design and furnishings of the first-class public rooms much thought has been bestowed so as to ensure the maximum of elegance--consistent with good taste and comfort. In carrying out this object there has been no parsimony, and the result is a happy combination of the stately dignity of historical period decoration with the comfort and hygienic practices of the present day, the standard set up recently by high-class liners for luxurious comfort in travelling on deep-sea voyages having been well maintained by a well-proportioned and skilfully-modelled architectural detail of the rooms which will satisfy the artistic sense of the most cultured of travellers. They form a noble suite of public apartments, all on the one floor and grouped together with through communication.
Syren & Shipping.
![]() |
| Credit: Marine Engineering. |
Progressive below decks, Aorangi was like all ships of her era, a traditionalist inside and her interiors were firmly in the "Stately Liner" character of the period and modelled along classic period styles with the design of the rubber decking underfoot imparting the only contemporary element. Like Niagara, the use of heavy draperies and dark furnishings was avoided given her semi tropical route and over elaborate decorations which would grow tiresome over a three-week-long ocean voyage largely absent.
The whole of interior decoration was designed by A. McInnes Gardner, F.I.A., of Glasgow and the fitting out done by Fairfields "who are certainly to be congratulated upon the excellent craftsmanship which has been displayed throughout." (Syren and Shipping).
Many of Britain's best interior outfitters and craftsmen were employed in Aorangi's interior fitting out with a natural inclination to local Glasgow firms. The decorative plaster ceilings were by Messrs. George Rome; wrought-iron work by A. W. Elwood, Esq., London; woodcarving by Mr. Kerr, Lochwinnoch; electric fittings and ironmongery for public rooms by Messrs. Best and Lloyd, Birmingham; furniture by Messrs. Wylie and Lochhead, also Messrs. John Reid and Son, both of Glasgow; Rubber floors by Messrs. James T. Goudie and Co., Glasgow; and ruboleum floors by Messrs. the Korkoid and Ruboleum Co., Glasgow. The entire upholstery furnishings for all the state-room accommodation was manufactured by Messrs. Rowan and Boden, Limited, Glasgow.
The floors of the second-class public rooms, passages, stairways, etc., and certain of the first-class passages are laid with in ruboleum tiling by the Korkoid and Ruboleum Tile Company, Glasgow; and the whole of the first and second-class cabins, totalling 400, and officers' accommodation within. ruboleum tiling by the same firm. The floors throughout are arranged in special designs and colours to accord with the furnishing and decoration. A unique feature is the introduction into the floor scheme of berth numbers at cabin doorways and in the main fore and aft corridors where joined by the side alleyways. The letters and numbers have been cut out in ruboleum in distinctive colours and inserted in their appropriate positions. This scheme will be a great convenience to passengers. The total laid area of ruboleum tiling amounts to over 4,000 sq. yds.
Syren and Shipping.
On board a ship of the size of the Aorangi, which carries such a large number of passengers and a big crew, and whose voyaging will largely be through tropical waters, the matter of ventilation is very important indeed. It is not only the comfort of those on board, but also their health, which is dependent upon the satisfactory solution of the fresh-air problem. No better firm could have been entrusted with the task than the Thermotank Company, of Castle Chambers, Glasgow, who have carried out the mechanical ventilation throughout the vessel, including the engine-room, by an installation of no fewer than 61 fans. In the design of the ship very careful consideration has, of course, been given to the desirability of securing as much natural ventilation as possible, and the able manner in which the Thermotank Company have supplemented this so that the whole of the public rooms, cabins, lavatories, etc., have their stale air eliminated and are supplied with large quantities of fresh, which can be ozonified when desired, is certainly one of the outstanding features of this vessel. Neither has comfortable warmth been overlooked, for a specially designed low-pressure steam-heating system is installed, which so far as state-rooms are concerned is under the control of the individual passenger, circulation being ensured by a vacuum pump on the exhaust, in addition to which electric heaters are also fitted in various parts of the ship.
Syren and Shipping.
In one of several "firsts" for an Antipodean liner, the First Class gymnasium was the only public room on the Boat Deck except for the upper lounge gallery and was described as, "light and airy… panelled in teak, fitted with a special rubber tiled floor."
![]() |
| Detail of principal First Class public rooms and deluxe cabins (red) on Promenade (B) Deck. |
![]() |
| First Class Promenade Deck. Credit: Australian National Maritime Museum. |
![]() |
| First Class Promenade Deck. Credit: Australian National Maritime Museum. |
![]() |
| Glass-enclosed forward Promenade Deck. Credit: Shipbuilding and Shipping Record. |
Full use was made of the 242-ft. long Promenade Deck with a expansive, wide and walk-around covered promenade that was glazed at the forward end and extending 32 ft. aft. Aft of the veranda the covered deck extended to both sides and providing for a dancing space as well as cinema shows.
![]() |
| First Class Music Room. Credit: Victoria Daily Times. |
![]() |
| First Class Music Room. Credit: Australian National Maritime Museum |
![]() |
| First Class Music Room. Credit: Australian National Maritime Museum |
![]() |
| First Class Music Room. Credit: Syren and Shipping. |
![]() |
| Centre section of First Class Music Room. Credit: The British Builder. |
The principal public rooms were traditionally arranged on Promenade Deck (Forecastle or B Deck) from forward to aft starting with the Music Room, measuring 21 ft. long and 42 ft. wide, with large windows on the side and at the fore end. This was "in Louis XVI style of a quiet phase, but maintaining a refined elegance. A fine mantelpiece of marble with gilt ormulu mounts, surmounted by a handsome gilded mirror, is one of the chief features of this room, while richly upholstered furniture of French walnut from good period models, elaborately brocaded silk curtains, a heavily carpeted floor, ornamental skylight, and a fine series of delicate French prints, complete the effect of a Louis XVI salon." (Syren and Shipping). The principal colour was trianon grey in varying shades enlivened by "gay French colour prints on the walls."
Adjoining the Music Room, separated by a passageway, was the Writing Room which was an inside apartment and decorated along the same lines as the Music Room. Just aft of this was a large Ladies Sitting Room.
![]() |
| Cabin de luxe. Credit: Pacific Marine Review. |
![]() |
| First Class cabin de luxe. Credit: Australian National Maritime Museum. |
![]() |
| First Class cabin de luxe. Credit: Australian National Maritime Museum. |
![]() |
| First Class cabin de luxe (Jacobean). Credit: Syren and Shipping. |
Outbound of the Writing Room and Ladies Sitting Room were eight cabins de luxe, four on either side of the forward funnel casing and each comprising a bedroom, sitting room and marbled bathroom, and each distinctly decorated in a different period style: Sheraton, Louis XVI, Queen Anne, Empire, Adams, Regency, Jacobean and Elizabethan, "the idea being to have a distinction and variety of choice for the passenger." (The British Builder). Indeed, the decorative scheme was actually denoted on her deck plans. These splendid apartments benefited, too, from the extra ceiling height enjoyed by the Promenade Deck public rooms.
![]() |
| First Class Lounge. Credit: Victoria Daily Times. |
![]() |
| First Class Lounge. Credit: Australian National Maritime Museum. |
![]() |
| First Class Lounge. Credit: wikipedia.org |
![]() |
| First Class Lounge. Credit: The British Builder. |
![]() |
| First Class Lounge. Credit: Syren and Shipping. |
The Georgian scheme of decoration has been architecturally and artistically carried out with a large amount of panelling and carefully designed detail, painted in varying shades of warm stone colour. An open staircase of a particularly impressive character ascends from the after end of the lounge to the gallery above, where recessed settees, wrought iron balustrading and a beautiful skylight add to its attractiveness.
Syren & Shipping.
The center piece of ship's social life and interior architecture was doubtless the magnificent First Class Lounge which was 64 ft. long and 43 ft. 6 ins. wide with its two-deck-high central core, topped by a beautiful skylight and upper gallery with wrought iron balustrading. It remains one of the most impressive of public spaces of any Antipodean liner; "One can hardly realise being on a ship at all when in this comfortable and pleasant apartment." (The British Builder). The sweeping staircase leading from the upper boat deck gallery had as its backdrop a large wall painting of Aorangi or Mount Cook on the half landing. The sides of the room had rubber-tiled decking and featured two bay windows on each side with seating alcoves at the sides and in the centre, a large parquet dance floor. The room was also fitted with a projector and serve as a cinema. "An open staircase, of a particularly impressive character, ascends from the after end of the lounge to the gallery above, where recessed settees, wrought-iron balustrading and a beautiful skylight add to its attractiveness. A fine oil painting [by Julius Ollsson] of the Aorangi or Mount Cook is incorporated in the panelling at the half landing of this staircase, while the furniture and furnishings of period style, together with its rubber tiled floor with polished parquet centre for dancing, choice rugs, and handsome curtainings and upholstery, add to its attractive appearance."
![]() |
| First Class Smoking Room. Credit: Victoria Daily Times |
![]() |
| First Class Smoking Room. Credit: National Australian Maritime Museum. |
![]() |
| First Class Smoking Room. Credit: New Zealand Museum. |
A different and earlier note is struck in the treatment of the 1st class smoke room, which is of Austrian oak (antique finish)…. the central portion of the room with fine boldly carved roof trusses. The Elizabethan treatment is always a satisfactory style for a smoke room, and has not yet lost its charm for the modern man. Some pieces of armour, halberds and swords decorate the roof part and keep on the air of the period adopted. The roof is glazed with fine leaded antique glass and the side windows have the same design with strong colour on heraldic motifs in each light. The floor is of rubber of pleasing colour and design.
The British Builder.
Incorporating the main amidships staircase amidships at the rear of the room, the lounge led aft to the Smoking Room. This measured 34 ft. by 25 ft. and was styled after the Jacobean period "with a central well skylight originally treated with boldly carved roof trusses and coloured heraldic shields. The roof skylight is glazed with characteristic leaded antique glass, as also are the windows, which have coloured heraldic shield "motifs" incorporated in each window. The stone fireplace, which gives a homelike air of comfort to the room, is placed in an inglenook at the fore end, while the distinctive oak furniture, which harmonises with the grey-toned oak finish of the wall panelling, the old English tile-pattern floor of rubber, the substantial chairs and tables modelled after good examples of the period, and the hanging pieces of armour, are all Jacobean in their suggestiveness." (Syren and Shipping).
![]() |
| First Class Verandah. Credit: Victoria Daily Times. |
![]() |
| First Class Verandah Cafe. Credit: Australian National Maritime Museum. |
![]() |
| First Class Verandah Cafe. Credit: Australian National Maritime Museum. |
| First Class veranda cafe and covered dance space. Credit: Honolulu Star Advertiser. |
![]() |
| First Class verandah cafe and covered dancing space. Credit: Syren and Shipping. |
The first-class verandah café is a delightfully restful retreat. It is open to the principal promenade deck, is decorated with treillage work on the walls and roof and provided with comfortable cane chairs, tables and other furnishings. It should without doubt prove very popular, especially when the Aorangi is proceeding. through the tropics.
Syren and Shipping.
The last of the First Class public rooms on Promenade Deck was the veranda café which was traditionally rendered in light treillage work and furnished in wicker. Adjoining the Smoking Room, it opened out onto the covered promenade which served, as needed, as an open air dancing space.
![]() |
| First Class Entrance. Credit: Pacific Marine Review. |
![]() |
| First Class Entrance. Credit: Australian National Maritime Museum |
The main First Class entrance was forward on Shelter Deck (D) with a spacious foyer off the main staircase and lifts and with the pursers bureau opposite and the open well to the dining saloon aft.
![]() |
| First Class Nursery. Credit: Pacific Marine Review. |
![]() |
| First Class Nursery. Credit: Syren and Shipping. |
The first of its kind on a Union steamer, the nursery featured a painted wall mural by Mr. Alan D. Mainds, assistant professor at Glasgow Museum of Art.
![]() |
| First Class private dining room. Credit: Pacific Marine Review. |
![]() |
| First Class private dining saloon. Credit: Australian National Maritime Museum. |
Adjoining the nursery was a small private dining saloon which could be used, as needed, for children, or private parties and beautifully panelled in mahogany.
![]() |
| First Class main staircase and lifts outside Dining Saloon. Credit: Australian National Maritime Museum. |
A spacious panelled and rubber-floored entrance hall for the reception of passengers immediately adjoins the main dining saloon and here is a fine staircase communicating with all decks and enclosed by an elegantly shaped walnut screen of clear bevelled glass, through which a view of the first-class saloon can be obtained." (Syren and Shipping).
![]() |
| First Class Dining Saloon. Credit: Victoria Daily Times. |
![]() |
| First Class Dining Saloon. Credit: The British Builder. |
![]() |
| First Class Dining Saloon. Credit: Australian National Maritime Museum. |
![]() |
| First Class Dining Saloon. Credit: Australian National Maritime Museum. |
The First Class dining saloon, measuring 65 ft. in length and extending the full width of the vessel, had seats for 213 persons. Decorated in Louis XVI style, painted in shades of Trianon grey dominated by a splendid needlework tapestry in the manner of Boucher in the entrance to the central well depicting the Muse of Epic Poetry. "The furniture is of French walnut. A fine sideboard and mirror at one end and a clear glazed walnut screen shaped to an ogee curve, are notable decorative features of this apartment." (The British Builder).
As built, Aorangi had accommodation for 947 passengers: 380 First, 56 interchangeable with Second, 284 Second and 227 Third Class and 328 crew distributed as follows:
Boat Deck62 crew (engineers and officers)Promenade Deck16 First Class6 crewShelter Deck34 First Class special104 First Class56 interchangeable52 Second ClassCrew 69Upper Deck102 First Class120 Second Class34 Third Class96 crewMain Deck123 First Class112 Second Class183 Third Class109 crew
The First Class accommodation, originally for a maximum of 436 (380 plus 56 in cabins interchangeable with Second), was perhaps the one controversial aspect of Aorangi and came in for some criticism being generally not any great improvement on that in Niagara, especially in regards to the lack of proper fixed washbasins and running hot and cold water as well as quite a large number of inside cabins which in pre-air conditioning days were neither common or popular on warm weather routes such as Aorangi plied.
Even so, contemporary accounts lauded that "The first-class staterooms are arranged mostly as single and two-berth cabins, no less than 11 per cent. of the first-class passengers being in single-berth and 76 per cent. in two-berth rooms, the few remaining being accommodated in three-berth cabins; while the convenience and comfort of family parties have been respected by the introduction of communicating doors." Altogether, there were 53 one berth cabins and 322 two-berth cabins (including eight cabins de luxe), 16 bedroom suites, and 36 three-berth cabins in First Class.
In all, there were 50 single berth cabins. In addition, all First Class cabins as well as those interchangeable with Second, had electric fans, steward call bells and telephones. In addition, the public facilities were "designed upon very generous and hygienic lines, with tiled rooms, porcelain baths and constant hot and cold-water services. A number of spray and needle baths have been introduced for the comfort of first and second-class passengers. The sanitary fittings have been supplied by Messrs. Doulton and Co., Ltd., of London and Paisley." (Syren and Shipping).
![]() |
| First Class outside cot cabin. Credit: Australian National Maritime Museum. |
![]() |
| First Class bibby cabin. Credit: Australian National Maritime Museum. |
![]() |
| First Class inside cot cabin. Credit: Australian National Maritime Museum. |
![]() |
| First Class special inside bedstead cabin. Credit: Australian National Maritime Museum. |
![]() |
| "D" (Upper) Deck forward First Class accommodation as built. |
![]() |
| "D" (Upper) Deck forward First Class accommodation post-1937 |
![]() |
| "E" (Main) Deck forward First Class accommodation as built. |
![]() |
| "E" (Main) Deck forward First Class accommodation post-1937. |
What had been average accommodation was wholly outclassed, in every class, by the superb Matson-Oceanic sisters Mariposa and Monterey in 1932-33. Despite the rigours of the Depression, some £70,000 was expended to completely rebuild Aorangi's First Class accommodation in starting in July 1935 through November and then in December 1936-February 1937. Running hot and cold water was laid on to all staterooms and almost all were completely rebuilt, halving the capacity and in many cases, doubling the size of the rooms.
![]() |
| Aorangi's rebuilt First Class accommodation from her 1935 refit. Credit: Auckland Weekly News, 18 December 1935, Auckland Libraries. |
![]() |
| First Class cabin 103 after 1937 refit. New Zealand Maritime Museum. |
![]() |
| First Class cabin 214 after 1937 refit. Credit: New Zealand Maritime Museum. |
![]() |
| First Class cabin 127 after 1937 refit. Credit: New Zealand Maritime Museum. |
By November 1935, all the First Class cabins on C deck were reconstructed and enlarged by the removal of dividing partitions between cabins, making two small cabins into one large one. Instead of 92 cabins, accommodating 182 passengers, were now only 56 cabins, accommodating 91 passengers. In addition to 23 two-berth and 10 one berth ordinary cabins, there were 12 special two-berth and two special one berth suites, each with its own bathroom. The de luxe cabins were completely redecorated in a subtle moderne style with burled Queensland wood veneers and contemporary furnishings and lighting.
Beginning in December 1936 through February 1937, 120 cabins on D and E Decks were also enlarged or the number of berths reduced in some. In all, there were 48 new cabins on D Deck and 38 on E Deck, all outside. When the work was completed, Aorangi had 75 First Class single-bed cabins and 21 one-bed and three-bed cabins de luxe. Her passenger figures by February 1937 were 248 First, 266 Cabin and 125 Third.
The second-class public rooms include a large dining saloon, a smoking-room, a general lounge and a separate ladies' room. They are commodious apartments and are tastefully panelled and decorated, and are equipped with lino-tiled floors and comfortable furniture. The sleeping rooms are mainly fitted with single or two berths, some with four berths being provided for family parties.
Syren and Shipping
With berths for 286 (which could be augmented by 56 interchangeable cabins with First), Second Class was in location (aft of that for First), accommodation and décor, typical for its period and while a distinct downgrade from First was decoratively harmonious and had a good range of public rooms and extensive deck space.
![]() |
| Second Class Lounge. Credit: Australian National Maritime Museum. |
![]() |
| Second Class Music Room. Credit: Australian National Maritime Museum. |
![]() |
| Second Class Smoking Room. Credit: Australian National Maritime Museum. |
Second Class had all of Boat Deck, aft of amidships, for their outside deck space. The main public rooms were in their own deckhouse (75 ft. by 40 ft.) aft on Promenade Deck, comprising a lounge, entrance, bar, smoking room (starboardside) and ladies sitting room (portside) and encircled by covered deck space some 100 ft. in length on either side. Decoratively, considerable efforts were made to emulate in style and quality the comparable spaces in First Class but in keeping with the considerable more constrained dimensions of the rooms. The result was altogether pleasing and Aorangi's Second Class was surely the finest yet seen in the South Pacific.
![]() |
| Second Class Entrance. Credit: Australian National Maritime Museum. |
The circulating areas of Second Class were especially attractive with an impressive curved main staircase from Promenade Deck to Shelter and Main Deck and the dining saloon.
![]() |
| Second Class Dining Saloon. Credit: Victoria Daily Times. |
![]() |
| Second Class Dining Saloon. Credit: Australian National Maritime Museum. |
Seating 180 at small individual tables, the Second Class dining saloon was aft of that for First, separated by the galley which served both. The armchairs and other decorative details were all but identical to the First Class saloon and there was a central well over the middle of the room.
Second Class accommodation was two- and four-berth laid out on the Bibby system with additional inside cabins.
Even in the third-class accommodation, greater privacy than hitherto has been obtained by the arrangement of a considerable number of two-berth cabins, no more than four persons being accommodated in any one room except in a few exceptional cases; while all open emigrant sleeping accommodation has been eliminated.
The third-class public rooms include a large dining saloon, a large smoking room and a lounge, all panelled in teak.
Shipbulder.
The third-class passengers have at their disposal a large dining saloon, smoking-room and lounge, while with a view to securing as much privacy as possible there is a considerable number of two-berthed rooms, and with a few exceptions none for more than four persons.
Syren and Shipping.
![]() |
| Detail of Third Class public rooms on Shelter (C) Deck forward. |
![]() |
| Detail of Third Class Dining Saloon and cabins forward on Upper (D) Deck |
Accommodating only 227 passengers, Third Class was traditionally situated forward on Shelter (C), Main (D) and Upper (E) Decks with open promenade in the Promenade (B) Deck forecastle. The small public rooms were self-contained in the foremast house and comprised a Smoking Room (portside) and Lounge (starboard), entrance and barber shop. These rooms were afforded maximum light and air through windows on three sides.
![]() |
| Third Class Ladies Room. Credit: Australian National Maritime Museum. |
The 144-seat (at the traditional long tables in swivel seats) Dining Saloon was forward on Upper (D) Deck with its own pantry and bar.
![]() |
| Third Class Dining Saloon. Credit: Australian National Maritime Museum. |
The cabins, whilst exceptionally plain to the point of austere, impressed mainly on account of many being two or four-berth with only with six-berth, and mostly outside. The public facilities were ample and convenient on both accommodation decks, something not found in Third Class on many contemporary Atlantic liners of the period.
![]() |
| Third Class two-berth cabin. Credit: Australian National Maritime Museum. |
![]() |
| R.M.M.S. Aorangi in Auckand Harbour, December 1948. Credit: shipsnostalgia threebs |
The scope of Aorangi's lengthy two-year (1946-48) post-war refitting in Sydney did not perhaps reflect in as many changes as the duration (caused by labour trouble and other issues) indicated and whilst her public rooms were largely unchanged in appearance or purpose or her basic machinery and layout, her accommodation was considerably reduced. Originally built for 947, refitted for 636 in 1935-37, she now carried 486: 212 First, 170 Cabin and 104 Third:
During the war, the Aorangi was manned mainly by an Indian, crew, which had necessitated some alteration to original crew's quarters, but apart from this, the need for providing up-to-date crew's quarters made necessary the reconstruction of the whole of the crew's accommodation.
In the passenger and crew's accommodation, therefore, 177 new cabins have been constructed for passengers and 140 for crew. In addition, 46 existing passenger cabins have been reconditioned and furniture supplied for all cabins.
The general arrangement of cabins as reconstructed, is materially as it was pre-war. The principal improvements effected, are the supplying of wash -basins with hot and cold running water throughout all First and Cabin Class accommodation.
The punkah louvre ventilation has been much improved and all cabins are assured of an adequate supply of fresh air at all times.
The First-class accommodation has eight two-berth cabins-deluxe on "B" Deck, tastefully furnished as in the past in various Period styles, with the exception of the pre-war Cabin- de luxe H. (Queen Anne), which is now B8. This latter cabin, whilst now of modern design, still retains the spacious comfort of prewar days. In addition, there are 12 two-berth cabins-de-luxe and three single-berth cabins-de-luxe on "C" Deck. The remainder of the accommodation comprises single, two and three-berth cabins on "C", "D" and "'E" Decks.
Cabin accommodation has, of necessity, been somewhat reduced and, where accommodation was available on "C" Deck prior to the war, it has now been necessary to make this available for the crew and Cabin Class accommodation, therefore, has been reduced to the pre-war accommodation on "D" and "E" Decks only.
A reduction has been necessary in Third-class accommodation on account of crew requirements and is confined to the Smoke Room on "C" Deck, Dining Saloon on "D" Deck, and passenger accommodation on "E" Deck.
The main galleys, First, Cabin and Third Class pantries were completely stripped and have been entirely refitted. This also applies to the ship's Laundry, where wartime use of the machinery made re-conditioning impossible.
Libraries are situated in all classes, and an up-to-date Barber Shop, with a barber and lady hairdresser in attendance, is situated on the starboard side of "C" Deck, between the First and Cabin Class, and is easily accessible to passengers travelling in both these classes.
The Ship's Shop is situated as in the past, amidships on "C" Deck in a most convenient position for passengers of all classes.
Situated on "D" Deck, starboard side, is the Children's Nursery, tastefully and suitably decorated and furnished for the children, with an adequate supply of toys for their use and enjoyment.
Generally speaking, however, the furnishings of cabins and public rooms in all classes are very similar to those of pre-war, but it is felt that the Aorangi with her reduced passenger carrying capacity, her spacious publie rooms and cabins, together with amenities offering, has much to offer the travelling public in the Pacific.
The Sun.
![]() |
| Aorangi: The Cloud Piercer. Credit:University of British Columbia, Wallace B. Chung and Madeline H. Chung Collection. |
![]() |
| Credit: Michael Treloar Antiquarian Booksellers. |
Aorangi's diesel machinery alone made her The Ship of the Year for 1925 and ensured her a place in the annals of marine engineering. Yet, her other qualities of décor, public rooms, seakeeping and amenities would prove more enduring and endearing to a generation of passengers. That she would prove indeed "the last word" in Red Route liners to the Antipodes was shaped by more events over a long and successful career but as the new year 1925 dawned, Aorangi was indeed the "it" ship in every respect and Union Steamship/Canadian Australasian had something to be very proud of indeed.
We hail this event as an auspicious one, not only as an aid in the extension of commercial intercourse between two sister dominions of the empire, but also as a means of further cementing the present ties of kinship and friendship which exist, and as an assurance of sympathetic cooperation in the future. We have watched with interest the progress of this vessel on its maiden voyage and recognize the importance to the commercial world of a successful outcome to this new departure in...engineering. The advent of your ship to our shores marks but another step in the supremacy, ever maintained, of British shipping over the Seven Seas.
Remarks by Mayor J.C. Pendray welcoming R.M.M.S. Aorangi on her maiden arrival at Victoria, B.C., 19 January 1925.
'She was then something out of the box,' Captain McPhail said. 'Putting diesel engines in a ship of her size was a great departure from engineering practice. Thousands flocked to the wharf to see her. They paid a bob a head to inspect her. The money went to charities, which profited by thousands of pounds.'
'There were balls and dinners on board. The celebrations lasted a week. She had arrived via Vancouver, full of cargo, including stacks of red Canadian salmon. Everything seemed set fair for a long and prosperous life for Aorangi.'
The Daily Telegraph, 13 June 1953.
If Britain was largely immune from the Roaring 'Twenties inspired and indulged by "boom times" in America and Canada, the prevailing prosperity of the era extended to the southern Dominions as well by mid decade. With the new Empress of Canada and now Aorangi, the Canadian half of The Red Route thrived as never before. Aorangi came into service when demand for accommodation and cargo space burgeoned and the efficiency of new tonnage not mention Auckland's new harbour improvements (the Prince's Wharf) completed the year previously, ensured that the Antipodes Route in no way wanted in comparison with the North Atlantic ferry.
In the great tradition of the British Merchant Navy and British shipbuilding, first Aorangi had to leave the country of her birth, and under normal circumstances like so many ships under the Red Duster, not expected to ever return, destined instead to ply her trade in the far flung reaches of the Empire, and undertake the longest voyage of her peacetime career in the process. Aorangi was bound "out West and down South" and put her newfangled diesels to the ultimate test on a 17,000-mile delivery voyage.
With her went the promise of a new era of maritime propulsion and with her ensuing success was born The Motor Ship Era. Few ships started with more expected of them than did R.M.M.S. Aorangi a century ago nor exceeded them so admirably.
1925
Yesterday, the Union Steamship Company's new motor vessel, the Aorangi, sailed from Southampton on her maiden voyage. As she is intended for the Company's Canadian-Australasian service, she may not appear in the Docks again, but those who were privileged to inspect the vessel will not soon forget her.
She stands out prominently, not only as the largest motor passenger liner yet placed in commission, but also as one of the most beautifully designed vessels, that have vet been berthed here. The spacious 50,000-ton liners that ply the Atlantic lend themselves to elaborate schemes of decoration, with handsome and lofty apartments, but the Aorangi, though not half the size of the leviathians of the deep, is in comparison as handsome as any liner afloat, and superior to many ships of her own tonnage. No wonder, then, that this vessel has attracted so much attention.
Among the large party of guests who were welcomed to the ship on Thursday, were many technical experts and heads of shipping firms, and they were unanimous in their praise of the beautiful ship.
Southampton Times and Hampshire Express, 3 January 1925.
What Capt. Crawford called a "brief but breezy trip" from Glasgow to Southampton was accomplished in a full gale, one of six that swept the British Isles in eleven days. Fewer ships had more expected them of them on their trials and delivery voyage and few were more tested than Aorangi during her first six weeks of a career that would endure for 28 years. When she arrived at Southampton on New Years Day, The Sun (Sydney) reported:
After a stormy passage from Glagsow, the Union Co.'s new 20,000-ton motor ship, Aorangi, purring like a motor car, was berthed at Southampton as easily as a ferry boat. Captain Crawford revealed to the special representative of The Sun that at lunch time on Wednesday the ship was sent full speed astern for an hour, covering thirteen knots. This was the severest test to which any liner could be subjected. Captain Crawford stood in the hospital which is over the propellers, and which showed so little vibration that a surgeon could have performed the most delicate operation.
A similar test would have shaken the rivets out of any other ship. Captain Crawford considers the Aorangi to be a superior sea boat to any of the twenty three of the Union Company's ships, he has commanded.
On New Years Day, Aorangi hosted 200 guests for an inspection followed by luncheon which was hosted by Mr. Charles Holdsworth and distinguished guests including Sir James Allen, High Commissioner for New Zealand.
The Union S.S. Co.'s motor ship Aorangi left Southampton, England, on Friday last, and after a voyage round the Pacific, will arrive in Sydney on March 3. Less than twenty years ago the internal combustion engine was a toy thing for use in pleasure launches only. To-day, it is driving ocean liners.
Daily Commercial News, 2 January 1925.
One of the first things that 1925 will underline on the Calendar is the voyage of the world's largest motor-built ship, the Aorangi.
For the passage to Sydney via Panama, the Pacific Coast of America, and the South Seas, this epoch-making vessel has a passenger list which has been so arranged as to be adequately representative.
Leicester Mercury, 3 January 1925.
When Aorangi sailed from Southampton on 2 January 1925 among her 466 passengers were Sir Hugh Dennison, Managing Director of the Sun group of newspapers, and Lady Dennison; and Sir Prince and Lady Prince-Smith; Sir Alexander M. Kennedy of Fairfields and Robert Traill of Fairfields; Robert and Hans Sulzer naval architect David Boyd who designed her; Sir James Mills, chairman of Union Steamship Co. and C.A. Scrattons, President of Lloyds Underwriters. In all some 50 shipping and engineering expects were aboard for the voyage to assess her performance.
In addition to Capt. R. Crawford, Aorangi's principal officers included Chief Officer R.M. Scott, Jr. Second Officer D. Rollo, Third Officer C.G. Eustace, Fourth Officer R. Blampied, Purser A.F. Neale, Chief Engineer R. Lockart, Chief Steward H.E. Read, Medical Officer Dr. C.G. Learoyd and Wireless Operator A. Dewsbury.
The new motor liner, Aorangi, on departing from Southampton, immediately encountered a heavy south-westerly, but behaved splendidly.
The Daily Mail, 4 January 1925.
Aorangi had 17,000 ocean miles ahead of her, but after departing Southampton on the afternoon of 2 January 1925 did not make it past Ryde, Isle of Wight, when another southwesterly gale swept up the Solent and it was so rough that she could not disembark her pilot and was forced to anchor for the night until the worst of the blow passed. She resumed passage in mid morning of the 3rd, now 17 hours late, and did so still in the face of strong southwesterlies.
On 5 January 1925 Aorangi was reported to be be "in the Atlantic, and is weathering well huge head seas. Her engines are running satisfactorily and she has traversed 400 nautical miles. The bursting of pipes resulted in the flooding of Sir Hugh Denison's cabin and slightly damaged the baggage. Eight stewards were engaged in mopping up the water, and the occupants had little sleep that night." (The Daily Mail, 6 January 1925). In all, she had made good progress in three days of frightful Winter North Atlantic gales and when the seas moderated, begin to make up her lost time.
KINGSTON (Jamaica), Wednesday. The Union Company's new 20,000 ton motor ship Aorangi, arrived here today. The first stage of the voyage from England has been an undoubted success. Despite a 17 hours' storm and a delay of three days by Atlantic gales, the Aorangi arrived on schedule time after having actually reduced speed. The best 24 hours' running was 428 knots.
The commander, Captain Crawford confirms the statement that the engines are a triumph. They averaged, unextended, over 17 knots an hour, although only 16 knots was intended. The engine room temperature in the tropics was 25 per cent. below that which is customary.
For the first week the passengers met with discomfort owing to the vessel's departure before the staff had been organised and owing to the shortage of stewards. Otherwise everything has gone well. Sir Hugh Denison is the sports president and Sir Samuel Hordern is running the tote on the day's run.
The Sun, 15 January 1925.
"Reporting all well, passengers happy and delighted, and officers and officials highly pleased with her performance," (Victoria Daily Times) Aorangi called at Kingston, Jamaica on 14 January 1925 and having impressively making up all the lost time, did so on schedule. "The ship and her 500 pasengers were given a warm welcome, hundreds of the Kingstonians being on the shore to see her, and to go on board and look over her fittings and arrangements," (Victoria Daily Times).
BALBOA, January 17. The Union S.S. Company's new 20,000-ton motor ship Aorangi reached Panama yesterday. She was met by American naval aeroplanes and escorted through the canal, the aerial honors being accorded because she is the biggest motor ship to enter these waters.
The passengers had a day's sight seeing at Panama.
The Sun, 19 January 1925.
Aorangi transited the Panama Canal on 16 January 1925, arriving at Cristobal on 6:24 a.m. (where six passengers landed), transiting the canal from 7:55 a.m. to 6:44 p.m. and clearing Colon for the open sea at 1:32 a.m. on the 17th.
Aorangi at noon, January 19, was 2722 miles from San Pedro, expecting to arrive there Saturday next. Commander and directors deeply appreciate Americans' compliments, particularly the graceful act of the naval airplanes flying around Aorangi when entering the Panama Canal and escorting the ship throughout. Also appreciate the honor of the people lining the banks of the canal. Received today complimentary message from a Dollar Line commander. Thank America and feel that the Aorangi will live up to all that your nation has already heard of her.
Telegram from Capt. Crawford to Los Angeles Chamber of Commerce, 19 January 1925.
A wire received at Union's San Francisco office on 20 January 1925 reported that Aorangi was making very good time and 2,300 miles from the port, clocking 428 miles in the latest 24-hour period on the 19th for an average speed of 17.83 knots. On the 20th, the new ship encountered one of the most severe Pacific coast storms in years, a full gale, but still logged 392 nautical miles. At noon on the 23rd, she reported clocking 404 miles for the 24 hours.
Seldom had a vessel's progress up from the Panama Canal received more attention from California newspapers than did Aorangi's and more than two weeks in anticipation of her arrivals in Los Angeles and San Francisco, her every movement and fulsome reports of her novel machinery and accommodation, etc., featured daily. Indeed, at a time when the Pacific was, with the exception of the Canadian Pacific liners, a bit lacking in express luxury liners, Aorangi was a revelation beyond just her machinery. Her welcome extended to Los Angeles waiving its normal quarantine and fumigation requirements for a new arrival after receiving permission from Washington as the ship carried no cargo. Arrangements were made well in advance for public inspection of the new ship at both Los Angeles and San Francisco.
The R.M.M.S. Aorangi, largest motorship in the world, and in every way the most import ship that has ever entered Los Angeles Harbor, astonished those who boarded her yesterday when she arrived from Glasgow on her maiden voyage. Her passenger list of 500 persons was likewise the most distinguished groups of travelers ever arriving at a port on the Pacific-- seventeen titled persons being aboard.
The Los Angeles Times, 25 January 1925.
![]() |
| Credit: Daily News, 25 January 1925. |
![]() |
| Aorangi alongside at her Wilmington pier, her new piant showing the effects of her very stormy passage up from the Panama Canal. Credit: eBay auction photo. |
When Aorangi docked at Wilmington, Port of Los Angeles, on 24 January 1925 few were disappointed and her arrival more than exceeded expectations. The News-Pilot observing: "Few liners, if any since the days of the famous Lusitania, have attracted such world wide attention as the new quadruple screw motor passenger and mail liner Aorangi… upon the arrival of the vessel at the outer harbor, where she was docked with grace and speed, representatives of the L.A. Chamber of Commerce awaited the passengers to take them on a motor tour of Los Angeles and vicinity. A dinner and reception for shipping men is also in order." Aorangi came alongside Berth 57 in the Outer Harbor and a caravan of motorcars awaited on the quayside to whisk her 425 passengers on a "tour of the Southland" while the ship's officials and officers hosted a luncheon for shipping men and reporters at noon and the vessel opened for public inspection from 2 to 4:00 p.m. Aorangi departed that evening and among those embarking for the trip north was the San Francisco Mayor Rolph.
Coming through the Golden Gate on Monday afternoon, she made a very brave sight and many little parties had selected points of vantage from which to view her entrance to San Francisco Bay.
The Province, 27 January 1925.
The Union Steamship Company's motor liner Aorangi has arrived at San Francisco on her maiden voyage to Australia, Threading her way at noon between American and Japanese warships anchored in the Golden Gate, she attracted the greatest attention.
Captain Crawford cannot say too much in praise of his new ship.
The reception committee of the Chamber of Commerce welcomed the 450 passengers at the only call at an American port. The passengers are delighted at the seaworthiness and steadiness of the vessel.
The Sun, 27 January 1925.
![]() |
| Aorangi at San Francisco Pier 32 showing the effects of her rough introduction to Pacific Ocean weather. Credit: Mariners' Museum. |
By the time Aorangi arrived at San Francisco on 26 January 1925, docking at Pier 32 at 4:00 p.m. (late owing to fog on the coast), her passenger list had dwindled to 375 but not the enthusiasm or press attention over her. The San Francisco Examiner reported that "Captain Robert Crawford, who brought the motorship out on her first trip, stated she came up to the expectations. Her average speed for the trip, according to the master, was above 17 knots. She made above 19 on her trials, and expects to average 18 knots when she takes up her regular Pacific run between Sydney, Australia, and Vancouver. Dancing, quoits, cricket and the cinema in the lounge served to while away the hours at sea for the passengers. A beauty contest, in which Captain Crawford was to the judge, ended in a general tie-up. The captain was unable to pick between the Misses Edith Bradwell, Gloria McFadyen, Heather Linsley and Dorothy King. Somewhat bewildered, the Alameda Times Star headlined Aorangi as "The World Largest Motor Steamer." Arriving lady passeners were presented with flowers as they came down the gangway.
Aorangi's visit to the Bay City was brief and wet although it did not deter hundreds queuing to board her for a public tour of inspection which alas had to be cut short owing to her late arrival. "Much surprise was expressed at the luxuriousness of the Aorangi's appointments and great interest was evinced by the woman visitors in the staterooms, a number of which are beautifully finished in the Sheraton and other periods. The engine room was an object of particular interest to numbers of men." (The Province, 27 January 1925). Aorangi was off for Victoria and Vancouver at 4:00 p.m. on the 27th.
WELCOME THE AORANGI
Fresh from the yards of British builders, the Aorangi will arrive in Vancouver, Friday, to commence her regular runs from this Port to Australia.
The Aorangi is the largest and most up-to-date passenger motorship afloat. It incorporates science's latest contributions to the economics of sea transportation.
It is a tangible factor in man's conquest of time and space, upon which the fate of the British Empire depends.
That this fine, efficient vessel should be placed upon this run is a compliment to the importance of this Port in the affairs of the world and the Empire. And the beginning of its run is a milestone, both in regard to Pacific relationships and in regard to scientific transportation.
Vancouver should give public recognition to the occasion, not only in honor pf the ship itself and what it represents, but also in honor of the growing importance of the Port Anything the citizens and organizations of Vancouver can do to celebrate the arrival of the Aorangi will directly reflect the greatness of their Port.
The Vancouver Sun, 28 January 1925.
Aorangi's maiden arrival on the British Columbia coast at Victoria and Vancouver were the most meaningful so far on her maiden voyage as being her introduction to two of her regular service ports. Canadian Australian's manager, J.C. Irons, joined the ship in San Francisco for the run up to B.C. and it was announced Aorangi would be opened for public inspection from 3-5:00 p.m. on the day of her arrival at Victoria on 31 January 1925 before continuing on to Vancouver.
Setting a new record of 27 days for the passage from Southampton, Aorangi passed the Strait of Juan de Fuca in late morning of 29 January 1925. William Head was reached in torrential rain but the weather cleared by the time she approached Victoria and she. She was alongside Pier 2 just after 3:00 p.m. "Government, civic and public officials and a large concourse of people greeted the new liner on her arrival at the ocean docks. The ship was thrown open for public inspection after she had been safely berthed alongside… Premier John Oliver and Mayor J. Carl Pendray were among those at the docks to extend an official welcome to Capt. Robert Crawford and his ship." (Victoria Daily Times). Bouquets were presented to Capt. Crawford and Lady Mills by Mrs. Pendray, wife of the chief magistrate. Aorangi remained at Victoria until the next morning when she sailed at dawn for Vancouver.
![]() |
| Classic photo of Aorangi sweeping past Brockton Point at the entrance to Vancouver Harbour on 30 January 1925. Credit: State Library of South Australia |
With every passenger liner in port roaring a Canadian welcome to Vancouver, the Australasian Royal Mail Line motorship Aorangi arrived at 11:30 a.m. today to enter the Vancouver-Sydney service. The harbor was dressed greatest magnificence for the reception., Clear sunshine, blue, white-tipped harbor, the green mountains rising to the dazzling gleam of the new fallen snow, filled the eye.
The great liner Empress of Asia, dressed gaily in flags in honor of the new sister of the Pacific fleets, led the brass-throated welcome blasted from the steam whistles. From Pier A to the Hastings Mills where the steamer Canadian Trooper was loading plebian lumber for Australia, the ocean giants blared their greetings.
Prospect Point gave the first welcome, signalling a congratulatory message as the ship approached that station.
At the Point were Port Superintendent K. J. Burns, Superintendent of Signals C. O. Julian and other officials. Chugging sturdily beside the great liner was the powerful little tugboat Radio, entering the picture in honor of her sister. The Radio came into the scene as the first motor tugboat built in British Columbia, so she ranged alongside the first motor passenger shin built for Vancouver service.
Hundreds of spectators crowded the pier and the wharves which command a view of the harbor to see the great new vessel as she made her maiden appearance here where in future will be a regular adjunct to the deep sea services out of the port. Long and massive, architecturally beautiful, with magnificent marine lines, the big vessel slid through the Narrows at a good fifteen knots and rounded toward Pier D with a long smooth curve.
The Province, 30 January 1925.
![]() |
| Credit: The Province, 30 January 1925. |
Aorangi swept up the coast to reach Vancouver midday on 30 January 1925 to receive the greatest of all welcomes so far in her notable maiden voyage. The local newspapers exceeded even themselves in their fulsome and enthusiastic coverage of what The Province called "The Pride of the Antipodes," arrival. Empress of Asia, dressed overall, outblasted all the other ships in the harbour with her whistle salutes of welcome as Aorangi approached Pier D at 11:30 a.m. Even thousands of seagulls, circling the ship, added their welcome.
![]() |
| Aorangi coming alongside Pier D at Vancouver, 30 January 1925. Credit: City of Vancouver Archives. |
![]() |
| A truly magnificent sight, Aorangi alongside Pier D, Vancouver, flying her Royal Mail pennant and radio call sign at her foretruck. Credit: Stuart Thomson photograph, City of Vancouver Archives. |
Crowds flocked to Prospect Point, where they gained magnificent view of the ship as she slowly and gracefully passed into the First Narrows, Enthusiastic cheer want up from the people lining the railing around the lofty signal station, passing tugs, launches and larger boats whistled greetings, and the passengers aboard the Aorangi responded with fluttering handkerchiefs.
In the harbor itself, as the ship shoved her nose around Brockton Point, where there were- also huge crows gathered, a great din broke out. The deep booming of the whistle of the Empress of Asia rose above the greetings from countless othercraft. Ferries, tugs and launches extended welcome in clamorous fashion, cheers went up from the thousands lining wharves, piers and every other point of vantage.
The Vancouver Sun, 30 January 1925.
The official welcoming delegation was headed by His Worship Mayor L.D. Taylor and all the members of the City Council, local shipping men headed by J.C. Irons, manager of Canadian-Australasian and other agents and representatives from Portland and Seattle. They were received by Capt. R. Crawford and Mrs. Charles Holdsworth on behalf of her husband who was ill.
Commander R. Crawford, her master, stated that the voyage out was very fine, and was a splendid test of all the seaworthy qualities of the big ship. She had storm and calm, head winds and groundswells, but she maintained a steady average of seventeen knots all the way from Southampton to Vancouver, and could have just as easily tacked another knot onto that. Her schedule from Vancouver to and from the Antipodes calls for an eighteen-knot average.
The Province, 30 January 1925.
Following a formal luncheon for her hosts, there was a public inspection of the vessel in the afternoon.
![]() |
| Aorangi, on her maiden call, and Empress of Asia at Vancouver. Credit: State Library of South Australia. |
Aorangi would not depart on the southern leg of her maiden voyage until 6 February 1925 and during her stay in port she would take on full bunkers and for the first time, load a full cargo.
Fifty of Aorangi's passengers, through booked to the Antipodes, entrained the next day for Banff for several days discovering winter sports, some of them never having seen snow.
That a new and glorious (and as it proved, final) chapter for The All Red Route was beginning was evidenced on 6 February 1925 with the simultaneous sailing from Vancouver of R.M.S. Empress of Asia for the Orient and R.M.M.S. Aorangi on her maiden voyage to the Antipodes. Aorangi went out with 621 passengers including 260 embarking there joining the loyalists who had been aboard since Southampton. Her first cargo south totalled 3,500 tons including 180 automobiles. Aorangi cleared Vancouver a few minutes after 11:00 a.m. and called at Victoria at 4:00 p.m. and Empress of Asia followed two hours later, the first time in some years that two big liners had left Vancouver so close together. "Much interest was shown on the waterfront as they drew in their lines and slowly backed out into the inlet to make for distant lands." (The Province).
For Aorangi, it was a tough introduction to the vagaries of Pacific Ocean weather when she sailed south right into a violent storm sweeping up from Southern California. So severe was the gale that she had to heave to from 1:30 a.m. to 10:00 a.m. on 8 February 1925 and after she was hit by a towering wave which crashed into her port side with such force as to serious damage her bridge. One man suffered a broken leg and a boy was cut by flying glass. Aorangi reported resuming passage but would need to undergo repairs on arrival at Honolulu.
The ship, in fact, had been pummeled for the best part of four days by gales reaching 90 mph which whipped up 70-ft.-high waves which smashed heavy glass windows and ports on the starboardside, flooded some accommodation and sent furniture flying. Many passengers had to sleep in the lounges when their cabins were inundated. Her days' runs reflected the storm's fury:
Sat. 7 February 220 naut. miles
Sun. 8 February 248 naut. miles
Mon. 9 February 343 naut. miles
Tues. 10 February 283 naut. miles
Weds. 11 February 404 naut. miles
On the 12th, it reported that Aorangi was "now enjoying splendid weather and calm seas. She was delayed but little by the gales, and will make the Hawaiian port practically on time."
The ship behaved well in the tempest during the afternoon. About o'clock she was struck by a mountainous sea. It came over the port side bridge weather screen and knocking in abreast of the bridge, a smashing the windows of the promenade deck. It damaged the rails of the upper bridge, sixty feet above the waterline. Volumes of water swept back over the ship and dashing through high ventilators, entered several cabins and caused a certain amount of damage to passengers' effects.
Two passengers were injured. Master Douglas Kirk, son of T. H. Kirk of Vancouver, was slightly cut by glass.
G. E. Tyrrell, an English passenger in the second cabin, was thrown down and suffered a fractured leg. The condition of both is satisfactory. The sea moderated in the early evening and the ship got along well.
The Province, 9 February 1925
![]() |
| Credit: Honolulu Star Bulletin, 13 February 1925. |
![]() |
| Credit: Honolulu Star-Bulletin. |
In the end, Aorangi reached Honolulu a day late on the afternoon of 13 February 1925, docking at Pier 7 at 3:00 p.m. "As the huge liner made way to the pier, whistles were blown by the ships in the harbor. Several thousand watched the ship enter the harbor and least 200 automobiles were parked on Piers 1 and 2. " (Star-Bulletin). She landed 71 passengers there.
The vessel which had weathered heavy seas for the best part of fours days of the seven-day voyage from Victoria, showed her scars on arrival as described in the Star-Advertiser of 14 February 1925:
The captain's bridge, 60 feet above the water line in calm weather, showed new timbers hastily placed there by ship's carpenters.
One of her passengers was in hospital with a broken leg, snapped in two places when the seas smashed a ventilator. A ten-year old boy's face was bandaged, his cheeks badly gashed with glass. An other passenger was knocked unconscious when a chair in the smoke room struck him. One-half inch of the shlp-barber's right index finger was cut off when it was caught in a door which was closed by a deck-reaching wave.
Buckets of water had to be baled out of the captain's quarters. All the officers' quarters were flooded.
The doors to the second-class dining saloon, on one of the lower decks, had to be caulked closed to keep out the water. Plate glass one inch thick, which covers what is called the shelter-rail of the forward promenade deck, directly under the topmost or boat deck, was stove in by the water. That deck is about fifty feet above the water-line. Furniture in all the public rooms of the vessel was thrown about as if without weight. Chairs actually left the floor and hurtled through the air.
The injured passengers were G. Tyrell leg broken in two places in hospital; Douglas Kirk, aged 10, face badly cut; Jack Peyton, knocked unconscious by a chair and badly bruised on legs and body, and the ship's barber.
'It was a rough voyage,' said Capt. Crawford, the Aorangi's skipper, well known and well liked in Honolulu, which he has been visiting for years as master of the Makura.
'We had a hard time, but she's an excellent sea boat and this trip is proving it. The wind started as southeaster Saturday night, veering by late Sunday and early Monday into a stiff sou'wester, which knocked up a pretty bad sea. She's getting her baptism, all right enough. But she's standing it magnificently.'
Aorangi cast off from Pier 7 at 10:00 p.m. on 13 February 1925, Antipodes-bound.
![]() |
| Aorangi at Suva, Fiji. Credit: Auckland Libraries Heritage Collections |
The passage south was enjoyed in fine weather and on 20 February 1925, Capt. Crawford sent a message that Aorangi had averaged 18 knots over the last 24 hours and "making splendid progress." She called at Suva on the following day, arriving at 1:00 p.m. and sailing at 6:30 p.m. for Auckland. There, she landed Malcolm Ramsay MacDonald, son of the late Prime Minister, who would continue on to Australia in March whilst Mrs. D.B. MacDonald and daughters remained aboard for Auckland.
On the morning before her arrival at Auckland, Aorangi's "coming home" was uniquely celebrated, "when at three o clock a third-class passenger, Mrs. Devries, the wife of a young motor mechanic, of Adelaide Road. Wellington, gave birth to a daughter. Both are well. The family has been investigating the prospects in Canada, and decided that New Zealand was better. The baby's second name is to be Aorangi, and the first Alma or Eva. A substantial amount was collected among the passengers, also clothes presented." (New Zealand Herald, 24 February 1925.)
So far, Aorangi's epic delivery/maiden voyage had more than its share of trials and triumphs and enthusiastic welcomes at each port, but none would be as important or anticipated as her arrival in what would always be home port, Auckland. That New Zealand, furthest flung of all the Dominions and then with a population of just 1.4 millions, would call as its own the world's most advanced and celebrated passenger liner was a source of tremendous pride in itself but form a real link with the outside world like no other. For weeks, the nation's newspapers had followed every day and every event surrounding her voyage "out" and finally, on 24 February 1925, Aorangi would arrive in the Waitematā to a welcome like none other.
Beyond symbolism, Aorangi was at once the largest passenger ship yet seen in New Zealand waters, even exceeding the massive Ceramic by a few hundred tons and larger in all dimensions than Niagara. Nothing quite like her had entered the Waitematā.
Steaming grandly around the North Head to-day, the grace and ease with which the great ship moved across the water did indeed have some suggestion of a cloud floating across an inverted sky, yet her great height above the surface had the significance of something mountainous. Against the background of the hills of the North Shore, with Rangitoto showing in the distance, she made a splendid picture. To see her gliding over the placid -waters of the harbour, steady as the pier to which she was to tie, one could hardly imagine her as storm-tossed and badly buffeted by giant waves in the Pacific. Yet such was the christening the Pacific gave her when she passed out of the Panama Canal into its waters, after having made the passage across the stormy Atlantic from Southampton without shipping a sea. However, she emerged from the ordeal without any serious damage, and had made a smooth trip from Vancouver.
The huge sides of the Aorangi made a fine broadside for the mountainous seas encountered earlier on the Pacific, and they flung themselves against this new intruder with the full fury of the greatest storm her captain had ever witnessed in those waters. Some towering seas broke aboard and actually invaded the cabins, but the damage done was infinitesimal and the Aorangi emerged triumphant, though she had to be hove to.
Auckland Star, 24 February 1925.
![]() |
| Aorangi coming into Waitematā Harbour. Credit: Radcliffe Collection,Auckland Maritime Museum. |
Aorangi first came into view shortly after noon, five miles east of Tiritiri and was met outside of the Rangitoto Beacon by the Harbour Board launch Waitemata carrying the pilot and a launch carrying members of the press, impressing all by sheer effort to climb up the companion ladder along her towering flank.
As she came in, Aorangi was dressed overall for the occasion as she had done at every of her ports en route but the stiff breezes that are a feature off Rangitoto on the entrance to Auckland proved too much for her gay bunting and that strung from the mainmast was carried away. Then, rounding North Head, the fore mast was, too, deprived of its signal flags and then those carried between the masts went.
The Auckland Star wonderfully described the remarkable reception afforded the new liner:
The Aorangi entered the harbour steaming at the rate of sixteen or seventeen knots, thus presenting a majestic picture as she swept into view of the city.
Public interest in the new arrival was amply demonstrated. On every vantage point there was a crowd of people, and hundreds stood on the ends of the King's, Central and Queen's wharves as the vessel reduced speed to dead slow and made in towards her berthing place. When she approached Queen's wharf all the ships in harbour, large and small, joined in a deafening cock-a-doodle doo, which was continued for several minutes. Attracted by this unaccustomed din in their lunch-hour, thousands of people came rushing along from Queen Street, and speedily crowded the wharf, the only vacant portion of which was where the Aorangi was about to berth. Ships lying on the western side of the Central wharf and on the eastern side of Queen's wharf were invaded by eager crowds, the people overrunning them and climbing to every accessible high position in. order to get a good view of the Aorangi.
![]() |
| Aorangi approaching Queen's Wharf on her maiden arrival at Auckland. Credit: Auckland Weekly News, Auckland Libraries collection. |
![]() |
| Aorangi approaching her wharf with the tug Te Awhina in attendance. Credit: Auckland Weekly News, Auckland Libraries collection. |
![]() |
| Aorangi alongside Queen's Wharf. Credit: Auckland Weekly News, Auckland Libraries collection. |
Amid all the hoopla and commotion, Aorangi was quickly and efficiently brought alongside with the tug Te Awhina of the Harbour Board to nose her into her berth at the eastern side of Queen's Wharf. Among those meeting her at the pier were Mr. G. P. Ritchie, director of the Union Company; Mr. R. McLennan, manager of the trans-Pacific branch of the company; Mr. P. A. Young, manager of the stores department; Captain Foster, marine superintendent; and Mr. J. H. C. Bond, Dominion superintendent of the New Zealand Shipping Company.
Capt. Crawford hosted a reception for invited guests, officials and dignitaries that afternoon between 3-5:00 p.m. and the ship open to public inspection, for a fee benefitting charities, from 7:30-10:00 p.m. Such was the crowd to see her that by 9:30 there were hundreds still waiting outside the gates which gave way and "the crowd temporarily took charge, but with the help of the wharf officials and police order was restored without further unpleasantness." (New Zealand Times). In all, some 3,000 managed to get aboard to explore her wonders.
![]() |
| Aorangi at Auckland, the day after her maiden arrival. Credit: Australian National Maritime Museum. |
Unique to Aorangi's maiden voyage was her special visit to Wellington. The capital was also the historic headquarters of Union Steamship Co. but normally not on the Canadian-Australasian route.
![]() |
| Aorangi arriving at Wellington. Credit: eBay photograph. |
Making a splendid spectacle, the great liner sailed from Auckland just after 8:30 p.m. On 26 February 1925 and she was already half a hour late, delayed by cargo working and more crowds of last minute visitors. The New Zealand Herald reported her departure:
At this time the tide was full, and the Aorangi towered above the wharf in an impressive fashion, her boat deck being about 50 ft. above the level of the wharf. Five decks showed above the wharf, as well as all her lines of lighted portholes. Her crowds of passengers lined three decks, and scores of gaily-coloured streamers added to the brightness of the- picture. The vessel backed out from the wharf amid cheering, calls of farewell, and much general shouting.
A most spectacular view of the Aorangi was obtained by those on the wharf as she was swinging round on to her course. As she turned slowly round, her bow pointed up the harbour, and she lay broadside to the wharf. Her brilliantly lighted decks and portholes outlined her stately shape, and a good portion of the crowd lingered to see her head down the harbour and gather speed for her trip down the North Island coast.
![]() |
| Aorangi at Queen's Wharf, Wellington, on her first and only visit to the port. Credit: State Library of New South Wales. |
Aorangi docked at Queen's Wharf on the morning of 27 February 1925, "a large crowd watching the operation." That afternoon, she was thronged with more visitors and one can imagine her crew was becoming a bit weary of it all. Their Excellencies Sir Charles and Lady Alice Fergusson visited the vessel on arrival and had morning tea with Capt. R. Crawford. New Zealand Prime Minister William Massey (1856-1925), then gravely ill with cancer, made one of his final public appearances when he went down to the quay with the object of inspecting Aorangi, his first appearance since 13 December 1924. But he was not able ascend the steep gangway and instead driven alongside the vessel to get an idea of her size. He issued a statement of "unqualified approval of the new motor ship and the enterprise of the Union Steam Ship Co." Indeed, the visit briefly revived the great man who would succumb to his illness on 10 May, the day before Aorangi arrived in New Zealand on her second northbound voyage. Aorangi departed for Sydney at noon on the 28th. Thirty-two of her through passengers who had landed at Auckland to visit Rotorua, entrained for Wellington to rejoin the vessel there. Her farewell, for the timebeing, to New Zealand, was well described by the New Zealand Times (2 March):
Almost to the minute the Aorangi’s hawsers were cast off, and at the appointed time she began to move away, to the ringing cheers, of the public on the. wharf and various waterfront officials and workers. It was a fine morning, and her bunting was flying in in the breeze. Once again she was a full ship, and was on the final stage of her maiden voyage, and her passengers will be in Sydney on Tuesday. As she pulled away the many streamers from the ship’s side gradually severed, and running into the stream she was greeted with a good-bye from almost every vessel in the harbour. She returned the compliment with several loud blasts from her own whistle, increased, speed, and in a few minutes disappeared from sight. There were also crowds at Seatoun, Lyall Bay and Island Bay to see her pass.
Other than some headwinds encountered soon after departure from Wellington, Aorangi was favoured with a docile Tasman on her maiden transit, logging 422 miles on her last 24 hours at sea. She arrived off Sydney Heads at a quarter to noon on 3 March 1925 and anchored off Quarantine at North Head at 12:40 p.m. Quickly cleared, Aorangi was alongside No. 2 Wharf, East Circular Quay just before 3:00 p.m. The new ship was given special permission to dock at Sydney's most prominent quay in appreciation of the huge interest shown by locals in her arrival. Normally, Canadian-Australasian liners used Darling Harbour and Aorangi would shift to their usual wharf there (no. 5) to load for her northbound trip.
![]() |
| Credit: Sydney Morning Herald. |
There was a hustle and a stir in harbor shipping as the huge vessel was sighted in the south-east about quarter to Customs officers, doctors, mail carriers, all hurried to their various tasks. It was the ship of a decade which was about to enter port.
At 12.40 the Aorangi was at anchor the quarantine grounds at North Head. Head winds, encountered just out from Wellington, had cleared away, to allow a pretty finish to the magnificent anchor voyage, dropped but nasty immediate southerly gusts beat up the sea, and before the liner got under way again she swung around twice from the pivot of her chain. With her Royal Mall flag, Union S.S. Co.'s house flag, Australian ensign, and the Union Jack at their correct stations, and pretty bunting fluttering in the stiff breeze from masthead to ratline, the majestic 600-foot craft moved slowly up the stream. Two tugs accompanied her, and smaller vessels of all kinds, from colliers down to cheeky racing motor boats, formed a moving guard of honor to the wharf, where assembled a huge crowd of passengers' friends and others interested. It was a thrilling end to a thrilling journey.
The Sun, 3 March 1925.
The fact that the arrival of the vessel in the Quay was eagerly awaited by a very large gathering was evidence of the interest which the coming of the vessel has aroused. Gaily beflagged, the new liner made picture in her berth.
The Sydney Morning Herald, 4 March 1925.
Amidst a fanfare of sirens from the terry boats, the Union Company's giant motor liner Aorangi, her decks lined with returning Australians, steamed up Sydney Harbor yesterday afternoon, fresh from the builders yards on the Clyde, and, assisted by three tugs, slipped easily into A conspicuous berth on the eastern side of Circular Quay. Hundreds of sightseers witnessed the arrival of the great ship, and the du scene at the wharf the steamer berthed was a most animated one.
The Daily Telegraph, 4 March 1925.
![]() |
| Credit: Sydney Morning Herald. |
The ship hosted a luncheon aboard on 6 March 1925 for a large and distinguished representative group of Australian business and civic leaders including Premier Sir George Fuller who in a toast to Capt. Crawford expressed appreciation and admiration for Union's enterprise in building Aorangi. On the 11th the Governor-General, attended by Commander Grant, R.N., paid a visit to the ship, received by Capt. Crawford and Mr. C.H. Hughes of Canadian-Australian. During the ship's turnaround she was completely and beautifully repainted from stem to stern, erasing the effects of her stormy outbound voyage.
![]() |
| Credit: The Daily Telegraph, 6 March 1925. |
Aorangi sailed from Sydney on the return portion of her maiden voyage at noon on 12 March 1925 from no. 5 Wharf, Darling Harbour, having shifted there following her arrival to work cargo. It was another splendid, stirring send-off and Aorangi already well-booked with 640 passengers and expected to be a full ship upon departure from Auckland. Among those aboard was the legendary Hawaiian swimmer, Duke Kahanamoku.
![]() |
| Credit: Daily Telegraph, 13 March 1925. |
With hundreds of brilliantly-hued streamers still clinging to her sides the Aorangi slid out through the Heads at 1.25 p.m. to-day and stood off to the south-east on her initial trip from Sydney to Vancouver.
As on her arrival regal recognition was given her. Big steamers tooted little ones shrilled and sirens shrieked cock a do's.
The labor trouble, which had threatened, did not mar her departure.
When the Aorangi moves about she makes records. She made the longest maiden trip of any liner in the world; she is the largest, fastest and highest powered motorship in the world. And she will carry the largest number of people to sail on a commercial vessel across the Pacific Ocean. It would not be exaggeration to say that a record crowd saw her off at the wharf.
Aboard the steamer are 640 passengers and a crew of 328. When the vessel leaves Auckland her passenger list will be increased to over 800, making the total number of souls on board about 1130.
Of the passengers sailing from Sydney 407 are for ports beyond Suva, and 230 for New Zealand and Suva. All cabins will be occupied in the first and second classes, and the third class will be almost full.
So great is the number of people who are travelling to the United States that the American Consulate in Sydney has, during the past few weeks, experienced the busiest time in its history.
The Sun, 12 March 1925.
![]() |
| An immaculate Aorangi in Darling Harbour, Sydney, during her maiden call after she had been completely repainted prior to her sailing for Vancouver. Credit: State Library of South Australia. |
Aorangi docked at Auckland on 16 March 1925. Among those still aboard from her delivery voyage was her designer, David Boyd, who told the Auckland Star:
'I am more than satisfied with the behaviour of the Aorangi, particularly through the storm from Vancouver to Honolulu on the maiden voyage The machinery worked excellently, and I still hold the opinion that single-acting engines of the type used on this boat will prove more reliable than the double-acting engines of high power, about which so much has lately been said in the English papers.'
Mr. Boyd, responding to the criticism among some of her initial passengers that Aorangi's cabins were too small, said: 'I've received a few criticisms of the arrangements and size of the cabins on the Aorangi,' remarked Mr. Boyd. 'Those criticisms, in my opinion, are far from justified. The space allotted each passenger greatly exceeds that allotted on the ships of other companies, charging as low a rate per mile as the fares on this route. The degree of comfort provided, irrespective of the fare, far exceeds that available in the large bulk of cabins in the present Atlantic greyhounds, including those designed by my firm. The few adverse remarks which were made during the ship's maiden voyage, were in my opinion, largely from tourists who were sampling their first sea voyage, or from 'liverish' passengers who had been penned up within the limits of what is, in effect, a small town, for a voyage oi no less than nine weeks.
'After visiting a considerable number of vessels trading in the Pacific, in addition to those of which I previously had knowledge,' concluded Mr. Boyd, 'I am convinced that the Aorangi will prove a very popular boat and will prove a desirable acquisition to her owners.' To which the Auckland Star added: (Regarding Mr. Boyd's reply to criticisms of the cabins, a number of passengers on this and the first voyage complained that, while the appointments were excellent, the cabins were far too small. One man described them as 'three where two should be.' This view was expressed by some travellers who have travelled considerably on many ships. Others, again, said that the cabins on the Aorangi were all that could be desired.)
The accommodation remained a sore issue among some, however. On 19 March 1925 a letter to the editor of the Auckland Star stated:
I have read with much interest, and much amazement, the interview, published in your issue of Monday, with the designer of the Aorangi. I have no fault to find with the first five paragraphs. The engines run sweetly and the ship rides beautifully, which only makes it all the more tragic that the planning of the passenger accommodation should be so amateurish. I have before me a plan of the accommodation for passengers on the Orama, and one of the Aorangi. The former shows a sound knowledge of planning, but I regret to say that the latter shows either ignorance of the first principles of planning, or else entire disregard for anything but getting in as many cabins as possible. Mr. Boyd refers to the space allotted each, passenger greatly exceeding that allotted on the ships of other companies. Then why botch it by arranging the fitting so badly. In a 'special' why not design 'special' fittings and disregard the 'stock' design of 40 years ago? The fittings are not modern and are placed very badly. Mr. Boyd refers to the few adverse remarks: he is rather lucky, as the designer, not to have heard more of them. My experience is that the adverse remarks as to the above mentioned items are 'unanimous,' not only by 'maiden voyager,' or 'liverish' passengers, but by seasoned world travellers. In conclusion, let me express my regret, with all respect to Mr. Boyd, that such a fine ship should be spoiled by the arrangement of the passenger accommodation. I am, etc.,
Planner.
Aorangi left Auckland at 3:50 p.m. 17 March 1925 with some 800 passengers, 320 of whom embarked there, and constituting a record for vessel sailing from the port. A crowd of 1,000 saw her off from Queen's Wharf. She went out with 2,230 tons of cargo including frozen meat, butter, skins, wool, onions, hide and timber.
![]() |
| Aorangi at Honolulu. Credit: clydeships.com |
Following her call at Suva on 20 March 1925, Aorangi arrived at Honolulu on the 27the, completing the voyage from Sydney a little less than a day ahead of schedule. Of her 807 passengers (the most yet brought in the port in a single vessel to date), 138 landed there as was 712 tons of cargo and 16 bags of mail. She came alongside Pier 8 at 4:00 p.m. but passengers delayed in landing due to a new regulation that prohibited customs officials from embarking until practique had been granted and the ship well inside the harbor when before they had embarked with the health officials.
Aorangi would prove a record breaker on her return maiden voyage, both for passengers carried and for speed, the latter achieved in spite of unfavourable weather en route. On 1 April 1925 she reported she would arrive off William Head at 4:00 p.m. the following afternoon and dock at Victoria that same evening which would be a good half day in advance of any previous passage from the Antipodes and doing the run from Auckland in just over 15 days. "She is now due to reach port once more on Thursday, and tremendous interest will be evinced in her performance. The Niagara and Makura were in the habit of making this port on Friday morning." (Times Colonist).
The Canadian-Australasian liner Aorangi, largest passenger motorship afloat, and newest of the transpacific vessels which call at this port, arrived here last night at 6 o'clock, setting herself a fast pace for future competition, establishing passenger carrying high totals and showing herself to be a satisfactory craft in every way, both from a seaman's and passenger's point of view. Commanded by Capt. Robert Crawford, who has guided giants of the Pacific for many years, and who claims that his present vessel is the finest that he has ever commanded, the Aorangi came alongside Pier 2 last evening as dusk was settling over the Straits. She was greeted by a crowd of persons anxious to meet friends among the many passengers aboard or curious to see the great motorship after first voyage to and from the Antipodes. The ship's decks were black with people. Manoeuvering easily the huge ship ship came gently alongside and was made fast at 5.40 p.m. Immediately the customs officials were aboard and it was announced, 'All clear.'
Times Colonist, 3 April 1925.
Aorangi did not disappoint and was alongside Pier 2, Victoria, by 5:40 p.m. on 2 April 1925 and landing an unusually larger number (150) of passengers there. In all, there were 762 aboard with 373 First, 242 Second and 147 Third and her holds had 1,857 tons for Canada, mostly wool, skins and frozen mutton. Despite "stiff seas," Aorangi average 16.5 knots on the passage north "and at no time was pressed. Incidentally she clipped twelve hours from her schedule." (Times Colonist).
Ending a remarkable three-month-long maiden voyage, Aorangi docked at Vancouver;s Pier A at 6:00 a.m. on 3 April 1925. She did the run from Sydney in 20 days at an average of 17 knots.
![]() |
| Aorangi at Vancouver's Pier A, possibly just before her first regular sailing to the Antipodes on 8 April 1925. Credit: British Columbia Archives, Maj. Harold Brown. |
On her first regular round voyage to Australiasia, Aorangi sailed from Vancouver's Pier A at noon on 8 April 1925. Arriving at Honolulu on the 15th, 51 of her 222 passengers landed there along with 38 bags of mails and but one-ton of her 4,227-ton cargo of salmon, pichards, tires and tubes, pianos, timber, automobiles and paper. Among aboard was Sir John Mills, chairman of Union S.S. Co. and the celebrated Austrian violinist Fritz Kreisler. After calling at Suva on the 23rd, Aorangi was reported by the New Zealand Herald as making "a smart passage across the Pacific" and was due at Auckland on the 26th, a day ahead of schedule. The big motorliner arrived at 3:30 p.m. and berthed at Queen's Wharf as described by the Auckland Star:
In spite of the threatening weather, many hundreds of people gathered on the ends of the four wharves butting on Quay Street yesterday afternoon to witness the arrival of the R.M.M.S. Aorangi, the event marking the completion of her first trip in the Canadian Australasian Royal Mail service, although it was her third visit to this port. The ship left Vancouver on April 8. She arrived at Victoria on the same date, and left for Honolulu, arriving on April 15, and leaving the same day for Suva, which port was reached eight days later. The Aorangi sailed on April 23 for Auckland arriving at 3.30 p.m. yesterday, bertning at the Queen's wharf. Fine weather was experienced throughout the voyage, which was without incident. Heavy rain commenced to fall just as the ship neared the wharf. A number of people at Takapuna, watched for the vessel, but, owing to the heavy mist, they did not see it until it was very close to Rangitoto.
Aorangi arrived 21 hours in advance of schedule and, according to the New Zealand Herald, "The crew who joined the ship when she refitted in Sydney have all had experience in passenger liners, and the passengers speak in pleased terms of the vessel. " She sailed for Sydney the same day at 10:00 p.m.
With her deck rails with prominent personalities the with Union motor-ship Aorangi steamed into the harbor yesterday. after a successful first-round voyage to Vancouver.
Captain Crawford gave an exceptionally pleasing report of the new liner's behavior. To use the captain's own words, 'She behaved like a real lady,' arriving in Sydney 24 hours ahead of schedule time.
The commodious passenger accommodation has appealed to tourists, and the ship is now the idol of trans Pacific travellers. She is booked up fully for her next passage.
Daily News, 2 May 1925.
Aorangi arrived at Darling Harbour at 8:00 a.m. on 1 May 1925.
![]() |
| Credit: The Sun, 7 May 1925. |
The new flagship sailed from no. 5 Wharf, Darling Harbour at on 7 May 1925 for Auckland with another near capacity list of 800 passengers. Hitherto spared, Aorangi got a good introduction to the Terrible Tasman on the crossing to Auckland, sailing in the teeth of a strong easterly gale all the way across. As early as the 9th, her arrival was put back to the 6:00 a.m. on the 11th instead of the afternoon of the 10th. She departed at 11:00 a.m. the following day with 753 passengers for Suva and points north. Making good speed, she averaged 16.4 knots on the passage to Suva and 17.03 to Honolulu. When Aorangi called at Honolulu on the 22nd, 71 of her 600 passengers landed there and embarked more for Victoria and Vancouver whence she departed the same evening.
With Aorangi's arrival at Victoria just after 4:00 p.m. on 28 May 1925, 13 hours ahead of time, she was credited with another record passage and took the Rithet pier only just vacated by the outbound Empress of Asia. Aorangi had averaged 17.04 knots during the voyage from Australia and 17.39 from Honolulu. "This is a new record for the Pacific ships in Canadian-Australasian service. We did not press the ship either. It would be easy to lower the record by an even greater extent than we have already done. We are thirteen hours ahead of schedule, and that, coupled with a long delay at Auckland means something for a ship," declared a proud Capt. Robert Crawford. Moreover, the Union S.S. flagship came in with 630 passengers aboard, the largest passenger list that year from Australasia on a single vessel. Of those, 110 landed at Victoria. Of cargo, there was 1,620 tons of it and 100 tons plus 1,000 bags of mail for the local port before she cleared for Vancouver where she arrived the following day; a full 26 hours ahead of schedule.
On her third voyage south, Aorangi cleared Pier A, Vancouver at noon on 3 June 1925 with 236 passengers and 2,000 tons of cargo and called at Victoria at 5:30 p.m. later that day. She was a full day ahead of schedule on arrival at Honolulu on the 9th at 2:30 p.m., where she landed 31. Laying over until the following morning, she departed for Suva and the south at 11:30 a.m. having added 58 passengers to the 205 aboard from B.C. Putting in a Suva on the 18th, Aorangi docked at Queen's Wharf, Auckland at 3:30 pm. On the 21st but not before the ship underwent some wireless direction tests as described by the Auckland Star:
Wireless direction tests were carried out in the Hauraki Gulf by the liner Aorangi yesterday. The vessel anchored shortly before midday between Tiritiri Island and Rangitoto Beacon, and did not come into port until after three o'clock. The tests were made with the help of the liner's launch, which is also fitted with wireless. The smaller boat proceeded away a distance of a mile and a half, and with that radius circled slowly round the anchored liner. Reciprocal bearings were then taken, the correct bearing of the launch on each point of the compass being noted by the officers on the Aorangi's bridge. Hearings of wireless signals from the launch were also taken, the angle between the correct bridge compass bearing and the wireless bearing showing the margin of error. The passengers and crew all underwent medical inspection while the tests were being carried out, with the result that on arrival in the harbour the Aorangi was berthed at the Queen's wharf without further delay.
Aorangi brought in a prodigious mail shipment for New Zealand with 1,700 bags of British and American mail of which 426 were for Auckland. She sailed for Sydney the evening of 22 June 1925, arriving there first thing on the 26th.
Once again, the Union Company's ship Aorangi has come into Sydney Harbor with all her cabins full. Since this new vessel has been in the Sydney-Vancouver service, she has been rushed, and even now people are booking for many voyages ahead.
At first, it was thought by officials of the Line in Sydney that the Niagara would still be preferred by the majority of travellers, but the Aorangi, the world's first passenger motor-ship, continues to keep in public favor. She invariably arrives at her destination ahead of time, which proves that the company made no mistake when it decided to build a passenger liner driven by Diesel engines.
Daily News, 27 June 1925.
Due to depart Sydney on at noon on 2 July 1925 from No. 5, Darling Harbour, Aorangi was delayed in sailing when an electrical generator broke down. After repairs, the ship was on her way by 7:00 p.m., clearing Sydney Heads at 8:50 p.m. Among those aboard were the New South Wales team of bowlers, 35 in all, bound for a Fiji and a series of matches there before returning in Niagara on the 25th. Aorangi docked at Auckland on the 6th. Among those landing was the Maharaja of Jahlwar, first of India's princes to visit New Zealand on an official tour.
![]() |
| Credit: Times-Colonist, 24 July 1925. |
Departing Auckland on 7 July 1925 at 5:00 p.m. Aorongi had a fine passage north and arrived at Honolulu at 6:00 a.m. on the 17th, landing 150 cabin passengers there, the largest yet brought from the Antipodes to the port in a single ship, and discharging 373 tons of cargo. Among those aboard was Madame Amelita Galli-Curci, "hailed by critics as the world's greatest coloratura soprano and one of the greatest singers of all time," who gave an evening performance at Waikiki Park that afternoon before Aorangi sailed for B.C. at 6:00 p.m. having embarked 180 passengers making for a total of 210 First, 130 Second and 100 Third Class aboard. Averaging 17 knots on the passage north, Aorangi reached Quarantine off Victoria at 4:45 p.m. on the 23rd but slightly delayed in berthing waiting for two smaller vessels to clear the wharf. It was a busy time at Victoria's Outer Docks with Empress of Asia dispatched for the Orient at 7:30 p.m. and Emma Alexander arriving from San Francisco. Aorangi arrived at Vancouver the foillowing morning.
On departing Vancouver on 29 July 1925, among those sailing were 28 members of the Imperial Press Conference going for the Imperial Conference in Melbourne and included such famous newsmen and press magnates as Maj. the Hon. John Jacob Astor, publisher of the London Times; Sir Percival Phillips, famous war correspondent representing the London Daily Mail; A. P. Herbert, of Punch, Lord Apsley, M.P, the Morning Post; Sir Roderick Jones of Reuters and many others.
For the first time in the history of the Port of Vancouver, a liner was stopped after leaving the Narrows to take on mail which for some reason had not been loaded at her pier. Signalman Cox at the Prospect Point Station received a request from the C-A office asking him to signal Aorangi to stop and lay off so as take on the consignment. Upon clearing Victoria at 10:00 p.m. on 29 July 1925, she had 434 passengers including 237 First Class. Among her cargo was a shipment of 117 crates of doors, totalling some 1,000, manufactured in Victoria and bound for New Zealand.
Aorangi's penchant for overrunning her timetable cheered the champions of The Diesel Engine, but it caused schedule upheavals and none too appreciated by those in Honolulu who had planned an elaborate array of tours and luncheon for the British Empire Press Union party, when Capt. Crawford wired that the ship would now reach Honolulu 18 hours earlier than scheduled, on 4 August 1925 at 1:00 p.m. and depart at noon rather than arrive early on the 5th and sail late the same day. Everything had to be reworked around the new timetable. Aorangi had 56 passengers and 85 tons to land there.
![]() |
| Credit: Honolulu Star Bulletin, 5 August 1925. |
The Aorangi docked. The Royal Hawaiian band played a thrilling welcome. Many friends of passengers on board cried out their alohas. Others came on board. There was a merry hustle here and there, and shortly thereafter a fleet of automobiles carried the visitors to the capitol building, where Governor Farrington spoke a few words of official welcome.
Honolulu Star-Advertiser, 5 August 1925.
![]() |
| Credit: Honolulu Star-Bulletin, 6 August 1925. |
Almost lost in all of the excitement and arrangements for the press party was the fact that in upsetting the original plans, Aorangi had chalked up a new speed record between Vancouver and Honolulu. Leaving Vancouver at noon on 29 July, she arrived off Honolulu at noon on 4 August to complete the passage in exactly six days, averaging 17 knots. Capt. Crawford told reporters that Aorangi still had enough "speed up her sleeve to have made the trip here in even faster time." Aorangi sailed at 3:00 p.m. on 5 August 1925 for Suva (13) and arrived late at Auckland on the 17th at 7:00 p.m., delayed by bad weather en route. The Empire Press party landed there and would, after a tour of New Zealand, proceed to Australia from Wellington in Ulimaroa on the 28th. Aorangi left for Sydney at 10:00 p.m. on the 17th and docked there on the 21st.
![]() |
| Credit: The Daily Telegraph, 28 August 1925. |
Departing Sydney for Vancouver on 27 August 1925, Aorangi numbered among her passengers the Queensland Rugby League team bound for Auckland for a series of matches in New Zealand. She went out amid an Australian seamen's strike that filled the harbour with idle ships but Aorangi's crew, then on New Zealand articles, were not affected by the walk-out. Calling at Auckland on 31 August-1 September and Suva on the 4th, when she arrived at Honolulu, Aorangi was again a day ahead of schedule, due on the 11th, instead, she came in at noon on the 10th and was alongside Pier 7 at 1:00 p.m., landing 66 passengers and 300 tons of cargo there and had 200 through passengers. Aorangi sailed at 11:00 a.m. the following morning after embarking another 70 passengers. Coming into Victoria on the 16th and docking at Pier 2 at 11:00 p.m., the liner had been delayed some eight hours by fog and weather conditions outside Cape Flattery, and continued to Vancouver, arriving the following morning.
![]() |
| Vancouver, 23 September 1925… The new prides of the All Red Route, R.M.M.S. Aorangi and R.M.S. Empress of Canada share Pier A. Credit: H.A. Price photograph, City of Vancouver Archives. |
Aorangi was off again for the Antipodes at noon on 23 September 1925 with 690 passengers and a good cargo that included a shipment of 14,000 Okanagan onions and 6,000 apples, all from British Columbia. Aorangi arrived at Honolulu at 5:00 p.m. on the 29th, capping at busy day for the port with the earlier arrivals of Shinyo Maru, Sonoma and Wilhelmina. The Union flagship had 99 passengers landing there, and after embarking others for the south, sailed the following day at noon. Enjoying fine weather on the run south, Aorangi reached Auckland at 2:00 p.m. on 11 October. A drenching rain, notable even by local standards, the following day, delayed her final cargo working and her sailing for Sydney scheduled for 10:00 a.m. on the 13th was put back to the 14th at 4:00 p.m.. Among those embarking for Sydney was the returning Queensland Rugby team. Aorangi reached Sydney on the 19th.
Her departure from Sydney put back a day owing to her late arrival, the northbound Aorangi cleared no. 5 wharf, Darling Harbour, at noon on 23 October 1925 for Vancouver. Arriving at Auckland at 6:00 p.m. on the 26th, she was off again at 6:30 p.m. the following evening. During her call, the Auckland Star reported on complaints of Aorangi and Niagara dumping rubbish whilst in Auckland Harbour:
The Medical Officer of Health at Auckland has complained to the Harbour Board on several occasions against the dumping of refuse in the harbour by the mail boats. At its meeting yesterday afternoon the board's solicitors wrote stating that they had interviewed the captain of the Aorangi and advised him that information would be laid against him and the company if the offence was repeated. The Niagara, too, had been similarly warned by letter. The Union Company wrote stating that it would do its best to see that the offence was not repeated. It pointed out that the two vessels were in port for only short periods, during which the refuse was retained in the chutes for disposal when they went out to sea. This accounted for the small amount of material delivered to the refuse collector. The chutes were closed while the vessels were in port and it was surmised that the refuse complained of came from the crew's quarters. The matter was referred to the board' in committee.
Aorangi made an unusual call after Suva off Hull Island in the South Pacific on 1 November 1925 as recounted by the Melbourne Herald:
Passengers on the Union Line's motor ship, Aorangi, which arrived in Honolulu last evening, came across a modern Robinson Crusoe in their journey over from Sydney. On Saturday, October 31, passengers were informed through the medium of the ship's bulletin that the Aorangi would call off Hull Island, a Pacific atoll and only 15 miles off her course, to give the white overseer of the island some mail which had accumulated for him at Suva, Fiji. Hull Island was sighted on the morning of November 1, a Sabbath day but not one of the ship's personnel or the passengers guessed that they were going to hear a pathetic tale of isolation and hardship from the white overseer's own lips.
The island looked perfect, dazzling like a jewel in the blue water as the Aorangi slowly approached it. Then from the island came a small outrigger canoe paddled by three natives, and containing a white man. The white was Schaefer, the overseer. The natives chattered with excitement while the white man waved his hat frantically in salutation, and then addressed the captain from the canoe. When Schaefer took his hat off it was apparent that he had suffered because his face was gaunt and haggard.
It was also difficult for him to speak clearly because he explained that some months ago he had lost the upper set of his false teeth.
Schaefer's address was as follows: "I have been trying to get off this island for a long time. I have no food at all apart from native fruit such as cocoanuts, pineapples, and papaias which my sick wife, two sick children, myself, and the natives have been existing on for some six months. We are right up against it as some of the natives are also sick."
Quickly a supply of meat, rice, end flour was lowered into the canoe while the mail was delivered, and the passengers voluntarily contributed some chocolate, cigarettes, and bottles of whiskey and brandy. Schaefer betrayed great emotion when receiving the presents. Two rockets were fired in honor of the fortitude and pluck of the occupants of the island, and the Aorangi went on her way again, the passengers of the ship giving the white man a great cheer in farewell. The captain of the Aorangi sent a wireless code message to the British authorities at Fiji advising them of the plight of Schafer and his family.
Lightly loaded for this trip, Aorangi had 135 through passengers aboard for B.C. and landed 50 on arrival at Honolulu on 5 November 1925 and 280 tons of cargo and embarked an equal number before sailing at noon the next day. She met with heavy seas raging off the British Columbia coast and was in fact the first passenger to make port in the last few days when she passed Cape Flattery at 10:00 a.m. on the 12th and was alongside her Victoria pier at 2:30 p.m. Once again the big motorliner was a day ahead of schedule. Indeed, the bad weather had robbed her of a certain new record for the passage. There, she landed 22 passengers, 50 tons of cargo and 400 bags of mail. She still had 3,000 bags left in her mailrooms, representing the first of heavy Christmas mails for Britain. Aorangi sailed for Vancouver late that afternoon and docked there the following morning.
Demonstrating the strengthening of trade between the Dominions that Aorangi and Niagara had as their purpose, Aorangi's final voyage of her first year in service saw her departing Vancouver at noon on 18 November 1925 with a record cargo, 19,000 cases in all, of British Columbia apples for New Zealand and Australia, part of 5,000 tons of cargo in her holds, as well some 700 passengers. She called at Victoria at 6:00 p.m.. As reminded by Victoria's Postmaster H.F. Bishop, she would also be the final outbound mailship for parcel post packages to be delivered to the Antipodes in time for Christmas with her arrivals at Auckland on 7 December and Sydney on the 12th.
Arriving at Honolulu on 25 November 1925 at daylight, Aorangi was alongside Pier 7 by 8:00 a.m., landing 76 passengers and 13 tons of cargo, having 625 through passengers aboard. Aorangi sailed for the South at 3:30 p.m. the following day, taking with her a good quantity of Christmas mail.
![]() |
| Aorangi at Auckland. Credit: New Zealand Herald photograph, Auckland Libraries. |
After calling at Suva on 4 December 1925, Aorangi came into Auckland at 6:50 p.m. on the 6th after a voyage "without incident" and fine weather experienced throughout. Aorangi had the largest number of passengers yet brought in from Vancouver, totalling 734 of whom 376 disembarked there. She landed 1,600 bags of mail from England and America with 440 bags for Auckland and indicative of the efficiency and important afforded "the mails," the Evening Star reported: "That no time was lost is shown by the fact that seventy bags were placed on the Limited express, which was delayed only eleven minutes, the train steaming out at 7.21 p.m., thirty-one minutes after the Aorangi anchored. The remaining 200 bags of southern letters were unloaded into a second launch, and dispatched by the ordinary express, which left for Wellington at 7.50 p.m., having been delayed only live minutes." Aorangi sailed for Sydney at 11:00 p.m. on the 7th where she docked at her Darling Harbor berth on the 11th.
![]() |
| Credit: The Daily Telegraph, 18 December 1925. |
Canada-bound, Aorangi cast off from no. 5 Wharf, Darling Harbour, on 17 December 1925, having aboard a record number of passenger: 913 in all. Of these, 715 were for New Zealand. She also took out 16,000 boxes of Australian butter, the first such shipment under the new Reciprocal Trade Treaty between Australia and Canada. Among those aboard was the British bowling team, 40 members and 17 wives accompanying them, bound for New Zealand, after playing 41 games during its stay in Australia, winning 22 and of the 17 matches played in New South Wales, it had won 13. Also aboard was famous cartoonist Pat Sullivan, creator of "Felix the Cat," and his wife; J.A. Dewar, head of the whisky company; and E.R. Bruce, director of the Canadian Pacific Railway, and wife.
Aorangi came into Auckland at 6:10 p.m. 20 December 1925 with a final consignment of Christmas mail, totalling 482 mail and 73 parcels for Auckland. The mail for the city and suburbs was delivered the following day. The arrival of the ship with its remarkable 715 passengers for New Zealand plus 400 American tourists arriving aboard Carinthia from New York, filled the city to overflowing. Aorangi departed for Vancouver at 11:00 a.m. on the 22nd.
Aorangi's passengers on her northbound voyage had Christmas to celebrate at sea, and thanks to the International Date Line, two days with which to revel in the festivities as described by the Sydney Morning Herald:
Rarely in these days is Christmas celebrated for two days, but this is the alluring prospect which passengers leaving Sydney by the Aorangi for Vancouver may anticipate. Although at first the length of these celebrations may suggest the traditional Mithrale feast or the ceremonies of the ancient Angil prior to the celebration of Christmas, the prolonged Christmas which the Aorangi will celebrate will be due to the vagary of the notation of time at the 180th longtitude, where days are found and days are lost as ships pass from West to East or from East to West.
Christmas Day as celebrated in Australia will find the Aorangi berthed at Suva, and, according to the proverbial hospitality of Fiji, Aorangi travellers may well sigh for a day of rest to follow. But on Christmas afternoo the Aorangi takes leave of Suva and heads east towards the 180th longitude. This will be passed late at night, but on rising the next morning passengers will find that the date is still Friday, December 25, and no doubt be another Christmas will be celebrated.
The situation is a difficult one too for the Union Steam Ship Company, which may be faced with paying the crew overtime rates for two Christmas days, though it is improbable if Christmas Day had been missed through the vessel's coming westward instead of going eastward that the payment of overtime for Christmas had been avoided. The R.M.S. Niagara, of the same line, which is coming from Vancouver to Sydney narrowly escapes missing Christmas altogether. This liner will celebrate Christmas two days' steam from Honolulu, and by only a few that days is does lost Christmas Day miss being the day in the night when the Niagara will cross the 180th longitude.
Aorangi's passengers and crew would ring in the New Year (as well as celebrate the ship's first anniversary in service) in Honolulu and the ship docked there in the morning of New Years Eve "after a smooth trip." She had 220 tons of cargo including 1,760 boxes of butter and 730 quarters of beef to discharge. The ship would layover for the night, not just to celebrate the New Year, but to accommodate the returning Washington State College football team which was playing a match there on New Years Day and would embark in time for her 7:00 p.m. departure on 1 January 1926. In all, she embarked another 55 passengers for the run north.
![]() |
| Credit: eBay auction photo. |
1926
The Aorangi started her maiden voyage a year ago today and since that time has covered 99,300 miles including seven round trips between Sydney and Vancouver. According to her master Capt. E. Crawford, the Aorangi has proved to be thoroughly satisfactory in every respect as a motorshiip. Her average speed has been a little more than 17 knots. Although the big liner has never really been pushed, it has been averaging a day ahead of its schedule for the past several months.
Honolulu Star-Advertiser, 1 January 1926.
Aorangi started her second year in fine style indeed, arriving off William Head, Victoria, at 3:00 p.m. on 7 January 1926, 12 hours early, and with two more records to her credit. She cut three hours off her existing record (set on her maiden northbound voyage) for the 7,536-mile run between Sydney and Victoria, averaging 17.1 knots, and also broke Niagara's record from Honolulu to Victoria, the elder fleetmate having reclaimed it after Aorangi set it on her maiden voyage. Aorangi clocked 17.2 knots for it against Niagara's 16.75 and logged 5 days 16 hours 55 mins for the passage.
Capt. Robert Crawford stated that ideal weather had been experienced on the trip and during the last two days run up the the sea had been as smooth as a mill pond. The skipper had the highest praise to offer his vessel, especially her engines. The giant vessel ran like a charm and at the end of a day her average only varied a few points, he stated. This month the Aorangi will celebrate her first anniversary, as it will be just a year since her arrival from Scotland, where she was built.
Times Colonist, 8 January 1926.
Aorangi came in with 180 passengers (103 First, 42 Second and 35 Third Class) of whom 23 landed at Victoria. Of her 1,500-ton cargo, including 12,000 cases of pineapple from Hawaii and 6,000 boxes of New Zealand butter, she landed 1,000 boxes of butter and 200 cases of pineapple plus 100 bags of green coffee. She arrived at Vancouver the evening of 8 January 1926.
On her first voyage of the New Year and her eighth since entering service, Aorangi left Vancouver at noon on 12 January 1926, clearing Victoria that evening at 9:00 p.m. Aboard were 245 through passengers for the Antipodes and 115 for Honolulu where she docked on the 20th in the morning and off again at 3:30 p.m. after embarking a record 123 passengers for the south. Pausing at Suva on the 28th, Aorangi reached Auckland on the morning of 1 February and was off for Sydney at 8:50 p.m. that evening. She was off Sydney Heads at 6:00 a.m. on the 5th and alongside no. 5 wharf, Darling Harbour three hours later. Among those disembarking was Commissioner David C. Lamb of the Salvation Army, and his wife.
![]() |
| Credit: Sydney Morning Herald, 6 February 1926. |
Aorangi sailed for Vancouver on at 4:00 p.m. 11 February 1926, going out with another large consignment of Australian butter, totalling some 15,000 boxes, for Canada. She docked at Auckland on the morning of the 15th and departed for Suva and the north at 12:40 p.m. the following day, arriving with the French Navy sloop Cassiopee. Among those embarking for Vancouver was Field-Marshall Viscount Allenby and Lady Allenby.
![]() |
| Credit: Honolulu Star-Bulletin, 26 February 1926. |
At dawn, the liner Aorangi moving up from the southern waters, was escorted to port by squadrons of airplanes, with the keen flying men of the American army and the American navy manning their flashing machines. From that first salutation, reminiscent of the stirring, tense days of war, until the Aorangi sails for Vancouver at 6 this after noon, the day in Honolulu is one of continued and enthusiastic welcome for Viscount and Lady Allenby.
Honolulu Star- Bulletin, 26 February 1926.
This time, Aorangi was late in arriving at Honolulu, originally scheduled to dock at 6:00 p.m. on 25 February 1926, she came in the following morning at 6:00 a.m. causing rescheduling of a reception to honour the Field-Marshall. This included a fly over salute by Army and Navy airplanes as she arrived off Diamond Head, a reception by Governor Farrington and luncheon. Aorangi sailed for Victoria at 5:00 p.m.and put in another excellent performance. Due to dock at Victoria mid morning on 5 March, she gained a half day on her schedule and came in at 12:45 a.m. on the 5th. Of passengers, she arrived with 491 (244 First, 129 Second and 118 Third) of whom 50 landed there, plus 1,300 tons of cargo for Vancouver and a large consignment of butter and pineapples for Victoria. Aorangi sailed for Vancouver at 8:00 a.m. the same day. Docking there at 1:00 p.m. to conclude that The Province called "a splendid voyage."
Aorangi sailed from Vancouver for the south again on 10 March 1926 with 300 passengers, calling at Victoria at 6-7:00 p.m. and went out with was reported to have a capacity cargo of paper, oats, salmon, automobiles and general freight. Reaching Honolulu on 16th, landing 50 passengers there and embarking another 70 for Suva and the Antipodes before sailing on the following afternoon. After calling at Suva on the 25th, Aorangi arrived at Auckland on the 28th and left for Sydney at 11:40 p.m. the following evening where she docked on 2 April.
To have departed Sydney on at 4:00 p.m., 8 April 1926, it was announced on the 6th that Aorangi instead would sail at 11:00 a.m. on the 9th owing to delayed cargo loading over the Easter holidays. She was also drydocked during her layover, leaving No. 5 Wharf, Darling Harbour on the 7th for Woolwich Dock on the 7th and returning to her berth on the 9th. Among those sailing that day were the Earl and Countess of Stradbroke, ex-Governor of Victoria. Aorangi arrived at Auckland at 4:50 p.m. on the 12th, sailing the following evening at 8:00 p.m. Among those embarking for the voyage north was New Zealand champion long-distance runner Randolph A. Rose of Masteron, 24, bound for meets in London via New York, and accompanied by his manager J.W. McHolm. One of five ships arriving that day, Aorangi docked at Honolulu in the wee hours of the 23rd with 93 passengers and 352 tons of cargo to land there. It was a busy and profitable voyage for the Union flagship which came in with 649 through passengers and embarked another 148 before she sailed at 5:30 p.m. for Victoria.
![]() |
| Credit: Victoria Daily Times, 29 April 1926. |
Aorangi may have sailed a day late from Sydney but her Sulzers and engineers were not deterred and had her smartly alongside Victoria's Outer Wharves at 12:45 p.m. on 29 April 1926, 18 hours ahead of her scheduled time. She clocked the passage from Honolulu to Victoria at 5 days 17 hours 50 mins (averaging 16.73 knots) but this was later corrected to 5 days 17 hours 50 mins at an average of 17.4 knots. "On her long voyage the largest motorship operating on the Pacific made wonderful time and on the run up from Honolulu to Victoria the liner established a record. Leaving Honolulu last Friday at 5.30 o'clock in the afternoon the vessel reached the William Head quarantine station at 11.20 o'clock this morning, thus covering the long trip in five days seventeen hours and fifty minutes. Her best speed on the trip from Honolulu to Victoria was seventeen and a half knots. Her best speed for twenty hours during the whole voyage was 17.81 knots." (Victoria Daily Times, 29 April 1926). An elated and proud Capt. Crawford reported "wonderful weather, except for a little fog experienced just before the motorship arrived off Cape Flattery."
The passenger figures were as impressive as her performance, Aorangi coming in with 882 aboard: 415 First, 345 Second and 122 Third Class of whom about 80 landed at Victoria. Of her 660 tons of cargo, 21 tons were discharged there. She docked at Vancouver the evening of 29 April 1926. At the end of this, her ninth voyage, Aorangi had logged 146,400 miles.
![]() |
| Credit: Times Colonist, 5 May 1926. |
Aorangi's principal function as a link in The All Red Route and as trans-Dominion Mail Ship was reminded when it was announced on 5 May 1926 that owing to the late arrival of mails from the East Coast, her departure for the Antipodes, scheduled for that day, would be postponed until the following day from Vancouver, departing at 7:00 p.m. and from Victoria the following morning.
![]() |
| Credit: Honolulu Star-Bulletin, 13 May 1926. |
![]() |
| Aorangi at Pier 7, Honolulu, May 1926. Credit: ebay auction photo. |
Among those aboard was Percy Grainger, Australian pianist and composer. Aorangi had a rough passage south and although due to reach Honolulu on 12 May 1926, she did not come in until the next day, arriving at daylight and departing at 3:00 p.m. She had 170 through passengers aboard and 35 landing at Honolulu. Her late arrival caused rescheduling of a concert to be given by Mr. Grainger at the Hawaii theater by one day. After stopping at Suva on the 21st, Auckland was reached on the 23rd, coming alongside Prince's Wharf at 11:15 a.m.. Aorangi left for Sydney at 11:40 p.m. the following evening where she docked on the 28th. Later that day whilst painting ship, Robert McKenzie, 38, slipped and fell into the water off no. 5 Wharf, Darling Harbour. His mate, Alfred Jackson, dived into the water and held him up until they were both pulled out.
The passenger skippers of the Union Line are now Captain Crawford of the Aorangi, known sometimes as 'Stormy Bob' on account of his successful encounters with gales; Captain Showman in the Niagara; Captain Aldwell in the Tahiti, and Captain Mawson in the Makura: a very worthy galaxy of nautical talent, and every one a New Zealander, as are most of the Union Company's commanders, Is fact, the ships and men who have come out of the Dominion have sometimes provoked comment regarding their worthiness.
The Evening News, 5 June 1926.
Aorangi and her passengers left the chill of a Sydney winter, farewelling her Darling Harbour wharf on 3 June 1926. Arriving at Auckland at 6:10 a.m. on the 7th, she continued northbound at 11:00 a.m. the following morning. A family party of gipsies,19 men, women and children, who arrived in Third Class, were refused entry into New Zealand and deported back to Australia in Marama. With the bit in her teeth, Aorangi made a fast run north and on the 15th wired that she would arrive at Honolulu on the afternoon of the 17th instead of the morning of the 18th. She had 444 through passengers and 129 for Honolulu as well as 200 tons of cargo for the port. Aorangi sailed for Victoria at noon the following day after embarking 124 First, 81 Second and 20 Third Class at the port, including many local school teachers on vacation.
![]() |
| Credit: Times Colonist, 24 June 1926. |
"Maintaining her record for schedule-breaking upon casting off from the Antipodes," (The Province), Capt. Crawford wired that she would arrive about 24 hours ahead of schedule, reaching William Head, Victoria, at 9:00 a.m. on 25 June 1926. However, even averaging 17.25 knots, he was frustrated at the last minute by heavy reverse currents the night before approaching the B.C. Coast, arriving off William Head at 9:15 a.m. instead of 8:00 a.m. which would have given her a new record. Alongside at 11:00 a.m., Aorangi brought in a good list of 660 passengers (286 First, 218 Second and 156 Third Class) but a light 1,248-ton cargo and 236 bags of mail. Aorangi left Victoria at 1:00 p.m. for Vancouver where she docked at 6:30 p.m. This gave her a new record, two hours off the old mark, from Sydney to Vancouver.
![]() |
| Credit: Honolulu Star-Advertiser, 14 August 1926. |
When Aorangi (commanded by A.C. Showman in relief of the honeymooning Capt. Crawford) started voyage 10 from Vancouver at noon on 30 June 1926 she went out with 356 passengers and a 5,000-ton cargo of automobiles, salmon, pianos, paper, box shooks and general merchandise. She left Victoria late that evening and keeping to form, outran her timetable by almost a day to reach Honolulu on Tuesday, the 6th, afternoon instead of Wednesday. Landing 93 passengers and nine tons of cargo there and after embarking 80 passengers, sailed south at noon on the 7th. Suva was reached on the 15th and Auckland at 1:55 p.m. the afternoon of the 17th.
![]() |
| Credit: The Sun, 23 July 1926. |
Aorangi left Auckland for Sydney on at 3:50 p.m. on 19 July 1926, with the Indian Army field hockey team as new embarks, bound for matches in Australia before returning to India. Aorangi reached Sydney Heads at 6:00 p.m. on the 22nd, too late for practique, anchoring for the night in Watson's Bay and coming alongside at no. 5, Darlling Harbour the following morning. On the 26th she was shifted to Woolwich dry dock for hull cleaning and returned the following day to complete loading for her northbound voyage.
Her departure marked by "Gaiety and good humor," (The Evening News), Aorangi sailed from Sydney on the afternoon of 29 July 1926 for Vancouver. Reaching Auckland early on 2 August and numbered among her embarking passengers the following day, New Zealand's 26-strong rugby team, bound for a tour of England, who were afforded "A rousing farewell to the New Zealand League team, which left by the Aorangi to-day, was given by well wishers and friends, at the ship's side. The crowd numbered some couple of thousand." (Evening Post, 3 August 1926). Aorangi went out with a heavy cargo of Australian and New Zealand foodstuffs including 444 carcasses of mutton, 948 quarters of beef and 1,060 boxes of butter for discharge at Honolulu where she arrived the morning of the 13th with 100 passengers for the port and 280 through fares. Making a fast run north, Aorangi docked at Pier 2, Victoria, at 4:30 p.m. on the 19th and the following day at Vancouver.
Delegates to the Empire Parliamentary Association and other passengers leaving at noon Wednesday on the M.S. Aorangi for Australia and New Zealand, attracted hundreds to the viaduct and the wharf, and the departure of the motorship for the Antipodes was a scene of considerable interest.
The Vancouver Sun, 26 August 1926.
British Columbia onions and British parliamentarians figured in Aorangi's next voyage south from Vancouver and Victoria on 25 August 1926. Again commanded by Capt. A.C. Showman, she went out with the first shipment of 150 tons (equal to ten carloads) of onions of the autumn crop for the Antipodes in her holds. Figuring in the overall 4,000 tons of cargo were new taxicabs for Sydney, pianos, machinery and canned salmon. The eminent group of British politicians (25 from Great Britain, four from the Irish Free State, one from Canada and two from Newfoundland), was headed by the Marquis of Salisbury, leader of the Conservatives in the House of Lords, and were bound for the British Empire Parliamentary Conference in Australia. They brought with them a duplicate of the speaker's chair presented to the House of Commons in Ottawa, made of oak from H.M.S. Victory, to give to the Australian Parliament in Canberra. In all, had 450 through passengers for the Antipodes and 135 for Honolulu where she arrived first thing on 1 September. After embarking 97 passengers there, Aorongi sailed at 2:00 p.m.
![]() |
| Imperial Parliamentary Delegation aboard Aorangi at Sydney, September 1926. Credit: eBay auction photo. |
Aorangi docked at Auckland at 7:00 p.m. on 11 September 1926. There, her British parliamentarians disembarked and travelled by train to Rotorua for a quick visit, returning to Auckland in time to sail in Aorangi onwards to Sydney on the 13th where she arrived at 6:45 a.m. on the 16th.
With Capt. R. Crawford back on the bridge, Aorangi cast off from no. 5 Darling Harbour at 4:00 p.m. on 23 September 1926, reaching Auckland on the 27th and off again northbound at 11:15 a.m. on the 28th. Her layover there was newsworthy when it was reported that whilst 30 miles from the port, one of Aorangi's wireless officers had made contact with Estevan, British Columbia, some 6,500 miles distance. Local papers also talked of a continued "foreign invasion" of Auckland, citing 27 "Yugo-Slavs" and seven Chinese who arrived in the city aboard Aorangi.
![]() |
| Credit: Honolulu Star-Bulletin, 8 October 1926. |
The C-A flagship headed north with a light list of 170 through passengers for B.C. ports and 38 for Honolulu where she arrived on 7 October 1926 at 4:00 p.m. Among those aboard, the great Russian opera singer Feodor Chaliapin, gave a concert the following day at the Princess Theater before Aorangi sailed for Canada at 2:00 p.m.
![]() |
| Credit: Times Colonist, 14 October 1926. |
![]() |
| Credit: The Province, 17 October 1926. |
Aorangi once again pipped her scheduled arrival time on the B.C. Coast by nearly 24 hours, arriving at the William Head quarantine station off Victoria at 7:30 a.m. on the 14th rather than the expected following morning, completing the passage up from Honolulu in 5 days 19 hours 30 mins. At 17.5 knots. Less impressive was her passenger list, the smallest Aorangi had yet brought north with only 189 aboard (83 First, 51 Second and 65 Third Class) and but 527 tons of cargo including 400 cases of canned pineapple for Victoria and a large consignment of rabbit skins for Vancouver where she docked late that same day.
The celebrities aboard Aorangi's next voyage south were doubtless the Australian cricket team en route home after their British tour. The day before they sailed, their arrival at Vancouver's Canadian Pacific depot was greeted by Mayor L.D. Taylor and members of the City Council. They were among the 778 passengers sailing on 21 October 1926 in Aorangi which also went out with more than 6,000 tons of cargo made up of pianos, automobiles, taxi cabs, salmon, apples, onions and live turtles.
Aorangi came into Honolulu on the morning of 27 October 1926 where she landed 78 of her passengers and embarked another 45 before sailing south at 4:00 p.m. the same day. Auckland was reached at 3:00 p.m. on 8 November where she was alongside Prince's wharf by 4:00. She resumed her voyage at 1:25 p.m. the following day. Aorangi's arrival in Sydney, or rather that of the cricket team, was eagerly anticipated and she arrived off the Heads at 5:00 p.m. on the 12th and alongside no. 1 wharf Darling Harbour just after 7:00 p.m..
Long before the Aorangi berthed at Darling Harbour last night, a great crowd had gathered on the wharf to welcome home the Australian cricketers. Although the vessel had not berthed at scheduled time, the welcoming tooting of the ferry boats' whistles denoted that the liner was approaching. Fifteen minutes later the vessel came into sight, and finally berthed amid a storm of cheering and coo-ees. It was a warm welcome.
The Sydney Morning Herald, 13 November 1926.
"Although the liner did not berth until after 7 p.m. thousands of people crowded on the wharf and gave the returning cricketers a rousing reception. All the team looked bronzed and very fit, though the captain, H.L. Collins, appeared to be thinner than when he left Australia."
The Sun, 13 November 1926.
![]() |
| Credit: New Zealand Herald, 23 November 1926 |
With rather less public attention, Aorangi took leave of Sydney on 19 November 1926 for Vancouver. Her passenger list had a musical quality numbering in it, Percy Grainger, returning from his Australian tour, and the 62-piece Australian Commonwealth Band. She arrived at Auckland at 8:40 p.m. on the 22nd after a capital passage and recording her best overall speed:
An exceptionally fast trip of three days, one hour twenty minutes, from Sydney, was made by the Union Company's motor liner Aorangi, which arrived at Auckland last evening, en route to Vancouver. The trip, which was made at an average speed of 17.4 knots, is the motorship's best performance for the run since she entered the mail service nearly two years ago. Departure was taken from Sydney on Friday afternoon, and fine and calm weather experienced across the Tasman. The Aorangi, which has been running continuously without an overhaul since February of last year, is to be withdrawn from the Vancouver service on arrival at Sydney on January 8, in order to have her engines overhauled. The record passage between Australia and New Zealand was made several years ago by the R.M.S. Niagara, which covered the distance in three days twenty-three minutes.
Auckland Star, 23 November 1926.
A fast trip of three days, one hour and twenty minutes was made by the Royal Mail liner Aorangi, which reached Auckland from Sydney last evening. The speed on the journey averaged 17.4 knots. The weather was fine and calm. On her recent trip from Auckland to Sydney the Aorangi took three days and ten hours, at an average speed of 16.8 knots. On that occasion she was steaming against a fresh westerly wind and moderate headwind.
New Zealand Herald, 23 November 1926.
Aorangi cleared Auckland at 5:45 p.m. for Vancouver on 23 November 1926 and took out a record Home Mail being the last post to reach England by Christmas, arriving in London on 23 December.
On schedule, Aorangi reached Honolulu the morning of 3 December 1926, berthing at Pier 7. She landed 71 passengers and 247 tons of cargo there and after embarking 25 and loading 7,000 cases of pineapples, sailed for B.C. at 3:00 p.m. that day. Aorangi, ahead of schedule again, arrived at Victoria on the 9th and at Vancouver the same day at 10:00 p.m., "the officers and passengers reported a pleasant trip, the ship being nearly a day ahead of schedule." (The Province, 10 December 1926). She came in with 273 passengers and 2,000 tons of cargo.
The Province also reported on Aorangi's upcoming overhaul to be accomplished in Australia at the end of her next southbound voyage:
The Aorangi is due for her annual overhaul in Auckland on her next trip from Vancouver, so she will not return here until the spring. She will be absent from the run for one voyage, which will probably be made by the liner Makura, now operating out of San Francisco to the Antipodes. After her overhaul the Aorangi will undergo some changes in her passenger accommodations, when several cabins and staterooms will be enlarged.
Among those sailing from Vancouver aboard Aorangi in 15 December 1926 were Mr. and Mrs. J.C. Irons, Mr. Irons being the manager of Canadian-Australian Line's local office. Aorangi arrived at Honolulu on the 22nd at daybreak and after disembarking 68 passengers, sailed south at 3:00 p.m. the following day. It proved to be the ship's most exciting departure so far in her brief career, certainly her most destructive and involving a pier and a U.S. Navy submarine.
Reversing out of Pier 7, under the command of local pilot Capt. E.H. Parker, the big liner backed into the bows of the U.S. Navy submarine R-5 which had been berthed at the quarantine berth on Sand Island, opposite the pier, and had in fact been earlier moved 100 ft. further aft at her quarantine berth for fumigation. Aorangi still smashed into the submarine's bow with some force, putting her bows 10 degs out of line. Bouncing off the sub, the liner then crashed into the pier itself, tearing a 20-ft. by 30-f.t hole in the structure, smashing windows and shifting the entire structure of the 300-ft. wharf by as much as a foot with cracks in the floor of wharf extending far into shed.
![]() |
| Credit: Honolulu Star-Bulletin, 23 December 1926. |
Men working on the submarine and around the wharf got the thrill of their lives when the crash came with a tearing of great timbers and a shock that seemed to spell the coming of doomsday. No shock could be felt on the great liner, which is the largest ship calling here regularly.
Honolulu Star-Bulletin, 23 December 1926.
Accounts of the accident were replete with tales of hair-breadth escapes. Shortly before the crash the submarine had been ordered to pull astern some distance in order to.clear her propellers from the piling beneath the wharf. Had she maintained her original position, occupied when she first tied up, it is said she would have been rammed directly amidships. The underseas craft was being fumigated at the time and workers were in her hold wearing gas-masks. They were jarred from their feet by the crash but managed to make their way to deck.
Honolulu Advertiser, 23 December 1926.
With no damage ascertained to his own vessel, Capt. Crawford put to sea and continued his voyage. Meanwhile, the U.S. District Attorney, Sanford B.D. Wood, began an investigation and indicated the government would pursue damages from Canadian-Australasian of $20,000-30,000 and a naval board of inquiry also convened. The pilot stated there had been no trouble with the ship's engines or answering her helm, "It just happened," he told a reporter. On the 23rd, the submarine proceeded to Pearl Harbor to be drydocked and inspected. There, it was found to be but "slightly damaged." On the 30 the prelimary report was issued but no determination could be made pending testimony of Capt. Crawford on return to Honolulu. The pilot testified:
On leaving the wharf the M.S. Aorangi. December 22, 1926, at 3 p.m., the wind being south east signal being half speed astern port and starboard engines of the vessel responding. "When two-thirds of the length of the wharf stopped and when the bow was clear of the wharf, one-half speed ahead was ordered on port engine, then ordered full speed ahead on port engine.
The starboard engine going astern. The vessel stem way did not seem to slacken. so I ordered the starboard engine stopped. At another time in piloting this vessel with the same engines working this vessel would respond to the port engine and gather headway much faster. At about 3:10 the vessel's stern struck U.S. quarantine wharf at which a U. S. submarine was laying and pushed, the submarine stem about five degrees. There was no-damage to the M.S. Aorangi that could be seen. The vessel proceeded to sea and steered out to channel as usual.
Under similar conditions, this vessel has responded to a go ahead signal half her length, but with all power on port engine she was very slow on this occasion and I cannot account for it.
![]() |
| Credit: Honolulu Star-Bulletin, 22 December 1926. |
When the big motorship Aorangi, now in port, ploughs, her way through the blue waters of the South Seas and crosses the equator the latter part of this week her powerful propellers will cease awhile and then, following an appropriate ceremony, Capt. R. Crawford, commander of the ship, will scatter the ashes of a beloved friend the late Maj. Charles G. Johnson over the sea.
And the waves will ripple over the spot where the ashes are thrown and the soft trade winds will blow and Captain Crawford will have fulfilled the dying wish of his friend.
When Maj. Johnson lay dying at Vancouver a short time ago he expressed the wish that his ashes might rest in the sea over which he traveled so often and which he loved with the love of a sailor.
Captain Crawford, a life-long friend, readily agreed to fulfill the last wish of Maj. Johnson and when the motorship Aorangi arrived here from Vancouver and Victoria this morning she had on board, locked up in the cabin of Captain Crawford, the ashes of the late major.
Major Johnson was born on the banks of Allan Water at Dunblane and he went to sea at the age of 14 years. His father saw him off at the East India dock. After several years spent at sea, during which he spent some time fighting, Chinese pirates. Maj. Johnson went to the Antipodes.
For years he followed the sea, becoming captain of a windjammer. In 1911 he became Lloyd's agent for British Columbia and he held that job until 1924 when he retired. He was 70 years old when he died in Vancouver the other day.
Honolulu Star-Bulletin, 22 December 1926.
Aorangi's passengers and crew rang in Christmas and New Years Eve at sea, the liner calling at Suva on 31 December 10:00 a.m.-4:00 p.m..
![]() |
| Artwork from the Canadian Australasian 1927 brochure. Credit: Wallace B. Chung and Madeline H. Chung Collection, University of British Columbia. |
1927
With a big mail consignment for New Zealand, totalling 1,381 bags of which 397 bags of letters and 123 bags of parcels were for Auckland, Aorangi arrived at 1:50 p.m. on 3 January 1927 and off for Sydney the next day. It was made known on arrival that the infant son, aged 13 mos., of passengers Mr. & Mrs. C.W. Stewart of Wellington, died during the voyage and was buried at sea on Christmas Eve with the last rites performed by a passenger, Mr. R.W. Alexander.
It was announced on 3 January 1927 that Tahiti, normally on Union's San Francisco run, would fill-in for Aorangi for one round voyage while she was refitting. Tahiti would sail from Auckland on 20 January, arriving Vancouver on 6 February, departing there on the 9th and returning to Sydney on 5 March.
![]() |
| Credit: Daily News, 5 February 1927. |
Aorangi came into Sydney on 7 January 1927, docking at No. 5 Wharf, Darling Harbour. She then underwent her annual overhaul, initially still alongside her berth and in early February, Niagara joined her during her next voyage turnaround, the first two the two running mates had been in port together.
On 28 February 1927 Aorangi shifted to Woolwich Graving Dock for hull cleaning and painting. To test her newly overhauled engines, Aorangi was undocked at 7:45 p.m. 1 March for trials at sea that would have her back the following afternoon. Aboard for the tests were Capt. T.V. Hill, Capt. W.J. Forster, marine superintendent for Union S.S., Melbourne; and Mr. J. Smith, superintending engineer for Union S.S. at Wellington. The engines were given a full 20 hours test a full power. When she returned to No. 5 Wharf, Darling Harbour, at 4:00 p.m. it was reported that "the trial was in every way satisfactory." The ship worked up to various speeds up to 17.2 knots. At the time, it was mentioned that Aorangi had motored 201,043 nautical miles at an average speed of 16.44 knots since entering service. The engines had been worked for a total of 12,224 hours, developing an average of 14,710 horsepower.
Back at her Darling Harbour berth, Aorangi was completely reprovisioned, taking on 14,000 lbs. of fish, 100,000 lbs. of beef and mutton, 10,000 lbs. of lamb, 12,000 lbs. of small meat, 500 cases of fruit, 3,700 gallons of milk, 20,000 lbs. of poultry and game, 40 tons of potatoes, 14 tons of vegetables, 4,000 dozen eggs, 5,000 lbs. of butter and 500 gallons of ice cream.
The recommisioned Aorangi had as her principal officers: Captain R. Crawford, Chief, Mr. R. Scott; second, Mr. E. M. Anderson; third, Mr. G. 'X Rime; fourth, Mr. D. H. Richards; chief engineer, Mr. H. Lockhart; second, Mr. A. L. Gatland; third, Mr. W. E. Wiggins; fourth, Mr. N. E. Thompson; fifth, Mr. E. Wade; sixth, Mr. J. Harregan; surgeon, Dr. C. G. Learoyd; pursers, chief, Mr. P. A. Campbell; assistants, Messrs. R. Frederickson. S. M. Cuthbertson. 1. K. Bagley; wireless operators, Messrs. C. lE. Taylor, E. G. Gowan.K. M'Kenzie, G. J. Gould; chief steward, Mr. H. E. Read.
![]() |
| Credit: New Zealand Herald, 16 March 1927. |
Returning to service, an immaculate Aorangi sailed from Sydney on 10 March 1927 and arrived at Auckland at 6:00 a.m. on the 14th. All of the berths in the harbour were occupied so the intercolonial steamer Marama had to wait until Aorangi sailed at 12:50 p.m. to take her place, going out with a big list of 748 passengers including 388 who embarked at Auckland.
Aorangi arrived at Honolulu at 6:00 a.m. on 25 March 1927, landing 140 passengers, 26 bags of mail and 430 tons of cargo there before departing for Victoria and Vancouver at 5:00 p.m., having embarked more than 200 passengers. "Ahead of schedule, and the passage up was made in exceptionally fine weather for this time of the year," (Times Colonist) described Aorangi's conclusion to her first voyage after her refurbishment and one of her best patronised, bringing in 761 passengers (384 First, 202 Second and 172 Third) into Victoria on the 31st, of whom 100 disembarked there. She discharged 90 of her 3,048-ton cargo and 337 of her 930 mailbags.
![]() |
| Credit: Times Colonist, 1 April 1927. |
It was the Aorangi's first appearance in this port for four months. The vessel has been extensively overhauled, and while no structural alterations have been made, her cabins, saloons and have been painted and decorated. A large crowd was on the dock to meet the vessel, and most of people on left the vessel while she was in port for a tour of of the city. The Aorangi cleared for Vancouver at 10 o'clock.
Times Colonist, 1 April 1927.
On arrival at Vancouver at 6:00 a.m. on 1 April 1927, the Vancouver Sun reported "... Aorangi, after her extensive overhaul and refitting, looks spic and span in new paint. Cabins, saloons and passages, newly decorated, make the vessel an object of admiration."
![]() |
| Aorangi at Vancouver with Empress of Russia or Empress of Asia in 1927. Credit: W.J. Moore Panoramic Photo, Vancouver via shippinghistory.com threebs. |
With a full cargo (4,000 tons including automobiles and newsprint), but a light list of 214 passengers (104 First, 69 Second and 41 Third), Aorangi cleared Vancouver at noon on 6 April 1927 for the Antipodes with Sir Mark Sheldon, former Trade Commissioner for Australia in the U.S. and Hon. Ernest E. Lapointe, minister of Justice, Ottawa, figuring in the passenger list. Aorangi called at Victoria that evening at 5:30-8:40 p.m., and began her voyage south. Honolulu was reached at 6:00 a.m. on the 13th where she landed 31 passengers, 12 tons of cargo and 46 bags of mail after coming alongside Pier 7 at 8:00 a.m.. She was off again by 5:00 p.m., enough time for passenger Mme. Margarete Matzenauer, premiere contralto of the Metropolitan Opera Co., to give a performance at the Princess Theater that afternoon. Aorangi augmented her passenger list by 99 embarks at the Hawaiian port, some of whom transhipped from Matson liner Wilhelmina arrivng from San Francisco.
MUSIC ON THE AORANGI
A SPLENDID TRIP Sounds of revelry drifted out across the waste of ocean as the Aorangi steamed toward New Zealand from Vancouver. She was a joy-ship in every sense of the word. There was no lack of talent on board. In addition to several theatrical managers there were two jazz bands, Mr. Harry Thurston, the comedian, and the ship's own orchestra. When night came Mr. Harvey Ball and his Virginian orchestra, and Miss Ruth Varin and her Maryland Maids orchestra, made music which set shoulders shrugging and feet merrily tapping the deck. There were concerts, too. On the last night of the voyage before arriving at Auckland there was a grand concert. 'It was one of the finest I have ever attended,' said the Hon. Ernest La Pointe, Minister of Justice for Canada, who is on his way to Canberra. 'It has been a wonderful trip all the way,' was the opinion of the travellers on the Aorangi.
The Sun, 26 April 1927.
![]() |
| Credit: Daily Telegraph, 1 May 1927. |
Leaving Suva astern at 8:00 p.m. on 21 April 1927, Aorangi made good time south in fine weather to reach Auckland at 5:15 p.m. on the 24th. She brought in another heavy consignment of mail from Britain and America, including 323 bags for Auckland. Aorangi Sailing at 11:00 p.m. on the 26th for Sydney, Aorangi got there the morning of the 30th, docking at her usual No. 5 Wharf, Darling Harbour, and brought in despite heavy fog.
Clearing Sydney on 5 May 1927 for Vancouver, Aorangi numbered among those aboard the Australian National Band bound for a Canadian tour. A rough trans-Tasman crossing made her several hours late arriving at Auckland at 10:50 a.m. on the 9th. She arrived with two youthful stowaways, aged 16 and 14, who were found in an unoccupied cabin when the ship was well out to sea. They were sent back to Sydney in Marama. Her sailing postponed to 8:00 p.m. due to time needed to work cargo, Aorangi left for Suva on the 10th. She had 86 passengers, 513 tons of cargo and 25 bags of mail for Honolulu where she docked at 8:15 a.m. on the 20th.
Sailing for for British Columbia at 5:00 p.m. on 20 May 1927 with 154 new embarks, Aorangi had 776 (334 First, 252 Second and 185 Third) passengers aboard. It was another smart, schedule bending crossing north and Capt. Crawford had Aorangi at William Head quarantine station, Victoria, at 3:30 p.m. on the 26th, 14 hours early, and alongside Pier 2, Rithet Docks at 4:30 p.m. She brought in a 1,174-ton cargo and arrived at Vancouver the following morning.
![]() |
| Aorangi at Suva, Fiji. Credit: G. Shaw photo, Auckland Weekly News 2 June 1927. Auckland Libraries. |
With 250 passengers and 4,500 tons of cargo, Aorangi departed Vancouver on her next voyage to Australiasia at noon on 1 June 1927. By the time she cleared Victoria that evening at 9:00 p.m., she had almost 300 aboard. Ahead of schedule by 12 hours, the liner made Honolulu at 6:00 p.m. on the 7th for which she had 40 passengers, 24 tons of cargo and 15 bags of bag to land before sailing at noon the next day. Making Auckland at 3:15 p.m. on the 19th, Aorangi reported fine weather en route and an average speed of 16.5 knots to prove it. She was off for Sydney at 8:00 p.m. the following evening, arriving on the 24th and alongside her Darling Harbour berth at 8:00 a.m..
Among those landing were including renown violinist Efrem Zimablist and his wife, noted Rumanian soprano Alma Gluck, and vaudeville artists Achilles and Newman. The warm waters of the South Pacific quickly fouled ships' hulls so frequent drydocking was essential for the express liners and Aorangi went into Woolwich Graving Dock on 28 June 1927 for a quick cleaning and painting and returned to her berth for loading late the following day.
Aorangi sailed from Sydney, B.C.-bound, on 30 June 1927 and arrived at Auckland at daybreak on 4 July and off north at 11:00 a.m. the next day, after embarking the New Zealand delegation to the Pacific Relations Conference in Honolulu. Docking there the morning of 15 July in company with the Oceanic liner Ventura, also up from the Antipodes, the two sailed together for the mainland at 5:00 p.m. Aorangi landed 165 passengers, 380 tons of cargo and 18 bags of mail during her call.there. Sailing with 500 passengers and 2,000 carcasses of mutton and 800 boxes of New Zealand butter, she reached B.C. late on the 21st.
With W. McCormack, Premier of the State of Queensland, among her 500 passengers (250 First, 150 Second and 100 Third), Aorangi sailed from Vancouver at noon on 27 July 1927 and Victoria at 9:30 that evening. Her cargo for the south included automobiles, canned salmon and machinery. Docking at Honolulu at 5:00 p.m. on 2 August, Aorangi had 79 passengers disembarking there and she landed 10 tons of cargo and 34 bags of mail. Outbound at noon the next day, she had added 145 passengers to her list for the south. After calling at Suva 8:00 a.m.-2:00 p.m. on the 11th, Auckland was reached at 1:00 p.m. on the 13th, among those disembarking was Auckland Bishop Dr. Cleary, returning from Europe, and, in the custody of the local police, four stowaways. Departing for Sydney at 3:00 p.m. on the 15th, Aorangi faced strong westerlies across the Tasman during the first days of her crossing and did not pass the Heads until 6:00 a.m. on the 19th, docking at 8:30 a.m..
Vancouver-bound, Aorangi cleared Sydney on 24 August 1927 and called at Auckland 29-30th. Among those landing there was the British Airship Mission which was investigating conditions in New Zealand for the proposed London to Antipodes airship service, and famed violinst Jascha Heifietz, bound for Honolulu. She had 85 passengers, 220 tons of cargo and 23 sacks of mail to land there on 8 September and 195 through passengers aboard.
Sailing for the mainland at 2:00 p.m. on 9 Sepember 1927, Aorangi outdid herself on the passage north, arriving at William Head, Victoria, at 2:00 p.m. on the 15th, a full 20 hours in advance of schedule. She landed over 100 of her 315 passengers there and about 100 tons of cargo before sailing for Vancouver at 7:00 p.m. Arriving there the following morning, her 1,193-ton cargo included 5,217 boxes of butter, 1,000 carcasses of mutton, 521 of lamb and 50 crates of frozen rabbit as well as 533 bags of mail.
"The Boss" was among those sailing aboard Aorangi on her next voyage south on 21 September 1927. Sir Charles Holdsworth, managing director of Union Steamship Co., was returning to New Zealand with his wife, and godmother to the ship, Lady Holdsworth. Arriving at Victoria at 5:30 p.m. that evening, she did not sail until 11:00 p.m. so as to accommodate the Australian National Band which was making its final performance on their Canadian tour that evening. In all, Aorangi went out with 675 passengers and 4,500 tons of cargo including 7,000 crates of onions, 4,000 boxes of apples, automobiles, newsprint and tinned salmon. Honolulu was reached at daylight on the 28th where 78 passengers disembarked and Aorangi departed for the Antipodes at 5:00 p.m., giving the Australian National Band time for a performance that afternoon at the Princess Theater.
Battling strong head winds off Suva, Aorangi reached Auckland, late, at 12:15 a.m. on 10 October 1927. Sailing for Sydney at 11:30 p.m. the same day, she arrived there at daybreak on the 14th. Again, she spent two days during her turnaround in Woolwich Graving Dock having her hull cleaned and was back at no.5 Darling Harbour on the 18th to load for the north.
Aorangi sailed northbound from Sydney at 4:00 p.m. on 20 October 1927, enjoying fine weather across the Tasman, putting into Auckland at daybreak on the 24th and departing the following late afternoon at 5:00 p.m.. Among those embarking there for Vancouver was Frances Alda, prima donna soprano of the Metropolitan Opera. Aorangi came into Honolulu the morning of 4 November, there landing 51 passengers, 420 tons of cargo and 23 mailbags. She had 100 through passengers and augmenting that by only 18 embarks, went north at 5:00 p.m. with her smallest list of the year and a 1,000-ton cargo. Sadly, she arrived at Victoria at dawn on the 11th with on fewer passenger when it was reported that one, William Johnson, aged 42, from Australia, had jumped overboard shortly after the vessel had cleared Honolulu in an suicide. Capt. Crawford circled Aorangi a few times over the area where he went over the side but without sighting the body. Aorangi arrived at Vancouver at 3:00 p.m. on the 11th.
Well patronised on her next voyage south, Aorangi left Vancouver on 16 November 1927 and Victoria at 8:30 p.m. that same day with 750 passengers and 5,000 tons of cargo, including a shipment of British Columbia apples. Before she left Victoria, she was visited by a party of 60 girl students from the Victoria High School. At Honolulu, 80 passengers disembarked on the morning of the 22nd, resuming her voyage at 4:00 p.m.. Calling at Suva on 1 December, Aorangi arrived at Auckland at 6:00 p.m. on the 4th and alongside Prince's wharf at 7:55 p.m., resuming her voyage at 11:00 p.m. on the 5th. A death was reported on the voyage when passenger R.E. Jamieson, managing director of Gregory Tyre and Rubber Co. of Vancouver, died of heart failure one day out of Honolulu and was buried at sea, the service conducted by Capt. Crawford. Among those aboard was, on his second voyage on the ship, cartoonist Pat Sullivan, creator of "Felix the Cat." The ship also brought a record mail consignment of 2,500 bags. Aorangi arrived at Sydney on the 9th.
![]() |
| Credit: The Daily Telegraph, 10 December 1927. |
One of the gayest send-offs the Aorangi ever had was that of yesterday, when Captain Crawford took her out 'on the long trail, the old trail, the trail that is always new,' leading to Vancouver. The rail was thronged with passengers waving farewells to friends and relatives on the wharf, and the banks of colored streamers made a picture.
The Evening News, 16 December 1927.
Closing out the year, Aorangi sailed from Sydney at 4:00 p.m. on 15 December 1927. She arrived at Auckland 19th at 12:45 a.m., delayed by "boisterous weather" off New Zealand's West Coast that was, in fact, a gale of sufficient strength to delay her arrival by hours, and she did not come alongside Prince's Wharf until after 8:30 a.m.. She had a big cargo to load there and it was a rush to get her off on her way north, taking away the largest shipment of New Zealand butter yet dispatched to Canada, totalling 35,000 boxes, some of which would be transhipped at Vancouver via CPR to Japan and China. Aorangi sailed from Auckland at 6:00 p.m. on the 20th. Celebrating Christmas at sea in the broad expanses of the South Pacific, she could not make up all of the delay and was late in reaching Honolulu, coming in just before 5:00 p.m. on the 30th with 150 through passengers aboard and 145 landing there, along with 340 tons of cargo and 18 bags of mail. With 150 new embarks, Aorangi departed at 12:30 a.m. on the 31st.
Up to the end of 1927, Aorangi had logged 201,498 nautical miles, averaging a daily fuel consumption of 45.8 tons for propulsion and nine tons for other purposes. Her average speeds for her three best voyages were 17, 16.96 and 16.88 knots respectively and her highest speed was 18.1 knots.
![]() |
| Credit: Wallace B. Chung and Madeline H. Chung Collection, University of British Columbia. |
1928
Six hours early, Aorangi arrived at Victoria at 2:45 a.m. on 6 January 1928 with 174 aboard (85 First, 42 Second and 47 Third) and over 2,000 tons of cargo including her epic butter shipment. She sailed for Vancouver at 8:00 a.m.
Aorangi's first voyage of the New Year attracted a good list of nearly 500 passengers when she cleared Vancouver at midday on 11 January 1928 and Victoria at 7:30 p.m. Howard Heinz of pickle fame figured in the passenger list.
En route to Honolulu, Aorangi answered an S.O.S. call from the freighter Griffco, bound from Seattle to Honololu, but after making a 100-mile detour at full speed to reach her on 13 January 1928, found there was no trouble with the vessel and after circling her three times, and receiving a morse lamp signal she was ok and her wireless out, proceeded on her way. There were 121 disembarking at Honolulu on the 18th and she also landed 68 tons of cargo, three cars and five bags of mail. She sailed south at 4:00 p.m. after embarking 142. Calling at Suva on the 26th, she embarked the crew (11 officers and 44 Lascars) of the Clan McWilliam which had sunk after a fire aboard in Vavau Harbour, Tonga, and been taken to Suva where they embarked. They would be landed at Sydney. A Tongan youth choir of 30 boys, including the Crown Prince of Tonga, aged 9, also embarked at Suva, bound for a tour in Australia.
![]() |
| Aorangi arriving at Auckland. Credit: Auckland Libraries. |
Aorangi docked at Auckland on 29 January 1928 at 10:00 p.m., the Auckland Star reporting that "The ship's company said they had had a very happy time with deck sports, concerts and the full round of pastimes such as make a voyage so enjoyable." Aorangi was first and foremost a mail ship and the pride and efficiency in handling the mails on arrival at Auckland was reflected in this story in the New Zealand Herald following her arrival:
Exceptionally smart work was performed by the postal officials in Auckland last evening in handling the mail from the Royal Mail liner Aorangi. The vessel arrived from Vancouver at 8.05, and as soon as she anchored 170 bags of letters for the South were loaded into the postal launch alongside the liner. The launch reached the wharf at 8.15 and the mail was loaded into lorries and transferred to tho second express, which had been delayed. The express was despatched at 8.25 p.m., the transference of the mail from the liner to the train having only occupied 20 minutes. Had it not been for the activity of the postal officials the delivery of the mail in tho South Island would have been delayed 24 hours.
Sailing from Auckland at 8:00 p.m. on 31 January 1928, Aorangi reached Sydney early on 4 February.
The Daily Telegraph (Sydney) first reported on 8 February 1928 that "it is understood that the Union Steam Ship Company has decided to build a new steamer for the Pacific service, larger than the Aorangi."
![]() |
| Aorangi starts her first northbound voyage for 1928, passes the Sydney Harbour Bridge then in its early stages of construction. Credit: The Sydney Morning Herald, 10 February 1928. |
Aorangi sailed for Vancouver at 4:00 pm. On 9 February 1928, the Sydney Morning Herald featuring a panoramic photo of the liner passing under the new Harbour Bridge then under construction and complete in its approach spans on either side. When she sailed from Auckland on the 14th, she went out with another immense shipment of New Zealand butter for Canada, totalling 24,479 boxes, and 3,000 would be landed at Honolulu. As the liner slowed off Rangitoto Beacon after being asked to do so, she was visited no fewer than three times by the launch Olive Jean conveying urgent last minute mail. When Aorangi left Suva, she had 310 passengers aboard for B.C. and 95 for Honolulu where she docked on the morning of the 24th and continued her voyage at 5:00 p.m., with 437 (207 First, 118 Second and 112 Third) for the mainland and 2,551 tons of cargo.
That the rumours about a new running mate for Aorangi were not just idle speculation was reflected in Union S.S. managing director Sir Charles Holdsworth (with Lady Holdsworth) embarking in Auckland and "on his way to Canada and England to confer with marine architects and engineers" on the project, according to the Honololu Star-Advertiser of 25 February which further reported:
Tentative plans call for a liner 650 feet long but as to the design and type of propulsion, plans have not been fixed as a thorough study will be made by the Union officials of the modern tendency in ship building before the actual plans are drawn for the new ship. It is planned to embody all of the latest and most practical ideas in ship building in the construction of the new liner. The new liner will be a motorship, it was stated, but whether it will be modelled after the Aorangi has not been determined.
The new ship planned for this run would be about 70 feet longer than the Aorangi and would be equal in size to the big round the world liners that call here with world tour cruises.
The Union line plans to make a strong bid to bring the traffic from Australia and New Zealand north to Canada, where they will cross the continent and ship across the Atlantic to England. The bulk of the traffic from Australia now goes via the Suez Canal. The new ship will be capable of carrying more than 1000 passengers in all classes, according to the tentative plan.
Coming into William Head Quarantine Station, Victoria at 4:00 p.m. on 1 March 1928 and alongside Pier 2, Rithet Docks by 5:45 p.m., Capt. Crawford had Aorangi in 12 hours ahead of schedule and reported "fairly smooth seas throughout the voyage." Landing 50 passengers, 82 tons of cargo and 300 bags of mail there before sailing for Vancouver at 8:40 p.m., Aorangi docked there the following morning.
Noon on 7 March 1928 saw Aorangi off again from Vancouver for the Antipodes, calling at Victoria 5:30-8 p.m. Aboard were 350 passengers (including the Waratah rugby team of NSW returning after a long Canadian tour) and a big 6,000-ton cargo including 350 crates of eggs, the first consignment of Canadian eggs for Australia in some time, as well as flour, lumber, canned fish and automobiles. Honolulu, reached at 8:00 p.m. on the 13th, did not offer much trade on this call, Aorangi landing 52 there and embarking 38, before departing the following day at noon.
Speculation remained brisk regarding Union's newbuilding plans. The Honolulu Star-Advertiser reporting on 21 March 1928, "It is known definitely that the 17,000-ton Niagara, presently in the run between Vancouver and Sydney will be diverted to the San Francisco-Sydney service," which would replace Tahiti, and "that three new ships are to be constructed as soon as they can be built and this means within the next 18 months." All of this being relayed from reports in the San Francisco Examiner during a visit to the city by Union's Sir Charles Holdsworth and predicated on reports that Matson Line was planning to built three new ships for their Australiasia run pending passage of the Jones-White Act in Congress providing mail subsidies.
Impervious to such speculation, Aorangi with the faithful Niagara, continued to ply their routine occasions. Aorangi touched at Suva on 22 March 1928 and reached Auckland on the 25th at 10:00 a.m. where the Waratah Rugby Team, already feted in Suva, was welcomed by the New Zealand Rugby Union. As if timed to coincide with speculation as to the need for a larger graving dock in Auckland than the existing Calliope dock (whose largest visitor to date was Niagara in 1915), it was reported that a leak had developed in Aorangi's rudder gland to the extent that the water was 12-ft. deep at the head of the shaft tunnel on the passage down from Honolulu, and with no local drydock big enough to accommodate her, pumps would have to keep the inflow controlled until she could be docked on arrival at Sydney where her 41-ton rudder would have to be removed. Aorangi left for Sydney on the 26th having aboard more than 800 passengers, about 600 embarking at Auckland.
Making a fast Tasman transit so as to arrive the evening before her scheduled time, Aorangi reached Sydney Heads at 6:25 p.m. on 29 March 1928 and alongside her berth at no. 5, Darling Harbour by 10:10 p.m. After half of her cargo was unloaded, Aorangi was shifted at noon the following day to Mort's Cockatoo Graving Dock.
![]() |
| Aorangi at No. 5 Wharf, Darling Harbour... her regular berth in Sydney for her entire career. Credit: eBay auction photo. |
Union S.S. Co. announced on 31 March 1928 that Aorangi would be repaired in time to depart Sydney on schedule on 5 April. However, it was further announced on 4 April that the departure time would be set back from 4:00 p.m. to 10:00 p.m. as Aorangi was only undocked that day at 6:00 p.m. and shifted from Cockatoo to no. 5 Darling Harbour to load. This plan, too, was superceded on the 5th when it was announced she would have to sailing at 8:00 a.m. on the 6th but passengers could embark the previous evening as planned.
Reaching Auckland at 2:30 p.m. on 9 April 1928, Aorangi had put in her second fastest trans-Tasman crossing to date: Sydney Heads to Rangitoto Beacon in 3 days 1 hour 21 mins, or three minutes better than previous best time. With Maunganui arriving the same day, all of the deep sea slips in the harbour were occupied by eight vessels. With 735 passengers, Aorangi sailed for Vancouver at noon on the 10th, still 24 hours off her schedule owning the Easter holiday. Aboard was Sir Eyre Hurton, the Governor of Fiji, returning to Suva. Aorangi met with strong westerly winds north of Auckland but the rest of the trip north was enjoyed in fine conditions. Three days before reaching Hawaii, a passenger, H. Thomas of England, died of heart failure on the 18th and was buried at sea.
There were 126 passengers, 626 tons of cargo and "considerable mail" to land at Honolulu when Aorangi docked there on 21 April 1928. Thirty-five of her passengers transhipped to the LASSCo. liner City of Honolulu for Los Angeles and as the C-A liner did not come in until 8:00 a.m. it was quick work to get them and their luggage aboard in time for the 10:00 a.m. sailing. Aorangi made fast work of her own turnaround and was off for Victoria at 6:00 p.m. with 727 passengers.
Still late but now by hours, Aorangi came into Victoria at 4:40 p.m. on 27 April 1928 and Vancouver at midnight. She came in with 150 tons of cargo for Victoria and 2,000 tons for Vancouver.
Aorangi left Vancouver at noon on 2 May 1928 and Victoria at 6:30 p.m. for the Antipodes Figuring in her 4,000-ton cargo manifest were 20 tons of wooden doors made in British Columbia plus automobiles, canned salmon, lumber and machinery. Docking at Honolulu at 2:30 p.m. on the 8th with 26 passengers and 160 tons of cargo for the port and 170 through passengers, she resumed passage at noon the following day after embarking 45 passengers.
Very much the mailship, Aorangi had 2,285 bags of English mail and 600 from America, of which 599 were for Auckland and the rest for New Zealand on arrival in the Dominion at 11:00 a.m. 20 May 1928 and alongside Prince's Wharf at 12:20 p.m.
Aorangi had an extra passenger from Vancouver to Suva when a sparrow roosted below a lifeboat on departure from Vancouver and according to the Auckland Star (21 May 1928), "spent most its time haunting in the region of the pantry. The crew took quite a interest in the passenger, also the ship's cat. The latter seemed quite despondent when the sparrow few ashore at Suva."
Aorangi also returned a lost cat according to same newspaper: "A white kitten with a grey tail, the special pet of a child, was lost in Auckland last March, and was advertised for in the Auckland Star. It is now known that the kitten strayed on to the waterfront, where its half starved state attracted the attention of one of the stewards of the mail vessel Aorangi. The kitten was taken on board, cared for, and is now back in Auckland after a trip to Vancouver, a plump, half-grown cat. A lady passenger on the liner identified the animal from the description advertised. It became the ship's pet, and has been well looked after in hopes of a reunion with the young Auckland owner. "
![]() |
| Credit: New Zealand Herald, 21 May 1928. |
A kitten whose loss has been mourned by an Auckland child for six weeks returned safe and sound on the Aorangi from Vancouver yesterday. Found when woebegone and half-starved on the waterfront, the kitten was taken aboard the liner by a kindly steward and has since crossed the Pacific to Vancouver before returning to its birthplace. The loss of the kitten was advertised early in April. It was described as a white kitten with a grey tail, and as the very special pet of a child. A lady passenger on the Aorangi, which sailed from Auckland for Vancouver on April 11, was surprised to see a kitten answering to the unusual description given in the advertisement in the Herald, which she had read. In an endeavour to bring about a reunion between pet and child the lady has written to the Herald, and a further letter from her awaits the child at the photographic department of the Herald. Meanwhile the kitten is enjoying life on the Aorangi. It has become the ship's pet, a favourite of all on -board. Life as a salon passenger has transformed it from a drab, emaciated stray into a plump and playful kitten. It is friendly with all hands but has formed a special attachment with a stewardess, whose whistle it answers from any part of the ship. Although they will be sorry to part with the kitten, the Aorangi's company will rejoice if they have been able to save the kitten for a reunion with its little owner.
New Zealand Herald, 21 May 1928.
Aorangi sailed from Auckland for Sydney on at 1:00 p.m. 21 May 1928 and reached the Heads at 4:14 p.m. on the 24th, just after the Oceanic liner Sierra arrived from San Francisco. She was alongside Wharf no. 5, Darling Harbour, by 6:30 p.m.. On the 22nd, the Sydney Morning Herald reported that "In continuation of her voyage from Vancouver the Canadian-Australasian passenger motorship Aorangi left Auckland at 1 o'clock yesterday afternoon for Sydney, The captain is making an effort to bring his command through Sydney Heads before sunset Thursday [24th], so that the vessel may be cleared on by the port health authority and the is passengers able to disembark that night. It possible that if she is favoured by fine weather the motorship will create a record." Aorangi put in a fine run, arriving at Sydney almost two hours ahead of schedule and crossing the Tasman in 3 days 4½ hours, but still not beating the doughty Niagara's 2 day 22 hour record set back in 1914.
"Crowded with passengers," Aorangi left her Darling Harbour berth at 4:00 p.m. on 31 May 1928, reaching Auckland at 6:35 a.m. on 4 June after experiencing "moderate weather for the run across the Tasman Sea" during which she made a record 24-hour run of 439 miles, doing the crossing in 3 days two hours 41 mins. She continued her voyage north at 11:50 a.m. the next day.
![]() |
| Credit: New Zealand Herald, 6 June 1928. |
The sailing of a Pacific liner from Auckland is a national event—almost an international event—and when, as yesterday, she sails for Vancouver, she leaves a wake that makes an eddy in nearly every corner of New Zealand. Firmly in favour, the All Red route attracts travellers from every part of the country, and when the Aorangi or the Niagara moves from the berth, many more streamers than those which reach down from the decks to hands on the wharf tire there to signify the deepest emotions of the human heart. Thought-streamers stretch to the faraway—to a certain house in a certain street in a certain town, to a homestead on the plains or in thee hills, to any place that holds a loving heart, to any bourne of day-dreams.
These invisible streamers stretch away arid away to their unknown destination, linking those who travel to those who stay behind and go on with their little daily round. But they do not break when the liner casts off her moorings, and almost imperceptibly moves away to turn her head to sea, for they are long enough and strong enough to encircle the globe. The sight of a turban in the farewelling crowd reminds one of another ceremony familiar to Anglo-Indians—the sprinkling of incense on tho water to propitiate the gods and wish the sahib a prosperous voyage. How much of such incense is sprinkled in imagination, as the Aorangi departs!
New Zealand Herald, 6 June 1928.
Her officers and passengers thrilled by the sighting of the trans-Pacific plane "Southern Cross" taking off from Naselai Beach, Fiji, as she left Suva, Aorangi reached Honolulu almost a day ahead of schedule, at 1:30 a.m. on 14 June 1928. She had 145 passengers and 300 tons of cargo for the port, 410 through passengers and 276 embarks for the mainland when she sailed on the 15th at noon. Putting in another splendid passage, Aorangi reached Victoria at 12:45 p.m. on the 21st, 20 hours ahead of schedule. Her 672 passengers was made up of 326 First, 183 Second and 163 Third and of those, 100 landed there, along with 49 tons of cargo before she departed for Vancouver at 3:00 p.m.where she docked at 8:30 p.m.
The big news attending the next sailing of Aorangi from Vancouver to the Antipodes on 27 June 1928 was "Ziegfeld's Ingenues," the "dazzling organization of girl musicians" who were aboard and bound for a tour of New Zealand and Australia. The group had been among the sensations of the "Ziegfeld Follies of 1927". They are among the total of 414 (236 First, 122 Second and 56 Third) passengers aboard by the time the liner cleared Victoria that evening. Figuring in her cargo south was a test shipment of five tons of B.C. strawberries and 300 boxes of smoked black cod.
Aorangi was already a day ahead of schedule when she arrived at Honolulu at 1:30 p.m. on 3 July 1928, not being due until the morning of the 4th. There, 130 disembarked (there were 280 through passengers) and 100 joined the ship before she sailed for the south at noon on the 4th. Calling at Suva on the 11th, Aorangi reached Auckland on the 15th, docking at Prince's Wharf at 3:45 p.m.and making a short turnaround there, was off for Sydney at 2:00 p.m. the next day.
Whilst Aorangi was crossing the Tasman, news attending the decision to enlarge the Cockatoo Graving Dock in Sydney from 602 ft. to 690 ft. in length and increased its breadth from 84 ft. to 88 ft., occasioned more details about the proposed new Union trans-Pacific liners' dimensions which influenced the dock expansion. She would be 655 ft. by 85 ft., compared to Aorangi at 580 ft. by 72 ft..
In what Sydney's Daily Telegraph described as a "Race Against Time," Aorangi made exceptional speed on her cross Tasman voyage when a passenger aboard, Mrs. F. Wilkenson, who boarded in Auckland, learned of her husband's illness in Sydney and great anxiety to reach him before he died. Capt. Crawford, in race to get Aorangi off the Heads by sunset thus able to get under the deadline for practique that evening and be alongside that night, cranked her up to an average speed of 18 knots, faster than she had steamed since trials. In this, he and the ship were successful. Aorangi was off Sydney Heads at 5:09 p.m. on 19 July 1928, 24 hours ahead of schedule, and alongside no. 5, Darling Harbour at 7:30 p.m. "The Boatload of Beauty" featured a live wireless broadcast with The Ingenues from the ship's music room at 7:00 p.m..
With a bugle playing and the English League team singing 'Till We Meet Again,' the Aorangi moved away yesterday on her way to Vancouver bearing with her the Ashes. The cheers that rose from the people on the wharf showed the sporting spirit in which Australianians view such occasions.
The Evening News, 27 July 1928.
With Capt. Crawford on leave, Capt. Thomas V. Hill would take Aorangi out from Australia on her next two round voyages to Vancouver, starting with that departing Sydney at 4:00 p.m. on 26 July 1928. Chief among her passengers was the triumphant English League Rugby Team on their way to New Zealand after defeating the Australians two of three Test matches and claiming the Ashes. Aorangi called at Auckland on the 30th and leaving the following day at 2:25 p.m., her cargo included 6,237 boxes of New Zealand butter and a large crowd farwelled her passengers including the New Zealand Parliamentary party on an official visit to Canada and a New Zealand delegation to the Pan-Pacific Conference in Honolulu. Upon clearing Suva, Aorangi had 280 through passengers aboard and 165 for Honolulu where she arrived, early, at 11:30 a.m. on 9 August. She left for the mainland at noon the following day, with 135 new arrivals aboard.
Encountering the only bad weather during the whole of the three-week trip when ran into heavy fog was met at the entrance to the Straits, Capt. T.V. Hill still had Aorangi at William Head by noon on 16 August 1928 and alongside pier 2, Victoria by 2:30 p.m., a good 18 hours early. She brought in a total of 424 passengers (203 First, 127 Second and 90 Third) and a 1,453-ton cargo. Aorangi left for Vancouver at 3:00 p.m., arriving there at 9:00 p.m. to land her remaining 354 passengers at CPR Pier C, now 20 hours ahead of schedule.
With one of her larger lists, Aorangi (Capt. T.V. Hill) left Vancouver at midday and Victoria the evening of 22 August 1928 with 600 aboard, including Sir Joseph Ward, former premier of New Zealand, and New Zealand heavyweight boxer Tom Heeney and his new bride. It was anticipated another 100 would embark at Honolulu. She arrived there at 1:30 p.m. on the 28th, landing 138 passengers and 44 tons of cargo.
Tom Heeney's arrival by the Aorangi was marked by extraordinary enthusiasm. He first received cheers of welcome from the crowded launches as the mail steamer entered port, and after she had berthed at the Princes wharf there were bursts of cheering when the boxer and his wife appeared at the deck rail, and they came down the gangway a battery of cameras exploded.
Evening Star, 10 September 1928.
Aorangi arrived at Auckland at 6:10 p.m. on 9 September 1928 where hundreds were on Prince's wharf as she came in to welcome Tom Heeney. She sailed for Sydney the following evening and docked there on the 14th.
The northbound Aorangi, (Capt. T.V. Hill) left Sydney on at 10:00 a.m. 20 September 1928 and after a squally Tasman crossing, came into Auckland at 5:45 a.m. on the 24th and left at 11:45 a.m.. An unsual deck cargo loaded there was a seaplane used in an American expedition to New Guinea to investigate sugar cane growing. Lightly patronised on this trip, she had only 150 through passengers and 74 disembarking on arrival at Honolulu on 5 October, docking at Pier 7 at 7:30 a.m. and off for the mainland at 5:00 p.m.
Twelve hours ahead of schedule, Aorangi arrived at William Head quarantine station at 4:00 p.m. on 11 October 1928, one of three liners arriving at Victoria that evening, the other being Empress of Asia outbound to the Orient and Emma Alexander from California. Aorangi landed 20 passengers and 50 tons of cargo there and proceeded to Vancouver at 7:30 p.m., disembarking her passengers there the following morning and landing 1,550 tons of cargo, including 13,647 boxes of butter, 2,500 carcasses of mutton and 300 barrels of hides.
"Two hundred angora and chinchilla rabbits, from famous hutches of United Kingdom and the Continent," were the celebrities on Aorangi's next voyage to the Antipodes from Vancouver on 17 October 1928, and were bound for Australia for breeding. A ton of special feed was put aboard for their meals en route. Unlike her light inbound list, she went out a full ship with 625 passengers by the time she cleared Victoria late that evening.
Four steamers in line off Honolulu harbor, a rather unusual sight, was presented late yesterday afternoon when the motor-ship Aorangi arrived off port at 5 o'clock. Coming in after the Aorangi was the Wilhelmina. Going out at the same time, off Diamond Head, were the navy transport Henderson, which left at 4 o'clock for the coast, and the Haleakala, bound for Hilo on the first trip after her lay-off for annual inspection.
Honolulu Star Advertiser, 24 October 1928.
After what all aboard "agreed was a perfect voyage-- not single rough day-- the ocean like a big millpond," Aorangi arrived at Honolulu late on the afternoon of 23 October 1928, with 66 of her contented passengers landing there and 19 tons of cargo and 12 bags of mail discharged. She sailed south at noon the following day. Aorangi called at Suva on 1 November and came into Auckland at 3:30 p.m. on the 4th, berthing at Prince's Wharf about an hour later. The party of New Zealand bowlers, returning from a worldwide tour, were welcomed home. Departing for Sydney at 5:00 p.m. the following day she docked there at daybreak on the 10th with 320 passengers. On the 12th, Aorangi went into Woolwich graving dock for hull cleaning, and Capt. Robert Crawford, returning from leave, resumed command.
![]() |
| Credit: The Sydney Morning Herald, 16 November 1928. |
With Cardinal Bonaventure Cerretti, returning to Rome from the Eucharistic Congress in Sydney, Aorangi departed on 15 November 1928 and reached Auckland at daybreak on the 19th. She resumed her voyage north at 8:00 p.m. on the 20th, her departure put back for uncited reasons. That morning Port Wellington arrived from London, "her cargo includes ammunition for the New Zealand squadron and she also has some piston for the R.M.M.S. Aorangi." (Auckland Star, 20 November 1928). Among those embarking for the voyage to Honolulu was Auckland Archbishop Cleary who would accompany Cardinal Cerretti and both would transship there to San Francisco.
![]() |
| Credit: Times Colonist, 5 December 1928. |
Two Antipodean liners arrived at Honolulu together on the last day of November 1928: Aorangi and Oceanic's Ventura, and they departed as a pair as well at 5:00 p.m. on 1 December. Aorangi went out with only 125 passengers and again beat her timetable by arriving at William Head quarantine station off Victoria at 7:00 p.m. on the 6th, 12 hours early. One reason for her good timing was an early departure from Honolulu owing to a light cargo uptake there. She came in with a heavy Christmas mail from the Antipodes for America and England. Aorangi finished her voyage at Vancouver at 6:00 a.m. on the 7th, landing her remaining 120 passengers.
Passengers on the outbound passenger liner R.M.M.S. Aorangi. Canadian-Australasian Royal Mall Line ship between Vancouver and the Antipodes, will go to sleep on Tuesday. December 25. Christmas night, and awaken on Thursday morning.
This does not imply that they will have enjoyed Christmas cheer too heartily, but it merely means that during the night they will cross the one hundred and eightieth meridian of longitude where a day Is lost In order to keep up with the sun on the race round the world. They will therefore have no Boxing Day.
Christmas Day will be celebrated on the sunny southern seas, one day out from Suva, Fiji Islands. The spicy scent of British Columbia fir trees, of cedar and pine garlands and ropes of British Columbia holly will be added to the flower-laden zephyrs of the balmy south seas.
Christmas trimmings, trees and other evergreens from Vancouver and district have been placed on board in preparation for the day. In addition a large supply of turkeys and other Christmas essentials has been ordered.
The Province, 10 December 1928.
![]() |
| Aorangi First Class Christmas Dinner menu, 25 December 1928. Credit: eBay auction photo. |
With the prospect of a warm, sunny Christmas just south of the Fiji Islands, Aorangi's 375 passengers bid farewell to a chilly Vancouver as they sailed midday on 12 December 1928. The liner reached Victoria at 5:30 p.m. and was off for the south later that evening. Aorangi had 330 through passengers and 115 landing at Honolulu on arrival there on the 19th at daybreak and continued her voyage at 4:00 p.m. the same day. Aorangi made Auckland at 7:30 p.m. on the 30th and resumed her passage at 5:00 p.m. on New Years Eve.
![]() |
| Canadian Australasian May 1929 sailing list. Credit: eBay auction photo. |
1929
The Union flagship commenced her first voyage of the New Year on departure from Sydney at 1:26 p.m. on 10 January 1929, arriving at Auckland at 7:30 p.m. on the 13th after a "fair weather" passage. Sailing north the following day at 8:20 p.m. after loading another large butter consignment (26,328 boxes) for Canada, Hawaii and as far afield as Shanghai via CPR, Aorangi also took out 642 crates of New Zealand cheese, mutton and quarters of beef. Fine weather was experienced most of the way north but strong nor'easters a few days before approaching Hawaii had her two hours late arriving in Honolulu on the 25th, coming in at 9:45 a.m. instead of 7:45. Aorangi had 240 passengers aboard who enjoyed a cloudless perfect morning on arrival. Of those aboard, 100 would land there along with 280 tons of cargo and 54 embarked for the voyage to the mainland commencing at 5:00 p.m. that day. It was another fast trip north for the big motorship and she was almost 24 hours in advance of her schedule when she appeared off William Head, Victoria, at 2:00 p.m. on the 31st and alongside Pier C at Vancouver by 7:00 a.m. the following day.
With what the Times Colonist described as a "seasonable passenger list," (i.e. light), Aorangi departed Vancouver at noon on 6 February 1929 and from Victoria at 8:00 p.m. evening. She had 195 through passengers and 115 for Honolulu and was already 12 hours early when arriving there at 6:00 p.m. on the 12th. She landed 43 tons and 125 bags of mail there before sailing for the Antipodes at noon on the 13th, after embarking more than 100 passengers. Pausing at Suva on the 21st, Aorangi reached Auckland at 4:00 p.m. on the 24th and sailed for Sydney at 10:30 p.m. the following evening. Arriving there on 1 March, passing the Heads at 4:41 a.m., she was alongside by 8:00 a.m.
![]() |
| Credit: New Zealand Herald, 12 March 1929. |
When Aorangi left Sydney at 5:40 p.m. on 7 March 1929, among the 700 aboard was world champion swimmer Arne Borg, and his wife. Quite a few trans-Tasman passengers were carried on this trip, arriving at Auckland at daybreak on the 11th. When she sailed for Canada shortly after 1:00 p.m. the following day, her holds were filled with several thousands cases and bags of Pukekohe onions, totalling 400 tons, to alleviate a shortage there and unusual in that B.C. onions were a principal export crop to New Zealand in normal circumstances. She also took out 19,759 boxes of butter. Among those embarking was Sir James Mills, Union Chairman, en route to England. Aorangi, after clearing Suva, had 550 through passengers for B.C. aboard and 170 for Honolulu where she docked at Pier 8 at 8:00 a.m. on the 22nd. An unsually heavy 760-ton cargo was discharged there before she left at 6:00 p.m. Disembarking there, Arne Borg was met on the pier by Buster Crabbe in his University of Hawaii uniform who would be among his competitors in three meets.
Victoria welcomed two incoming liners late on 28 March 1929: the inbound Aorangi with 673 aboard and Emma Alexander, with 300, arriving from Californian ports. More than 12 hours ahead of schedule, Aorangi had reached William Head at 5:00 p.m. and was alongside her Rithet pier an hour later. In all, she came in with 306 First, 175 Second and 192 Third Class, one of her best lists since entering service as well as a heavy 2,758-ton cargo of which only 130 tons went ashore there before she departed for Vancouver at 9:00 p.m..
![]() |
| Credit: Times Colonist 29 March 1929. |
During Aorangi's call at Victoria, the Times Colonist interviewed arriving Union Chairman Sir James Mills, specifically regarding the still active plans to build a larger consort to the vessel:
I am no longer actively associated with the company and spend most my time in London. Sir James told Times reporter aboard the ship.
It had always been the policy of the Union Steamship Company of New Zealand to give Canada the best service possible and the company's endeavors in this respect were shown by the decision of the directors to build a larger and faster motor liner than the Aorangi for the Victoria and Vancouver route, said Sir James.
The plans, he said, were in the hands of Sir Charles Holdsworth, managing director of the company, and the contract for the construction of the giant ship would shortly be placed with British plant. The new vessel for this route will be of 20,000 tons register and will be 630 feet in length. She will have greater speed than the Aorangi and her passenger accommodation will be greater and more luxurious
Time Colonist, 29 March 1929.
It another "seasonable passenger list" but a capacity cargo with which Aorangi took away from British Columbia for the Antipodes on 3 April 1929, sailing from Vancouver at noon and at nine in the evening from Victoria. Her passenger compliment was swelled a party of 160 college students belonging to the Young Australia League returning home from a tour of the United States and Canada. Aorangi arrived at Honolulu at 5:00 p.m. on the 9th, landing 26 passengers there and departing the following day at noon. Touching at Suva on the 18th, Auckland was reached on the 21st at 5:50 p.m., late owing to stormy weather as reported by the New Zealand Herald: After leaving Suva, having embarked the retiring Governor Sir Eyre Hutson, on Thursday afternoon the vessel encountered a fresh south-west wind, which increased to moderate gale force on Friday night, accompanied by rough head seas and a high southerly swell. The conditions improved yesterday morning but the vessel's arrival was delayed by four hours. " Aorangi left for Sydney at 10:30 p.m., passed through the Heads at 5:55 a.m. and by 8:00 a.m. on the 26th she was alongside no. 5, Darling Harbour.
![]() |
| Credit: The Daily Telegraph, 3 May 1929. |
Aorangi left Sydney on at 10:00 a.m. 2 May 1929, with 355 through passengers for Hawaii and Canada. Her luck with Tasman transits deserted her when she faced strong easterlies across and she was four hours late reaching Auckland at 9:15 a.m. the morning of the 6th. Her call there was marred by the sad demise of Tom, Aorangi's ship's cat:
Tom, a tortoiseshell cat, the pride and joy of the crew of the liner Aorangi, met a tragic end this morning, being drowned in Auckland Harbour.
In pursuit of a seagull, Tom climbed to the Aorangi's rail, but the wily bird swerved wide, and a splash in the water coincided with a cry of 'Cat overboard.' The crew of the Aorangi lined the rail to watch their pet swimming bravely against the harbour swell, while in answer to a signal a Press launch in the vicinity went to the rescue. After much angling with a boathook the cat was retrieved, but apparently it had been its ninth life, and Tom, after a piteous sigh, succumbed.
There was much sorrow on the Aorangi for'ard as the result of the tragedy, as Tom had been a privileged passenger and companion. Tom's early history is a bit obscure, ' but he had been at least ten years on the trans-Pacific run, and before joining up with the Aorangi had had an honourable record with the Niagara. Rather democratic in manner, he liked the fo'c'sle the best, although occasionally he sampled the saloon end to temporarily bask in the lap of luxury. As a fighter he was something in the nature of a feline Heeney, and there are cats at places as far afield as Suva, Honolulu and Vancouver with unpleasant memories of the prowess of Tom of the Aorangi.
Auckland Star, 6 May 1929.
![]() |
| Credit: Auckland Star, 6 May 1929. |
Sadly without Tom, Aorangi left Auckland at 1:20 p.m. on 7 May 1929. She arrived at Honolulu the morning of the 17th at 6:30 a.m. and alongside Pier 7 at 8:15 a.m., coming in with the Oceanic liner Sonoma also inbound from the Antipodes. Aorangi had 575 through passengers and 175 to land there in addition to 460 tons of cargo including 600 carcasses of mutton, 1,500 quarters of beef and 2,300 boxes of butter. Upon sailing for Victoria at 5:00 p.m. the following evening, Aorangi had aboard nearly 700 passengers. Making quick work of the final leg of the voyage, she arrived off William Head at 1:00 p.m. on the 23rd or about 24 hours ahead of schedule and alongside her Victoria berth by 2:30 p.m. Capt. Crawford reported "generally fine weather and favorable winds" during the voyage. Aorangi arrived at Vancouver on the 24th.
The Victoria Daily Times reported on 23 May 1929 that Aorangi would miss one round trip and would be drydocked on arrival at Sydney. She would be replaced by Makura.
Aorangi had 430 customers (150 First, 230 Second and 60 Third) booked for her 29 May 1929 southbound voyage from Vancouver and Victoria, among them 159 members of the Young Australian League who boarded at the later port. They got a good introduction to the absolute priority that "The Mails" assumed in the grand scheme of The All Red Route as a delay in the delivery of her consignment from the East kept Aorangi tied up to her Rithet pier at Victoria for another night. Scheduled to depart at 9:00 p.m. on the 29th, she did not sail until 4:00 p.m. the following afternoon although passengers could embark as scheduled and spend the night aboard. The tardy mail was dispatched by CPR steamer from Vancouver and reached Victoria at 2:30 p.m. and immediately put aboard, all 1,600 bags of it.
![]() |
| Aorangi during her enforced layover at Victoria awaiting the outbound mail. Credit: British Columbia Archives. |
Hopes that she could make up some of the delay on the run down to Honolulu were frustrated by rough weather and expected to dock early in the morning on 5 June 1929, Aorangi did not come in until 1:00 p.m. Her Australian school boys boarded chartered street cars for an afternoon sightseeing and a swim. After landing 44 passengers, she was off at 7:00 p.m. Calling at Suva on the 14th, Aorangi reached Auckland at 12:50 p.m. on the 17th, still a day off her schedule as she was due the previous evening. Her departure for Sydney was put back to 5:00 pm on the 18th.
It had proven Aorangi's most unfortunate voyage to date and recorded two deaths en route to Auckland and one attempted suicide as reported in the Sun, 17 June 1929:
AORANGI HAS “HOODOO” VOYAGE TWO DEATHS: MAN OVERBOARD Tragedy seems to have stalked the R.M.M.S. Aorangi on her voyage from Vancouver. The vessel arrived at Auckland noon today after one of the most sorrowful voyages she has known.
Two people died on the boat, and one passenger jumped overboard. There were two passengers in the ship’s hospital when she reached Auckland, but neither was seriously ill.
The Aorangi, usually so punctual in her arrival at Auckland, was almost a day late. This was due to a delay of 24 hours at Vancouver, where the vessel waited for the mails. Two days out from Vancouver one of the boys with the Young Australia League died of Bright’s disease. He was Frank Gilmour, of Melbourne. The burial took place at sea. The next tragedy occurred when a pantryman, Thomas Quinsey, felt down a companionway and fractured his skull. His head was terribly injured, and he died within 15 minutes, though everyting was done in an effort to save his life.
As the Aorangi was passing through, the reef after leaving Suva, Fiji, Hang Huber. a second-class passenger, jumped overboard into the harbour.
The vessel was stopped and boats were lowered immediately. Huber kept afloat, but apparently did not wish to be saved. However, the crew of one boat reached him in time, and after about an hour and a-half in the water he was rescued. Huber was inclined to be violent and was placed in confinement for the rest of the voyage. He is bound for Australia.
But for the quick action on the part of the ship’s officers he would have been drowned.
![]() |
| Credit: Daily Telegraph, 25 June 1929. |
Aorangi's Hoo-doo Voyage continued even after she docked at Sydney. On 24 June 1929 it was reported that one of her Australian Youth League boys, Athol Thomas, was diagnosed with what was first thought was chickenpox but then determined to be alastrin, a mild form of smallpox. As all her passengers had long since landed, they and members of the crew were immediately ordered to report to the Health Dept. at Circular Quay, Sydney, for vaccination. Aorangi was thoroughly fumigated as well. In the end, all 488 passengers and 333 crew had been located and vaccinated.
![]() |
| Credit: Daily Telegraph, 17 July 1929. |
It was just as well that Aorangi would take a month off for her refitting alongside her Darling Harbour berth. On 17 July 1929 the Daily Telegraph reported the ship ready for her sailing from Sydney on the 25th and a call for signing on of 350 men, including 200 stewards put out. Aorangi left Cockatoo Graving Dock the next day and shifted back to her Darling Harbour wharf to begin loading. Beforehand, she was fumigated one more time on the 21st.
The Aorangi made a successful trial trip yesterday after her Diesel engines had been overhauled. Just as the gangway was hauled down at 5 Darling Harbor, a black cat was dragged aboard. It arrived at the end of the plank a little late, but a superstitious steward got busy. Captain J. D. S. Phillips (assistant marine superintendent), who has an exemption certificate, was in charge the skipper of the Aorangi, Captain R. Crawford, took second place for the day. The Aorangi left at 8,45 a.m., and went due east, She cleared the Heads at 9.49 a.m, Just outside she was doing eight knots, but soon attained 8. speed of 14 knots.
At noon, Captain Phillips gave the order to "turn round," and the liner tied up at 5 Darling Harbor at 3.30 p.m. When interviewed after the trial, the commander of the Aorangi said that it was not a speed test. The Diesel engines had been thoroughly overhauled, and it had been decided to give them a "good try out." Everything had worked well. On the trip. back to Sydney the Aorangi did knots. The captain and engineers were satisfied that everything is in order for the voyage to Vancouver, which will commence on Thursday, Four hundred tradesmen were aboard yesterday painting renovating the liner. She should look a new ship when she sails from Sydney.
Daily Telegraph, 23 July 1929.
![]() |
| Credit: Daily Telegraph, 26 July 1929. |
Ensuring a boisterous send-off for the ship on her return to service, sailing from Sydney on 25 July 1929, was the 28-strong Australian Rugby League team aboard Aorangi, bound for England. "Thousand were there to see the players off, a big contingent coming even from Queensland… And as the Aorangi pulled out from the Darling Harbor wharf, followed closely with the New South Wales League's official launch, the first thrill of the campaign moved the crowd to the last hurrahs." (Daily Telegraph).
After experiencing "moderate weather" on her trans-Tasman passage, Aorangi reached Auckland at 6:20 a.m. on 29 July 1929, with one stowaway, 104 to land there and 320 through passengers. She left at 11:30 a.m. the next day.
The Sun (Auckland) of 29 July 1929 had a wonderful write-up on the ship and her recent refurbishing:
Since the R.M.M.S Aorangi was commissioned in December, 1924, she has travelled 450,099 miles on voyages from Vancouver to Sydney and back.
This morning the Pacific liner looked like a new vessel when she reached Auckland on her first voyage after an extensive overhaul and refit in Sydney.
On June 22 the Aorangi went into dry dock at Sydney and remained there until July 22, when she was taken on a trial run out through the Sydney Heads and back into the harbour, to test her engines.
On that run she had a skeleton crew and while the trials were being carried out hundreds of workmen, including painters and decorators, electricians and carpenters, and other tradesmen, went about their duties refurbishing the interior of the ship.
Necessary-replacements were made to the engine while the vessel was in dock, and there will be no doubt about her maintaining the 16.42 knots an hour which she has registered during more than four years on the trans-Pacific run.
A wonderful amount of food is consumed on each trip of the Aorangi. The travelling public evidently prefers poultry, asparagus and ice-cream in quantity.
Here are some of the food figures for a round trip, Sydney to Vancouver and back:
Fowls and chickens, 5½ tons.
Ducks and turkeys, 4½ tons.
Game, 3 tons.
Asparagus, 2,000 tins.
Ice cream, 1,600 quarts.
Beef and mutton. 20 tons.
Pork and veal, 5½ tons.
Bacon and hams, 3 tons.
Fish, 16 tons.
Potatoes. 40 tons.
Eggs 100,000.
Biscuits and cheese, ¾ ton each.
Coffee ½ ton.
Jam and marmalade. 2 tons.
Flour and oatmeal, 9 tons.
Fruit, 560 cases
![]() |
| Aorangi arriving at Victoria. Credit: University of British Columbia, Wallace B. Chung and Madeline H. Chung Collection. |
With her clean hull, Aorangi was back to fast motoring and although scheduled to reach Honolulu on 9 August 1929 in the morning and then at 10:00 a.m. on the 8th, she swept past Diamond Head at 8:00 a.m. and quickly alongside Pier 7 to land 170 passengers, 280 tons of cargo and 972 bags of mail. She added a few score to the 400 through passengers before she sailed later that day. Keeping up the pace, Aorangi raced northwards and had her 450 passengers at Victoria the morning of the 15th and at Vancouver late that afternoon, a day ahead of schedule.
It was a sensational performance as described by the New Zealand Herald on her return to Auckland on 9 September 1929:
After five weeks' overhaul at Sydney the Aorangi resumed running from that port on July 25. She sailed from Auckland on July 30, and on the following day she reeled off 422 knots for the 24 hours, at an average speed of 17.67 knots. The steaming time to Suva was 2 days 17 hours 43 minutes, at an average speed of 17.3 knots. From Suva to Honolulu the steaming time was 6 days 17 hours 36 minutes, at an average speed of 17.2 knots. A better average was maintained between Honolulu and Vancouver, the steaming-time between the two ports being 6 days 2 hours 11 minutes, and the average speed 17.45 knots. The Aorangi arrived over 12 hours ahead of schedule and beat her previous best record time to Vancouver by two hours.
With the largest passenger list of the year to date for the Antipodes, Aorangi cast off from Vancouver's Pier C on the late afternoon on 21 August 1929, many hours late after a rockslide near Yale blocked the CPR line into the port and she had to wait for passengers and mails on the incoming trans-continental trains. She did not clear Prospect Point until 7:00 p.m.. On leaving Victoria the next morning, Aorangi numbered 575 passengers aboard with another 153 embarks expected at Honolulu. She went out with a heavy cargo of fish, grapes, shelled walnuts, the first of new crop of British Columbia onions and a large consignment of frozen strawberries. Arriving at Honolulu at 7:30 a.m. on the 28th, she landed 135 of her passengers and still had 430 through fares aboard on departure at 4:00 p.m. that day.
After calling at Suva on 5 September 1929, Aorangi reached Auckland on the 8th at 4:25 p.m. The New Zealand Herald (9th) reported on her near record run south:
... the Aorangi should have sailed from Vancouver at noon on Wednesday, August 21, and cleared Victoria at nine o clock on the same evening. Owing to the connecting mail train being derailed she did not leave Vancouver until 7.30 p.m. and Victoria at 4.30 next morning, seven and a half hours behind schedule. The delay prevented the Aorangi from reaching Honolulu on the evening of Tuesday, August 27, and clearing the port at noon on the following day. Accordingly the vessel's speed was regulated so that she arrived at daybreak on August 28.
The voyage was resumed at four o'clock on the same afternoon, the vessel being then only four hours behind her usual time. An adverse current was encountered between Honolulu and Suva, and the steaming-time between the two ports was 6 days 21 hours 58 minutes, at an average speed of 16.74 knots. Suva was cleared last Thursday evening, but there were head winds during the first two days.
In spite of the delay the Aorangi made the run to Auckland in 2 days 20 hours 42 minutes, at an average speed of 16.69 knots. Had it not been for the delay at Vancouver the vessel would have reached Auckland at 11 o'clock yesterday morning, instead of at 4.25 in the afternoon. The greatest speed ever attained by the Aorangi was 439 miles in 24 hours during a trip from Auckland to Sydney in May, 1929. The average for the 24 hours was 18.3 knots, but the trip between the two ports was not a record.
Heavy rain at Auckland delayed cargo working and Aorangi was not able to depart for Sydney until 10:30 p.m. on 10 September 1929. Passing Sydney Heads at 5:00 a.m. on the 14th, she tied up alongside no. 5 Darling Harbour at 8:30 a.m.
Aorangi commenced her next voyage north from Sydney at 4:00 p.m. on 18 September 1929 and, "after a fine weather passage," arrived at Auckland at 10:00 a.m. on the 23rd having aboard yet another solitary stowaway who was discovered in the Second Class accommodation only the previous day and stated it was intention to work his passage to Canada. Instead, he was fined the amount of the fare to Auckland, 8 or 14 days in jail. Aorangi sailed northbound at 11:50 a.m. on the 24th.
Coming alongside Honolulu's Pier 7 at 4:00 p.m. on 3 October 1929, Aorangi had only 103 passengers aboard, landing 33 of them there and embarking twice the number for the mainland before sailing at noon the following day. With 173 passengers (72 First, 44 Second and 62 Third), she reached Victoria at 11:00 a.m. on the 10th, almost 24 hours in advance of schedule, leaving for Vancouver at 1:00 p.m., where she arrived at 7:00 p.m.
Capt. Robert Crawford, master of the big motor ship, reported an uneventful voyage from 'down under.' The weather was exceptionally good all the way he said, and the passengers had enjoyed a beautiful trip. On account of the rather small list in all classes there had not been much excitement to the voyage, although was pleasant and restful one. Smiling skies and smooth a had enabled the travelers to enjoy the decks to the utmost, and for most of the days the passengers sat in the deck chairs enveloped in cozy rugs while they watched the more energetic play shuffleboard and deck tennis.
Times Colonist, 10 October 1929.
Famed pilot of The Southern Cross, Charles Kingsford-Smith embarking aboard Aorangi and departing Vancouver in October 1929. Credit: Vancouver City Archives collection.
It was another busy sailing south for Aorangi from Vancouver, her 16 October 1929 departure attracting 640 fares, famously among them the Australian pilot Maj. Charles E. Kingsford-Smith, accompanied by his young niece Miss Beris Kingsford-Smith. When she cleared Pier C she at 1:00 p.m. she also took out 18,000 cases of British Columbia apples and a large consignment of onions from the Province. Aorangi had 56 passengers, seven tons of cargo and three automobiles to land upon arrival at Honolulu on the 22nd, coming in a 6:00 a.m. and sailing at 4:00 p.m.
![]() |
| The Motor Ship Era: Aorangi and the New Zealand Shipping Co.'s brand new Rangitiki at Auckland. Credit: Evening Post, 7 November 1929. |
Much public interest was taken yesterday in the New Zealand Shipping Co.'s big liner Rangitiki and the Royal mail liner Aorangi, both berthed at the Prince's wharf. During the afternoon a large number of visitors were shown over the Rangitiki, and between the hours of 2 p.m. and 5 p.m. there was a queue, for the greater part of the time, extending from the gangway to the wharf entrance.
The Rangitiki and the Aorangi are motor liners, and, besides being built to the latest ideas, are the largest vessels running to the Dominion. The Aorangi has a registered tonnage of 17,491, and the Rangitiki, of 16,755. Their dimensions are: Aorangi, length 580.1 ft; breadth, 72.2 ft; depth, 43.4 ft. Rangitiki. length, 531 ft; breadth 70.2 ft; depth, 35.lft. The Aorangi has a speed of 17 knots and the Rangitiki of 15 knots.
Auckland Star, 4 November 1929.
Pausing at Suva on 1 November 1929, where Kingsford-Smith was a guest at luncheon in his honour by the Chamber of Commerce, Aorangi came into Auckland on the 3rd at 2:00 p.m., docking at Prince's Wharf at 3:50 p.m. and joining the brand new New Zealand Shipping Co. Rangitiki in harbour, ushering in a true golden era for New Zealand liners. Two Tiger Moth aeroplanes circled Aorangi at low altitude in salute of Kingsford-Smith. Aorangi departed for Sydney at 5:00 p.m. the following day.
The New Zealand Herald (4 November 1929) had another superb accounting of Aorangi's voyage south:
Stormy weather between Vancouver and Honolulu was experienced by the Royal Mail liner Aorangi, which reached Auckland yesterday afternoon. During the storm tho wind varied between southwest and north-west, and tho rough beam seas caused the vessel to roll considerably, much to the discomfort of the large number of passengers.
The boisterous conditions delayed the Aorangi's arrival at Honolulu, which was reached on schedule instead of the vessel being ahead of time, as is usual. Instead of berthing at. Honolulu in the evening she berthed the following morning. The voyage, however, was resumed on schedule and five hours were made up on the passage to Suva, which was reached at 11 o'clock last Thursday morning, after a fast run, the speed between Honolulu and Suva averaging 16.98 knots.
After leaving Suva at five o'clock on Thursday evening fine weather prevailed until Saturday morning, when a moderate to fresh south-west wind and a head swell were encountered, and delayed the Aorangi's arrival at Auckland by about, two hours. The average speed from Suva to Auckland was 16.3 knots.
![]() |
| Aorangi passing North Head, Auckland. Credit: Auckland Weekly News, 6 November 1929. Credit: Auckland Libraries. |
Aorangi arrived at Sydney on 9 November 1929, docking at No. 5, Darling Harbour at 8:30 a.m.
![]() |
| Prime Minister of Northern Ireland, Lord Craigavon, and Lady Craigavon, aboard Aorangi. Credit: eBay auction photo. |
Leaving in one of the heaviest downpours experienced in Sydney in sometime, Aorangi backed out of No. 5, Darling Harbour, at 5:00 p.m. on 14 November 1929. Among the nearly 600 aboard were the new Governor of Fiji, Sir Murchison Fletcher and Lady Fletcher, and Lord Craigavon, Prime Minister of Ulster, and Lady Craigavon. By the time the liner cleared the Heads at 5:50 p.m., it was impossible to see more than half a mile in the heavy rain. Aorangi docked at Auckland on the morning of the 18th, landing an exceptionally large number of passengers-- 426 in all--- leaving 150 through passengers.
Aorangi was once again the last mailship to leave New Zealand in time for post to arrive in London in time (19 December) for Christmas. Her sailing on 19 November 1929 was postponed to 3:00 p.m. She went out with 1,287 bags, 667 from the South and 600 from Auckland; constituting a record, and also took out 25,680 boxes of butter and 388 crates of cheese, a quantity of each was destined for the Orient via CPR. It was light compliment of passengers and when Aorangi reached Honolulu on the 29th, docking there at 5:30 p.m., she had just 124 aboard of whom 75 disembarked there. She continued her voyage to the mainland at noon.
It was another fair weather passage accomplished at a good clip and Capt. Crawford brought Aorangi to William Head at 10:15 a.m. on 5 December 1929, near 24 hours ahead of time, only to have to anchor owing to thick fog and it was not until 12:15 p.m. that she was alongside her Rithet pier. It was so foggy that the pilot who was sent to meet her at Race Rocks missed her and Capt. Crawford brought her into the quarantine station and then anchored at Royal Roads, off the entrance to Esquimalt to wait out the fog and her pilot. Aorangi managed to arrive in Vancouver early the same evening, still hours early.
![]() |
| Aorangi ready to sail to southern seas in the middle of a snowstorm in Vancouver. Credit: Auckland Weekly News, Auckland Libraries. |
Doubtless the envy of the city's residents just digging out of an eight-inch snowstorm, Aorangi's passengers were off to the warm South Seas on 11 December 1929. Leaving Vancouver at noon and Victoria shortly after 8:00 p.m., she had 154 First, 55 Second and 116 Third Class aboard, including the Canadian lawn bowling team of 28 who were to compete in Australia and New Zealand. Less happy to be aboard were one family and two men being deported to Australia. Aorangi in a hurry to reach sunny, warmth got into Honolulu at 7:00 p.m. on the 17th, already a day ahead of schedule (but two hours later than expected owing to high winds), landing 32 passengers and had 290 remaining when she resumed passage at 1:00 p.m. the next day.
![]() |
| Credit: The Vancouver Sun, 11 December 1929. |
The greatest calendar reformer of all time sailed from Vancouver at noon for Australia. He is Capt. R. Crawford, master of R.M.S. Aorangi, Sydney bound.
Compared to him, Moses Cotsworth, who proposes to juggle a mere extra month into the world's annual round of pleasure or woe, is a non-starter.
Capt Crawford will soon be acclaimed by his passengers and crew as performer of the greatest act of legerdemain since miracle time-- he intends to create, actually create, a real Christmas Day for them them out of a chronological vacuum.
This is the situation: The Aorangi will cross the 180th Meridian of longitude just as the dawn of Christmas is about to shove across the horizon. In order to balance his time sheets Old Man Greenwich will forcibly shove Father Christmas down under and, ordinarily speaking, the Aorangi's complement would fail to celebrate the Big Day. '
But Capt. Crawford is not dismayed. For the purposes of festivity he intends, on his own responsibility, to arbitrarily insert an odd December 25 into the month.
Instead of jumping from December 24 to December 26, as he should do, the captain will move the calendar from December 23 to December 25. He says that he does not mind doing without a legal Christmas Eve, but he must have his Christmas Day. Captain Crawford faced a similar situation once before, for he has been on the run between Vancouver and Australia for years.
Two years ago one of the White Empresses eastbound from Yokohama met the problem by an adroit side stepping of dates, as did the Japanese skipper of an N.Y. K. passenger vessel several years ago. The Aorangi is all prepared for Christmas.
In her holds are vast numbers of British Columbia Christmas trees for discharge at Honolulu, to spread the Yuletide gladness in the Sandwich Islands.
The Province, 11 December 1929.
![]() |
| Aorangi and the new Rangitata at Auckland. Credit: Auckland Star, 30 December 1929. |
Aorangi, from Vancouver, and the new Rangitata from London, arrived at Auckland on 29 December 1929, the C-A flagship coming in at 3:10 p.m. and having 1,775 bags of American and English mail to land there. She averaged 16.58 knots on the trip down from Vancouver but 16.82 on the passage to Honolulu despite a southwest gale. Aorangi sailed at 11:00 p.m. for Sydney on the 30th.
She had the long life but the prosperity that dwindled. Her engines started giving trouble early--and the trouble dogged her all the life. But she was a comfortable ship, and a happy ship. She then had accommodation for more than 900 passengers, and she was generally a full ship when she sailed. She had exceptionally generous space for refrigerated cargo, and in those days Australia was feeding the American army stationed in Hawaii with beef and lamb, and New Zealand was supplying the butter.
The Daily Telegraph, 13 June 1953.
Like all of her contemporaries conceived and built during the boom times of The Roaring 'Twenties, Aorangi came of age during the rigours the ensuing global depression that was reflected in diminished world trade and passenger traffic. Canadian-Australasian was strengthened, corporatively at least, by being reorganised in 1931 with part ownership by Canadian Pacific and inclusion of the C-A service into CP's vast agency network. The Canadian connection was strengthened with the headquarters of C-A now in Vancouver although the management of Aorangi and Niagara remained firmly with Union S.S. Co.
This new corporate alliance anticipated potent new competition when the moribund Matson-Oceanic San Francisco route was revived to an astonishing degree by the superb new Mariposa and Monterey in 1932-33 which brought about the cessation of Union's historic San Francisco-Antipodes service within three years. In 1935, at least, the operational subsidy paid by the Dominion Governments was considerably increased with Canada's share rising to $300,000 per annum (from $200,000) to maintain the C-A service. Yet, by late in the decade, improving traffic had even revived talk of new tonnage for both C.P.'s Pacific and C-A's Antipodes services. The All Red Route carried on throughout a decade as challenging and eventful as it would be for R.M.M.S. Aorangi.
1930
Ringing in the New Year and a new decade crossing the Tasman, Aorangi and her passengers arrived in Sydney the morning of 3 January 1930.
Aorangi's first northbound sailing for 1930 got underway at 5:50 p.m. 9 January from Sydney's Darling Harbour.
There was an amusing incident at 5 Darling Harbor yesterday afternoon as the Aorangi was leaving for Vancouver. Two men had arrived late, and a rope ladder was put over the side. They commenced to clamber aboard. and had almost reached the rail when it looked as if they would overbalance.
A sturdy Maori boatswain grabbed hold of both men and pulled them over the rail. 'The boatswain did not use any gentle methods.' said an eye-witness, 'but he got the men aboard, and the large crowd on the wharf thoroughly enjoyed the incident.'
The Daily Telegraph, 10 January 1930.
Arriving at Auckland on 13 January 1930 at 5:40 a.m., an early Aorangi anchored in the stream for three hours before tying up at Prince's Wharf. She sailed north at noon the next day. Getting into Honolulu 12 hours ahead of schedule just before 5:00 p.m. on the 23rd, she landed 90 passengers there before sailing at noon the next day. Making knots in fine weather, the northbound Aorangi clipped another 12 hours off her timetable, reaching William Head at 10:00 a.m. on the 30th and alongside by 11:30 a.m., bringing in 202 (65 First, 44 Second and 93 Third) passengers, 2,400 tons of cargo and 600 bags of American mail which went ashore at Victoria for transshipment via CPR steamer to Seattle. Aorangi left for Vancouver at 12:30 p.m., arriving there at 6:00 p.m.
"With a good general cargo and a fair passenger list," (Times Colonist), Aorangi was off again to the Antipodes, departing Vancouver midday on 5 February 1930 and from Victoria at 8:00 p.m. that evening. She arrived at Honolulu at 6:00 a.m. on the 12th and alongside by 7:30 a.m., landing 46 passengers. Among those embarking there were the famous golfers Walter Hagen and Joe Kirkwood. She departed at 4:00 p.m. and reached Auckland at 5:00 p.m. on the 23rd.
A sensation was caused in shipping and other circles last evening, when it became known that the Health Department had refused pratique to the R.M.M.S. Aorangi. When the liner steamed majestically up the harbour at a little after five o'clock last evening and was cheered by the hundreds of excursionists on board the various pleasure craft, there was no suspicion that all the elements of a grave situation were at hand.
Auckland Star, 24 February 1930.
It was the beginning of one the ship's more notorious arrivals in New Zealand when it was discovered that a lady passenger, travelling Second Class, who boarded the ship in Vancouver and intended to land at Auckland, had developed smallpox after leaving Suva.
When the Aorangi arrived at 5.50 p.m. she was boarded by Dr. J. Boyd, of the Health Department, who took the place of Dr. G. Graham Russell, port health officer, who is indisposed. After an inspection occupying half an hour, Dr. Boyd summoned Dr. T. J. Hughes, who arrived at the ship's side within 20 minutes, and they had a consultation lasting over an hour. At 8 p.m., more than two hours after the vessel's arrival, the doctors returned to the shore. The liner hoisted her anchorage lights, and it was announced that slip would remain in the stream until this morning. Simultaneously, the launch conveying the customs officers, who had not been permitted on board, returned to Queen's Wharf.
Dr. Hughes meanwhile obtained confirmation of his action from the Director General of Health, Dr. T.H.A. Valintine, and at 9.30 p.m. paid a second visit to the ship in company with Dr. E. B. Gunson, consulting physician. They returned at 10 o'clock, when Dr. Hughes announced that the vessel was under quarantine. She would have to go to the quarantine station at Motuihi, where the passengers would be landed and the vessel quarantined.
The passengers will be vaccinated while on the island and the ship thoroughly fumigated, said Dr. Hughes. All passengers booked for New Zealand will have to remain on tho island in the meantime. Accommodation in the quarantine quarters there is good, and there is ample room for all obliged to remain there. The victualling of passengers during their enforced stay, which may extend for from two to three weeks, will be a matter for arrangement between the Health Department and the Union Company.
After the fumigation of the Aorangi is completed the passengers booked for Australia will be re-embarked. The steamer will then return to Auckland and anchor in the stream, not being permitted to berth.
New Zealand Herald, 24 February 1930.
On the orders of Dr. T.J. Hughes, District Medical Officer of Health, the ship was ordered into quarantine and sailed the following morning to the quarantine settlement on the island of Motuihi. There, all of the 270 passengers were landed by ship's lifeboats, towed by motor launches or tugs. Those bound for Australia were all vaccinated and could rejoin the ship when she sailed for Sydney but those for New Zealand, numbering 144, faced a three-week enforced sojourn on the isolated island. No cargo could be landed as Aorangi was not permitted alongside, but her 1,500 bags of mail was taken ashore by tender.
There was excitement and not a little concern last evening and this morning aboard the Aorangi when passengers learnt that they were to be taken to a little island called Motuihi, many arrangements made long beforehand necessarily being upset. Curiosity was gratified this morning at an early hour when the vessel lifted her anchor at 7.20 and made clown the harbour towards the quarantine station. Her boats were made ready for lowering and at nine o'clock the liner cast anchor half a mile off the south end of the Motuihi wharf, this being the first experience of such quarantine in her career.
Auckland Star, 24 February 1930.
![]() |
| Aorangi anchored off Motuihe Island. Credit: Donald Jenkins Collection, Auckland Library. |
![]() |
| Aorangi as seen from one of her departing lifeboats. Credit: Donald Jenkins Collection, Auckland Library. |
![]() |
| Credit: New Zealand Herald. |
![]() |
| Passengers disembarking Aorangi onto lifeboats. Credit: Donald Jenkins Collection, Auckland Library. |
![]() |
| Credit: Auckland Weekly News, Auckland Library. |
![]() |
| Passengers aboard a lifeboat ready to cast off from Aorangi. Credit: Donald Jenkins Collection, Auckland Library. |
Aorangi was anchored just 500 yards from Motuihi wharf and the Auckland Star (25 February 1930) described the disembarkation process:
A misty vain began to fall as two engineers were seen to climb into motor launch resting in the ship's davits.That was the first real movement of any kind. Then three lots of lifeboats on both sides of the ship were uncovered. Half an hour later the pilot boat Waitmata arrived from Auckland; but as the pilot had not been vaccinated he could not leave the Aorangi. Just on eleven o'clock the real business began—the port health launch with health officers, health inspectors, a nurse and fumigating gear arrived, and all went aboard. Twenty minutes later the Health Department's launch, containing two ship's officials, health inspectors and gear, proceeded to the island. Meantime the pilot's arm had been 'pricked,' and he had been fumigated. Off he went to Auckland.
About this time there was a general exodus from the ship's side, and the news was soon wafted across the water that 'that crowd were having their arms punctured.' While this was being done some of the stewards were mustered with a view of sending them to the island to assist in looking after the 140 odd passengers who will be quartered there for a little while. Fifteen of these men in charge of the second-class steward on the Aorangi, struggled down the gangway, with their kit-bags and suit-cases, into the Health Department's launch, and proceeded to the quarantine station.
It was now lunch time, and the ship's decks were completely deserted, with the exception of the officers of the anchor watch. For three-quarters of an hour there again appeared to be 'nothing doing,' and then the Aorangi's motor launch was seen to move in its davits. In a few seconds it was in the water, and, in charge of a junior officer and engineer, it was given a 'try out' on the sea.
At 1.23 p.m. the first lifeboat was lowered on the port side, and this was quickly followed by the second. There was a 'bit of a jobble on,' and it was no easy matter to handle the boats. One commenced to drift away from the 'mother ship' and was picked up by the fussy little launch and taken back.
One by one the passengers began to descend the gangway, helped by ship's officers, sailors and stewards —it was good boat drill for the crew. First of all came an old white-haired lady grasping a brown paper parcel and her umbrella. She was given every consideration, and there was neither hurry nor bustle. Then followed the other passengers —men, women, children and babies in arms. Big sailors were to be seen helping mothers with babies. Little children were taken up in strong arms and carried carefully down the slanting gangway and handed from one to another in the rocking boats. Even the kiddies' toys were not forgotten, one one little chap clutched a toy aeroplane with one arm as tightly as he did the sailor's neck with the other. Indians, whites and members of other races; all went into the boats together. There was an Indian woman in characteristic dress and headgear; and there again was a Chinese. It was the same as in a shipwreck —no distinction of class, creed or colour, all helping one another.
Off to the Island. Shortly after2 p.m. the two boats in tow of the Health Department's launch Presto hauled off from the Aorangi's side amidst cheers, and farewells from those left on board.
Meantime the Aorangi's own launch was temporarily out of commission, engine trouble having developed.
By half-past two the first boatload of people had commenced to land on Motuihi Wharf. Their gaiety had been subdued in the run across on the choppy sea, and they walked in twos and threes up the wharf and along the shore to their new island home amongst the trees on the hill. Fortunately the rain, which had been falling intermittently in a light drizzle, had now cleared off, and the sun was shining brightly.
Back came the lifeboats in tow of the Presto, this time to the starboard side of the Aorangi. The ship's winches began to rattle, and sling after sling of luggage was hoisted up out of the hold and lowered into the small boats, which heaved up and down in the fair sea which was running. At five o'clock luggage was still being taken ashore.
On the wharf there was a trolley on rails. Piled up with cabin trunks and boxes of all description it was run to the head of the wharf, where the cargo was transferred to an old spring-cart drawn by two sleepy-looking horses and taken to the station.
Nothing was forgotten, and stores, etc., were taken from ship to shore in other boats. Amusements for those in quarantine, such as quoits and other games, were also taken ashore.
During the late afternoon many launches arrived from the city laden with all kinds of stores for the ship and the island. The Aorangi took on board hundreds of gallons of fresh milk, scores of pounds of fresh vegetables and dozens of boxes of fruit. Several cooks and waiters were sent down from Auckland to the island, and they were accompanied by quantities of stores for the station.
The whole of the proceedings up to this stage were watched with interest by the remaining passengers, and a considerable number of the crew.
Other passengers were to be observed playing deck games or reading. Several of the Auckland passengers who would have come ashore on Sunday were still on the Aorangi when the last launch for the city left the ship. It was learned subsequently that all the second and third-class Auckland passengers, and many of those in the first saloon, had gone ashore to the island earlier in the day.
On the port side there was an element of excitement just before five o'clock. Dr. Hughes, medical officer of health for Auckland, had arrived by special launch and had gone aboard the Aorangi. He had previously visited the island to see personally to the comfort of those who were to be quarantined there, and also to inspect the quarters of the smallpox patient. Soon after he had arrived back on board the liner a stretcher was observed in the vestibule. The doctor, followed by a stewardess, came down the gangway, and then bedding, bed gear, etc., and the patient's luggage was handed down to the launch.
So ended a strenuous day for all concerned; but more particularly for the ship's company and the health officials. Night closed down and lights began to twinkle across the water from the quarantine station, which is to be the home for close on 200 people for some days to come.
Auckland Star, 25 February 1930.
![]() |
| Aorangi passengers at Motuihe Quarantine Station. Credit: Donald Jenkins Collection, Auckland Library. |
![]() |
| Passengers for Sydney embarking on the ferry Condor at Devonport to take them out to Aorangi. Credit: New Zealand Herald, 26 February 1930. |
Aorangi was fumigated by 4:00 p.m. on 24 February 1930, including all accommodation, public rooms and holds being treated with formalin as well passengers' baggage before it was taken to the quarantine centre. All her Australian bound passengers and new embarks were vaccinated before she departed at noon on the 25th. Although 200 were originally booked, cancellation reduced the number to 78 embarking at Auckland who were taken out from Sheerlegs Wharf, Devonport, to the anchored liner by the ferry Condor at 11:00 a.m.. Aorangi having returned at 7:00 a.m. from Motuihi and anchored in the stream off Devonport to embark here passengers and sailed at 2:00 p.m.
![]() |
| The pilot steamer Captain Cook meets Aorangi on arrival at Sydney Heads. Credit: The Daily Telegraph, 1 March 1930. |
Now a "marked ship," when Aorangi arrived off Sydney Heads Sydney at 3:00 p.m. on 28 February 1930, it was announced she would be quarantined for 24 hours and passengers not able to land until late the next day. She was met off the Heads by the pilot steamer Captain Cook and led to an anchorage off North Head. Her passengers were landed at the quarantine station there and the conditions there elicited complaints, including from golfer Joe Kirkwood: "Indians, Japanese, and Fijians occupying the same quarters as white passengers, using the same showers, different only in having their meals in a separate canteen. This is the chief complaint at present of quarantined Aorangi passengers at North Head, according to Mr. Joe Kirkwood, international golfer, in a telephone interview last night with the 'Pictorial.' Conditions at first, he said, were outrageous. The restrictions were unnecessary and a shocking advertisement. We set up a committee yesterday, said Mr. Kirkwood. Their representations have wonderfully improved conditions, but the fleas are appalling." (The Daily Telegraph, 4 March 1930). However, other passengers wrote to Sydney papers stating they were perfectly happy with the conditions. Meanwhile, their opposite numbers quarantined in New Zealand "paid glowing tributes to the accommodation and food."
![]() |
| Aorangi off North Head quarantine station. Credit: National Library of Australia. |
![]() |
| Aorangi coming into Darling Harbour, 1930. Credit: National Library of Australia. |
Finally released from Quarantine on 1 March 1930, Aorangi came alongside No. 5 Darling Harbour. She went into Cockatoo Dock on the 4th to have her hull cleaned and painted prior to her departure from Sydney on the 6th at 6:25 p.m.. She went out commanded by Capt. William Martin (normally commanding Tahiti) as Capt. Crawford was undergoing an operation. All of her long suffering quarantined passengers were finally released by the 8th. With 450 passengers aboard, Aorangi arrived at Auckland at 6:15 a.m. on the 10th.
![]() |
| Capt. William Martin. Credit: Wellington Maritime Museum. |
An announcement that the Aorangi was a clean ship and that there was no illness on board was made by Dr. J. A. Watson, acting-port health officer, after an inspection of the vessel on her arrival from Sydney yesterday morning. Dr. Watson relieved Dr. G. Graham Russell, port health officer, who is indisposed. A thorough examination was made of passengers and crew. Particular attention was paid to foreheads and forearms, where smallpox symptoms are likely to appear, and women who wore wearing hats were required to remove them for the examination. There were over 450 passengers on tho Aorangi, 127 of whom landed at, Auckland. The members of tho crew who were detained at the quarantine station in Sydney rejoined the vessel before she left Sydney on her voyage to Auckland. Those who were left on Moutihi Island a fortnight ago to attend to tho passengers detained there will rejoin the vessel before she leaves for Suva, Honolulu and Vancouver this afternoon.
New Zealand Herald, 11 March 1930.
Aorangi she sailed northbound at 11:00 a.m. on 11 March 1930. With nary a mention of smallpox or quarantine, the liner came into Honolulu on the 21st, coming alongside Pier 7 at 8:00 a.m. and disembarking "an unusually large list" of 131 passengers before she resumed passage at 5:00 p.m., having aboard 592 passengers (292 First, 146 Second and 134 Third).
There were 592 passengers in all classes aboard the ship when she docked today. All were on deck as the ship came up the Straits from Cape Flattery, and, coming up from William Head, all enjoyed the invigorating sunshine after dull days at sea.
Times Colonist, 27 March 1930.
Back to normal in every respect, the big motorship was on full revs north, reaching William Head at 11:00 a.m. on 27 March, a now traditional 24 hours in advance of her schedule, and enjoying fine weather when many North Pacific liners were reporting severe storms. Aorangi came into Victoria along with the NYK liner Shidzuoka Maru and Emma Alexander. The Union flagship came with a 2,000-ton cargo, mostly New Zealand butter and frozen mutton.
Thousands of Vancouver citizens, attracted by the beautiful weather, visited Pier A of the Canadian Pacific Railway on Friday night to see the R.M.M.S. Aorangi of the Canadian-Australasian Royal Mail Line, dock from the Antipodes. The liner had the largest passenger list she has brought for some months, nearly 400 passengers from Australia, New Zealand, Fiji and Hawaii being on board.
The Province, 28 March 1930.
Again commanded by Capt. W. Martin (as far as Sydney when Capt. Crawford would rejoin the ship), Aorangi went out with another "fair list" of passengers, departing Vancouver at noon on 2 April 1930 and Victoria at 9:40 p.m. that evening by which time she had aboard just 40 First Class, 40 Second Class and 25 Third Class aboard. She was somewhat delayed in departing as due to port congestion at Victoria with only two deep water slips, she docked at Pier 1 on arrival and had to shift to Pier 2 to load cargo once Pacific Shipper had cleared the wharf. There were but nine landing at Honolulu on arrival at 6:00 p.m. on the 8th, and embarking 27, she was off the following day at noon.
Calling at Suva on 17 April 1930, Aorangi came into Auckland at 9:30 a.m. on the 20th and alongside Prince's Wharf at 10:30 a.m. after making an especially smart passage. Her arrival occasioned a wonderful "log" of her performance by the Auckland Star on this otherwise routine voyage down from Vancouver:
Good speeds were maintained during the voyage. Her average speeds were: Vancouver to Honolulu, 16.5 knots; Honolulu to Suva, 17 knots ; Suva to Auckland, 17.3 knots. The fastest day's run during the voyage was made on the passage from Honolulu to Suva, the distance travelled in 24 hours being 428 knots at an average speed of 17.6 knots. The steaming time from Suva to Auckland was two days, 18 hours, 21 minutes, which was only 34 minutes slower than the record time she took between the two ports on her maiden voyage. The speed on that occasion averaged 17.43 knots during the passage between, the two ports. The greatest speed ever attained by the Aorangi in one day was 439 knots in 24 hours during a trip from Auckland to Sydney in May, 1928, when the average for the 24 hours was. 18.3 knots.
Auckland Star, 21 April 1930.
![]() |
| Aorangi entering Darling Harbour, Sydney, on ANZAC Day, 25 April 1930. Credit: Frederick Garner Wilkinson photograph, Australian National Maritime Museum Collection. |
In all, she made the trip from Vancouver to Auckland in 15 days 16 hours 38 mins. At an average of 16.88 knots. The 17.3 knots maintained down from Suva was the best performance on that sector since her maiden voyage. Aorangi left for Sydney at 12:35 a.m. on 22 April 1930 where she came alongside her Darling Harbour berth at 9:25 a.m. on the 25th, suitably on Anzac Day.
"With a big compliment of passengers," (Daily Telegraph), still under the command of Capt William Martin, Aorangi sailed from a chilly Sydney at 5:10 p.m. on 1 May 1930. When she arrived at Auckland at 6:15 a.m. on the 5th, she had 141 to land there plus one stowaway. She sailed north the following day at 1:15 p.m., having embarked 165 passengers. Martin brought Aorangi up to Honolulu at a good clip fast and arriving there late on the afternoon of the 15th, she was more than 12 hours early. She landed 140 passengers and 330 tons there before departing on the 16th at 4:00 p.m.
Now a full 15 hours ahead of timetable, Aorangi came off William Head, Victoria, at 3:00 p.m. on the 22 May 1930, after a voyage up from the South Seas "made under excellent sailing conditions to the complete enjoyment of the large list of passengers." (Victoria Daily Times). She had one of the best northbound lists that year, arriving with 202 First, 160 Second and 185 Third Class passengers, fully two thirds of whom were through routed to the U.K. and Europe via CPR or other connections. In her holds was 1,600 tons including 20,000 boxes of New Zealand butter despite the new Canadian duty on it. Aorangi docked at Vancouver late that evening.
Southbound passenger loads remained on the light side and there were just 185 takers for Aorangi's next voyage to the Antipodes, departing Vancouver at noon on 28 May 1930. There were 35 passengers, 19 bags of mail, eight tons of cargo and an automobile to land at Honolulu where she docked at 2:00 p.m. on 3 June, and 150 through passengers.
Aorangi had a rough passage south and delayed in reaching Auckland by heavy southerly gales and head seas after departing Suva at 4:30 p.m. on 12 June 1930, not arriving until 9:30 p.m. on the 15th with 261 passengers , eight hours late, and did come alongside Prince's Wharf until 6:30 a.m. the next morning to land 107 passengers for the port as well as 2,827 bags of mail. Of this unusually large consignment, 1,866 bags came aboard at Vancouver and 961 bags of American mail which was transhipped from the Oceanic liner Sierra at Honolulu which permitted that mail to reach New Zealand eight days earlier than it would have been transferred at Sydney. The weather conditions were rough enough to cut her speed to 15 knots for the passage from Suva. From Vancouver to Honolulu, Aorangi averaged 16.56 knots and from there Suva, 16.7 knots. Aorangi left Auckland at 4:00 p.m. on 16 June and reached at Sydney at 8:30 a.m. on the 20th. Among those landing there were 67 New Zealand tourists visiting New South Wales, Queensland and Victoria.
![]() |
| Aorangi passing under the Sydney Harbour Bridge then under construction, c. spring 1930. Credit: eBay auction photo. |
British Columbia bound, Aorangi cleared Sydney Heads in the late afternoon of 26 June 1930, and enjoying a fine weather passage across the Tasman, was in Auckland by dawn on the 30th where she landed 110 of her passengers as well as stowaway. Among her through passengers was the Australian team of athletes (eight in all) bound for the Empire Games in Canada. She sailed for the Dominion at 11:40 a,m. the following morning by which time she also had aboard the New Zealand team (22 in number) for the games. She arrived at Honolulu at 3:00 p.m. on the 10th, landing 100 passengers, and left there at noon the following day.
Ending a "fine ocean trip" (The Victoria Daily Times), Aorangi gilded into the William Head quarantine station at 8:45 a.m. on 17 July 1930, 24 hours ahead of schedule and alongside by 10:00 a.m. "Capt. Martin reported a splendid trip from 'down under.' The weather from Honolulu to this was most delightful, he said, and for six days the ship steamed through placid seas under smiling skies." Aorangi brought in 361 passengers-- 135 First, 114 Second and 113 Third but a light cargo of just 977 tons, most important of which was the first shipment (5,000 cases) of Australian oranges shipped to Canada. She departed for Vancouver at noon.
![]() |
| Credit: The Province, 19 July 1930. |
With a better outbound list than her last recent departures, Aorangi (Capt. W. Martin) left Vancouver and Victoria on 23 July 1930 for the Antipodes with 340 aboard and a good cargo of 4,000 tons, including two tons of British Columbia strawberries for New Zealand. "After a smooth trip," Aorangi docked at Honolulu at 3:30 p.m. on the 30th where she disembarked 60 passengers and landed 70 tons of cargo.
Aorangi came into Auckland at 6:50 p.m. on 10 August 1930, docking at Prince's Wharf at 8:30 p.m., where 280 of her 436 passengers disembarked. The voyage was marred by the death, on the 9th, of well known and popular steward, Albert Prettejohn, aged 47, who had four years in Aorangi and 12 years with Union S.S.. And marked by an unusual encounter with fleetmate in Niagara to transfer at sea, of two stowaway aboard, as described by the Auckland Star:
Some time ago two young pressmen from Perth, West Australia, arrived in Auckland with the idea of working their way round the world. They managed to pick up a job or two here and then went on to Suva. Evidently their luck was out at the island port, because unknown to anybody they secreted themselves on board the Niagara when she left Suva for Honolulu on Friday week last. The next day they were discovered, and a wireless message was sent to the Aorangi acquainting her skipper of the fact and asking that he make towards the Niagara.
About noon the Niagara was sighted well down on the horizon and the passengers on both vessels became very interested. Meantime word had been sent round both mail steamers that mails would be transferred also between the two. Then there was a rush to write letters.
The two mail steamers approached to within a quarter of a mile of each other, the weather was fine, but the ocean was bumpy. A boat was lowered from the Aorangi, containing the two stowaways. While the distance between the two ships was being covered, huge sharks swam round the craft. Passengers and crew on the Aorangi spent much time in throwing bread and the monsters came to the surface-and snapped it up. There was much excitement on board. The two men were taken by the Aorangi to Suva, where they were handed over to the police. The transfer took 40 minutes to effect.
Sydney-bound, Aorangi was off by 10:45 p.m. on 11 August 1930, and reached The Heads at 6:35 a.m. on the 15th.
Sailing from Sydney on 21 August 1930 at 5:50 p.m., Aorangi docked at Auckland at 5:40 a.m. on the 25th where she landed 153 of her 300 passengers. Departing at 11:30 a.m. the following morning, Aorangi numbered among her new embarks, the Prime Minister of New Zealand, the Hon. G.W. Forbes, who was travelling to the Imperial Conference in London. A crowd of 2,000 saw the Prime Minister and Mrs. Forbes off following a farewell function at the Town Hall. Others aboard forming the delegation were:Sir Thomas Sidley, attorney-general, and leader of the Legislative Council; Lady Sidley. Mr. V B. Thompson, head of the Prime Ministers department, and official secretary of the party: Mr. Berendsen of the Prime Minister's department, secretary for external affairs and Imperial affairs officer: Mrs.Berendsen, Dr. O Craig, controller of customs; Mrs. Craig and Mlss Craig, and Mr. A. D.Lewis, chief messenger of the Prime Minister' department. After her call at Suva, there were 185 through passengers and 63 for Honolulu, reached ahead of schedule at 5:15 p.m. on 4 September 1930. Gerald Phipps, British consul at Honolulu was at Pier 7 to greet the Prime Minister on docking an hour later. Aorangi departed for Canada at noon the following day.
Can you tell me and a lot of other people why the steamship Aorangi so often arrives here away ahead of her schedule? According to the statements of various passengers they are supposed to have 'a day in Honolulu' on each trip. But when the boat gets in just before dark a day ahead of time and departs at noon or sooner on the following morning, what good does a 'day in Honolulu' do the traveler who wants to see a little of the city and perhaps buy a few souvenirs of his visit? . He simply cannot see anything, do anything, or buy anything. When other ships nearly 'bust their boilers' to get in a day ahead, the reason is printed, as in the case of the Shinyo Maru last week which was speeding up to get the two million; dollars worth of silk to its destination to save insurance cost. Everybody knows it takes a lot more fuel to speed up a big ship like the Aorangi so there must be a reason for It. Perhaps you can send a reporter down to see the captain tomorrow and find out the answer.
TRAVELER. September 3.
Honolulu Star Advertiser, 4 September 1930
There was no immediate answer to the query and as if to prove the point, Aorangi raced north to reach Victoria at 11:00 a.m. on 11 September 1930-- nearly 24 hours early and alongside at 2:30. She had nothing on CPR's splendid new Empress of Japan which just set a new record of 4 days 15 hours 50 mins from Honolulu to Race Rocks, the previous day. In addition to landing New Zealand's Prime Minister at Vancouver later that day, Aorangi discharged 8,277 boxes of his country's butter, a final export before the new Canadian tariff of four cents a pound was imposed as Imperial trade, too, entered into the perverse tax and tariff response to the Depression.
Aorangi was off for the Antipodes again on 17 September 1930, departing Vancouver as usual at noon and from Victoria in the evening. If Canada put tariffs on New Zealand butter, British Columbia onions still found an open and ready market in New Zealand and she went out with 5,000 cases of them. She also took out a returning team of Australian bowlers following a tour of "the Old Country" and Canada as well as the New Zealand team returning from the Empire Games. In all, Aorangi had a good list of 552 through passengers aboard by the time she cleared Victoria and a further 51 for Honolulu where she arrived at 5:30 p.m. on the 23rd, docking at Pier 7 by 7:00 p.m.. She cleared for the south at noon the next day.
![]() |
| Credit: New Zealand Herald, 4 October 1930. |
Encountering "boisterous weather" after clearing Suva at 11:45 p.m. on 2 October 1930, Aorangi, expected at Auckland at 8:30 p.m. on the 5th, did not arrived until 12:30 a.m. which made her too late to be granted practique and she had to anchor in the stream for the night and came alongside Prince's Wharf at 8:30 a.m. that morning, landing 268 passengers.
![]() |
| Twin icons of Sydney Harbour: Aorangi passes under the Harbour Bridge nearing completion, on 10 October 1930. Credit: State Library of South Australia. |
Aorangi departed Auckland for Sydney at 11:00 p.m. on 6 October 1930, docking there at 8:00 a.m. on the 10th. Aorangi's comings and goings to and out of Darling Harbour since 1928 had witnessed the construction of Sydney's great Harbour Bridge and during her call there, engineers were on the top of the arch of the span to check the clearance of her masts under it.
![]() |
| Credit: The Daily Telegraph, 17 October 1930. |
![]() |
| Passenger List for Aorangi's 16 October 1930 northbound voyage. Credit: eBay auction photo. |
With Captain R. Crawford finally back in command after an eight-month absence owing to illness and surgery, Aorangi cast off from no. 5 Darling Harbour at 5:00 p.m. on 17 October 1930. Prominent among her passengers was Lord Stonehaven, Governor General of Australia, and Lady Stonehaven, bound for home leave in England. Aorangi took out another consignment (8,000 cases) of Australian oranges for Canada and had 221 passengers landing at Auckland on arrival the morning of the 20th. She left for Suva and points north the following morning at 11:00. It was a very light list for the ship on this trip and there were only 90 through passengers and 35 for Honolulu when she docked there at 3:30 p.m. on the 30th. The Honolulu Star Advertiser in reporting Capt. Crawford's return to the bridge, said "he was looking as hale and hearty as ever upon his return yesterday and declared himself as being glad to be back aboard."
Aorangi sailed from Honolulu at noon 31 October 1930 and Capt. Crawford had her off William Head at 9:05 a.m. on 6 November but dense fog between the quarantine station and the Rithet piers compelled her anchor until that cleared and she was not alongside until 11:30 a.m., still a good 24 hours early, and reporting fine weather on the trip up. She brought in only 118 (42 First, 37 Second and 39 Third) passengers. Aorangi docked at Vancouver's Pier C at 6:00 p.m. late that same evening with 2,000 tons of cargo including her New Zealand butter and Australian oranges.
![]() |
| Red Route Apogee: CPR's brand new Empress of Japan, largest ever trans-Pacific liner, and Aorangi, at Vancouver c. summer 1930. Credit: New Zealand Maritime Museum. |
It was with a larger list of 481 passengers that Aorangi conveyed south from Vancouver at noon on 12 November 1930, among them being W.R. Wilson, owner of the New Zealand Herald, and Lady Philp, widow of the late Sir Robert Philp of Burns, Philp & Co. Aorangi made Honolulu at 6:00 p.m. on the 18th, landing 33 passengers there and departing the following day at noon. Pausing at Suva on the 27th, Aorangi arrived at Auckland on the 30th at 11:00 a.m. just in time to find the central railway station closed (!) as it was from 11:00 a.m. to 4:00 p.m. on Sundays. "Fortunately, the weather was fine, otherwise the criticism levelled at the Railway Department would have had a much keener edge." (Auckland Star) although it was another unintended consequence of running Aorangi on the slower Niagara's timetable and her consistently arriving early along her route. Aorangi had a good run south as described by the New Zealand Herald:
A fast passage of two days, 20 hours, seven minutes from Suva to Auckland, was made by the Royal Mail liner Aorangi, which arrived from Vancouver yesterday morning. The time would have been less but for strong head winds and rough seas which were experienced on Saturday. The vessel sailed from Vancouver on November 12, but owing to strong westerly winds and high head seas, which were encountered for four days, tho average speed to Honolulu was 16.4 knots. Better conditions prevailed on the run from Honolulu and she reached Suva early last Thursday morning, having averaged 16.92 knots on the passage. The voyage was resumed in the afternoon and the vessel cleared the reef at 2.30 o'clock. Strong easterly winds and a high beam sea prevailed throughout Saturday and yesterday morning the wind changed to the south-west. In spite of the boisterous conditions, which delayed the vessel's arrival by over an hour, the speed from Suva to Auckland averaged 16.84 knots.
Aorangi came into Sydney on 5 December 1930, berthing as usual at no. 5, Darling Harbour, at 8:00 a.m.
It was announced on 10 December 1930 that Aorangi would miss a voyage in May 1931 to undergo her annual overhaul at Sydney and would be replaced by Union's recently acquired Monowai (ex-Razmak of P&O) departing Sydney for Vancouver on 28 May 1931.
At 5:00 p.m. on 11 December 1930, Aorangi cast off from her Sydney pier on her way north with about 200 passengers aboard. She reached Auckland first thing on the 15th, again enjoying fine weather across the Tasman but her docking was delayed about an hour when a child in Second Class was diagnosed with a mild case of measles but following medical consultation, the authorities cleared the ship to berth. Landing about 100 passengers there, Aorangi resumed passage the following morning at 11.
Aorangi and her passengers wound up spending all Christmas Day at sea although in not very nice weather and rough seas which postponed her scheduled arrival at Honolulu that afternoon until daylight on Boxing Day. She landed 54 passengers there and sailed at 5:00 p.m. New Years Eve was celebrated on two days out from British Columbia and Aorangi arrived at Victoria New Years Day at noon and Vancouver at 9:00 p.m.
![]() |
| Credit: Wallace B. Chung and Madeline H. Chung Collection, University of British Columbia. |
1931
Departing from Vancouver for Australasia on schedule at noon on 7 January 1931 and likewise arriving at Victoria at 6:00 p.m. that evening, Aorangi was kept cooling her heels until 2:00 p.m. the next day waiting for late arriving mails off R.M.S. Mauretania at New York which had come by transcontinental railvia Seattle. These arrived at Victoria at 1:15 p.m. and no further time was lost getting them aboard and casting off. She went off with another very light list of passengers, totalling just 156 (75 First, 46 Second and 35 Third Class) and a small cargo of paper, salmon and general merchandise. Making up some of the lost time despite head seas and rough weather, Aorangi sped south to reach Honolulu on 2:00 p.m. at on the 13th where she landed 28 passengers and 200 tons of cargo with 125 through passengers for the Antiopodes. They got her cleared and on her way by 8:00 p.m.
With fine weather south of Hawaii, Aorangi made a splendid showing, averaging 16.8 knots and back on time, made Auckland at 4:00 p.m. on 25 January 1931, with 132 passengers and 390 bags of mail for the port. Sadly, a passenger, Mrs. Catherine Cairns, aged 33, of Fort Wayne, Indiana, and travelling Second Class, died aboard two days after clearing Honolulu following an appendectomy performed aboard. Aorangi departed at midnight for Sydney.
Ending a voyage on which she truly showed her timetable taming abilities, Aorangi coursed past Sydney Heads at 4:50 a.m. on 30 January 1931, a day ahead of schedule. There was ample time to put her into Cockatoo Graving Dock for quick hull cleaning and painting and she was docked on 2 February.
Sadly, the health of Capt. R. Crawford took a turn for the worse and after bringing Aorangi down to Australia he was obliged to again take medical leave at the request of his doctor and Capt. J.D.S. Phillips would command the liner as far as Auckland on her homeward trip. On the 11th, it was additionally reported that Capt. Spring-Brown, who had just brought Makura to Wellington from San Francisco, would transfer to Aorangi and bring her up from Auckland to Vancouver, replaced in turn in Makura by Capt. Martin of Maunganui .
Captain J.D.S. Phillips, who took the Aorangi to sea yesterday, as relieving commander, gave the old sailors on the waterfront something to talk about.
He lost no time in getting the liner safely clear of the wharf. In five minutes from the time the ropes were cast off the Aorangi out in Darling Harbor, turned, and ready to go straight to sea.
Though he has not taken a big liner away from the New South Wales coast for some time, he not the lost the art of handling one.
The Daily Telegraph, February 1931.
![]() |
| Credit: The Daily Telegraph, 6 February 1931. |
R.M.M.S. Aorangi (Capt. J.D.S. Phillips) departed Sydney at 4:55 p.m. for Auckland and the north on 5 February 1931. She continued her good fortune with Tasman crossings and "and after a fine weather voyage," arrived at Auckland at 6:10 a.m. on the 9th and off again at 11:15 a.m. the next day, commanded by Capt. J.F. Spring-Brown. At Honolulu, where she came in at daybreak on the 20th, she dropped off 61 passengers (she had another 120 through fares to the coast), 170 tons of cargo and 15 bags of mail before sailing at 5:00 p.m. When Aorangi docked at Victoria at 3:00 p.m. on the 26th (18 hours early), she had 200 passengers aboard (94 First, 72 Second and 34 Third Class).
The Aorangi had a splendid voyage this trip all the way from Auckland, Spring-Brown reported on his arrival here yesterday. From Honolulu north to Victoria the weather was splendid, he said, although the ship ran into a bit of rough weather on Tuesday night and for several hours battled quite a severe storm. The elements, however, did not delay the ship and she docked here about eighteen hours ahead schedule. Her ropes were taut and she was made fast alongside Rithet piers yesterday by 3 o'clock in the afternoon. She left for Vancouver at 4.45 o'clock and docked at the mainland port shortly after 10 o'clock.
The Victoria Daily Times, 27 February 1931.
![]() |
| Capt. J.F. Spring-Brown. Credit: New Zealand Ship and Marine Society |
Capt. Spring-Brown took Aorangi south for the first time from Vancouver at midday on 4 March 1931 and from Victoria that evening at 8:00 p.m.. "Because of the season of the year the Aorangi will take out only a small list of passengers…" (Times Colonist, 4 March 1931), among them was H.W. Brodie, overseas passenger representative Canadian Pacific on a business trip to Australasia and in advance of far greater cooperation and corporate involvement by the great transportation system in Union S.S.'s Canadian Australasian operations. There were only 15 landing at Honolulu at 2:30 p.m. on the 10th and an equally small number joining the ship there on departure the following noon. Aorangi reached Auckland at 9:50 a.m. on the 22nd where she landed 84 passengers. She had put in another capital passage from Vancouver as recounted by the New Zealand Herald (23rd):
Some fast steaming was done during the voyage from Vancouver of the Royal Mail liner Aorangi, which reached Auckland yesterday morning, over an hour earlier than was expected. The vessel experienced favourable weather throughout and the speed from Vancouver to Auckland averaged 17.5 knots.
From Vancouver to Honolulu the average speed was 16.92 knots, which was increased on the passage from Vancouver to Suva, the distance being covered at an average speed of 17.18 knots. After leaving Suva last Thursday afternoon the liner made the trip to Auckland in 68 hours. She anchored in the harbour at 9.50 o'clock yesterday morning, having averaged 16.78 knots from Suva.
The present voyage is not the Aorangi's best performance, as she has averaged over 17 knots on numerous occasions. Oil her maiden voyage she reached Auckland from Suva in 2 days 17 hours 47 minutes, at an average speed of 17.43 knots. Last March she reached Auckland from Suva in 2 days 18 hours 21 minutes, the speed having averaged 17.3 knots.
Aorangi was off for Sydney at 10:15 a.m 23 March 1931 and alongside No. 5 Darling Harbour at 8:15 a.m. on the 27th.
![]() |
| Credit: The Daily Telegraph, 3 April 1931. |
Capt. Spring-Brown again took out Aorangi out of Sydney for the Pacific Northwest, clearing Darling Harbour at 4:00 p.m. on 2 April 1931 for Auckland where she arrived at 6:35 a.m. on the 6th, with one stowaway and among her passengers, two of the crew, both Aucklanders, of the racing yacht Teddy which had just won the Tasman Race. Her layover there was extended owing to a waterside workers' meeting and she did depart for Vancouver until 8:20 p.m. on the 7th, further delayed when heavy rain retarded cargo working. On clearing Suva, there were 219 passengers aboard of whom 56 disembarked when Aorangi called at Honolulu the morning of the 17th. She continued her passage at 5:00 p.m. that evening. Aorangi had another fine passage north and despite the delay in getting away from Auckland, managed to make Victoria on the 23rd, still almost a day ahead of schedule, although strong winds off Cape Flattery retarded her arrival off William Head by an hour, at 1:00 p.m. and she was alongside by 2:30 p.m. There were 332 passengers aboard: 174 First, 103 Second and 55 Third and nearly 1,500 tons of cargo. Aorangi arrived at Vancouver at 10:30 p.m, 12 hours ahead of schedule, landing her remaining 296 passengers.
Before April 1931 was over, Aorangi was off again to the Antipodes, departing Vancouver at noon on the 29th and Victoria at 8:00 p.m. with what The Province described as a "light passenger list, but a satisfactory cargo" of nearly 4,000 tons. Calling at Honolulu at 6:00 p.m. on 5 May-noon 6th, she had just a dozen passengers to land there and 14 replacing them. Aorangi reached Auckland at noon on the 17th, delated over three hours owing to strong southeasterlies on departure from Suva. The Auckland Star reported her rather dismal carryings on the trip with 37 aboard upon departure from Vancouver, 93 aboard on arrival there and 37 landing. "For some time the Vancouver mail steamers have 'been carrying few passengers for this time of the year. This state of affairs is not peculiar to the Canadian-New Zealand trade. When the Aorangi was at Vancouver the Canadian Pacific Company's new and palatial liner, Empress of Japan, left port for a two months' cruise of the East with only 31 first-class passengers. Other big passenger lines have been similarly affected. " Mail there was aplenty and Aorangi brought in 2,300 bags of it, 560 of which were for Auckland. She sailed for Sydney at 8:40 p.m. on the 18th and passed the Heads at 6:45 a.m. on the 23rd.
![]() |
| Credit: The Daily Telegraph, 5 June 1931. |
Given the paucity of passenger trade, the already planned laying up of Aorangi for overhaul for two months seemed wise indeed. Capt. J.F. Spring-Brown would take Marama to Auckland and then take Monowai on her roundtrip to Vancouver, replacing Aorangi. One of Aorangi's inbound passengers was A.A.M. Taylor, Marine Superintendent of Union S.S. from Wellington to supervise her refitting. Some of this work was done at her usual no. 5 slip at Darling Harbour but by early June she was at Miller's Point Wharf and finally drydocked at Cockatoo prior to loading for Vancouver.
Aorangi resumed service upon her departure from Sydney on 24 July 1931. With 182 passengers aboard, she also went out with another large consignment of Australian citrus fruit. She arrived, "looking spic and span" at Auckland at 7:10 a.m. on the 27th and departed at 11:40 the next morning. On her departure from Suva, she had 110 through passengers for British Columbia and 39 landing at Honolulu.
![]() |
| Credit: Honolulu Star-Bulletin, 4 August 1931. |
While his Aorangi was coursing northwards in the broad expanses of a South Pacific he knew so well, it was announced on 4 August 1931 that the ailing Capt. Robert Crawford, who had been with Union S.S. for 33 years, was retiring because of ill health and was then working as manager of the Grand Hotel in Auckland.
Capt. J.F. Spring-Brown, now assigned as her permanent master, brought Aorangi alongside Honolulu's Pier 7 at 5:45 p.m on 6 August 1931, a day early, where she landed 39 passengers and 220 tons of cargo before resuming passage at noon the next day. Right on the noon gun fired from West Point Barracks, Victoria, B.C, Aorangi came in from the Antipodes on the 13th. Had she not encountered fog off Cape Flattery earlier that morning, she would have arrived by 9:00 a.m. to beat her own record. As it was, she was still a full day ahead of schedule. "Coming up the Strait, however, the big vessel had to proceed cautiously and her hoarse funnel roared out a harsh warning to passing shipping every few minutes. The Aorangi is fresh from a six-week lay-over drydock Sydney. She was completely overhauled, her engines were taken up for inspection and she was given several coats of fresh paint." (Times Colonist, 13 August 1931.) She brought in just 184 passengers with 94 First, 65 Second and 25 Third. Aorangi left for Vancouver at 2:00 p.m. and docked there at 7:00 p.m.
Much interest by was displayed officers and crew in the recent announcement that the C.P.R. and the Canadian Australasian Line had formed a new company to operate the Aorangi and the Niagara.
Time Colonist 13 August 1931
Aorangi was at sea when the big event of 1931 was made public on 4 August when E.W. Beatty, Chairman and President of Canadian Pacific Railway, in Montreal and simultaneously by Union Steamship in Wellington announced the formation of a new company, Canadian-Australian Line Ltd, jointly owned and operated by Canadian Pacific and Union Steamship Company, to continue operation of Niagara and Aorangi. J.C. Irons, appointed as General Manager of new company with head office for Vancouver. The registered office of new company was 999 West Hastings St., Vancouver. CPR would be the traffic agents in North America and Union SS in Australia and New Zealand.
Long rumoured, it was the culmination of CPR's ambitions for their own Canada-Antipodes route that dated to the 1880s and spurred by new and potent American competition in the form of the magnificent new Mariposa and Monterey of Oceanic S.S. Co. It also served as an effective foil to the long standing issues arising from the mostly Australian crews of the C-A Line in that now that the new company was Canadian, it had the option of re-registering Niagara and Aorangi in Canada and putting their crews under Canadian articles. This, in fact, was never done and both remained registered in London.
![]() |
| Credit: Wallace B. Chung and Madeline H. Chung Collection, University of British Columbia. |
There was also the prospect of now exchanging tonnage between CPR and C-A, especially given the new American competition and the near collapse of the North Atlantic trade amid the worst of the Depression. There was no question that CPR had way overbuilt during the 1920s, introducing the superior intermediate Duchess quartet in 1928, while Union S.S. had lagged in modernising their San Francisco-Antipodes fleet. All this fostered all manner of intriguing rumours and speculation. The Vancouver Sun reported at the time "It is officially stated that no additions to the fleet are contemplated at this time, but shipping circles here state it would be no surprise if the Canadian Pacific's Duchess type ships, operating out of Eastern Canada to ports in Great Britain, were transferred to the Pacific seaboard for service between Vancouver, Australia and New Zealand."
The only changes was a new simplified C-A houseflag and the designation of Aorangi and Niagara's Second Class as Tourist to conform with Canadian Pacific nomenclature.
The late captain's many friends in Victoria, and they were legion, will sincerely miss his cheery smile and ready hand grip. He was one of the most popular deep-sea skippers calling at this port and the thousands of passengers whom he brought on their voyages on the Pacific will feel that a true friend has "crossed the bar."
Times Colonist, 26 August 1931.
On 25 August 1931 Capt. Robert Crawford, aged 59, succumbed to his long illness and passed away at Auckland. During his 33-years with Union S.S., he commanded Makura for years prior to taking Aorangi out on her maiden voyage and commanding her ever since. "After resigning from the company Capt. Crawford felt sufficiently well to accept the managership of the Grand Hotel at Auckland. He conducted that hostelry, illness much last week success sent until him an to the Auckland General Hospital where he died yesterday. He was fifty-nine years of age and leaves a widow in Auckland." (Times Colonist).
Making the first departure of the "new" Canadian-Australasian Royal Mail Line from Canada, R.M.M.S. Aorangi left Vancouver at 12:30 p.m. on 19 August 1931. She went out with a more encouraging list than of late, with 300 aboard of whom 120 were destined for Honolulu. Arriving at Victoria at 5:00 p.m., Aorangi was detained there until 7:00 a.m. awaiting the arrival, from Seattle, of English mail transhipped from New York. She docked at Honolulu at 7:30 a.m. on the 26th and in addition to passengers and 120 tons of cargo, she landed 11 automobiles there before resuming passage south at 4:00 p.m. with 145 through passengers.
Aorangi arrived at Auckland at 5:25 p.m. on 6 September 1931 and alongside at 6:30 p.m. slightly late: "Up till 9 p.m. on Saturday the Aorangi, which arrived yesterday from Vancouver, via way ports, had a fair weather voyage. ' Then the wind began to freshen, and by 11 p.m. it was 'piping hard' from the south-east. These conditions delayed the mail steamer for a few hours, and it was not till 5 o'clock yesterday afternoon that she dropped anchor. She berthed at the Prince's wharf about 6.30 p.m. A large number of passengers joined the Aorangi at Suva this trip—a most unusual happening. Most of them have booked through to Australia. On arrival here the ship had 225 passengers on board, 104 of whom landed at Auckland." (Auckland Star, 7 September 1931) Aorangi sailed for Sydney at 5:00 p.m. the next day, arriving there the morning of the 11th.
Aorangi left Sydney at 5:50 p.m. on 17 September 1931, with a cargo that included 8,500 cases of Australian Valencia oranges for Canada. "Like a millpond all the way," was how her passengers described their trans-Tasman crossing on arrival at Prince's wharf at 9:00 a.m. on the 21st, of whom 91 disembarked there, and she had 60 through passengers. She resumed passage at 11:30 a.m. on the 22nd. There were only 18 to land at Honolulu on 1 October at 6:00 p.m. and she left for the Mainland at noon on the 2nd. With only 75 passengers (40 First, 25 Second and 10 Third) aboard, Aorangi docked at Victoria at 12:45 p.m. on 8 October. Her cargo manifest was more impressive at 2,000 tons. She sailed for Vancouver at 2:30 p.m. and docked at 8:00 p.m.
![]() |
| Fine view of Aorangi At Vancouver. Credit: Wallace B. Chung and Madeline H. Chung Collection, University of British Columbia. |
A late train from the East conveying mail and some of passengers had Aorangi waiting an hour past her noon sailing time from Vancouver on 14 October 1931. She was on her way by 1:00 p.m. with 250 passengers and a 4,200-ton cargo which included 6,000 boxes of British Columbia apples for Australia. Arriving at Honolulu at 5:00 p.m. on the 20th, Aorangi was alongside Pier 7 by 6:00 p.m., landing 13 passengers, 11 bags of mail and 280 tons of cargo and resuming her voyage at noon the following day.
Reaching Auckland at 3:10 p.m. on 1 November 1931, in addition to landing 150 passengers there, Aorangi brought in an heavy mail consignment of 1, 700 bags for New Zealand including 416 bags for Auckland. The New Zealand Herald reported that "The Aorangi's cargo from Vancouver included principally onions, canned salmon, macaroni and apples, in addition to machinery, motor and radio parts brought overland for shipment. From Suva she lifted tomatoes, kumaras, bananas and pineapples." Aorangi left for Sydney at 10:30 p.m. on the 2nd with the hopes that a seamen's strike in Australia would be settled before she arrived amid continued threats that Canadian-Australian might follow through with rumours they would place their crews under Canadian articles rather than Australian under the circumstances.
Bringing Aorangi intoSydney at 8:00 a.m. on 6 November 1931, Capt. Spring-Brown told the shipping reporter of The Daily Telegraph that he "found the weather unusually cold while crossing the Pacific," on this trip. The liner went into Cockatoo Dock on the 10th for hull cleaning and painting and was back at no. 5 Darling Harbour the next day to load for Canada.
On 12 November 1931, Aorangi departed Sydney with 204 passengers but only 57 through booked to Honolulu and British Columbia, including Mr. D.J. Davis, part-owner of the famous race horse Phar Lap. She arrived at Auckland at 6:10 a.m. on the 16th after another fine weather Tasman transit. Aorangi was once more the "Christmas Mail Boat" for the Home Country with post going out in her to arrive in England on 17 December in time for Christmas. Clearing Prince's Wharf on 17 November, Aorangi went out with 1,083 bags of mail and 53 bags of parcels, not close to Niagara's record of 1,384 bags the previous year as she was not the last mailboat for Christmas delivery that year as mail dispatched from Auckland via Maunganui the next day would reach England on Christmas Eve and that via Sierra two days hence would arrive on the 21st.
Mail was more plentiful than passengers and when Aorangi docked at Honolulu the morning of 27 November 1931, she had only 20 landing there and a small amount of cargo sailing for the mainland at 5:00 p.m. Aorangi put in another fast northbound passage, despite stormy weather all the way up, reaching William Head at 6:00 p.m. on 3 December and arriving at Vancouver the next morning with only 76 passengers: 28 First, 25 Second and 23 Third Class and a light 572-ton cargo.
![]() |
| Aorangi sharing Vancouver's piers with Empress of Japan. Credit: Wallace B. Chung and Madeline H. Chung Collection, University of British Columbia. |
Starting her last voyage of the year, Aorangi sailed from Vancouver on 9 December 1931 at 11:00 a.m. and from Victoria at 8:00 p.m. for the Antipodes, with "more than 100 passengers." They and others embarking at Honolulu would be celebrating Christmas at Suva, Fiji Islands, and in anticipation, she carried "Christmas trees and decorations from British Columbia's forests." Making a quick passage south, despite "a fair blow during the first two days" she arrived at Honolulu at 4:00 p.m. on the 15th instead of 7:00 a.m. the next morning as scheduled, landing 20 passengers and 210 tons of cargo there, continuing her voyage the next day at noon, taking with her 47 bags of mail transhipped from the Matson liner Manoa from San Francisco.
![]() |
| Aorangi at Auckland. Credit: Leonard Fletcher photograph, New Zealand Maritime Museum. |
Aorangi made Auckland at 1:20 p.m. on 27 December 1931 "after a fine weather trip all the way from Vancouver," and docked at 3:00 p.m. to land more than 100 passengers there. The New Zealand Herald (28 December 1931) reported on the ship's Christmas celebrations:
Christmas was celebrated on the Aorangi, which arrived at Auckland yesterday, in just the same spirit as on shore and the children on board had no cause to be disappointed with the day, even if Father Christmas did not come down the chimney. Special treats had been arranged for young and old and every child on board received a present. Christmas Day fell a day out from Suva on the voyage to Auckland.
Christmas morning began with real carolling, broadcast all over the ship during the breakfast half-hour, and at 10 o'clock a Christmas service, to which all passengers were invited, was held in the first-class lounge. The popular old Christmas hymns were sung and Captain J. F. Spring-Brown read a suitable lesson.
The saloons had been gaily decorated and Christmas dinner in all classes was served in the approved style. Later in the day all kinds of sports, deck quoits, shuffleboard and deck tennis, were held, and the new open-air swimming bath was popular. In the evening a grand fancy dress ball marked the conclusion of a most successful day.
Boxing Day held a treat for the children, for an invitation was extended to every child on the ship to attend an afternoon tea party in the verandah cafe on B deck. After they had all enjoyed themselves thoroughly, they trooped into the first-class dining saloon, where each one was given a present from a Christmas tree. After dinner in the evening the distribution of prizes won at the previous day's sports was made.
Leaving Auckland for Sydney at 3:35 p.m. on 28 December 1931, Aorangi went out with a party of 33 schoolboys from Auckland Grammar School bound for a tour of NSW and Victoria although the main attraction was to see Don Bradman bat at the test match in Melbourne.
The Union flagship ended the year on a stormy and speedy note, breaking her trans-Tasman record by an hour reach the Heads from Auckland in 3 days 2 hours, come to the aid of a boat in distress and then battle a southerly gale to get into her berth. She came in at 3:00 p.m. on 31 December 1931.
The Aorangi, from Vancouver, came across in three days two hours. and ran into the southerly a few miles off the coast. When a mile off the Heads, Captain J. F. Spring-Brown noticed a launch in distress.
One of the four men in the launch had taken off his shirt, and waved it on the end of a stick. The Aorangi sheltered the craft till the pilot steamer Captain Cook steamed out, and took it in tow. Fierce blasts threw the liner in to difficulties as she was manoeuvring to enter No. 5 Darling Harbor. She arrived off the wharf soon after 5 p.m., and was for an hour trying to get alongside
Once, when a bow line snapped, the Aorangi went within a few feet of smashing into the bow of the Katoomba, at the opposite wharf.
Three tugs could not hold her. She just cleared the bow of the Katoomba, and was swept down Darling Harbor again. The tugs were swept back, and the Emu and Champion were wedged so tightly together that portion of the Emu's port bulwarks was splintered. During a lull in the storm, the pilot got lines ashore, and eased the motor ship alongside the wharf foot by foot.
The Daily Telegraph, 1 January 1932.
It all proved an exciting start to their trip for her New Zealand schoolboys who proved good sailors through it it all. For Aorangi, her passage broke the 16-year-old record set by Niagara back in 1915, clipping 15 mins. off her fleetmate's time.
![]() |
| Credit: National Library of Australia |
1932
![]() |
| Aorangi passing under the Sydney Harbour Bridge, January 1932. Credit: Power House Museum |
With less excitement, Aorangi departed Sydney on 7 January 1932 on her first northbound trip of the year, with Lady Smith, wife of famous Australian airman Sir Keith Smith, figuring in her passenger list, and an experimental shipment of 250 of a special variety of wheat for Canada, a coals to Newcastle moment if there ever was one. She had 214 passengers landing at Auckland on the morning of the 11th and continued her voyage the next morning at 11:25 a.m. Aorangi docked at Pier 7, Honolulu, at 5:00 p.m. on the 21st to disembark 24 passengers and a small quantity of cargo.
Due at Victoria on the morning of 29 January 1932, Aorangi got there 12 hours early at 3:00 p.m. on the 28th and alongside at 4:00 p.m., despite heavy weather the last three days off the coast and she got into Vancouver just past midnight, her passengers landing the next morning. It was snowing in Victoria on arrival much to the amazement of some of her passengers, especially the younger ones who never saw it before. She came in with only 67 passengers (35 First, 19 Second and 13 Third Class). One of her unusual cargoes were 200 bunches of bananas from Suva, the first such shipment to Canada in some years.
![]() |
| Credit: The Province 21 January 1932. |
Announced on 20 January 1932, effective with Aorangi's 3 February 1932 sailing from Vancouver, Aorangi and Niagara's Second Class would be redesignated as Cabin Class to align with Canadian Pacific's grading on the North Atlantic. A new addition to Aorangi was an open air swimming pool tank aft on her sun deck.
Aorangi left Vancouver at noon on 3 February 1932 and Victoria that evening and went out with 75 passengers with 30 embarking at Honolulu and 100 at Suva. She docked at Honolulu on the 9th at 4:30 p.m. to land only four passengers and 610 tons of cargo. According to the Star Advertiser Aorangi's passenger list was the smallest since she had been commissioned. She got into Auckland at 1:10 p.m. on the 21st in rather blowy conditions especially for hat wearers:
A stiff breeze was blowing down the harbour yesterday afternoon when the Aorangi dropped anchor at the end of her voyage from Vancouver, and it was a case of 'mind your hat' among the passengers who were up on deck. Most of the men were hatless, but many of the women were dressed ready to go ashore, and one of them lost her hat, which was swept into the sea. Fortunately it did not travel far, and before it could sink it was rescued with a boathook by one of the officers in the Customs launch. There were cheers from the passengers, and the owner was duly grateful, for the hat was one of the latest creations of a well-known Canadian firm. The cheers were repeated a few moments later when another 'rescue' was performed. The bowler worn by the port medical officer of health, was swept away as the doctor was coming down the companionway. His hat was rescued by the crew of the doctor's launch.
Auckland Star, 22 February 1932.
With 190 passengers aboard, Aorangi departed for Sydney at 12:10 p.m. on 22 February 1932 and passed the Heads at 3:00 p.m. on the 25th to join the new Mariposa (on her maiden voyage) and Strathnaver in Sydney Harbour, the later two at Circular Quay and the C-A flagship at her usual no. 5 wharf, Darling Harbour. There was a dust-up between two ferry steamers and a tug under Sydney's new Harbour Bridge as Aorangi was coming through en route to Darling Harbour:
The third ferry mix-up within two days occurred late yesterday afternoon, almost under the Bridge, when two ferry steamers and a tug crashed, in manoeuvring around the Union motor ship Aorangi, The Aorangi, from Vancouver, was on her way to her berth in Darling Harbor, and the tug Leveret was moving alongside to take a line. Bound for Circular Quay, the Kal-Kal's port side struck the port bow of the Leveret. Paintwork was damaged on the tug, and passengers on the Kal-Kal ran from the side as woodwork splintered. The Kamiri, which was close to the Kal-Kal, was involved in a flash, but fortunately was travelling at only a slow speed, and bumped the other vessel just sufficleatly to rock her.
The Daily Telegraph, 26 February 1932.
Clearing Sydney at 5:15 p.m. on 3 March 1932 for Auckland, with 230 passengers, and for the first time in quite awhile, Aorangi encountered terrible weather approaching the New Zealand coast the night of 6-7th when at 2:00 a.m. the wind increased to hurricane force and Aorangi hove-to 24 miles off Mokohmau Island, at the entrance to Hauraki Gulf, in "huge seas." At 1:27 p.m. on the 7th the vessel, then 80 miles from Auckland, wired: "We are hove-to, Mokohinau, bearing 220 degrees, distant 24 miles. The wind is east-south-east, with high seas and a heavy swell. Visibility is low."A heavy mist enveloped the coast, obscuring all landmarks and she finally was able to make it into Auckland, anchoring in the stream, shortly after 11:00 p.m. on the 7th, 17 hours late and her passengers landed the following morning.
The Auckland Star, 8 March 1932, gave full details of the worst blow Aorangi had encountered since her maiden voyage:
The Captain's Story. 'We came across a cyclone as we came towards Cape Brett about one o'clock yesterday morning, but managed to pick up the light,' said Captain Spring Brown, commander of the Aorangi. 'We steamed on a course for Mokoliinau, but the storm got fiercer and the weather thicker. We could not pick up Mokoliinau light, so turned the ship's head to sea to wait for daylight. The rain became thicker, and the wind reached storm force, and a dirty south-east gale developed. The sea was of the shortsteep variety. The ship's head was kept to tile storm, with the engines going slow. When she was hove-to, she rode the storm like a duck, being in nice trim.'
'At 3 p.m. yesterday the sea and wind had not moderated, but the visability had improved, and we could see for eight miles. It was then decided to make for port. It was really an exceptional piece of weather, to say the least.'
Questioned regarding the use of the ship's direction-finder, Captain Spring Brown said it had functioned quite well, but the only radio station heard was that at Auckland. It was impossible to find the Aorangi's exact position till the fog lifted. Had he been able to make a landfall he could have made port quite easily. When the ship's head was turned for port she was 20 miles off the land.
'It was as thick as pea soup, and at times you could not see the fo'castle head," said a deck-hand. 'The high, confused seas had a break on them occasionally, and it was impossible to tell where we were. As long as the ship's head was turned towards the open Pacific there was no danger. We did not want another Wairarapa disaster, and the skipper was wise in taking the course he did."
Passengers who were interviewed paid a tribute to the seamanship displayed by Captain Spring Brown and his officers. Although they were disappointed at not making Auckland on time one and all agreed that the only thing to be done under the circumstances was done.'It takes a strong man to his foot down and say, 'No, I won't go on till the weather clears,' said a world traveller who is going home to New York. 'That was the position the commander was in yesterday. My wife and I have travelled over many seas, but seldom, if ever, have we struck such weather as we did yesterday. Of course, all of us wanted to make port, but we realised that it was much safer to be where we were than to be poking about the islands of the gulf in such weather. Some of the seas which hit the steamer were so heavy that she quivered from stem to stern.'
Some of the 'old hands' on the Aorangi said that not since her maiden voyage, when the vessel struck a cyclone between Vancouver and Honolulu, had she experienced such weather. The wind was not so forceful, but the seas were just as tempestuous, and the Aorangi rode the storm out in the same way as she did when she first made her bow to the Pacific Ocean.
If the storm had not been enough, a passenger, Mr. John F. Atkinson, aged 73, a well-known building contractor in Los Angeles, died suddenly aboard on the 7th, and the ship's ensign was at half-mast when she finally came into Auckland.
![]() |
| Credit: Times Colonist 25 March 1932. |
Aorangi was able to depart Auckland for Vancouver at 4:30 p.m on 8 March 1932. When she reached Honolulu the morning of the 18th, she had 46 passengers to land there and embarked another 24 there before sailing at 4:00 p.m.with 250 passengers aboard. Once again, the powerful motorship was able to make up the late departure from Auckland and when Capt. Spring-Brown brought her off William Head at 11:15 a.m.. on the 24th and alongside her Victoria pier at 12:30 p.m., Aorangi was actually almost 24 hours early despite hitting a northwest gale off Race Rocks. It still took the best part of three quarters of an hour to put her alongside amid the blustery conditions. "After one of the roughest voyages of her seven-year career on the Pacific Ocean, the Canadian Australasian motorliner Aorangi docked at the Rithet piers here yesterday afternoon from Sydney, Auckland, Suva and Honolulu, completing a three-week trip from Australia, full of incident.' (Times Colonist, 25 March 1932).
The Depression cast an ever darker shadow and when Aorangi took leave of Vancouver and Victoria on 30 March 1932, she had fewer than 100 passengers aboard. Of these, 18 got off at Honolulu on 5 April and she resumed passage south on the 6th at noon. A crew member, A. Vasarotti, a cook and veteran of the company service especially aboard Niagara, passed away en route to Hawaii on 1 April and was buried at sea, the service presided over by Capt. Spring-Brown and witnessed by the crew and passengers. "After a fair weather trip," Aorangi arrived at Auckland at 1:00 p.m. on the 17th and sailed for Sydney at 4:00 p.m. the following afternoon. She brought in a good amount of mail for New Zealand, 1,013 bags in all of which 306 were for Auckland. Sydney was reached on the 22nd, passing the Heads at 5.20 a.m. and alongside no. 5 Darling Harbour by 8:30 a.m.
Canada-bound, Aorangi took leave of Sydney at 5:00 p.m. on 29 April 1932 with her largest-- 322-- passenger list from the port in some time and called at Auckland 2 May, arriving at 9:00 a.m., landing 147 passengers and departing at 11:00 a.m. the next day. Among those sailing in her was Rear Admiral Geoffrey Blake, the retiring Commodore of the Auckland squadron, and on departure, the liner steamed close to the naval base at Devonport where his departure was cheered off by those on the quayside. An aerial salute was also performed by a Fairey seaplane from Hobsonville air base.
Aorangi had 44 passengers for Honolulu on arrival there at 5:15 p.m. on 12 May 1932 and was off for the mainland at noon on the 13th. By arriving off William Head quarantine station at 8:00 a.m. on the 19th and docking at the Rithet piers at 10:15 a.m. Aorangi had logged one of her smartest voyages from Honolulu in years, doing the 2,200-mile run in 6 days 16 hours. Only strong tides encountered after she passed Cape Flattery at 5:00 a.m., robbed her of breaking her own record for the trip. It was the best passage made yet under the command of Capt. Spring-Brown and done in ideal weather. She brought in 175 passengers (85 First, 47 Cabin and 43 Third). Aorangi proceeded to Vancouver at 1:30 p.m.
![]() |
| Aorangi sailing between Vancouver and Victoria, 1932. Credit: eBay auction photo. |
"Improved passenger traffic and freight consignments are reported for R.M.M.S. Aorangi" The Province hopefully noted in reporting her sailing from Vancouver on 25 May 1932 and among those aboard was a party of excursionists for Honolulu who would return aboard Empress of Asia as the C-A/CPR combination began to figure more and more in such promotions. And true enough, when Aorangi arrived at Honolulu on the 31st at 4:30 p.m. she had 41 passengers landing there and embarked 12 for the run rough which commenced at noon the next day. She got into Auckland at 2:15 p.m. on 12 June and had 44 disembarking there and off for Sydney the following day at 5:35 p.m. Aorangi had a rough crossing of the Tasman with fresh westerlies for the last two days that spoke of a full fledged gale in Sydney Harbour on the 15th and it was not until 12:50 p.m. on the 17th that was alongside her Darling Harbour berth, six hours late.
Aorangi went into Cockatoo Graving Dock on 21 June 1932 for hull cleaning and painting preparatory for her departure for Canada on the 23rd. She was all "shipshape and Bristol fashion" for this as she would be conveying the Australian and New Zealand delegations to the Ottawa Conference on imperial affairs.
Delegates to the Ottawa Conference were given a rousing send-off yesterday on the Canadian-Australasian liner Aorangi. A big crowd saw the sailing. and the liner was dressed, with a white 'Ottawa' pennant flying from the foremast. As she drew out from Darling Harbor ferry steamers sounded their sirens. With dense haze over the harbor she took over an hour to reach the Heads.
The Daily Telegraph, 24 June 1932.
The Canadian-Australasian Royal Mail motor liner Aorangi, which will carry the delegates to Vancouver, was decorated with flags fore and aft when she left No. 5 wharf. Darling Harbour, at 4 o'clock yesterday afternoon. Hundreds of people were on the wharf to bid the passengers farewell.
The special office provided on C deck was crowded with typewriters and attache cases. An adjacent cabin was filled with steel cases containing official documents, carefully padlocked. The party was obviously prepared for intensive preparatory work during the voyage. The Prime Minister (Mr. Lyons) and Mrs. Lyons arrived on the wharf few minutes before the Aorangi sailed, and hurried up the gangway to bid farewell to the delegates.
Sydney Morning Herald, 24 June 1932.
R.M.M.S. Aorangi (Capt. William Martin commanding in relief of Capt. Spring-Brown) sailed amid stirring scenes from a foggy Sydney at 5:20 p.m. on 23 June 1932, the departure seen off by Australian Prime Minister Lyons. The delegation of some 12 ministers and experts was led by the Rt. Hon S.M. Bruce, Federal Minister without portfolio, and the Hon. R.S. Gullett, Minister of Trade and Customs.
![]() |
| Aorangi sails from Auckland with the New Zealand and Australian delegates to the Ottawa conference. Credit: Auckland Weekly News, Auckland Libraries. |
When Aorangi arrived at Auckland on at 6:25 a.m. 27 June 1932, the New Zealand delegation reached the port from Wellington by the Limited Express and this was led by the Rt. Hon. J.G. Coates, Minister of Public Works and Employment and the Hon. W. Downie Stewart, Minister of Finance and Customs. Aorangi landed 100 passengers there and departed at 11:25 a.m. the next day and such was the crowd that admission to the wharf was by special ticket only and "cheers were given for the delegates as the vessel moved out." In all, she went out with 63 delegates and their staffs and wives.
Aorangi's New Pennant. A white pennant, bearing tho word 'Ottawa' in large black letters, added a novel touch to R.M.M.S. Aorangi as she lay at her moorings alongside Prince's wharf this morning. The new pennant flew from the masthead at the fore, and from the yard a few feet below fluttered tho pennant with the ship's name, and that of the Royal Mail, in addition to the Blue Peter, the small flag which indicates that a vessel is about to sail. Three pennants and a flag made an unusual display from the fore. The mizzen mast carried the customary 'house flag.'
Auckland Star, 28 June 1932.
One could not blame Captain "Bill" Martin if, when the Aorangi, caught in unfavorable conditions at Suva on her way north, knocked a hole in the wharf, he suspected that the applause of the natives might indicate that they were supporters of an opposition line. Officers of the ship said yesterday, when the liner berthed again in Sydney, that the natives danced with delight and cheered enthusiastically as the bow crunched its way through the timber. Actually their joy was at seeing something not on the programme; a relief from the monotony of life at Suva.
The Daily Telegraph, 13 August 1932.
Arriving at Suva on 1 July 1932, Aorangi approaching the King's wharf was caught in a strong ebb tide, crashing into the pier at an angle of 60 degs, smashing decking and beams of the structure to a depth of 30 ft. and causing £2,000 in damage. The delegates aboard were treated to luncheon ashore hosted by the Governor before resuming passage at 3:00 p.m. having embarked two delegates from Fiji for the conference. She arrived at Honolulu at 3:20 p.m. on the 7th, landing 18 there and embarking 23 before she resumed her voyage at noon the next day.
Aorangi made William Head, B.C. the morning of 14 July 1932 and alongside her Victoria pier at 10:30 a.m., 24 hours ahead of schedule. Arriving with 183 passengers aboard with 101 First, 48 Cabin and 43 Third Class. She extended her layover there to accommodate the official delegation going ashore and sailed for Vancouver at 2:30 p.m.
With 160 passengers, Aorangi cleared Vancouver and Victoria on 20 July 1932 and had 42 disembarking at Honolulu on the 26th, arriving there at 3:20 p.m. and off again the following noon. After experiencing "moderate weather and a heavy head swell on her run from Suva to Auckland," (Auckland Star, 8 August 1932), Aorangi reached New Zealand at 3:15 p.m. on 7 August, landing 77 passengers at Prince's wharf. She was dispatched for Sydney at 4:00 p.m. the next day, having embarked 86 additional passengers for the trans-Tasman run. Aorangi made Sydney the morning of the 12th and was alongside her Darling Harbour berth by 10:53 p.m..
At her usual departure time of 4:00 p.m., Aorangi cast off from No. 5 Darling Harbour on 18 August 1932 to begin another voyage to Canada. At Auckland on the morning of the 22nd, her passenger compliment was trimmed by 92 and she was on her north the following day at 11:00 a.m., having embarked 109 there. One of four liners arriving that day (the others being Empress of Canada, Rakuyo Maru and President Coolidge), Aorangi alongside Pier 7, Honolulu, at 2:00 p.m. on 1 September. She sailed for the mainland at noon the next day having only two landing there and embarking 12. Aorangi was some 24 hours of schedule as she neared the British Columbia coast, and due to be off William Head at 8:00 a.m. on the 8th. Her "light passenger list" was balanced by a fair cargo which included 1,600 cases of oranges, 400 boxes of lemons and "thousands of frozen Australian rabbits." With no fog to retard her, Aorangi reached William Head exactly when promised, or indeed 30 mins early.
"All the way from Sydney, which port was left three weeks ago, the Aorangi had fine weather, Capt. W. Martin, master of the ship, reported after he had safely docked his giant charge here this morning. The weather from Honolulu had been particularly fine. Yesterday evening the ship ran into spell of rough weather, but this did not delay her. She dropped anchor off the William Head quarantine station at 7.30 o'clock." (Times Colonist, 8 September 1932). It was another fast but certainly light crossing with but 66 passengers on her list, 12 First Class, 34 Cabin and 20 Third Class with 20 landing there, most of them destined for Seattle via Princess Marguerite. Aorangi proceeded to Vancouver at 11:00 a.m..
With 215 passengers ("a fairly heavy list under present day conditions," The Province), Aorangi (Capt. W. Martin) left Vancouver and Victoria on 14 September 1932. Her 4,000-ton cargo was made up of salmon, onions (5,800 sacks and 3,700 cases) and paper. Arriving at Honolulu at 1:30 p.m. on the 20th, she landed 39 passengers and 150 tons there before sailing the following noon. Calling at Suva on the 29th, Aorangi reached Auckland at 5:20 p.m. on 2 October where she landed 97 passengers, including some returning delegates from the Ottawa conference, as well 1,485 bags of English and American mail for New Zealand, including 415 bags for the local port. She left for Sydney at 10:00 p.m. on the 3rd and arrived first thing on the 7th.
After six years of silent pictures, the Royal Mail liner Aorangi, which arrived from Sydney yesterday, has now become 'talkie.' At a demonstration of the new apparatus, which is of standard size, and was installed at Sydney, a number of local residents were guests of the Union Steamship Company last evening in the vessel's first class lounge, which is used as the picture theatre at sea. For two hours on Monday and Friday evenings passengers are entertained with a programme which may include a comedy, a drama, varied 'shorts' and scenic views of such countries as Australia, New Zealand, Fiji, Hawaii, Canada, Britain and the United States.
Auckland Star, 18 October 1932.
On arrival at Sydney, Aorangi was fitted with apparatus and speakers for the presentation of "talkies" aboard starting with her next outbound voyage. Line officials credited the late Captain Robert Crawford with lobbying for movies at sea to break the monotony of the long voyage and had advocated for "talkies" aboard Aorangi as soon as they became practical.
Aorangi cleared her Darling Harbour berth at 5:07 p.m. on 14 October 1932 and was in Auckland by the morning of the 17th and left at 11:30 a.m. the next day. On arrival at Honolulu on the 27th, she impressed all with her smart manouvering:
The Canadian Australasian liner Aorangi made a perfect turn and slipped alongside Pier 7 at 5:15 p.m.. Thursday, with the Dollar liner President McKinley berthed at Pier 8 just a few feet distant. Capt. J. F. Spring-Brown was on the bridge as the liner made the turn. A big crowd had gathered on the Ala Moana at the end of the slip in order to watch the Aorangi come into the limited space left at the dock. The ship was berthed at Pier 7 so as to facilitate the handling of 30 tons of cargo from the vessel to the Canadian liner Empress of Canada for transshipment to the Far East.
Honolulu Star Bulletin, 28 October 1932.
Of Aorangi's few passengers, only two landed at Honolulu and seven embarking before departing for the mainland on 28 October 1932. Ending another fast passage north in fine weather, Aorangi reached William Head quarantine station at Victoria at 3:00 p.m. on 3 November and alongside her Rithet pier by 4:00 p.m. or 15 hours ahead of schedule. She landed a few passengers, 40 tons of freight and 300 bags of mail for transshipment to the United States. Her main 2,000-ton cargo for Vancouver included chilled meat, wool, hides, hardwood, kauri gum, dried fruit and butter.
"With a good general cargo of 3,000 tons and a passenger list of 200 in all classes," Aorangi sailed from Vancouver and Victoria on 9 November 1932 for the Antipodes. She was detained 12 hours awaiting late mails. There were 155 passengers through booked and 32 disembarking at Honolulu on arrival at 9:45 a.m. on the 16th, after a difficult docking occasioned by strong southerly winds, the ship being completely turn around before entering the channel and making it difficult for quarantine, customs and immigration officials to board the ship. Aorangi resumed her voyage at 4:00 p.m., after embarking 11 additional passengers. At Suva on the 25th, the Tongan Choir embarked for a concert tour of New Zealand and Australia as well as Princess Fusibala Tubon. Aorangi arrived at Auckland at 9:30 a.m. on the 28th, landing 97 passengers there, and departing for Sydney at 10:00 p.m. She came in with 1,572 bags of English and American mail for New Zealand, 476 of which and 80 bags of parcels were for Auckland. Aorangi came into Sydney the morning of 2 December.
![]() |
| Credit: The Daily Telegraph, 9 December 1932. |
Aorangi left Sydney on 8 December 1932 at 5:35 p.m., back under the command of Capt. Spring-Brown who had her at Auckland first thing on the 12th. Among those she landed were members of the crew of the Melanesian Mission vessel Southern Cross, lost on Aneityum Island in the New Hebrides. Aorangi sailed for Suva and northern ports at 12:40 p.m. the next day. Sadly, three hours after clearing Fiji, a passenger, Mrs. W. R. Rutherford, died of a heart attack, and was buried at sea. Aorangi had 14 passengers to land on arrival at Honolulu on the 22nd, docking there at 6:15 p.m. and off at noon the next day, adding 13 to her list. Her passengers celebrating Christmas at sea, Aorangi came into William Head, Victoria, at noon on the 29th and alongside an hour later and once again, almost a full day ahead of schedule. She brought in small list of just 37 (!), 21 First, 12 Cai and four Third Class, twelve of whom landed there. Her cargo totalled 1,800 tons. Aorangi sailed on the last leg of her voyage to Vancouver at 2:00 p.m..
![]() |
| Credit: Wallace B. Chung and Madeline H. Chung Collection, University of British Columbia. |
1933
There were 150 passengers, including "Miss Seattle," Miss Betty Coulter, whose passage was part of her prize, departing Vancouver and Victoria for Hawaii and the Antipodes aboard Aorangi's first sailing of the year on 4 January 1933 which began at 2:00 p.m., two hours late due to awaiting special cargo. She left Victoria that evening at 9:00 p.m. for Honolulu where she docked the morning of the 11th to land 43 passengers and 250 tons of cargo and resumed passage at 4:00 p.m. after embarking 15. After calling at Suva, there were 230 aboard when Aorangi arrived at Auckland at 3:00 p.m. on the 22nd where 84 disembarked and another 150 boarded for the trans-Tasman crossing which began at 3:25 p.m. on the 23rd. Among those who embarked at Suva were Prince Uliame Tugu, Prince Consort and Premier of Tonga and the Crown Prince of Tonga, Taufa'ahau, both bound for Sydney, the Crown Prince to attend university there. Two stowaways were discovered during the voyage-- an Australian, who boarded at Vancouver and was discovered after the vessel left port, who would be turned over to authorities on arrival at Sydney; and an American, who got aboard at Honolulu and remanded to police at Suva..
The theatre sound system which was installed on the Aorangi a few months ago has proved successful, and passengers speak highly of the talkie film programmes that are screened in the evening at sea. The portable equipment, in charge of Chief Wiireless Officer Gordon Power, was specially designed for the vessel by Mr. W. D. Kerrigan, of Sydney, who was aboard the vessel yesterday oil return from Suva. A number of executives and staff of the Colonial Sugar Refining Company on annual leave embarked at Fiji, being allotted cabins on D deck. The little joke of the ship was this mark of exclusiveness. They called their quarters the "C.S.R. Flats!"
Auckland Star, 23 January 1933.
Passing Sydney Heads at 10:00 a.m. on 27 January 1933, Aorangi berthed at Darling Harbour by noon. On the 30th, the liner shifted to Cockatoo Graving Dock for hull cleaning and painting and returned to no. 5 Darling Harbour on 1 February to lead for her voyage north beginning the next day.
Among Aorangi's outbound cargo on 2 February 1933 were many boxes of Australian grain varieties destined for the World Grain Exhibition in Regina, Canada, from all parts of the county. She also carried two Australian-made seaplanes for a mail and passenger service based on Suva. For this, she also carried a 25-ft. motor launch for use as a tender. Among her 221 passengers were members of the returning American tennis team: W. Alison, H.E. Vines, J. Van Ryn and K. Gledhill.
![]() |
| United States of America tennis team at their farewell, Sydney, 7 February 1933. Credit: National Library of Australia. |
Aorangi reached Auckland at 7:50 a.m. on 6 February 1933 where 152 passengers disembarked, including the American tennis team, which would began a tour in New Zealand, as well as two stowaways. The liner sailed at 11:30 a.m. the next day for Vancouver. On the 14th, the Honolulu Star Advertiser reported that Aorangi, "operating on a slightly reduced speed," for no cited reason, would reach the port at noon on the 17th, later than expected. She docked at Pier 7 at 2:25 p.m. to land 7 passengers of the 114 aboard and was on her way at 8:00 p.m. Enjoying good weather until the last two days when heavy swells and high winds were encountered in the North Pacific, Aorangi arrived at William Head at Victoria at 7:30 a.m. on the 24th and had just 18 First, 33 Cabin and 19 Third Class aboard. She departed for Vancouver at 9:00 a.m.
Cooperation between C-A and CPR increased in the New Year and to spur passenger bookings on the segments, it was announced on 1 February that two "sea holiday" trips would be offered that spring from Vancouver and Victoria to Honolulu. The first, departing on Aorangi on 26 April 1933 and returning aboard Empress of Japan, returning 9 May and the second beginning on 24 May in Niagara and returning in Empress of Canada.
![]() |
| Aorangi, outbound from Vancouver. Credit: Walter Frost photograph, City of Vancouver Archives. |
At her usual time of noon, Aorangi cast-off from Vancouver on 1 March 1933 and called at Victoria 5:00-8 p.m. taking away a passenger compliment described as "light" and a 3,000-ton cargo. How "light" was shown when there were only 11 passengers landing at Honolulu at 4:00 p.m. on the 8th along with 231 tons of cargo, one auto and 11 bags of mail. Strong headwinds delayed her arrival somewhat and Aorangi sailed south at 10:00 p.m.. Calling at Suva on the 17th, she took on 4,362 cases of bananas, the largest such consignment to date, as well as 1,500 of cases of Fijian fruit, for New Zealand. Encountering some fog between Moko Hinau Island and the Little Barrier, Aorangi reached Auckland at 5:15 p.m. on the 20th. She brought in 1,272 bags of English and American mail for New Zealand: "As soon as the Aorangi anchored in the stream 150 bags of letters for the South were lowered into the waiting postal launch. The mail was landed from the launch at Queen's Wharf and was then taken by motor-lorries to the railway station. It was dispatched by " the limited express at 7 p.m." (New Zealand Herald, 21 March 1933). Aorangi left for Sydney at 5:15 p.m. on the 21st and arrived there at daybreak on the 25th.
Whilst alongside no. 5 wharf, Darling Harbour, Aorangi hosted 500 members of the English Speaking Union aboard on 29 March 1932 and enjoyed many of the traditional shipboard activities even if still tied up in port:
Every phase of shipboard entertainment was enjoyed by the crowd of over 500 members of the English Speaking Union and their friends, on board the Aorangi yesterday afternoon. Up on the sports deck were dozens of energetic young girls competing at deck tennis, shuffle-board, and quoits. The older women packed the lounges for bridge, while 8 smaller crowd filled the music-room, where Mrs. Harry Twigden, Mrs. Stephen Herford, and Mrs. Frank Walker, of the music circle, were in charge of the programme. This ship entertainment was the first social function organised by the for the purpose of raising money, and was a remarkable success. The president (Sir Henry Braddon) officially thanked the Union Steamship Company for the delightful afternoon, to which Mr. Hamlyn replied on behalf of the company. Lady Braddon was frocked in black flat crepe, which had a triangular yoke back and front of ivory georgette, and wore a large black hat, banded in white.
Mrs. John K. Caldwell, who accompanied Mr. Caldwell (Consul-General for America), carried off the honors for the smartest dressing.
The Daily Telegraph, 30 March 1933.
Aorangi left Sydney for Vancouver on 30 March 1933 with 200 passengers (including the victorious English cricket team returning home with The Ashes), of whom half disembarked on arrival at Auckland on the morning of 3 April. She left for Suva and points north at 12:30 p.m. the following afternoon.
The presence of the English cricket team, returning to their homes in England after winning the historic "ashes" in Australia, made the voyage an unusually lively one. The boys were in fine fettle all the way from Sydney arranged a series of entertainments for the other passengers. They proceeded to Vancouver with the Aorangi and will sail for England either from Montreal by the Ss. Duchess of Atholl or from New York by the liner Berengaria.
The Victoria Daily Times, 21 April 1933.
Aorangi came into Honolulu at 1:00 p.m. on 14 April 1933 and left at 9:00 p.m., and again there were few availing themselves of the call, only eight disembarking there and 30 tons of cargo discharged and 21 passengers joining the ship for the trip to mainland, making for 150 (75 First, 48 Cabin and 27 Third) in all. Dense fog was encountered at 1:00 a.m. on the 20th as the liner approached the Strait of Juan de Fuca and persisted up to Race Rocks, "the only unpleasant chapter of an otherwise delightful and uneventful voyage." Aorangi was alongside at 10:00 a.m. and docked at Vancouver at 6:00 p.m.
To give in transit passengers more time at Honolulu, C-A announced on 1 April 1933 that Aorangi and Niagara would depart from Vancouver earlier so that they would reach Honolulu on Tuesday afternoons instead of Wednesday morning.
![]() |
| Aorangi at Vancouver's Pier C, 1933. Credit: James Crookall photograph, City of Vancouver Archives. |
![]() |
| Aorangi loads cargo at Vancouver, 1933. Credit: James Crookall photograph, City of Vancouver Archives. |
![]() |
| Lifeboat drill alongside at Vancouver, 1933. Credit: James Crookall photograph, City of Vancouver Archives. |
Among Aorangi's 160 passengers for her 26 April 1933 sailing from Vancouver and Victoria were 20 booked on the first of the Honolulu excursions who would return in Empress of Japan. This was also be the ship's first sailing with the earlier departure time, but instead she was delayed there waiting for passengers to arrive by train from the east after a slide near Mount Nelson in the Rockies blocked the Canadian National train they were aboard. Aorangi finally arrived at Victoria at 5:40 p.m. She did reach Honolulu until 7:45 a.m. on 3 May and left at 12:30 p.m. for the Antipodes. Departing Suva on the 12th (as the northbound Mariposa arrived there from Auckland), Aorangi reached Auckland at 5:40 p.m. on the 15th, over two hours late after encountered a moderate southerly wind and head swell after departing Suva. She sailed for Sydney at 5:45 p.m. the next day and docked at no. 5 Darling Harbour at 9:00 a.m. on the 20th.
It was time again for Aorangi's every four year refit and she would miss a round trip on arrival at Sydney and her northbound sailing on 25 May 1932 (from Auckland on the 30th) taken by Monowai. Aorangi's refit in Sydney was carried out under the supervision of Mr. H. Lockhart, Chief Engineer, and Mr. D.M. Gillies, Union's superintending engineer. As usual, much of the work was accomplished alongside her usual no. 5 wharf in Darling Harbour but on 5 July she was shifted to Cockatoo Graving Dock for the cleaning and painting of her hull and inspection of her shafts and propellers. On the 11 the she was back at no. 5 for completion of the work and to load for her northbound voyage.
Spick and span in her new paint, with all her brasswork gleaming in the morning sun, the newly overhauled R.M.M.S. Aorangi looked just as a liner should look when she drew into the Prince's wharf this morning on the completion of her voyage from Sydney. She has been off the Auckland-Sydney run since May 19, when the Monowai took her place. The Aorangi has been coming to Auckland since February, 1925, and this was her second overhaul in eight years. All the interior decorations have been renovated, both in the cabins and in the various lounges, and even the grill work round the lifts. The repair work was carried out by the repair department of the Union Company at Cockatoo Island, in Sydney.
Auckland Star, 24 July 1933.
An immaculate R.M.M.S. Aorangi resumed service upon he departure at 4:15 p.m. on 20 July 1933 for Vancouver. After a trans-Tasman voyage described as "calm and uneventful, though on part of the way south to south-east winds were encountered with a 'bit of chop," (Auckland Star), Aorangi arrived at Auckland at 6:45 a.m. on the 23rd to land 37 passengers. She resumed passage the following morning at 11:00 a.m. With a clean hull, she made a fast passage north and reached Honolulu on 3 August at 5:00 p.m. instead of early on the 4th, but had only 12 passengers to land there and 18 tons of cargo before sailing for Canada at noon the next day, embarking 34 for the last leg, making for a total of 117 (52 First, 44 Cabin and 22 Third) aboard. Aorangi made William Head at 7:00 a.m. on the 10th, or 24 hours ahead of schedule, and alongside by 8:15 a.m. She docked at Vancouver that evening to land her remaining 100 passengers and cargo, including 4,100 boxes of Australian citrus fruits.
After a brief holiday in Banff between voyages, Capt. Spring-Brown was back on Aorangi's bridge to take her out at 10:30 a.m. on 16 August 1933 with 125 passengers. The new earlier departure time of 10:00 a.m. continued to elude her and she was 30 minutes late in getting away when an especially heavy last minute English mail arrived pierside at 9:00 a.m. She had 48 passengers to land at Honolulu on arrival at noon on the 22nd and on her way at 11:00 am the following morning with just 71 through passengers. Aorangi made Auckland at 1:00 p.m. on 3 September where she landed 66 passengers and off for Sydney at 5:30 p.m. on the 4th where she arrived at 8:00 a.m. on the 8th.
![]() |
| Aorangi in Sydney Harbour, passing what is now the site of the Sydney Opera House. From a photocard posted in 1933. Credit: eBay auction photo. |
Beginning her northbound voyage, Aorangi (Capt. T.V. Hill in relief of Capt. Spring-Brown)) cleared Sydney's Darling Harbour at 4:10 pm. on 14 September 1933. After enjoying an "exceptionally fine weather trip across the Tasman," she came into Auckland at 6:55 a.m. on the 18th. " Exceptionally fine weather on the run across the. Tasman from Sydney to Auckland was experienced by the Aorangi, which berthed at the Prince's wharf at 7 o'clock this morning. The vessel left Sydney at 3 p.m. on Thursday, and the sea practically throughout was as smooth art glass. Good time was made, and yesterday morning, when the Three Kings was reached about 9 o'clock, speed was reduced, and very leisurely headway was made down the coast, as it was not intended that she should reach port until this morning. A mild case of influenza was treated on the ship, and a child who developed measles was taken from the ship to hospital by the St. John Ambulance on arrival." (Auckland Star, 18 September 1933). Aorangi landed the first shipment of Australian oranges, some 1,000 cases, at Auckland for the first time since the embargo was lifted. She was off to Suva and point north at 11:25 a.m. on the 19th.
Passenger figures did not make for cheery reading in 1933 and indeed the first reference to her numbers on this voyage was upon arrival at Honolulu at 4:00 p.m. the afternoon of 28 September when she landed 10 there before departing at 11:00 a.m. the following day, another 25 embarking. Once again dense fog met her off Cape Flattery and into the Straits, delaying her arrival at Victoria by two hours but she was alongside by 11:00 a.m., still nearly a day ahead of schedule. Aorangi came in with all but 59 passengers aboard and 2,000 tons of cargo, 100 tons of which was landed there before she departed for Vancouver at 1:00 p.m., arriving at 6:30 p.m.
Still not attracting the numbers she once enjoyed during the "Roaring Twenties," Aorangi's 11 October 1933 departure for the Antipodes had only 172 passengers and of those, 34 were going only as far as Honolulu where she docked at 1:30 p.m. on the 17th and again had an overnight call there, not departing until 11:00 a.m. the next morning. Among those aboard was the New Zealand delegation returning from the Institute of Pacific Relations Conference in Banff who were met by prominent Hawaiian businessmen on arrival and overnighted at the Royal Hawaiian.
![]() |
| Credit: Honolulu Star Advertiser, 18 October 1933. |
Aorangi reached Auckland at 3:35 p.m. on 29 October 1933 "after an uneventful trip from Vancouver" and of her 200 passengers, 118 landing there along with 1,355 bags of English and American mail, 380 of which were for Auckland. Leaving for Sydney at 10:00 p.m. on the 31st, she arrived there by 8:30 a.m. on 3 November. It was a tempestuous Tasman and a day out of Auckland, Aorangi sailed into a full gale from the southwest and hit by a rogue wave on her portside, inundating the liner right up to her Boat Deck: "It was the only sea to come aboard, but it wrenched away wooden panelling over pipes beneath the awning, broke several windows, and twisted ventilators on the deck. Water sluiced into the cabins, and tables were sent hurtling across the public rooms." (The Daily Telegraph, 4 November 1933).
Aorangi (Capt. Spring-Brown) departed Sydney at 3:00 p.m. on 9 November 1933 docking at Auckland on the morning of the 13th after another rough Tasman trip, with a heavy southwesterly swell, with 80 of the 132 aboard landing there. She resumed her passage at 11:25 a.m. the following morning. There were only six customers for Honolulu reached on the morning of the 24th and she carried on northwards at 4:00 p.m. the next day . "With the smallest passenger list from the Antipodes," (33 in all!) Aorangi met with rough weather just of Hawaii and headwinds, she did not arrive at Victoria until 7:00 a.m. on 1 December. She had over 1,000 tons of cargo and 600 bags of Christmas mail. Aorangi docked at Pier B at 2:45 p.m. to end "one of the quietest voyages" in her career and her 54th, logging 800,000 miles.
![]() |
| Credit: The Province, 2 December 1933. |
R.M.M.S. Aorangi would be the Christmas Mail Boat for the Antipodes on her voyage south which would, as announced on 4 December 1933, be delayed from a scheduled departure on at 10:00 a.m. on the 6th to midnight to await "Old Country Christmas Mail" which had been landed on the East Coast by R.M.S. Duchess of Atholl and being rushed across Canada by train. Aorangi arrived at Victoria at 7:00 a.m. on the 7th and left at 9:30 a.m. with 100 passengers. She had a rough passage south and instead of arriving at Honolulu the afternoon of the 7th, she did not come in until 9:30 p.m. and alongside Pier 7 at 10:30 p.m. to land 33 passengers and had 70 through fares to the Antipodes. Her Christmas mail consignment was augmented by 100 bags transhipped from the Matson freighter Manalani which docked from San Francisco on the 13th in time for Aorangi's departure south the next morning.
Alas, Aorangi and her 1,319 bags of mail arrived in Auckland, too late for Christmas and arrived on Boxing Day morning at 6:30 a.m.
Heavy weather between Vancouver and Honolulu was experienced by the mail liner Aorangi, which arrived this morning with passengers and mails. The sea was exceptionally rough during the first two or three days out. but moderated as the tropics were neared, and for the remainder of the voyage the Pacific was placid. Christmas was celebrated in traditional manner. A gymkhana was held yesterday for the 50 children on board in all classes. A sports programme was carried out, and every child received a prize, which will be valued by many of them as a souvenir of a happy Christmas spent at sea. The saloons were decorated for Christmas dinner last night, and the day ended with a fancy dress ball. Nearly 100 of the passengers who joined at Suva are employees of the Colonial Sugar Refining Company, on three months' leave after spending three years in Fiji.
Auckland Star, 26 December 1933.
Aorangi left Auckland at 5:00 p.m. on 26 December 1933 for Sydney and docked there at 8:00 a.m. on the 30th.
![]() |
| Credit: Wallace B. Chung and Madeline H. Chung Collection, University of British Columbia. |
1934
Four days into the New Year, Aorangi was again off for Canada, departing Sydney at 4:20 p.m. and "after a calm trip," arrived at Auckland at 6:45 a.m. on the 8th and off again the following morning at 11:25 a.m. Passenger loads remained dismal and when she docked at Honolulu at 6:00 p.m. on the 18th, she had only two to land there, 18 bags of mail and 45 tons of freight. She left for the mainland the following noon and making good time again in "fair winds and following seas," reached Victoria on the 25th at noon, almost a day early. She came in with only 56 passengers, though, and 2,000 cases of New Zealand butter. Resuming passage at 1:25 p.m., Aorangi reached Vancouver by 7:30 p.m. to land her remaining 42 passengers at Pier C.
![]() |
| Aorangi on departure from Vancouver. Credit: Walter E. Frost photograph, City of Vancouver Archives. |
With 110 aboard, Aorangi departed Vancouver at 10:00 a.m. on 31 January 1934 and from Victoria at 6:00 p.m.. "The sun will be just slipping over the horizon when the green hulled Aorangi comes rolling in from Vancouver early this evening," was the rather poetic introduced to the Star-Bulletin's report of her arrival at Honolulu at 5:00 p.m. on 6 February with 41 passengers (including CPR vice president D.C. Coleman and wife) for the port and only 40 through fares after a "smooth trip down" and a fast one once she cleared fog off the northwest Pacific Coast. She sailed southbound at 11:00 a.m. the next day, having added only five to her list. Her arrival at Auckland at 2:00 p.m. on the 18th was notable mainly in being the first time the well-known tug there, Te Awhina, tried out her new flying bridge atop the wheelhouse to give her captain a better view of pilot on the bigger liners. Aorangi sailed the following evening at 6:50 p.m. for Sydney, arriving there on the 23rd.
Aorangi left Sydney at 3:00 p.m. on 1 March 1934 (numbering Sir Murchison Fletcher, Governor of Fiji among her passengers) and it was not a departure without some excitement:
A mishap which might have had more serious results marked the sailing of the Aorangi on Thursday last from Sydney for Auckland. When the vessel was going down Darling Harbour about a mile from her berth, a gust of wind caught her and swung her head round. Carried off her course she approached dangerously near the ferry boats moored at Blue's Point oil the opposite side of the harbour. Both her anchors were at once dropped and these checked her progress as she cleared shallow water. Two powerful tugs were rushed to the spot, lines were made fast, and, with the help of the ship's own engines the Aorangi was slowly swung on to her course again. She passed under the Sydney harbour bridge a few minutes later fully under control. Apart from the excitement at the beginning of the voyage, there was nothing unusual on the Aorangi's Tasman crossing. The weather was line and the sea comparatively calm.
Auckland Star, 5 March 1934.
Without further ado, Aorangi reached Auckland the morning of the 5th at 6:35 a.m., resuming passage the following day just before noon and on departure from Suva. Off Honolulu at daybreak on the 17th, she was alongside Pier 7 by 7:45 a.m. to disembark 15 passengers, including one who transferring to the Orient-bound Empress of Japan. Aorangi left for Victoria at 4:00 p.m. with 118 passengers and 2,000-ton cargo and arrived there at 7:00 p.m. on the 22nd, 12 hours ahead of schedule. She docked at Vancouver the next morning.
The southbound Aorangi cleared Vancouver at 10:00 a.m. on 26 March 1934 and Victoria at 5:30 p.m. with another light list (154 in all) but 4,500 tons of cargo including a large shipment of new automobiles and a heavy mail consignment. When she arrived there at 3:30 p.m. on 3 April, Aorangi was the first of eight liners to call at the port in the next six days. She landed 18 passengers and 120 tons there and left the next morning at 11:00 a.m., taking aboard 137 bags of mail from the Matson freighter Manulani inbound from San Francisco. Aorangi made Auckland at 3:35 p.m. on the 15th: "With a light passenger list — a reflection of the season of the year —the liner Aorangi arrived at Auckland from Vancouver, via Honolulu and Suva, yesterday afternoon. As the vessel, which experienced a fine weather and uneventful voyage across the Pacific, came into her berth at the Prince's wharf, she was watched by an unusually large crowd of Sunday afternoon visitors to the waterfront, who were congregated at the end of the Queen' s wharf and in the vicinity of the launch steps." (Auckland Star, 16 April 1934). She landed 36 passengers there and departed for Sydney the following evening just before midnight where she arrived at 8:30 a.m. on the 20th.
![]() |
| Aorangi arriving at Sydney under the newly completed Harbour Bridge. Credit: Lyttleton Museum. |
For the English-Speaking Union, Aorangi once again hosted a "Shipboard at Home" reception alongside her Darling Harbour wharf at 2:00 p.m. on 23 April 1934 featuring bridge, music, deck sports followed by tea which attracted some 500 attendees.
Off on the real thing, but with fewer people, Aorangi left Sydney on 26 April 1934 at 4:20 p.m. for Canada (among those aboard were Sir Emund Vestey, owner of Blue Star Line, and Lady Vestey, Sir Percy MacKinnon, chairman of Lloyds, and daughter) and docked at Auckland on the 30th "after a calm and uneventful crossing." She left at 11:00 a.m. the following day, and joining the ship was W.A. Clark, millionaire sheep rancher of New Zealand, with Mrs. Clark, son Master J.W. Clark, his companion Master Ian W.O. Graham, and a tutor and a maid, bound for a tour of the Rockies before embarking at Quebec in Empress of Australia for England. There were 18 landing at Honolulu the morning of 11 May and Aorangi was off to British Columbia at 4:00 p.m., with a good list of some 200 passengers including 27 roundtrip excursionist returning from Hawaii having gone out in Empress of Canada on 5 May. She was alongside at Victoria by 5:30 p.m. on the 17th, 12 hours ahead of time, and arrived at Vancouver the following morning at 7:00..
![]() |
| Aorangi alongside her regular berth, Pier C, at Vancouver. Credit: Wallace B. Chung and Madeline H. Chung Collection, University of British Columbia. |
Due to depart Vancouver at 11:00 a.m. on 21 May 1934, Aorangi was once held over on account of the tardy arrival of Aquitania from Southampton on the 12th which was a day late reaching New York on account a storm in the Atlantic. Aorangi was not able to get away until 10:00 a.m. the next day. Her outbound cargo, one of the heaviest in some time, totalled 6,000 tons and made up of automobiles, canned salmon and paper. There were 16 disembarking at Honolulu when Aorangi docked there at noon on the 30th and owing to the delay, she left that same day at 6:00 p.m..
After a final delay caused by heavy fog on entering the Waitemata, Aorangi berthed at Auckland at 9:00 a.m. on 11 June 1934, two hours late. She had already made up most of her earlier delay owing to splendid weather:
However, the Aorangi made up much of the lost time on a fast trip over via Honolulu and Suva. Passengers described the crossing as being the calmest for many years—the Pacific was like a millpond the whole way. Arriving off the Rangitoto beacon at about 6. 30 this morning the liner ran into a heavy fog, and Aucklanders wakened to the heavy booming of her steam fog horn. With engines dead slow she 'felt' her way up the harbour, assisted by the moaning of the syren on the eastern tide deflector and the clanging of the position bell on the Queen's wharf.
At 8.30 she was off the Prince's wharf, which, although only about 100 yards away, could scarcely be discerned. Very carefully the tug nosed her nearer, and she was finally tied up just before nine o'clock.
Auckland Star, 11 June 1934.
The mail which had caused so much delay was certainly worth it in sheer quantity and Aorangi came in with 2,163 bags of English and American mail and another 170 bags of parcels. She also brought in a big cargo for Auckland and extra watersiders were hired to get her unloaded and on her way. Wasting little time, Aorangi departed for Sydney at 11:30 p.m. on 11 June 1934, arriving there at 8:30 a.m. on the 15th.
It was time for one of her regular hull cleanings and repaintings for which Aorangi was shifted to Cockatoo Graving Dock on 17 June 1934 and returned to no. 5 Darling Harbour late on the 19th.
![]() |
| Capt. Spring-Brown, Jean Batten and Charles Ulm and Miss Batten with her Tiger Moth aboard Aorangi. Credit: Walsh Memorial Library, The Museum of Transport and Technology (MOTAT). |
Aorangi left Sydney with a clean bottom at 3:00 p.m. on 21 June 1934, and with two famous aviators bound for New Zealand: Miss Jean Batten (and her aeroplane) returning after her record breaking flight from England to Australia and Charles Ulm, co-pilot of Sir Charles Kingsford-Smith on his historic trans-Pacific flight. . Dressed overall, Aorangi docked at Auckland at 7:00 a.m. on the 25th. "Our Jean" received a tremendous quayside reception as she arrived back in her town and all ships in port were dressed overall amid a din of whistles as Aorangi edged into Prince's Wharf.
The greeting accorded Miss Batten this morning was comparatively modest, but only because of the early hour at which the Aorangi came up the harbour. Day had hardly broken when the liner appeared round North Head, and a lone 'plane which circled overhead was now easily distinguishable. Ferries crossing the harbour tooted shrill blasts of welcome, and if Miss Batten noticed the vessels at the silent wharves she saw that they were all gaily dressed with bunting in her honour. As the liner neared her berth at the Prince's wharf the single aeroplane, which had greeted the Aorangi in Rangitoto Channel was joined by another 'plane, and the two combined to provide a droning welcome from the sky.
On the wharf an enthusiastic crowd waited impatiently to show Miss Batten just how proud they were of her, and her first appearance, high up on the bridge of the liner, was the signal for a burst of cheering. A band on the wharf struck up a lively tune, and all eyes were focused on the diminutive figure as long as it waved back greetings from the bridge rail.
Auckland Star, 25 June 1934.
Given a suite for the crossing by Union S.S., Miss Batten landed with Buddy, a five-week-old kitten whom had been given her by patients at the Prince of Wales Hospital in Sydney which already had 18 hours flying time with her from Melbourne to Sydney and then to Brisbane. Her Tiger Moth was carefully landed shortly after she disembarked.
Aorangi cleared Auckland before noon on 26 June 1934 for the north. An additional passenger was added the next day when a baby girl was delivered to Mrs. "Billy" Townsend, wife of the boxer of Vancouver. Christened Margaret Jacqueline Aorangi Townsend, " The small girl made her appearance June 27, the day after the liner cleared from Auckland for Suva, en route to Victoria. The day was a perfect one and the liner steamed along at eighteen knots as the new arrival came Into the world. Dr. E. O'Neill ship's surgeon, and the nurse and stewardesses officiated at the birth in the ship's hospital." (The Province, 12 July 1934).
![]() |
| Credit: The Vancouver Sun, 13 July 1934. |
Aorangi had 42 passengers to land at Honolulu on arrival at 2:30 p.m. on 5 July 1934 and an equal number embarking for the mainland for which she sailed at noon on the 6th with 149 passengers aboard and a 2,500-ton cargo. Capt. Spring-Brown once again got her to Victoria almost 24 hours early, arriving off William Head at 10:00 a.m. on the 12th and alongside by 11:00 a.m. Aorangi was "home" in Vancouver by 6:00 p.m..
Business picked up by mid summer and there were 180 aboard for Aorangi's next voyage south, beginning from Vancouver at noon on 18 July 1934, and 4,000 tons of cargo; she was two hours late awaiting a final consignment of automobiles. Among those aboard was Premier W. Forgan Smith of Queensland. Capt. Spring-Brown took her out but would go ashore on arrival at Sydney for annual leave and relieved by Capt. T.V. Hill for the return round voyage. Clearing Victoria at 5:30 p.m., Aorangi got into Honolulu on the 24th at 1:00 p.m., with 44 passengers, eight bags of mail and 290 tons of cargo for the port. Giving her through passengers an overnight in port, she resumed passage at noon the next day, 14 additional passengers embarking for the Antipodes. Aorangi came into Auckland at 8:55 a.m. on 6 August and was off to Sydney at 11:00 that evening and arrived there at 6:15 a.m. on the 11th.
The northbound Aorangi departed Sydney under Capt. T.V. Hill at 4:15 p.m. on 17 August 1934 and reached Auckland at 6:55 a.m. on the 20th, docking as usual at Prince's Wharf but on this occasion, overnighted in port and sailed north the following morning at 11:00 a.m. Among those embarking for Canada were two New Zealand pilots, M.C. McGregor and H.C. Walker, who were en route to England to compete in the London-Melbourne race that October. When Aorangi docked at Honolulu at 8:00 a.m. on the the 31st, there were 19 passengers landing there and she was off again by 3:00 p.m. after adding 30 passengers to her compliment. Doing her part in further Empire trade, when Aorangi arrived in Canada on 6 September she had 1,000 tons or 40,000 boxes of Australian raisins and currants among her 2,450-ton cargo. That was more impressive that the lean list-- 125- in all, she brought in passenger-wise, when coming into Victoria at 1:30 p.m. once again almost 24 hours ahead of schedule. She arrived at Vancouver at 9:30 p.m.
![]() |
| Aorangi on departure from Vancouver. Credit: Walter Frost photo, City of Vancouver Archives. |
During her turnaround at Vancouver, Capt. T.V. Hill was given, by an anonymous donor, two canaries when it was learned his beloved pet canary had escaped from its cage during Niagara's (his usual command) recent call at Suva. When Aorangi sailed south, Capt. Hill now had two companions, one each for his office and cabin, and ready to go back to Niagara with him in Sydney.
Captain, canaries and all in sundry were kept cooling their heals alongside Pier C, Vancouver on 12 September 1934 past the allotted 10:00 a.m. departure time, again waiting on delayed arrival of mails from England. She went out with the first display of British Columbia made products dispatched to the South Seas for a trade fair in Fiji opening on 8 October. Aorangi arrived at Honolulu at 4:00 p.m. on the 18th, with 4 passengers and 200 tons for the port and 200 through fares. After embarking 20 for the south, she sailed the next day at 11:00 a.m. It was 2:20 p.m. the afternoon of the 31st that Aorangi came into Auckland after a "fine weather" crossing of the Tasman. She brought in a good amount of mail, totalling 1,194 bags of English and American mail for New Zealand and another 283 bags of parcels from the U.S. Sailing for Sydney at midnight 1 October, Aorangi docked at Darling Harbour, no. 5, at 8:30 a.m. on the 5th.
With Capt. J.F. Spring-Brown back in command, Aorangi left Sydney at 4:18 p.m. on 11 October 1934, getting into Auckland at 6:55 a.m. on the 15th after a trans-Tasman crossing that started and ended with rough seas and had fine, calm conditions in the middle. She sailed for Suva midday on the 16th and reached Honolulu at 8:00 a.m. on the 26th, disembarking 13 passengers and discharging 84 tons of cargo there, and embarking 14 before departing for Victoria at 4:00 p.m. were she arrived on 1 November at 7:00 p.m. with only some 50 passengers aboard and proceeded overnight to Vancouver where Aorangi docked at Pier C at 7:00 a.m. the following morning.
The Depression lingered but reminding this was still a veritable Golden Age of trans-Pacific liners, on 7 November 1934 two of the greatest vessels plying its vastness-- Aorangi outbound to the Antipodes, and Empress of Canada, inbound from the Orient passed-- each other in the Gulf of Georgia. Aorangi, with 176 passengers and a big 4,000-ton cargo including 2,000 cases of apples, 80 automobiles and large amounts of paper and salmon, left Vancouver at 11 a.m (an hour late waiting for mails) and Empress of Canada due to dock there at 2:00 p.m. Aorangi cleared Victoria at 8:00 p.m. for Hawaii. Two days after leaving the B.C. Coast, she hit a severe westerly storm which raged for 24 hours, "although the conditions were as bad as any encountered b the ship for several years no damage was done." (Auckland Star). Delayed a few hours, Aorangi arrived at Honolulu at 7:30 a.m. on the 14th, 42 passengers landed and she proceeded south at 2:00 that same afternoon. Making an unusual evening arrival at Auckland, Aorangi made the port at 9:30 p.m. on the 25th with 220 passengers aboard, 114 landing there, as well as 1,500 bags of mail for New Zealand including 536 bags for Auckland. The liner proceeded to Sydney the next day at 11:00 p.m. and docked there at 8:00 a.m. on the 30th.
Aorangi was drydocked at Cockatoo from 1-3 December 1934 and departed for Auckland and points north at 5:08 p.m. on the 6th.
Rough weather conditions were encountered by the Union Company's R.M.M.S. Aorangi, which arrived at Auckland from Sydney this morning. On leaving Sydney on Thursday the liner encountered a southerly gale. The weather was better on Friday, but on Saturday the ship ran into an easterly gale, which was carried almost to port. Although no damage was done, the conditions were generally unpleasant, and a number of passengers kept away from the dining saloons. As a result of the storms, the vessel arrived over two hours behind schedule.
The Aorangi, which is to continue her voyage to Suva, Honolulu, and Vancouver at 11 a.m. to-morrow, brought 289 passengers. Among the 211 travellers who disembarked at Auckland were a number of Aucklanders returning after visiting Melbourne. A young Englishman who stowed away on board the vessel at Sydney was discovered soon after the ship sailed.
Auckland Star, 10 December 1934.
Delayed by three hours by bad weather in the Tasman (expected at 6:15 a.m. and coming in at 9:30 a.m.), Aorangi reached Auckland on 10 December 1934. Soaking rain accompanied her layover there the extent that it delayed her loading and instead of sailing at 11:00 a.m. the next day, it was not until 9:00 p.m. she was able to sail. Getting into Honolulu at 8:00 a.m. on the 21st, Aorangi dropped off 16 passengers, 40 bags of mail and 70 tons of cargo there and with the last mail of the week for mainland, sailed at 4:30 p.m. Her few remaining passengers "enjoyed a splendid Christmas entertainment on board while at sea," (The Province, 28 December 1934), Aorangi got into Victoria at 10:00 p.m. on the 27th, still 12 hours early despite being delayed some hours by rough weather on Christmas Day. She had only 84 passengers aboard. Aorangi docked at Pier C at Vancouver at 7:15 a.m. on the 29th and local residents got their first taste of a trial shipment she brought in from Suva of fresh bananas and pineapples from the Fiji Islands: 285 bunches and 74 crates of bananas and a smaller consignment of pineapples.
1935
The New Year began with Aorangi and Empress of Canada again passing each other on their lawful occasions on 2 January 1935 with the C-A flagship sailing from Vancouver at 11:00 a.m. for the Antipodes and the Empress arriving there from the Orient at 2:00 p.m. Among Aorangi's passengers were J.C. Irons, general manager of C-A and Mrs. Irons, on a survey trip of the Antiopodes and Reg. Black, general representative of Union S.S., with Mrs. Black, returning from a tour of the company's San Francisco-Tahiti route.
The year also began with a slashing of roundtrip fares on the C-A route for the off May-August season and effective for First and Cabin Class accommodation as well providing free stopovers in Honolulu and Suva.
Aorangi arrived off Honolulu at 5:00 p.m. on 8 January 1935 and alongside Pier by 6:00 p.m. to land 28 passengers and 15 tons of cargo and off for the south the next day at 11:00 a.m. A stowaway, Lawrence Merkley, 18, was taken off before she sailed and would be deported on Niagara back to Canada, but no charges would be preferred against him.
Vigorous competition is about to dawn in the Australasian trade. At least one new vessel, probably two, will be built for the Canadian-Australasian Royal Mail Line, which operates a monthly service between Vancouver and Australasia via Honolulu. It is no secret that the C-A has felt the rivalry of the new, fast, handsome Mariposa and Monterey of the Matron Line, and that construction has been discussed for some time.
Twenty-two years is the age of the Canadian-Australasian steamer Niagara. She was built by J. Brown & Co. at Clydebank in 1913. At that time she was far superior to the old Sonoma and Ventura of the old Oceanic; she was a "big fellow" then, and loomed large over the southern horizon. Somewhat to our surprise, for the motorship Aorangi seems to have made her maiden voyage recently, she is eleven years old, having been built by the Fairfield Company at Glasgow in 1924. Younger craft will force one or both from this route.
Hawaii welcomes such emulation. One service, though unintentionally, improves another, as the Niagara and Aorangi made the positions of the Sonoma, Sierra and Ventura untenable, and led to the Monterey and Mariposa. But now let us preach our favorite sermon of cooperation. When these new vessels are built, the Canadian-Australasian and Matson companies will do well to arrange a joint schedule, with spaced sailings, biweekly, instead of two vessels within a few days of each other, and then no more for a month or so. We have heard criticism of that schedule from Fiji; we are likely to hear a swelling volume from Australasia.
Honolulu Star-Advertiser, 10 January 1935.
With so many line officials aboard Aorangi, the local Honolulu shipping press interviewed them and learned that the "new Pacific liners loom" with the long mooted replacement not only of the veteran Niagara, but "since then the Aorangi, has been said to be inappropriate for the service and it is understand that two ships are now scheduled for the run." (Honolulu Star-Advertiser, 9 January 1935). Of course, the main incentive to revisit fleet renewal was the introduction of the splendid Monterey and Mariposa on Matson-Oceanic's highly subsidised San Francisco-Antipodes route that literally swept the Southern Seas of competition and against which even the ten-year-old Aorangi paled in comparison in speed and accommodation.
Impervious to such musings and mootings, Aorangi proceeded south on her first voyage of the year and "after an uneventful voyage," reached Auckland at 1:50 p.m. on 20 January 1935 and her expeditious reception there introduced a new system of inspection as detailed by the Auckland Star the next day:
Within three-quarters of an hour of the time she was boarded by Customs officers the Royal Mail liner Aorangi, which arrived at Auckland from Vancouver yesterday afternoon, was disembarking her passengers at the Prince's wharf." The ship was handled under a new system of inspection and the time saved was at least an hour.
Instead of dropping anchor in the stream for inspection by the port health officer and Customs officials, the ship was boarded off North Head by Customs authorities only, the ship's doctor having examined the passengers on Saturday and having reported to the Auckland health officer that there were no cases of sickness on board. The liner was boarded by the Customs officers, who had been given permission to do so by the port health officer, without coming to a standstill, and she was thus able to go straight to her berth without delay. Before the ship was alongside the wharf the Custom, examination had been completed. As soon as the gangway was placed in position the port doctor went on board and the "all clear" signal was given almost immediately, allowing passengers to disembark.
Passengers and everyone concerned with the arrival of the ship regarded the new system as highly successful and a great improvement on the old one. Comment was heard that it would be a great boon in future to business men arriving on hurried visits to the Dominion. The master of the liner, Captain J. F. Spring Brown, said that he much appreciated the change in the procedure and mentioned that in the past much time had often been lost by a vessel being compelled to anchor in the stream.
Auckland Star, 21 January 1935.
Handled under the new system of inspection, the Aorangi, which arrived from Vancouver to-day, was cleared at least an hour earlier than she would have been had she been forced to anchor in the stream. The vessel was still turning round the north head when the Customs authorities boarded her at 1.30 p.m., and at 2.15 p.m. her passengers were walking on to the wharf. Passengers, the ship's officers, and all the officials connected with the berthing of ships, were enthusiastic about the expeditious arrangements, and hoped that they would be continued.
'The landing arrangements were splendid,' said Mr J. C. Irons, general manager of the Canadian Australasian Line. Limited, who was a passenger on the vessel. 'It is certainly a step in the right direction, and one that overseas passengers are sure to appreciate.'
Press, 21 January 1935.
Aorangi left Auckland at 5:20 p.m. on 21 January 1935 for Sydney and in doing so, sail into one of her more eventful arrivals. Making one of her more unusual evening arrivals there, she came off the Heads on the 24th at 7:30 p.m. with 320 passengers and as usual paused off Bradley's Head in Watson's Bay for medical inspection. During this, Drs. Metcalf and Bevington of the port heath dept., found a "suspicious case of illness aboard" and remained aboard for the night and the ship staying at anchor. The following morning Aorangi was officially placed in quarantine and moved to the anchorage for that, before which 30 bags of mail were landed and the remaining went ashore the afternoon. If the case under suspicion developed as the doctors feared, then all passengers (139 from Vancouver and 181 from New Zealand) would be landed and placed in quarantine.
![]() |
| Credit: National Library of New South Wales. |
![]() |
| Credit: National Library of New South Wales. |
![]() |
| Credit: National Library of New South Wales. |
![]() |
| Credit: Auckland Weekly News, 13 February 1935, Auckland Libraries |
By the morning of the 25th, the case (Bruce Skinner, a steward) did indeed develop into smallpox and except for 60 passengers who had immunization certificates, all others would be landed that day at the North Head quarantine centre, and those to be released would be taken by ferry from the anchored liner to no. 5 Darling Harbour with their luggage. The others faced a 10- to 14-day stay in quarantine and landed there via ships boats, tugs and other craft together with food stores and supplies from the liner. At the time, Union still hoped the ship, once thoroughly fumigated, could be turned around in time to make her scheduled northbound voyage. On the 26th, another group of 48 passengers were released, some just in time to make their connection to the P&O Mongolia for London.
![]() |
| Credit: The Sun, 30 January 1935. |
As for Aorangi, she was taken by tugs from quarantine to her regular berth at no. 5 Darling Harbour and would depart on schedule for Vancouver on the 31st. Those in quarantine settled down to their existence although bothered by mosquitoes and the din of cicadas on the island. Ninety-six were released on the 30th after being vaccinated so that almost half the passengers had now been released. Most of the others, however, remained in quarantine until 8 February after the full 14-day period. The steward was recovering and his case was a mild one.
![]() |
| Lord and Lady Baden-Powell aboard Aorangi on arrival at Auckland. Credit: Auckland Star, 4 February 1935. |
Fumigated and passed as "clean," Aorangi departed Sydney on 31 January 1935, but delayed some three hours getting away owing to the difficulty in find replacements for the crew still in quarantine and finally cleared her berth at 7:00 p.m.. Among her passengers were Lord Baden-Powell, founder of the Boy Scouts, and Lady Baden-Powell and two daughters, returning from the International Jamboree in Melbourne. Aorangi arrived at Auckland at 7:10 a.m. the morning of 4 February and a large contingent of New Zealand Scouts on the quayside "raised their voices in a spirited and deafening Maori haka of welcome." (Auckland Star, 4 February 1935). Her passengers were going ashore by 8:00 a.m. Aorangi sailed for Suva at 11:15 a.m. on the 5th. With 19 passengers to land there, she arrived, delayed by headwinds (and expected the previous evening) at Honolulu at 7:30 a.m. on the 15th, including tennis star Fred Perry, and sailed the same afternoon for the mainland. Aorangi docked at Victoria at 7:00 p.m. on the 21st and at Vancouver the following morning.
Hard times continued and there were only 75 passengers for Aorangi's next voyage south, setting off from Vancouver at 10:00 a.m. on 27 February 1935 and clearing Victoria that evening. She got into Honolulu on 5 March, right after it had been deluged with exceptionally heavy rain and consequent flooding, and alongside Pier 7 by 3:00 p.m., disembarking 21 passengers there and taking on 15 before sailing the following day at 11:00 a.m.
After "a calm weather, uneventful voyage across the Pacific," (Auckland Star, 18 March 1935), Aorangi arrived at Auckland on 17 March 1935 at 4:25 p.m. with 150 passengers, 75 landing there, and departed for Sydney at 11:00 p.m. the next day. Making a more routine arrival there, she was alongside her Darling Harbour no. 5 berth by 8:00 a.m. on the 22nd.
![]() |
| Credit: The Sun, 31 March 1935. |
Competition from the new Matson-Oceanic sisters, replete with all-American "mod cons" was being as keenly felt as the linger slump and on 16 March 1935 Union Steamship announced that "Alterations to the first-class accommodation of the Royal Mail liner Aorangi are shortly to be made,. As a result of the alterations, the size of many of the cabins will be increased, and a number of additional single-berth cabins, and cabins with bathrooms provided. A hot water service will be installed in that part of the accommodation which is being altered." (New Zealand Herald, 16 March 1935). The Sun (Sydney) provided additional details the 31st: "To compete more strongly against subsidised foreign shipping, the Union liner Aorangi is to be modernised in her first-class accommodation, at a cost of about £40,000. On this undertaking, preparatory work for which has commenced, skilled craftsmen of almost every class will be employed. These include carpenters, plumbers, painters, stainers, electricians, cabinet makers, engineers, and upholsterers. Work will begin in earnest when the Aorangi is laid up for her annual docking and cleaning in September, and replaced by the Monowai. A great proportion of the cost will be spent in wages."
Getting underway at 5:45 p.m., Aorangi cleared Sydney for New Zealand and the north on 28 March 1935, 40 minutes late amid reports of labour strife among her engine room crew which the line denied. Among those aboard was a party of 16 Australian public schoolboys belonging Geelong Church of England Grammar School, Sydney, on a six-month-long tour of Britain (in time for King's Jubilee) and Germany and Italy and would embark on Duchess of Atholl for England after an overland tour of Canada. In all, she went out with 326 passengers of whom 114 landed at Auckland on arrival there on 1 April at 7:30 a.m..
After formal welcomes had been disposed of, Mr. Forbes and his party motored direct to the Prince's wharf to join the Aorangi. The wharf was crowded, and before the vessel sailed Mr. Forbes had shaken hands with dozens of people who wished him God speed. The Aorangi sailed a few minutes after 11 o'clock, the liner's band first playing "Auld, Lang Syne," and then the Hawaiian melody "Aloha."
Auckland Star, 2 April 1935.
Aorangi departed for Suva and Hawaii at 11:00 a.m. on 2 April 1935 the following morning, having embarked New Zealand Prime Minister Forbes, Mrs. Forbes and party, bound for London and the King's Silver Jubilee, travelling overland through Canada including Banff and Quebec embarking in Aquitania for Southampton. The official party brought official gifts for the King including priceless Maori carvings. Aorangi arrived at Honolulu with 130 through passengers just after 10:00 a.m. on the 12th to land 40 passengers and she embarked some 45 others for the mainland before departing at 5:00 p.m. She came into Victoria at 10:00 p.m. on the 18th with 240 aboard. Aorangi's big 4,100-ton cargo included 20,000 pounds of Australian onions, 650 bunches of bananas from Fiji, frozen rabbits, grapes, pears and cheese from New Zealand: a true Imperial bill of lading. She docked at Vancouver the following morning.
![]() |
| Aorangi at Victoria, 24 April 1935. Credit: British Columbia Archives. |
Bound again for the South Seas, Aorangi departed Vancouver on 24 April 1935 at 10:00 a.m. and made Victoria at 4:00 p.m. and began her long voyage south at 5:30 p.m. "with a small but interesting list of passengers, " (Victoria Daily Times) including Mr. R.W. Litchfield, president of the Goodyear Tire and Rubber Co.. She did take out another good southbound cargo, totalling 4,500 tons, and including British Columbia salmon and from Eastern Canada, over 100 motor cars, and from Victoria, a large consignment of paper. Already ahead of schedule, Aorangi swept into Honolulu Harbor at 6:00 p.m. on the 30th and alongside Pier 7 an hour later, dropping off 21 passengers and 480 tons of cargo before heading south at 11:00 a.m. the next morning.
Calling at Suva on 10 May 1935, Aorangi, reached Auckland at 11:10 a.m. on the 13th, about four hours later than usual, and was alongside Prince's Wharf at noon. Passengers were few but mail was fulsome and she came in with 1,458 bags of English and American post as well as 97 bags of parcels, all for New Zealand. Aorangi was Sydney-bound at 5:00 p.m. the following afternoon and she passed the Heads at 5:30 a.m. on the 18th. On the 20th, she went into drydock at Cockatoo for hull cleaning and painting and returned to no. 5 Darling Harbour to load for her voyage north.
On 14 May 1935 the Auckland Star reported on Aorangi's upcoming schedule and refitting:
The Union Steam Ship Company's motor liner Aorangi is also approaching the time for her overhaul, and arrangements have been made for her, after two more round voyages, to be replaced for one trip in the trans-Pacific passenger service. Leaving Auckland this evening, the Aorangi will proceed to Sydney, and thence will return to Vancouver, via Auckland. Suva and Honolulu. She is scheduled to leave Vancouver on June 19 and again on August 12. On the latter trip it is expected that her saloon accommodation will be fully taxed, as she will be carrying a large number of delegates to the British Medical Association's Conference, to be held in Melbourne. For the convenience of these travellers arrangements have been made for the Aorangi, instead of ending her voyage at Sydney, to go on to Melbourne for this one trip.
On her return to Sydney from Melbourne on September 17 the Aorangi will withdraw for overhaul and inspection. Her place in the company's passenger, mail and cargo service will be taken for one trip by the Monowai, which is at present engaged in the intercolonial running. The Monowai is timetabled to leave Sydney on September 12. and is due back there again from Vancouver on November 2. In that week she will revert to the trans-Tasman service, the Aorungi scheduled to resume in the Pacific service oil November 7.
For the third year, the ship was the unique setting for the English Speaking Union's "Shipboard at Home" event her Darling Harbour wharf on 22 May 1935. "The scene at No. 5 wharf, Darling Harbor, yesterday afternoon, with motor lorries backing out, and cargo being loaded, was in sharp con trast to the peacefulness of the lounge of the Aorangi, which was berthed there. " (The Daily Telegraph, 23 May 1935).
The Aorangi provided a warm and cheerful setting for a winter afternoon's entertainment yesterday, as members of the English-speaking Union discovered when they held an at home on board. In the ship's cardroom, cosy and homelike, with a fire in the grate and panelled walls, many sat playing bridge, and must have fancied at times that they were in the midst of some English inn with pewter mugs on the shelves, with perhaps a fox-hunting party in the offing. Whereas in the lounge an equally large number assembled to hear a musical and programme provided by Mesdames F. Letters, T. D.G. arranged by Mrs. Harry Twigden, Marshall, H. Twigden, the Misses Elsie Findley, Jean Watson, and Enid Hynes, and little Lasca Hall. The bridge tournament was arranged by Mrs.W. Stones and Miss D. Smith.
Sydney Morning Herald, 23 May 1935.
On the morning of 23 May 1935, Assistant Purser John Morris Breen, age 23, of New Zealand, was found dead in his bunk in evening dress aboard the ship at 1:00 a.m., the victim of apparent suicide as an automatic pistol was found near the body.
Leaving Sydney on 23 May 1935 at 5:12 p.m., Aorangi and "after an exceptionally fine run across the Tasman," (Auckland Star), arrived at Auckland at 7:10 a.m. on the 27th and departed at 11:30 a.m. the next day for Vancouver and intermediate ports with 152 through passengers aboard. Aorangi's call at Honolulu (8:00 a.m.-10:00 p.m.) on 7 June was well-served with 68 passengers landing there. Her departure hour was later than usual to accommodate a large group of school teachers, some 80 in all, embarking for the mainland after attending local graduation exercises and altogether, she had 228 passengers aboard. Making another fast run north, Aorangi was fast alongside Pier 2, Rithet Docks, Victoria, at 7:30 p.m. on the 13th. She brought in a 1,300-ton cargo, most of which was destined for Vancouver whence she departed at 11:30 p.m. and arrived the following morning.
It was made known on her arrival back at Canada that Capt. J.F. Spring-Brown would be retiring that November, turning over command to Capt. Thomas V. Hill, of Niagara. Capt. Spring-Brown was recently honoured with a silver jubilee medal from King George V during the recent celebrations in London and this was observed by a shipboard ceremony between Honolulu and Suva on her last outbound voyage.
![]() |
| Credit: Honolulu Star-Bulletin, 26 June 1935. |
Aorangi's turnaround in Vancouver coincided with considerable waterfront labour unrest which included rioting on 18 June resulting in the arrest of 23 and injuries to 37. A sympathy strike by deck hands and dock workers of Union S.S. began but by a vote of 80 to 60, Aorangi's crew continued to load the ship for the south but donated $630 to the strikers which it was hoped would not get the ship blacklisted on arrival in Sydney. As it was, she left with only 70 per cent of her booked cargo.
The Province (18 June 1935) reported that "while the vessel was in port work was continued on the remodelling of her suites and when this is completed the ship will have every modern accommodation. The new suites were built as units in Sydney."
![]() |
| Credit: The Vancouver Sun, 29 June 1935. |
With 50 passengers booked for the Canadian Pacific "House Party no. 2" to Hawaii for a two-week vacation, returning in Empress of Canada, Aorangi cast off from Pier C, Vancouver at 11:30 a.m. on 19 June 1935. She was delayed awaiting the late delivery of the English mails from the East and went out with almost 200 passengers in all. Among them was R.L. Gillies, superintendent engineer for Union S.S. returning from supervising the completion of Awatea, the line's new magnificent trans-Tasman liner. Capt. Spring-Brown had Aorangi alongside Honolulu's Pier 7 at 4:30 p.m. on the 25th, a day ahead of schedule, and she had 95 passengers landing there as well as 45 tons of cargo and 17 bags of mail. She resumed passage south the next day at 11:00 a.m., having embarked a part of 40 school teachers bound for a tour of New Zealand.
Calling at Suva on 4 July 1935, Aorangi arrived at Auckland at 2:30 p.m. on the 7th and was off to Sydney at 8:00 p.m. the next evening. Per her usual schedule, she arrived off the Heads at daybreak on the 12th but thick fort off Port Jackson had her two hours late coming alongside. There were police on the quay to discourage any labour unrest arising from the Vancouver strike.
Her turnaround there was marked by considerable agitation by some militant members of the crew, all members of the Austraian Seamens Union, to go on strike in support of the Vancouver strikers. Although the ship was unloaded without a hitch by waterfront workers, 130 stewards voted to hold a meeting on 16 July to discuss options. This failed to produce a walk-out.
A large gathering on the wharf yesterday afternoon said farewell to Sir Charles Kingsford Smith and Flying officer Shiel who left by the Aorangi on his way to the United States and London. Aeroplanes dipped in salute.
Sydney Morning Herald, 19 July 1935.
Without any hinderance, Aorangi departed Sydney on schedule on 18 July 1935 at 5:15 p.m. Among those aboard was Sir Charles Kingsford-Smith bound for New Zealand to discuss proposals for a trans-Tasman air service with the Dominion government. Earlier that day he handed over his beloved Fokker tri-motor, The Southern Cross, to the Australian Government for its preservation in a museum Aorangi, with 123 passengers for Auckland (and an equal number of through passengers for the north) arrived there at 7:15 a.m. on the 22nd. An usual addition to her compliment of landing passengers was a complete Japanese crew to take a vessel to the breakers there: "... 32 Japanese, who have come to man the old Kaitoke, which has been sold to Japan for breaking up. The crew is under the command of Captain Jiro Itaya. There are seven officers and 24 men." (Auckland Star).
On her arrival, the Auckland Star reported on the progress of accommodation improvements on the ship which was being accomplished even in advance of her upcoming lay-up:
Already improvements to the class cabins in the Aorangi have begun and 28 state rooms on C deck have been enlarged. The vessel arrived this morning from Sydney, and, after making the trip to Vancouver and back, will dock at Sydney for an extensive two months' overhaul.
Among the improvements that are planned is the modernisation of all cabins on C deck and some on D deck. Most of the state rooms will be fitted with private bathrooms and all will be refurnished with rosewood appointments and the latest fittings. Over £60,000 will be spent in bringing the first class cabin accommodation up to date.
During the five days recently spent in Sydney the purser's office was enlarged to almost twice its former size, and modern office furniture was fitted. Several more first-class cabins were also enlarged and refurnished to reduce the amount of work to be done during the two months' lay-up.
A follow up report in the New Zealand Herald of 23 July 1935 stated that 28 cabins on C Deck had already been rebuilt and enlarged.
Heavy rain delayed working cargo and Aorangi, scheduled to sail north at 11:00 a.m. on 23 July 1935 did not get away until after 3:00 p.m. Reaching Honolulu on 1 August, she landed 49 passengers, 91 tons of cargo and 24 bags of mail before departing at 3:00 p.m. after embarking a large number of passengers for the mainland so that she had 125 aboard on arrival at Victoria on the 8th, coming at 5:30 p.m. after being delayed two and a half hours by fog at the entrance to the Juan de Fuca straits and landed 25 passengers there and 55 tons of cargo before sailing to Vancouver at 11:30 p.m., docking there the following morning. Her 2,000-ton cargo included rabbit skins, wool and pineapple.
There was a very short layover until Aorangi's next, and one of her more unusual, southbound voyages. Not only would this depart two days earlier than usual and her last until November owing to her layup in Sydney for refitting but its very itinerary was changed to accommodate a large and special group: 250 delegates to the British Medical Association conference in Melbourne of whom would 147 would embark at Vancouver per usual and, on a special one-off call there, another 110 at San Francisco, her first since her delivery voyage. In addition, Aorangi would take her delegates direct to Melbourne after her usual Sydney call. The unique routing also attracted 24 Canadians sailing as far as San Francisco. Even her cargo on this trip was notable, including 112 autos from the Ford plant in Windsor, Ont..
On the eve of Aorangi's departure came the sad news of the death of her originator, Sir Charles Holdsworth, former managing director of Union Steamship, at age 71.
Arriving in Vancouver by special CPR train at 8:30 a.m., the 147 delegates transferred directly to Pier C to embark in Aorangi which departed at 11:00 a.m. on 12 August 1935 and was alongside her Rithlet, Victoria pier by 5:30 p.m., sailing just 30 minutes later for San Francisco. She dock at Pier 33 there at 4:00 p.m. on the 14th and sailed at 5:00 a.m. the following morning. "It looks like the good old days, for the Canadian Australasian line when the Aorangi came into port yesterday afternoon. The big motorship was carrying 511 passengers including 250 members of the British Medical Association and their wives and families." (Honolulu Star-Advertiser, 21 August 1935). Aorangi arrived at Honolulu shortly after 3:00 p.m. on the 20th, landing 24 passengers there, and left the following noon. Her delegates went swimming and had afternoon tea and dinner at the Royal Hawaiian Hotel during their brief stay.
Aorangi reached Auckland at 4:45 p.m. on 30 August 1935, landing 105 passengers there, and had 400 through passengers for Australia. She proceeded to Sydney at 11:00 p.m. the next evening, initially without one crew member as recounted by the Sydney Morning Herald:
A race by launch to board the Aorangi, then steaming from Auckland Harbour on its voyage to Sydney, provided an unusual incident late last night.
A steward missed his passage by a couple of minutes. He was placed in a launch, but by the time this left the Aorangi was halfway down the harbour. A message was sent to the Aorangi from the signal station, and the launch reached the liner at 12.20 reached the liner in Rangitoto Channel at 12.20 a.m..
Sydney Morning Herald, 4 September 1935.
Aorangi docked at Sydney on she docked on 6 September 1935 at 8:00 a.m. and departed for Melbourne on the 7th at 5:00 pm. Few liners had few maiden arrivals in their long careers than Aorangi which seldom diverted from her well-trod path of Vancouver, Victoria, Honolulu, Suva, Auckland and Sydney and indeed seldom even varied in the berth she took in each, so that her maiden call at Melbourne on 9 September 1935 was cause for some note, especially in the local press.
British members looked forward with the keenest eagerness to their arrival in Melbourne, and they saw it under excellent conditions, for the Aorangi berthed just before breakfast, the sun shown mildly on the waters of the bay, and a gradually lifting mist revealed the Strathaird, which had been in sight almost all the way from Sydney.
The Sun-News Pictorial, 9 September 1935.
Coming alongside Station Pier at 7:00 a.m. on 9 September 1935, Aorangi landed her 250 delegates and family members but did not linger long and cast off at 3:00 p.m. for her return to Sydney, arriving there at 7:11 a.m. on the 11th.
![]() |
| Aorangi at Melbourne. Credit: shipspotting.com |
Aorangi would not sail again for Vancouver until 7 November 1935 to undergo her refit. On 16 September it was report that a union squabble between the Carpenters' Union and the Finishing Trades Union had been settled concerning the work and that the ship joiners would take over the work that day. As with previous refit, most of this was accomplished while alongside her usual no. 5 wharf in Darling Harbour and she was given company as Niagara and Makura called on their regular runs. Indeed, on 19 October for the first time in Union/C-A history, three of their four trans-Pacific liners-- Aorangi, Niagara and Maunganui-- were in Sydney together.
![]() |
| Credit: The Sun, 31 October 1935. |
Amid worries labour issues which had resulted in Niagara being dispatched north with a scratch volunteer crew would effect Aorangi's return to service, she went into Cockatoo Graving Dock on 30 October 1935 for cleaning and painting of her hull as her refit neared its final stages. On 2 November a mass meeting of seamen agreed by overwhelming majority to offer to sign on for Aorangi's northbound trip. That day, she returned to No. 5, Darling Harbour, to load for the voyage.
![]() |
| Credit: The Sydney Morning Herald, 7 November 1935. |
About 500 men have been working on the Aorangi in reconstruction work. The whole has of the first-class accommodation on C deck been taken out, and entirely new rooms erected, with private bathrooms attached, and equipped with hot and cold water, and modern furnishings. A number of the cabins have been panelled with choice figured Australian timbers. While the capacity has been reduced 50 per cent., passengers will have the full benefit of the extra space made available, The work represented an expenditure of £ 60,000, chiefly in wages and Australian materials.
The Sydney Morning Herald, 2 November 1935.
Resuming service, Aorangi sailed from Sydney at 5:12 p.m. on 7 November 1935, entirely renewed and looking better than at anytime since her introduction almost 11 years before. She arrived at Auckland at 7:30 a.m. on the 11th. The Auckland Star reported on the ship's post-refit improvements:
In the two months that slip was laid up for overhaul in Sydney, all the first class cabins on C deck were reconstructed and enlarged by the removal of dividing partitions between cabins, making two small cabins into one large one. Instead of there being 92 cabins, accommodating 182 passengers, there are now, in the same total space, only 56 cabins, accommodating 91 passengers. In addition to 23 two-berth and 10 one berth ordinary cabins, there are 12 special two-berth and two special one berth suites, each with its own bathroom. All the cabins have been redecorated and refurnished in handsome timbers, and special non-dazzle lights have been installed.
Aorangi sailed from Auckland at 11:00 a.m. on 12 November 1935 and called at Honolulu at 8:00 a.m.on the 22nd although she had only three passengers landing there and was off again at 4:00 p.m. It was at least an opportunity for the local shipping reporters to check out the newly refitted vessel and that for the Star-Bulletin commented:
The good ship, always a favorite among conservative patrons from the northwest, now has as neat a set of deluxe cabins as any vessels which put into this port.
During her long period of overhaul in Sydney, from which she returned her for the first time Friday, the number of C Deck cabins were exactly halved. In place of the former maze of 72 cabins, some of which were scarcely larger than phone booths, she now has 36 cabins, conveniently arranged and adequately roomy.
Most of the new cabins are finished in Queensland walnut and maple, curly and straight grained. Fixtures are thoroughly modern but conservatively in keeping with the remainder of the ship. Lighting is the only part of the appointments smacks of what might expect to find on the Normandie. Above the mirrors, for example, are tube light curved to correspond to the shape of the top of the glass. Illumination from them is softly but thoroughly diffused. Even the roomy closet space is lighted, automatically with the opening and shutting of the closet doors. Each of the deluxe cabins is equipped with an Australian made heater, an electric grate above an imitation set of coals, which when illuminated look honest to goodness like they are burning.
Honolulu Star Bulletin, 23 November 1935.
With only 44 passengers aboard, Aorangi headed north and she was at Victoria by 3:00 p.m. on 28 November 1935, 12 hours in advance of schedule. Her cargo for British Columbia included 2,446 stems of bananas from Fiji. The Victoria Daily Times added its verdict on the ship's "new look":
Passengers who traveled north this voyage on the Ms. Aorangi must have thought they were on a brand new ship. For, during her recent overhaul in Sydney, the liner's passenger accommodation was overhauled and many of the cabins remodeled. The public rooms were shining in new paint and new furniture and the cabins were much roomier. than when the ship was here last time. There were fewer cabins, but they are now much larger and there are also a number of single berth staterooms with their own private baths.
Vancouver was socked-in for four days of heavy fog, one of the worst such spells for the port in years and brought harbour traffic to standstill. More than 24 hours late, R.M.M.S. Aorangi was finally off on her first southbound voyage in months at 11:25 a.m. on 5 December 1935 and her last with Capt. Spring-Brown taking her out as he would "swallow the anchor" after 44 years at sea on arrival at Sydney. Another large consignment-- 130 in all-- of Canadian-made Ford autos was part of her large outbound cargo. One of a procession of ships, including the Blue Funnel Line Talthybuis and Hiye Maru exiting Vancouver and heading for Victoria and the Pacific, Aorangi arrived there at 5:30 p.m. and trying to make up time, was headed south within a hour.
Aorangi made Honolulu on 12 December 1935, arriving there at 8:00 a.m. and landing 37 passengers, rushed off again at noon giving Capt. Spring Brown little time to make his farewells to a port he had known since 1922 on Makura. On arrival at Auckland on the 23rd, she had 250 passengers and 1,500 bags of mail, most of the former and all of the later for discharge there. On Christmas Eve, Aorangi sailed for Sydney at 5:00 p.m.. She would be but of many, if not most New Zealand ships and crew at sea on Christmas Day and as the Evening Post documented, one of four Union S.S. ships: "Four Union Steam Ship Company liners will be at sea on the Pacific routes, the Maunganui, which leaves here tomorrow afternoon, will be well off the coast, and the Makura, which is New Zealand-bound from San Francisco, will be three days' steaming from Tahiti on Wednesday, and the Aorangi, which was due at Auckland today, will be on her way to Sydney. The Niagara, northward bound, will be midway between Honolulu and Vancouver, while the Monowai will spend Christmas Day on a cruise from Auckland to Whangaroa." Aorangi arrived at Sydney on the morning of the 28th.
The year ended with more threat of labour unrest on the Sydney Docks and another seamen's strike saw Aorangi's crew join it and they were paid off on the 30th while Union S.S. tried to obtain replacements to enable her to sail as advertised on 2 January 1936. The ship's stewards, however, did not join the strike. On the 31st, it was announced that the line had sourced sufficient licensed deck crew to take Aorangi to sea.
![]() |
| 1936 brochure. Credit: Wallace B. Chung and Madeline H. Chung Collection, University of British Columbia. |
1936
Commanded now by Capt. T.V. "Mickey" Hill and manned by a volunteer crew, including all of her regular steward and catering staff, and a scratch deck crew numbering 64, Aorangi pulled out of no. 5 Darling Harbour at 4:10 p.m. on 2 January 1936, delayed ten minutes only on account of embarking her large list of over 430 passengers…. Her best in some time. When Aorangi called at Auckland 6-7th, waterfront workers refused to handle her cargo on account of her having non union seamen and it was done by line officials and non union workers. Aorangi landed more than 200 passengers on arrival at 7:00 a.m. and sailed north at 11:00 a.m. the next day.
![]() |
| Capt. T.V. Hill, Master of Aorangi 1936-1940. |
Reaching Honolulu on the morning of 17 January 1936, Aorangi disembarked 21 there before sailing for the mainland at 3:00 p.m.. Capt. Hill complained to the shipping reporter of the Star Advertiser about his quarters, saying those on Niagara were "long and roomy. It was comfortable and if he liked [he] could stretch out and put his feet on his desk. He could invited a few people in for tea without crowding," whereas on Aorangi the quarters were divided into a suite of smaller rooms for sleeping and an office… "It's not like the Niagara, we had plenty of room there, now, didn't we?"
By the time she arrived at Victoria at 1:00 p.m. on 23 January 1936, Aorangi was largely deserted of passengers and had only 57 left aboard, several of whom landed there to transfer to the Seattle-bound Princess Alice. Aorangi docked at Vancouver at 9:30 p.m. to end a smooth trip north, "You could have crossed the Pacific in a rowboat," Capt. Hill told a reporter on arrival.
Few recent southbound voyages attracted more advance publicity than that of Aorangi's 29 January 1936 sailing. Among her passengers were New Zealand's 29-strong All Black national rugby team, Dr. Arthur Holly Compton, physicist of the University of Chicago and Nobel prize-winner and Miss Peggy Gamble, "Miss Australia," returning from a trip to Hollywood sponsored by the Melbourne Star. During the voyage to Honolulu Dr. A.H. Compton would be searching for "cosmic rays" and brought his own apparatus for conducting the experiments:
A solid little structure rose to a point of permanence on the after deck of R.M.M.S. Aorangi on Monday afternoon, ready and waiting to trap the unwary cosmic ray that is rumored to inhabit the broad Pacific, wastes.
Beside, above and the eight by ten feet structure, dodging workmen and officers and fondling intricate paraphernalia, worked Dr. A. H. Compton, noted physicist, under whose direction the installation is being accomplished.
The cabin will be centre of experiments in mercuring cosmic rays on all parts of the Pacific. The cabin will remain on the Aorangi for the year, although Dr. Compton and his family will leave the ship at Honolulu.
Monday afternoon found the Aorangi a beehive of activity. Carpenters and ship's officers tugged and pulled at heavy bags shot, weighty equipage, and lifted delicate machinery that operates automatically. Photographic film was ready, for important scientific data must be recorded while Dr. Compton rests at Honolulu.
The little cabin itself, surrounded with cases marked "fragile handle heavy, care," has no windows, but a large door and a tiny circular air vent. The equipment inside operates automatically, making it unnecessary for the scientist to accompany the ship on its voyages across the Pacific and return. Chief Officer Robert Turner will attend to the equipment, aided by other ship's officers.
Twenty-six bags of small lead shot, each weighing more than 100 pounds, much curiosity. This shot will be used to shield the delicate instruments from radioactivity and other rays in which the scientist is not at present interested. The shot, in a layer seven or eight inches thick, will allow only the cosmic ray to pass through.
The Province, 28 January 1936.
With a list of almost 200, Aorangi sailed from Pier C Vancouver at noon on 29 January 1936. The All Blacks boarded at Victoria that evening after a match there, and she sailed at 9:00 p.m., passing the inbound Empress of Japan very early on the 31st. She encountered heavy weather on the way south and was to have arrived at Honolulu at 5:30 p.m. on 4 February, but did not get into until the following morning at 6:00 a.m., to land 53 passengers there and had 115 through passengers. She sailed at 2:00 p.m. the same day, her planned overnight in port cancelled and now late on her run south. Calling at Suva on the 13th (where Crown Prince Taufa A'Hau of Tonga embarked to return to university in Sydney), Aorangi arrived at Auckland a day late on the 17th at 6:10 a.m. where she was honoured by being the first ship worked by the new Harbour Board tug William C. Daldy which replaced the veteran Te Awhina but all the local attention, of course, centred on the return of the All Blacks.
Warm indeed was the welcome home that was given to the All Blacks when they returned to Auckland early this morning. Their first welcome came from the Customs launch which left Auckland at daylight and was off the North Head when the Aorangi came up the channel.
Despite the hour most of the All Blacks had been up early to get a glimpse of their homeland, and they lined the rail and exchanged a greeting with the launch from Auckland that had taken a bag of mail and when it was transferred to the Aorangi the All Blacks clustered round to get the latest news from their relatives and friends. As the Aorangi berthed there was a demonstrative welcome from the shore, while officials of the Auckland Rugby Union and the New Zealand Rugby Union were quickly on board to welcome the team.
Auckland Star, 17 February 1936.
Some 300 passengers embarked for the trans-Tasman crossing commencing at midnight the 17-18th and Aorangi reached Sydney at 8:00 a.m. on the 21st.
Aorangi sailed from Sydney on 27 February 1936 and en route diverted to answer a distress call from the freighter Beatus, also bound for Auckland, which reported a seriously ill crew member suffering from peritonitis, but 400 miles distant. After going 120 miles towards the cargo ship, a radio report was received that the unfortunate man had died at sea, and Aorangi resumed course. She was four hours late on reaching Auckland at 10:45 a.m. on 2 March. Her landing passengers were further delayed 20 minutes when a passenger was reported to have a case of chickenpox and the liner not cleared until health officials granted practique after an examination. Her arrival saw every single wharf in the harbour occupied and record total 144,340 combined gross tonnage with 14 large overseas vessels in all. Aorangi resumed her voyage north at 1:40 p.m. on the 3rd, the same day Beatus arrived in the port.
Several hours behind schedule owing to headwinds, Aorangi came into Honolulu at 10:00 a.m. on the 13 March 1936 and alongside Pier 7 by 11:00 a.m., landing 26 passengers and embarking others (including cosmic ray hunting Dr. Compton and family) for the mainland for which she departed at 5:00 p.m. Ending an eventful voyage, Aorangi, passed Cape Flattery the evening of the 19th, arrived off William Head at 4:30 a.m. on the 20th and alongside Pier 2, Victoria, at 6:00 a.m., bringing in 181 passengers (61 First, 58 Second and 62 Third) and a 2,697-ton cargo. She left for Vancouver at 8:30 a.m., arriving that afternoon.
![]() |
| Credit: Honolulu Star Advertiser, 2 April 1936. |
Her next voyage to the Antipodes was more humdrum and certainly so with her passenger list which numbered only 86 when Aorangi pulled out of Pier C Vancouver at 10:15 a.m. on 25 March 1936. Among those aboard was Mr. Mason Warner, travel editor of the Chicago Herald Tribune who was bound for New Zealand to write travel articles on the country. Her "cosmic ray machine" remained in its little hut on deck and now in charge of it and further experiments was Chief Officer R. Turner "who is a keen scientist and is particularly interested in the recordings of the cosmic ray." (The Province). Scheduled to arrive at Honolulu on the afternoon of the 31st, Aorangi did not come in until 7:30 a.m. the following morning. She landed 37 passengers there before continuing south at noon. Auckland, reached on the morning on 13 April, boosted her light passenger compliment with trans-Tasman travellers and upon departure for Sydney the next evening, she had 400 passengers, where she arrived the 18th at 8:00 a.m..
Aorangi left Sydney on 5:20 p.m. on 25 April 1936 for Auckland where she arrived on the 27th at 7:30 a.m. "after a very fair crossing of the Tasman." (Auckland Star) which added: "Interest in the cosmic rav apparatus on board the steamer was taken by a number of passengers, and the chief officer, who is in charge of the experiments, explained the working of the instruments. The apparatus, which records the intensity of cosmic rays, is working satisfactorily, and the records obtained are being posted to Professor Arthur Compton, of Chicago University. Among the prominent passengers were Mr. Charles Farrell, the film star, and "Long Tack Sam, the Chinese magician." When she departed the following morning at 11:00 a.m., Aorangi went out with an excellent list of 480, 220 of whom had boarded there. Calling at Honolulu at 8:00 a.m. on 8 May, she recorded 48 landing passengers there and 237 through to the coast including the retiring Governor of Fiji, Sir Murchison Fletcher, returning home to England; and Capt. G.A. Prosser, Union Line master, also bound to England to assume command of the new island steamer Matua. Aorangi sailed for British Columbia at 3:00 p.m. and had 322 passengers for the final leg. Arriving at Victoria at 10:30 p.m. on the 14th, she departed at 5:00 a.m. the following morning for Vancouver.
![]() |
| Credit: The Province, 16 May 1936. |
Aorangi's arrival at Vancouver on the afternoon of 15 May 1936 coincided with the port annual port and harbour day celebrations and came in dressed overall and looking especially magnificent for the occasion, "the extensive ramps of the piers and approaches were crowded with hundreds of automobiles and thousands of spectators," (The Province) as she came into Pier C.
Canadian Australian had announced new cheaper roundtrip rates in First and Cabin Classes to Australia from Canada on 13 May 1936 for summer sailings: Niagara 17 June, Aorangi 15 July and Niagara 12 August with free stopovers in Honolulu and Suva.
Departing an hour later (11:00 a.m.) than usual, Aorangi left Vancouver on 20 May 1936 for the Antipodes with 125 passengers and a 3,000-ton cargo, and called at Victoria 4:00-5:30 p.m. that evening. She had 28 passengers to land on arrival at Honolulu at 3:00 p.m. on the 26th and overnighted at the port, departing at 11:00 a.m. the following morning, having embarked 25 for the south.
Calling at Suva at 10:00 a.m.-3:00 p.m. on 4 June 1936, Aorangi embarked H.M. Queen Salote of Tonga who was bound for Sydney for medical attention following an operation there a year previously. To enable Her Majesty to connect with Aorangi during her call at Suva, the Fiji Government sent the official yacht Pioneer to Nukaualofa to embark Queen Salote who was accompanied on the voyage by His Royal Highness, the Prince Consort, Prince Tuga and a lady-in-waiting, Princess Fetutuki Oneone. The call at Suva was further enlivened by a dramatic incident involving the Federal Line's Kent as described by the Evening Post (8 June 1936):
With her engines stopped, and a strong lee wind drifting her at two and a half knots towards the Mbenga Reef in the Kandavu Passage, near Suva, the Federal Line steamer Kent narrowly escaped disaster last Thursday. She was within six miles of the treacherous rocks when she got under sufficient power to carry her to safety.
News of the dramatic incident was brought to Auckland by the Aorangi, which when at Suva received an SOS and was preparing to rush to the rescue—some of the mooring ropes had actually been cast off—when word was received that assistance was no longer required.
The first appeal was received at the Suva radio station and the small Burns Philp steamer Malake was already proceeding to the rescue when the reassuring message was received.
On the Aorangi the drama was increased because many of the passengers were ashore. Captain Hill suspended cargo operations immediately and the sight of the Aorangi making hurried preparations to put to sea caused a commotion ashore. Many of the passengers were away on excursions.
The Aorangi's wireless maintained direct contact for two hours with the Kent, which was two and a half hours' steam from Suva, outward bound to Port Chalmers in continuation of her voyage from London.
Flying the Tongan Royal Standard at her foretruck, Aorangi docked at Auckland at 3:15 p.m. On 8 June 1936, and representatives of the Dominion Government and the Governor General boarded and paid their respected the royal party. Aorangi came in with an exceptionally large mail consignment for New Zealand comprising 1,891 bags of English and American mails and 204 bags of parcels, of which 528 bags of mail and 52 of parcels were for Auckland. Aorangi sailed for Sydney at 10:00 p.m. after embarking 190 passengers for the trans-Tasman crossing and arrived on the 12th.
![]() |
| Original caption: Andree Couch, 2, looking up expectantly as the Aorangi berthed yesterday. She holds a bouquet for her grandmother, Mrs. J.H. Couch. Credit: The Daily Telegraph, 13 June 1936. |
Since the Canadian Pacific takeover of the Canadian-Australian Line, there was pressure to change its crew from Australian articles to those of Canada and with continued labour unrest in Australia, the line was disposed to this although no change had been made or contemplated. Yet on 15 June 1936, a committee of the House of Commons in Ottawa endorsed the idea:
The report of a committee of the House of Commons urges greater employment of Canadians on steamers operated by the Government or under Government subsidies. It recommends that 50 per cent of those employed on Canadian national ships as stewards and seamen shall be Canadians, declaring that the Canadian-Australasian line employs only eight Canadians in crews numbering 510. The committee recommends that the line shall be requested "to afford Canadian seamen a reasonable degree of employment at its earliest convenience." and urges that the Canadian Pacific line shall be obliged to use only Canadian seamen in the deck services on the Canada Orient line. The Canadian Pacific line protested that to replace Chinese with whites on the Oriental liners would involve such extra cost as to make the operation of the line financially Impossible.
Of 2033 men in the service 265 are whites. The two Canadian-Australasian liners Niagara and Aorangi are on Australian articles and the Canadians on board were probably replacements at Vancouver when Australian members of the crew were too sick to proceed. The vessels' articles are opened in Sydney, and to sign on 50 per cent Canadian crew would involve bringing the Canadians to Sydney as passengers to be signed on when the ships changed articles.
The Sydney Morning Herald, 17 June 1936.
Aorangi left Sydney for Canada on 18 June 1936 at 5:10 p.m. with 300 passengers (including CPR overseas passenger traffic H.W. Brodie) and had a fast crossing of the Tasman, reaching Auckland at 7:10 a.m. early on the 22nd." Passengers on the Aorangi, which arrived from Sydney early this morning, had no excuse for not being up for all meals, as a sea of glass-like smoothness was experienced throughout the voyage. The Aorangi, which is to resume her trip to Vancouver to-morrow morning, berthed soon after seven o'clock. The vessel was boarded out in the gulf by half a dozen Auckland detectives, who searched the ship for a Sydney murder suspect." (Auckland Star, 22 June 1936). The ship was thoroughly searched and every new man of the crew interviewed but the suspect wanted in a sensational "wardrobe murder" in Sydney was not aboard. Aorangi departed northbound at 11:00 a.m. on the 23rd. At Honolulu on the morning of 3 July, she landed 45 passengers and left at 4:00 p.m. after embarking a good list for the mainland and had a total of 407 passengers aboard on departure. Reaching Victoria on the 9th at 9:00 p.m., Aorangi landed 206 there and left for Vancouver at midnight and arrived at 7:00 a.m. on the 10th.
![]() |
| Aorangi at Vancouver's Pier C in 1936. Credit: Wallace B. Chung and Madeline H. Chung Collection, University of British Columbia. |
Business picked up that summer season, and on leaving Vancouver at 10:00 a.m. on 15 July 1936 for the Antipodes, Aorangi had 375 passengers on board, seen off by nearly 4,000. She called at Victoria 4:00 p.m.-5:30 p.m. In advance of her timetable, Aorangi made Honolulu at 3:30 p.m. on the 21st and had a near record 225 landing passengers for the port. She carried on south at 11:00 a.m. the following morning with 130 through to the Antipodes. Pausing at Suva on the 31st where she loaded bananas for New Zealand, Aorangi reached Auckland at 12:25 p.m. on 3 August and in addition to bananas and passengers, brought in another large mail, with 742 bags alone for the city. Capt. Hill told the Auckland Star, "The trip was without a single incident-- just as it should be." Among those landing was Dr. Malcolm Sargent, conductor of the London Philharmonic Orchestra, for a month-long visit (his first) to the Dominion before embarking on a concert tour of Australia. Departing at 10:00 p.m. on the 4th, Aorangi arrived at Sydney at 8:00 a.m. on the 8th.
Northbound on 13 August 1936, Aorangi cleared no. 5 Darling Harbour at 5:10 p.m., numbering among her passengers the Wallabies, the rugby team, bound for matches in New Zealand and the Australian ski-ing team, also destined for the Dominion. Making quick work of the Tasman, Aorangi arrived early at Auckland, coming in before 7:00 a.m. on the 17th and continuing north the next day at 11:00 a.m.
![]() |
| Aorangi at Auckland. Credit: State Library of South Australia. |
During her call at Auckland, rumours were published in the London and overseas press that CPR was contemplating a major fleet renewal of their Pacific services:
London, August 15 Shipping circles in London decline to confirm reports from Canada that it is contemplated to spend £12,000,000 on the construction of four new liners to replace the Niagara and Aorangi, also the Empress of Russia and the Empress of China sailing between Canada and Asia. The placing of such orders depends upon an agreement between the Governments of Britain and the Dominion. In any case the figure being circulated in Canada is considered to be too high as it is expected that two Canadian-Australian steamers will cost £1,250,000 each. Building even at that figure would be uneconomic if the vessels were left unaided against American competition.
New Zealand Herald, 17 August 1936.
It was fast going on her northbound run, and originally scheduled to reach Honolulu the morning of 28 August 1936, Aorangi came at 6:00 p.m. on the 27th with 108 through passengers and 48 landing there. She cleared at noon on the 28th for British Columbia with 283 passengers aboard and after "a splendid passage" as far as Cape Flattery was met by heavy fog at noon on 3 September, so heavy that she was forced to hove to for several hours and picked her way via radio beacons and finally reached Victoria at 8:00 p.m. that evening. Landing 100 there, Aorangi sailed for Vancouver at 9:30 p.m.only to run into more fog in the Gulf of Georgia and she reached port at 4:00 a.m., her remaining passengers now well used to the sound of her fog horn.
Among those embarking at Vancouver for home on 9 September 1936 was New South Wales Premier, the Hon. Bertram Stevens, wife and daughters, returning after a European and American tour of some seven months; and 59 members of the Federation of the Chamber of Commerce of the British Empire led by Viscount Elibank and Sir Albert Atkey. Aorangi got underway at 11:00 a.m., an hour late waiting for mail, and called at Victoria 3-5:30 p.m. that afternoon and the Victoria Daily Times reported "the big ship is sailing with every cabin occupied." There were 102 landing at Honolulu at 2:30 p.m. on the 15th and 272 through passengers aboard. When she cleared Honolulu at 10:00 a.m. for the south the next day, she had 292 passengers aboard including 20 who boarded there. At Suva on the 24th, the Empire Chamber of Commerce delegates were welcomed by officials and toured the island.
Auckland was reached at 7:00 p.m. on 27 September 1936. Aorangi brought in another enormous mail consignment-- 1,829 bags-- from England and America for New Zealand. The delegation hosted a reception for local officials aboard in Aorangi's lounge on arrival and landed the next morning. Aorangi was not able to complete her cargo working until after midnight on the 28th so it was 1:55 a.m. before she was on her way to Sydney where she arrived on 2 October at 8:30 a.m..
British Columbia-bound, Aorangi set off from Sydney at 4:00 p.m. on 8 October 1936. It was a bittersweet departure for Chief Steward Bob Reid for whom it would be his last voyage before retirement after a career logging some 3 mn. miles crossing the Pacific. Apart from a slight swell crossing the Tasman, after a fine voyage, Aorangi got into Auckland at 7:00 a.m. on the 12th and off again at after 3:00 p.m., some four hours late owing to heavy rain delaying cargo operations, and having embarked about 60 additional passengers.
Dr. Arthur Compton's cosmic ray laboratory aboard Aorangi paid dividends as reported by the New Zealand Herald of 12 October 1936: "As a result of 5000 readings of a meter installed on board tho liner Aorangi on the Vancouver-Sydney service during recent months, Dr. Arthur Compton, an American physicist, announced to-day that he had tentative proof that cosmic rays come from outside the earth's atmosphere, pressing most heavily on the Northern Hemisphere. Dr. Compton states that these findings are confirmed by parallel experiments conducted by other physicists at Innsbruck, in Australia, and at Cape Town."
Capt. Hill brought Aorangi into Honolulu the morning of 23 October 1936 and had her alongside Pier 7 just before 8:00 a.m. to land a dozen passengers and some light cargo, but making the briefest of stays there, was off again by 3:00 p.m. after embarking a fair number for the mainland, having aboard 91 in all. It was a rough trip north and Aorangi reached Victoria at 7:00 a.m. on the 29th and Vancouver that evening.
![]() |
| Credit: The Vancouver Sun, 30 October 1936. |
One of the passengers landing there was the Hon. Walter Nash, Minister of Finance and Customs of New Zealand, bound for talks on trade and imperial economics in London, who was asked by the Vancouver Sun about the future of The All Red Route in the face of American subsidised competition and plans for new tonnage:
Mr. Nash, discussing the matter of a subsidy, or increased direct financial assistance for British ships serving Australia, New Zealand, Fiji and Canada, stated that the people of New Zealand are prepared to do their part in helping the "all-red line" to compete successfully with heavily subsidized lines of other countries. He believes it is a matter of more luxurious ships to attract travellers, although he said he had nothing to complain of in accommodation or service aboard Aorangi.
Announced on 2 November 1936 and occasioned by the late arrival of British mail via Atlantic ports, Aorangi's departure for the Antipodes was changed from the 4th to the 5th, departing Vancouver at 10:30 a.m. Benefiting from the Pacific Coast American maritime strike, she went out with nearly 500 passengers, the best southbound list in years and 150 coming from the U.S. via Seattle and embarking at Victoria and her departure from there was afforded a full "write up" in the Victoria Daily Times:
Seldom has an Australian boat been given such a gala send-off as the Aorangi on her sailing early yesterday evening from the Rithet piers to Honolulu, Suva, Auckland and Sydney.
The big ship sailed with 500 passengers one the largest lists carried by a ship of this fleet in some years. Over 150 passengers embarked here, a large number of them coming from Seattle earlier in the day.
About half the passengers were starting out on pleasure trips, so there was much gaiety and lightheartedness aboard. Many of the travelers will disembark at Honolulu to spend the winter months; others will proceed from there to the Orient. A number of the passengers were starting world voyages, via the Southern Hemisphere.
It was 6.30 o'clock when the Aorangi cleared the Outer Docks. She backed out into darkness, her decks and portholes ablaze with lights, her orchestra playing on the main deck and her passengers preparing to settle down for a long voyage.
When Aorangi arrived at Honolulu on 11 November 1936 at 2:00 p.m., her passenger figures were cited by the Honolulu Star Bulletin to number 100 landing there and 291 through passengers so somewhat shy of the "500" the Canadian press had stated. She also dropped off a large consignment of mail, totally 2,122 bags, and 39 tons of cargo before proceeding south at midnight. After another remarkably smooth Pacific crossing, Aorangi arrived at Auckland at 12:10 p.m. on the 23rd, with 468 passengers aboard of whom 236 landed there. It was another late cargo working there and Aorangi did get underway for Sydney until 1:15 a.m. on 24th where she finally reached the Heads at 3:00 p.m. on the 27th instead of 6:00 a.m., much delayed by a cyclone in the eastern Tasman as was Union's magnificent new Awatea. "Capt. T.V. Hill said the voyage was one of the worst in his experience for many years." (Daily Telegraph).
The new American sisters Mariposa and Monterey swept all before them and operating without significant new tonnage for many years, Union's San Francisco-Wellington-Sydney service was terminated with the arrival at Wellington on 7 December 1936 and at Sydney on the 12th by the veteran Makura.
On 8 December 1936 the Imperial Shipping Committee's report, made public in Canberra, recommended the construction of two new modern liners for the Antiopodes-Canada run, costing £1.25 mn. each to complete with, but run on a coordinated schedule with the Matson-Oceanic Mariposa and Monterey. While at the same acknowledging that the just lapsed San Francisco service of Union Line would not be revived but that the city be included on a revised C-A route.
In estimating the possibilities of future passenger traffic, the committee assumed that the Union Royal Mail Line would be discontinued and that the Canadian-Australasian Line would be equipped with two vessels equal in speed and amenity to the two Matson ships. The two proposed new ships would be built to carry approximately 350 to 375 first-class passengers, 250 cabin class, and 150 to 175 third-class. They would have a minimum deadweight cargo capacity of 4000 tons, with cubic capacity of 1000 tons. at 50 cubic feet to the ton, including 1500 tons of refrigerated space, which would be capable of extension to 2000 tons.
The ships would be comparable with the existing Matson line vessels, and the total cost would be about £2.500.000 or more. Each ship would sail once a month on schedule based somewhat on the following: From Vancouver and Victoria to San Francisco, Honolulu, Suva, Auckland. Sydney, and Melbourne, returning via the same ports excluding San Francisco.
The Sydney Morning Herald, 8 December 1936.
The U.S. Maritime Strike had an immediate effect on Hawaii's food supplies, most of which were imported from the mainland. To help fill the shortage, Aorangi would take to Honolulu on her upcoming voyage 5,000 boxes of New Zealand butter and a quantity of frozen meat and general produce.
Christmas came early when the New Zealand Women's Association in Sydney held a Yuletide celebration aboard Aorangi at her Darling Harbour wharf on 2 December 1936 which attracted 50 guests. Departing the following day for Auckland at 4:20 p.m., Aorangi arrived there at 7:00 a.m. on the 7th to an unusual welcome as described by the Auckland Star:
Three aeroplanes, circling above the Royal Mail liner Aorangi as she moved up the harbour in the hazy morning sunlight roared a welcome to-day on the vessel's arrival from Sydney. Among the many passengers was Mr. F. B. Cadman, a member of the committee of the Auckland Aero Club.
Fine weather was experienced all the way, and the trip was made without incident. The ship berthed on schedule, and will sail again at 2 p.m. en route to Vancouver.
The arrival of the three 'planes from the Mangere aerodrome added a spectacular touch to the conclusion of the trans-Tasman crossing. Two of them, piloted by Mr. K. Robinson and Mr. J. Butcher, circled high above, while the third, Mr. Cadman's own 'plane, with his son, Mr. L. Cadman at the controls, dived and climbed directly over the ship.
During the trans-Tasman crossing, work continued on improving Aorangi's accommodation:
Further extensive improvements to the first-class passenger accommodation in the Aorangi, which arrived from Sydney to-day, was begun on the voyage across the Tasman.
The cabins on B and C decks were modernised and refurnished a year ago, and it is now proposed to alter and redecorate the other cabins, about 120, on D and E decks. A gang of workmen was engaged throughout the journey from Sydney on the first part of the work, and about 16 cabins on E deck were dealt with. Some have been greatly enlarged and others that have not been increased in size have been changed from two-berth to single- berth cabins.
Because of the demand for accommodation, it will not be possible to continue with the work until the Aorangi returns to Sydney from Vancouver, when the other cabins will be completed. The gang of workmen will return to Sydney from New Zealand.
Press, 8 December 1936.
This was announced in Canada on 16 December 1936 with more details provided in the Victoria Daily Times:
The number of staterooms on decks D and E will be reduced to provide more spacious accommodation and to introduce a new feature, single berth outside rooms. Much of the work has already been done without interfering with the schedule maintained between Australia and New Zealand by the liners Aorangi and Niagara of this service.
On her next voyage from Vancouver on December 30, sixteen of the new cabins on E deck will be in use.
The programme of alterations will be completed early next year and be in readiness for the Aorangi's departure from Sydney on February 18 and Victoria and Vancouver March 17. Altogether there will be fortyeight new staterooms on D deck and thirty-eight on E deck, all with outside portholes.
Leaving Auckland on time proved increasingly difficult owing to the amount of cargo being carried northbound owing to the American maritime strike so that Aorangi did not sail north until 4:00 p.m. on 8 December 1936. She reached Honolulu on the 11th, arriving off port at 11:00 a.m. and alongside Pier 7 by noon with 128 through passengers and 21 landing there before sailing northbound at 9:00 p.m. after embarking additional passengers for the mainland, including the Bremerton, Washington high school football team and the San Jose State college football team. Aorangi had a stormy northbound voyage and reached Victoria at 9:00 a.m. on Christmas Day with 406 passengers and a 4,800-ton cargo, and Vancouver at 5:00 p.m.
The year ended on a bouyant note when Aorangi left Vancouver at 10:00 a.m. on 30 December 1936 "carrying the largest passenger list of any sailing during the past ten years for Canadian-Australian liners," (The Province), with 630 passengers for Hawaii and the Antipodes, and called at Victoria 5:40-8:30 p.m.
![]() |
| Credit: Joseph Lebovic Gallery |
1937
Aorangi begin the New Year coursing to warmer climes and when she came into Honolulu at 7:00 p.m. on 5 January 1937 and docked at Pier 7 at 8 o'clock, she had 208 passengers landing there as well as 3,133 bags of mail and 440 tons of cargo to make it one of her most busy and profitable Hawaiian calls in years. And she still had 393 through passengers for the Antipodes aboard, including American Olympic swimming champion Jack Medica en route to competitions in Melbourne. Aorangi sailed southward at noon on the 6th and called at Suva on the 15th (picking up a near record of 226 passengers there) before arriving at Auckland at 2:10 p.m. on the 18th in company with Awatea from Sydney. Aorangi came in with 686 passengers of whom 256 landed there, departing for Sydney at 5:30 p.m. next day where she docked the morning of the 23nd. She came in with a record 656 passengers and so crowded for the trans-Tasman crossing that the gymnasium had been converted into a dormitory for boys.
![]() |
| Credit: The Province, 26 January 1937. |
Into the New Year, consideration of the recommendations of the imperial shipping committee towards the building of two new ships for the C-A service turned to the biggest issue: providing the essential subsidy, either operational or construction or both, to facilitate the endeavour and to level the playing field with the subsidised American service which threatened to sweep British-flag competition off the South Pacific route. On 26 January 1937 the Canadian press widely reported that the British cabinet "has agreed in principle to a subsidy for British shipping in the Pacific," which was seen as an essential first step to encourage an equal commitment by the Dominion Governments of Canada, Australia and New Zealand. For their part, Canadian Pacific and its dynamic president, Sir Edward Beatty, had already committed to the building of new ships for both the C-A and Northern Pacific service. Australia's Federal cabinet met on 9 February to discuss the plans and the Australian press suggested that the British favoured construction of one new ship, to replace Niagara, and reconditioning and improvements to Aorangi rather her replacement.
![]() |
| Credit: Sydney Morning Herald, 13 February 1937. |
Aorangi did not depart Sydney until 18 February 1937 keeping to a timetable set well before the American shipping strike caused such disruption and huge and sudden demand on the C-A service, and allowed time for the continued refurbishment of her accommodation. It was ironic that at a time for such demand for every berth, her capacity was being substantially and she was idle when needed the most. Preparatory to resuming service, Aorangi went into Cockatoo graving dock on the 13th and undocked on the 15th, returning to no. 5 Darling Harbour to load.
The Sydney Morning Herald of 15 February 1937 reported on the completed accommodation improvements:
The reconstruction of the Canadian Australasian Royal mail liner Aorangi, carried out In 1935, included a complete rearrangement of the first-class accommodation on C deck. During the overhaul of the vessel, now in progress, the work is being carried further, and extensive Improvements are being effected in the first class cabins on the two lower decks D and E to bring them into line with the remodelled accommodation on the upper decks. Practically all the rooms of C and D decks have been reconstructed. Some have been enlarged in size, and in others the number or beds or berths have been reduced. Additional furnishings have been provided, and the accommodation renovated throughout. As a result of these alternations, the vessel's first-class accommodation will include 75 cabins for one passenger each and a large number of cabins for two passengers, in addition to 21 two-bed and three one-bed cabins de luxe.
So many visitors crowded aboard Aorangi on sailing day, 18 February 1937, from Sydney that the "All Visitors Ashore" gong was going more than half an hour before her appointed 4:00 p.m. departure and many were still coming down the gangway just as the lines were ready to cast off. Many of her passengers were bound for England and the Coronation but among those destined for New Zealand was Capt, V.G. Webb, marine superintendent for Union S.S. returning after overseeing Aorangi's refit.
![]() |
| Union S.S. Co. managing director N.S. Falla aboard Aorangi. Credit: The Province. |
Her many passengers had a slow and rough Tasman transit with hard easterly winds all the way across which made for a late arrival at Auckland, Aorangi not arrived until 10:40 a.m. on 22 February 1937 and alongside Prince's wharf by 11:00 a.m., about four hours late. She continued her passage the next day at 9:00 p.m. rather than the originally scheduled 3:00 p.m. and among those embarking for Canada and England was N.S. Falla, Union S.S. managing director, bound for talks with CPR's Sir Edward Beatty and then to England with a meeting with the Imperial Shipping Committee re. the new ships proposals. More rough weather was encountered on the long run north from Suva and Aorangi was late in reaching Honolulu, not arriving there until 5:30 p.m. on 5 March to land 53 passengers.
Both of Britain's crack trans-Pacific liners, Aorangi from the Antipodes and Empress of Japan from the Orient, arrived at Victoria the morning of 13 March 1937. The C-A flagship came in with 376 passengers, about 100 of whom landed there, many connecting to Iroquois for Seattle.
Among those embarking aboard Aorangi for the Antipodes on 17 March 1937 were the 72 members of "The Marcus Show" bound for a three-week season in New Zealand as well 11 artists of the "Tivoli Circuit" and three well-known local wrestlers. She cleared Vancouver at 10:00 a.m. and called at Victoria 4:00-6:00 p.m. on this her 35th voyage down south. When Aorangi docked at Victoria, it marked her 17th outbound call there, the first being on 29 January 1925 and since then, she had logged 245,000 miles or eight times around the world. On this trip, she went out with 230 passengers and 4,000 tons of cargo. Honolulu was reached on the 24th at 6:00 a.m., landing 62 passengers there and had 169 through passengers ago, and Aorangi continued south at 2:00 p.m. She arrived at Auckland just past 8:00 p.m. on 4 April and off for Sydney the following evening at 11:30 p.m. and docked there the morning of the 9th.
Departing Sydney at 5:45 p.m. on 15 April 1937, Aorangi experienced trouble in a crankshaft the evening of 18th, but that she could continue her voyage, "engineers believe that the trouble will cause a different of between a knot and a knot and a half in her speed and that she may be late in arriving in some ports." (The Sun, 20 April 1937). The problem was in the crankshaft of the inner starboard engine. Her speed reduced by half a knot, Aorangi reached Auckland at 7:00 a.m. on the 19th and departed at 11:00 am. for Suva and points north.
Limping into port with one engine silent, the Canadian-Australasian line Aorangi docked at Pier 7 at 8 o'clock yesterday morning a full day behind schedule.
Honolulu Star-Advertiser, 2 May 1937.
She reached Honolulu at daylight on 1 May 1937, landing 69 there and 71 tons of cargo before departing for the mainland at noon. Already late, Aorangi's departure was delayed by nine passengers, "nine women, five of them elderly and one of them lame," who missed the boat.
![]() |
| Credit: Honolulu Star-Bulletin, 1 May 1937. |
Promptly at 12 the Aorangi's gangplank went down, lines were dropped and she moved from Pier 7 into the harbor basin.
Two minutes later panting females streamed onto the dock from all directions.
Two of them half dragged, half carried a third who was lame and like irritated. All were laden with leis, boxes, fruit and other impedimenta.
Several began to cry as they saw the liner moving leisurely but inexorably from the dock, just a a few yards away.
But officials of Theo. H. Davies & Co.'s steamship department were ready for such an emergency. They had a launch waiting at the end of Pier 7 and the distressed passengers hurried breathlessly up, they were directed courteously to the waiting launch.
Ten minutes after noon, with the Aorangi already moving out of the harbor, the launch pulled up alongside and the slow process of transferring the women from launch to ship began. It took more than 15 minutes, and the meantime the big Malolo, already out from her dock at Pier 11, idled behind.
Finally the Aorangi, just at the outside channel entrance, pulled to one side and the Malolo went on.
Ultimately the Aorangi had to swing around and open a lower port, through which the ladies were hoisted by strong masculine hands.
Meanwhile, as the job of hoisting the late ladies aboard the Aorangi proceeded, fellow passengers on deck cheered with general derision.
And even from shore, observers though they could detect an expression on the face of Capt. Hill, up on the bridge, that would shrivel the very soul of belated passengers.
He believes in being on time.
Honolulu Star Bulletin, 1 May 1937.
On 4 May 1937 it was reported that Aorangi would not reach Victoria until Saturday morning, coming up with 400 passengers and 3,580 tons of cargo. This was further changed on the 6th when her arrival at Victoria was expected to be 5:00 p.m. Saturday (8) and reach Vancouver the following morning. Her outbound sailing on the 11th was put back to the 12th.
![]() |
| Credit: Times Colonist, 10 May 1937 |
Thirty-six hours late, Aorangi made Victoria at 7:30 p.m. on 8 May 1937 when it was revealed that one of her junior engineers had been badly injured during repair efforts to the damaged crankshaft four days before reaching the port:
Thomas W. Ashworth, a junior engineer on the Ms. Aorangi arrived here Saturday evening from Australia in the ship's sick bay with badly crushed arms, suffered aboard the ship when four days out of Victoria.
The Aorangi was thirty-six hours behind schedule because of trouble with the starboard engines, one of which was still out of commission when she docked.
The trouble developed during rough weather and Ashworth was injured when a broken part of the engine fell on him as he was assisting in making repairs. One of his arms was fractured in three places and the other badly crushed
Dr. A. O'Neil, ship's surgeon, operated immediately on the injured engineer with the assistance of two other physicians, who were passengers aboard the liner.
When the Aorangi reached Vancouver early yesterday morning Ashworth was removed by ambulance to hospital, Hospital attendants yesterday evening reported his condition fair, but it is unlikely he will be as able to sail for his home with the Aorangi on Wednesday.
Times Colonist, 10 May 1937.
Crankshaft notwithstanding, Aorangi's next departure from Vancouver on 12 May 1937 for the Southern Dominions coincided with the Coronation of King George VI and she went out dressed overall and "an elaborate Coronation dinner will also be served." She sailed from Pier C at 10:00 a.m. with 100 passengers, including American film actor Lloyd Hughes and his wife, and reached Honolulu at 9:40 a.m. on the 17th, and alongside Pier 7 by 11:00 a.m., landing 29 passengers, 20 bags of mail and an automobile there. The 28th saw Aorangi at Suva and at 6:30 a.m. on 1 June she reached Auckland. She had 1,800 bags of mail for New Zealand, 548 for local consumption and departed for Sydney at 5:00 p.m. on the 2nd.
![]() |
| Credit: The Daily Telegraph, 7 June 1937. |
Escaping the worst of a cyclone in the southern Tasman, Aorangi was still late arriving at Sydney at 1:50 p.m. on 5 June 1937, some two days off her original schedule.
Aorangi would not sail again until 5 August 1937 after undergoing her most comprehensive engine overhaul and repairs since entering service. The work was accomplished alongside her normal berth at no. 5, Darling Harbour, and on 2 July the giant floating crane Titan came alongside her to lift out parts of her damaged engine.
On schedule and fully repaired, Aorangi left Sydney at 5:28 p.m. on 5 August 1937 for Auckland. Her restored power was put to good use ploughing through a heavy sou'westerly and beam seas crossing the Tasman and the Auckland Star of the 9th wonderfully recorded her arrival that morning: " the R.M.M.S. Aorangi entered the Auckland Harbour this morning to be greeted by the dawning of a sunny day. As she swung past North Head, she sailed in a dismal gloom. Then directly astern of her rose the sun, blood red and watery, making a richly coloured halo in her wake. Only the brush of an artist could have captured the effect." She came over lightly loaded, "but beneath her hatches was a large quantity of cargo, including a heavy shipment of Christmas fireworks. As she was being brought alongside a steel spring hawser snapped with a loud report, but no one was injured." Aorangi proceeded north at 11:50 a.m. the following morning.
Aorangi was alongside Honolulu's Pier 8 at 8:00 a.m. on 20 August 1937, landing 41 passengers there and having aboard 172 through to the mainland whence she sailed at 4:00 p.m. after embarking a near record 300 passengers making for a total of 477 aboard (221 First, 186 Cabin and 80 Third), including many young people ending their vacations and returning to school. Back to her old habits, she was 12 hours ahead of schedule berthing at Victoria at 4:30 p.m. on the 26th and about 150 landed there, many transferring to the CPR Princess Marguerite which left for Seattle half an hour later. Proceeding to Vancouver, Aorangi docked there at 11:00 p.m.
On 1 September 1937 the Canadian press reported that the Canadian Government had agreed in principal to contribute towards a subsidy to build two new ships for the Canadian-Australasian line with the idea that Canada, Australia, New Zealand and Fiji contribute their share towards the project as per the recommendations of the Imperial Conference on Empire Shipping. It was further proposed that a new company, the Canadian-Australian Line be formed with one half the stock owned by the CPR and the other by Union Steamship.
![]() |
| Credit: The Province, 31 August 1937. |
It was back home to work and school, too, for the estimated 20,000 Australians who had visited England for the Coronation that summer and when Aorangi pulled out of Pier C, Vancouver at 10:00 a.m. on 1 September 1937, she had 480 passengers aboard, close to a record for the season. Among those aboard was Australian General Sir Harry Chauvel who led his country's contingent in the Coronation celebrations; Australia's Minister of Transport Mr. Bruxner; and New Zealand's Minister of Labour, the Hon H.T. Armstrong, returning from the International Labour Conference in Geneva.
![]() |
| Credit: The Province, 2 September 1937. |
A Canadian Pacific Railway baggage man and a Canadian customs examiner took to the air Wednesday afternoon to aid a passenger aboard the Canadian-Australasian liner Aorangi, whose baggage landed by train from New York four hours after the green and orange liner, had sailed from Vancouver Antipodes. Travelling Baggage Agent Jim Franklin of C. P. R. and Customs Officer Fred Mills left Sea Island airport at 3:20 p.m. in a plane chartered from Wells Air Transport, and set down at Esquimalt forty minutes later, just as the Aorangi was nosing into the outer wharf at Victoria.
A dash from Esquimalt to the Victoria side completed the transfer and the passenger, F. Daniell, executive of the Sydney Sun newspapers, gave enthusiastic thanks. Baggage Agent Jim Franklin is veteran of such 'rescues,' but it was a new experience for Customs Officer Mills, for whom it was the first time in the air.
The Province, 2 September 1937.
Aorangi's sailing from Victoria that evening attracted more than usual press attention as well:
Departure of Ms. Aorangi from the ocean docks late yesterday afternoon was a gala event. The big liner'had 480 passengers aboard. They lined the ship's rails and had their heads out of portholes. Serpentine was thrown, the ship's orchestra played, friends on the docks waved farewell, and Aorangi backed out into the placid blue waters of the Straits and headed out for sea just as the sun commenced to set over the Sooke hills. She was outward bound to Honolulu, Suva, Auckland and Sydney.
Times Colonist, 2 September 1937.
Aorangi made Honolulu at 6:30 p.m. on 7 September 1937, arriving there with 351 through passengers and landing 96 there before departing the following noon. Taking leave of Suva at 5:00 p.m. on the 16th, Aorangi reached Auckland at 2:45 p.m. on the 19th and alongside Queen's Wharf by 3:45 p.m. A crew member was found to be suffering from a mild case of German measles but after examination, the ship was granted practique and permitted to berth. She departed for Sydney at 8:00 p.m. the next day where she docked at 11:00 a.m. on the 25th.
The Honolulu Star Advertiser of 22 September 1937 reported that "sometime before the end of this month orders are expected to be placed with British shipyards for the construction of two 22,000-ton liners to replace the Niagara and the Aorangi in the Antipodes service. It is understood that the liners will be modelled after the Empress of Japan and will be ready for service by 1940. The total cost will be about $15,000,000 it is understood and will be financed by a loan split between Britain, Canada, New Zealand and Australia…. The Niagara will probably be scrapped while the Aorangi will likely be placed in some other service." It was also mused that P&O might loan "two fast ships" to enable the replacement sooner while the new vessels were being built.
Aorangi (Captain William Martin replacing the Captain T.V. Hill who was on leave) left Sydney at 5:10 p.m. on 30 September 1937 and reached Auckland early on 4 October. Berthing at Prince's Wharf, she landed 222 passengers. During her crossing, Aorangi sighted fleetmate Awatea at 3:45 p.m. on the 2nd on what would prove a record breaking crossing to Sydney of 55 hours 29 mins at 23.3 knots, and at 9:45 p.m. the same day, passed the westbound Monterey. Aorangi cleared Auckland at 11:50 a.m. on the 5th and made an unusual evening arrival at Honolulu, docking at Pier 7 at 8:00 p.m. on the 14th with 90 through passengers and 21 landing there. Overnighting there, she resumed passage north at 11:00 the following morning. Arriving at Victoria at 9:30 a.m. on the 21st, Aorangi had only 27 disembarking there and 103 carrying on to Vancouver where she docked at Pier C at 6:00 p.m. Her inbound cargo included 6,000 cases of Australian oranges, lemons and grapefruit as well as 2,000 stems of Fijian bananas. "Coming up from 'down under' with a bone in her teeth all the way, R.M.M.S. Aorangi of the Canadian-Australasian Line made a fast run… passengers and officers of the big motorship reported a splendid voyage." (The Province, 22 October 1937).
![]() |
| Credit: Times Colonist, 28 October 1937. |
There were over 500 takers for Aorangi's next southbound voyage from Vancouver and Victoria on 27 October 1937, including Her Grace the Dowager Duchess of Norfolk, bound for Auckland, accompanied by Lady Winefrede Fitzalan-Howard, and the Dowager Lady Swaythling. Aorangi's holds, too, were well-filled with 5,800 tons including 10,000 sacks of Okanagan onions, 3,200 boxes of B.C. applies and 450 sacks of wheat. Overall, business was booming and it was stated at the time that C-A would have some 3,000 passengers aboard nine sailings through March. Both CPR and C-A reported record bookings to and from Hawaii.
![]() |
| Credit: Honolulu Star-Bulletin, 4 November 1937. |
Aorangi had 439 through passengers and 59 to land upon arrival at Honolulu at 7:00 a.m. on 3 November 1937 and continued south at 3:30 p.m. but not until the ship posted a $2,500 bond with Judge Edward M. Watson in federal court there after a U.S. Marshall attached the ship after complaints of rubbish being thrown overboard in harbour, a offense punishable by fines of not less than $500 and no more than $2,500. Mariposa and President Coolidge had to post similar bonds pending their cases being heard in court as would Aorangi's in time.
When Aorangi reached Auckland on 14 November 1937 at 7:00 p.m. she had 529 passengers aboard of whom 276 disembarked there. The Auckland Star noted that arriving overseas liners in New Zealand were all coming in with capacity loads, indicative of market shift in Pacific traffic away from the Oriental ports due to the Sino-Japanese War (CPR having cancelled their calls at Shanghai) to the Antipodes. Passengers aplenty and mails, too and Aorangi came in with no fewer than 2,362 bags of letters and 910 bags of parcels for New Zealand of which 724 bags of letters were for Auckland. She left for Sydney at 10:00 p.m. the following evening, docking there on the 20th by 9:00 a.m..
Vancouver destined, Aorangi (back under the command of Capt. T.V. Hill) sailed from Sydney at 4:00 p.m. on 25 November 1937 and passed out of the Heads at 5:50 p.m. and, to the puzzlement of residents of Manly and South Head, seemed to linger there until resuming passage at 7:15 p.m. It was explained by the Sydney Morning Herald the next day that the halt was owing to a test of her navigational instruments and necessary adjustments. Of her 375 passengers, all but 75 landed on arrival at Auckland at 7:30 a.m. on the 29th. 'I've never seen a sunnier sight,' said a business man as he leaned on the rail of the Aorangi when the liner was moving into her berth at the Prince's wharf this morning. From far out in the gulf the vessel, completing the first leg of her voyage from Sydney to Vancouver, had sailed through a silver sea, and the harbour had the stillness of a lake. (Auckland Star, 29 November 1937). Aorangi and Awatea both arrived in port together. Continuing her passage north, Aorangi sailed at 11 the following morning.
![]() |
| Credit: The Vancouver Sun, 17 December 1937. |
Coming into Honolulu at 6:30 a.m. on 10 December 1937, Aorangi had 27 passengers ending their voyage there and the 68 others aboard enjoying a nice long call there, not departing until noon the next day. Missing gales sweeping the North Pacific, Aorangi enjoyed fine weather on her passage north and making knots, arrived off William Head at 12:40 a.m. on the 16th and was alongside her berth at the Rithet docks by 2:00 p.m. Sixteen of her meager list left her there, most destined for Seattle. She managed to load 130 tons of roofing material and two tons of frozen fish for Australia for her outbound voyage before sailing for Vancouver at 3:30 p.m., berthing at Pier C there at midnight. "Officers and passengers of the ship report a very splendid voyage up, fair weather and glowing sunshine." (The Province, 17 December 1937).
"Ship of athletes." That will prove a fitting name for the R.M.S. Aorangi when she pulls away from the outer docks on December 22 for Australia, with a stop on the way at Honolulu. On the ship's passenger list will be the Canadian team en route to the British Empire Games at Sydney in February, and the University of Washington Huskies football team going to Honolulu for two exhibition games against the University of Hawaii on New Year's Day and the Honolulu Town Team on January 6.
Times Colonist, 14 December 1937.
It was, the Province described it, a passenger list of "bone and brawn," and of her 400 plus passengers, one-third sailing south in Antipodes from Vancouver and Victoria on 22 December 1937 were athletes, 100 or more. It was reckoned to be the largest party of sportsmen ever to embark from Pacific port in a single vessel. The Canadian Team for the Empire Games numbered 76 (including 37 track and field athletes, 18 swimmers, 10 boxers and wrestlers, six oarsmen including a 14-year-old coxswain, four lawn bowlers and one cyclist from every Province save New Brunswick and Prince Edward island; and the University of Washington group, including the team and supporters, some 50 in all.
The thrill of leaving on a modern ocean liner will be over for the athletes once they leave Victoria, From then on it will be work, and it will be spelled with a capital 'W.' There is a gymnasium on the 'Aorangi' equipped with bicycle and rowing machines, heavy and a light punching bag and a few extra mats for the wrestlers to work out on.
In addition to the gym, there is a 14-foot pool, six feet deep, which will enable the tank stars to get Into the water and work with harness. A one-metre diving board is being rigged up and this will give the divers a chance to work the kinks out of their bodies. Two nine-pound medicine balls are being added to the ship's training equipment.
Dally workouts will be held, with the sprinters and track folk going for long walks around the decks. Running around the decks is taboo, as it tends to stiffen the muscles. The gang will be on the boat 21 days, so they ought to get In a few miles before the boat docks at Sydney.
The Vancouver Sun, 21 December 1937.
To get the Canadian team settled and aboard, they embarked at 10:00 p.m. the night before Aorangi sailed the next morning.
The air was filled with tingles of excitement, pulsating glee, the electricity generated from eager healthy athletes . . . and a winter frosty nip. The air was filled with col or, from the rippling chilly blue water where floated the castle of dreams the Aorangi to the guarding, smiling, white Lions above who watched so attentively.
The air was filled with sound; the stirring, arousing notes of bands, the hysterical shouts of lucky travelers, the business of a gigantic departure and the shouts of 'Bon Voyage' plus Aloha Oh. And the deep sea steamer, floating so solidly in our scenic, natural harbor, was filled with Canada's best array of amateur athletes.
At six bells by the clock of the sea or three bongs by the landlubber's timepiece, the Aorangi churned out from the C.P.R. pier this afternoon, came about and pointed its nose out of this fine harbor as she starts for another great natural port, Sidney, Australia. There she will arrive Jan. 5, barring any tricks of the sea of course, and there a team of about 90 will disembark and take up domicile for the British Empire Games which go on from Feb. 5 to 15.
The Vancouver Sun, 22 December 1937.
![]() |
| Credit: The Vancouver Sun, 23 December 1937. |
![]() |
| Credit: The Vancouver Sun, 23 December 1937. |
Aorangi sailed from Vancouver at 3:00 p.m. on 22 December 1937 on one of her most publicised voyages, certainly in Canada. At Victoria that evening, she embarked additional Canadian team members as well as her American football teams which came up by steamer from Seattle to join her. Christmas was celebrated at sea and Aorangi reached Honolulu at 6:00 a.m. on the 29th to land 134 passengers at Pier 8 and had 288 through to the Antipodes. It was a busy morning for the port and an hour later Lurline arrive from the coast. Aorangi sailed for the south at 4:00 p.m.
![]() |
| Credit: Wallace B. Chung and Madeline H. Chung Collection, University of British Columbia. |
1938
When Aorangi reached Auckland on 10 January 1938 she joined Mariposa, Mataroa, Rangitane, Rotorua and Wanganella in the packed harbour and altogether there was a combined total of 170,000 grt in port. The C-A flagship arrived at 11:45 a.m., berthing at Prince's Wharf and having aboard 220 passengers. Due at 9:45 a.m, "boisterous weather" at sea off the New Zealand coast delayed her and her. Her departure for Sydney postponed to the next day at 5:00 p.m., she did not actually get away until after 10.
![]() |
| Credit: The Sydney Morning Herald, 17 January 1938. |
Aorangi arrived at Sydney at 8:00 a.m. on 15 January 1938. She went into Cockatoo dry dock for hull cleaning and painting on the 17th and back at her Darling Harbour berth on the 19th.
Aorangi sailed for Auckland at 4:00 p.m. on 20 January 1938, and "entering the harbour through a pall of heavy weather," reaching there at 3:00 a.m. and anchoring in the stream to proceed to her berth at Prince's Wharf at 7:45 a.m., landing 370 passengers there. The Auckland Star in reporting her arrival mentioned that: "Changes which are being made in the mountings of the uniforms worn by masters, officers, engineers and other ranks of the sea-going staff of the Union Steam Ship Company have now been adopted on the Aorangi. Fixed in 1918 by the Imperial authorities for the standard uniform of the British mercantile marine, they make for easier identification of the various ranks." It was another later departure from Auckland, set back from 11:00 a.m. on the 25th to 4:00 p.m. and she took out 15,000 cases of New Zealand butter for Canada.
There were 36 passengers landing at Honolulu on arrival at 8:00 a.m. on 4 February 1938 and Aorangi embarked quite a few before departing for the mainland at 3:00 p.m. with 240 passengers. Slowed on her run north by headwinds, Aorangi reached William Head at 6:00 p.m. on the 10th, about four hours later than anticipated and docked at No. 2 Rithet Docks by 7 p.m., landing 50 there. Aorangi docked at Pier C, Vancouver, the following morning.
![]() |
| Credit: Daily News, 12 March 1938. |
It was Canadian athletes the last trip and for Aorangi's next voyage south, beginning on 16 February 1938, it was North American bronk riders with eight champion riders and ropers, four each from Canada and America, bound for a performance at the Royal Agricultural Exhibition in Sydney, among her 200 passengers. She also went out with a 5,000-ton cargo. Arriving at Honolulu at 8:15 p.m. on the 22nd, Aorangi was alongside Pier 8 an hour later to land 78 there and remained overnight, departing at 1:00 p.m. for the south. Late by several hours because of rough weather off the coast, Aorangi docked at Auckland at 7:25 p.m. on 6 March with 100 landing there. "Heavy weather was encountered by the liner Aorangi, which arrived from Vancouver last night, as she was approaching the New Zealand coast on Friday night and on Saturday. Passengers reported last night that the ship was particularly steady, however, and although spray came aboard, no inconvenience was caused." (New Zealand Herald, 7 March 1938). She left for Sydney at 11 p.m. on the 7th having embarked 310 for the trans-Tasman crossing and arrived on the morning of the 11th, her cowboys being the main attraction of the local press.
![]() |
| Twin icons of the 1930s Sydney. Credit: Australian National Maritime Museum. |
Off to Auckland and points north, Aorangi left Sydney at 4:00 p.m. on 17 March 1938, making her 40th such departure since coming into service. She made Auckland the morning of the 21st, tying up to Queen's Wharf this time, landing 240 passengers, and off again at 11 the following morning. April Fool's Day was real enough for Aorangi as she came into Honolulu that morning with 316 through passengers and 89 others landing there before she resumed her passage north at 4:00 p.m. with 411 (167 First, 178 Tourist and 66 Third Class) aboard. She came into Victoria at 7:00 pm. on 7 April, landing 97 there, most of whom were transshipping to Seattle. Docking at Vancouver at 7:00 a.m. on the 8th, Aorangi landed her remaining passengers and a large cargo of wool, bananas, onions, pears and grapes, canned pineapple "and a wide range of choice liquors from Australia."
Among those embarking in Aorangi at Vancouver on 13 April 1938 were six Fijians, three Tahitians and one Samoan, crew members of Beulah, returning home or connecting at Fiji; the boxer Alabama Kid bound for Australia and a theatrical troupe. Pulling out at 10:00 a.m., Aorangi got caught a a strong tide and went astern for considerable distance until her engines kicked in. A liner in a hurry, Aorangi swept into Honolulu at 6:00 p.m. on the 19th, 12 hours ahead of schedule, and alongside Pier 11 by 7:00 p.m. to land 41 passengers and 121 tons of cargo. She came in with 124 through passengers for the Antipodes and added to these before she proceeded south at noon the next day. Her call at Suva on the 28th was enlivened when a passengers, Alfred Owen Sandys, was arrested on instructions by the Vancouver police on a charge of false pretenses. Aorangi reached Auckland at 3:30 p.m. on 1 May 1938, berthing at Queen's Wharf at 4:00 p.m. She was off for Sydney at 11:00 p.m. on the 2nd and got in there on the 6th at 7:00 p.m., berthing at No. 5 Darling Harbour by 9:30 p.m..
Aorangi left Sydney at 4:00 p.m. on 12 May 1938 and cleared the Heads at 5.20 p.m. began a quick trans-Tasman run that had her berthed alongside Queen's Wharf, Auckland, at 7:30 a.m. on the 16th. She brought 364 debarks for the city and resuming passage at 11:30 a.m. on the 17th, had 340 passengers for the northbound voyage, among them N.S. Falla, managing director of Union S.S. Co.. Sadly, a waterside worker was struck on the head when a case of machinery fell from its rope sling as the ship was being loaded earlier that and he died 30 minutes later in hospital. When Aorangi arrived at Honolulu at 8:00 a.m. on the 27th, she had 334 through passengers and 55 to land there. When interviewed by the local press regarding the proposed new ships, Mr. Falla was noncommittal, saying the decision to proceed with the plans had to come from the governments involved, but the Honolulu Star-Advertiser added "From unofficial sources, however, it is understood that tenders for the new ships have already been called and await Mr. Falla's inspection when he reaches London."
Aorangi departed for the coast at 3:30 p.m. on 27 May 1938 with 469 passengers including 167 connecting for England or Europe. Putting in one of her fastest passages ever from Australia, she reached William Head at 10:40 a.m. on 2 June and alongside Pier 2, Rithet Docks, by noon. Aorangi still had 271 passengers to land on arrival at Pier C, Vancouver, late that evening. Among those landing was Alfred O. Sandys, under the custody of Inspector A.S. Hann.
A delay to the arrival of overseas mail coming over by trans-Atlantic liner occasioned the announcement on 7 June 1938 that Aorangi's departure time from Vancouver the next day would be put back to 11:00 a.m. A strong southwest wind whipping up the straits further delayed her and although Pilot George Roberts had her off Victoria by 5:00 p.m., it was too windy to bring her alongside and she was anchored in the Royal Roads until 8:45. On clearing Victoria at 10:00 p.m., four hours late, the big motorliner had 275 passengers, 70 booked for Honolulu. She put in an exceptionally fast run south to reach Honolulu at 2:00 p.m. on the 14th and fast alongside Pier 8 by 3:15 p.m. The passage south was resumed at 11:30 a.m. the next morning. Aorangi arrived at Auckland at 2:30 p.m. on the 26th with almost 200 passengers disembarking there and another 130 coming aboard for the trans-Tasman run to Sydney beginning at 10:00 p.m. on the 27th.
Aorangi docked at Sydney the afternoon of 1 July 1938. Among those disembarking was a party of 46 German Jews who had fled the country to settle in Australia and most were professionals-- doctors, dentists, businessmen and engineers-- eager to start new lives and wary of commenting on conditions in Germany to reporters. Four Polish Jews, one Russian, an Austrian Jew and a Yugoslav were also landing as emigrants.
New Zealand's "All Blacks" national rugby team were once again Aorangi passengers, embarking in Sydney on 7 July 1938 for home after a successful (five wins, three losses and one draw) series in Australia. They were among the 221 passengers disembarking at Auckland on arrival at 7:30 a.m. at Prince's Wharf on the 11th. " A fair weather and unusually sunny voyage for this time of the year was experienced by the Canadian-Australasian passenger liner Aorangi which arrived from Sydney this morning. Her arrival in Auckland, however, was damp and cheerless, in marked contrast to the Tasman crossing." (Auckland Star, 11 July 1938).
![]() |
| Credit: Auckland Weekly News, 20 July 1938, Auckland Libraries. |
Aorangi embarked 248 for the points north, but heavy rain so delayed her cargo working that instead of departing Auckland at 11:00 a.m. on 12 July 1938, she did not get away until 5:00 p.m.. Among those sailing was a party of 21 Waitaki Boy's High School boys bound for the Empire Youth Rally at Banff, and Capt. A.S. Dalgiesh, veteran Union S.S. master who was bound for Britain to take command of the new Waipori. Aorangi had 269 through passengers aboard on arrival at Honolulu at 7:30 a.m. on the 22nd and 50 to land there. She resumed passage the next day at 3:00 p.m., with 342 (101 First, 146 Tourist and 95 Third) passengers for the coast. Putting in another good passage north, Aorangi reached William Head at 2:00 p.m. on the 28th and alongside at Victoria about an hour later to land 75 passengers, most transferring to the Seattle-bound Princess Marguerite departing at 5:00 p.m. Proceeding to Vancouver, Aorangi's berth would be changed to Pier A after the spectacular fire the previous day that totally destroyed Pier D and caused a lot of shifting of berths as a result. She arrived at 11:15 p.m..
On 15 July 1938 the Vancouver Sun and The Province had both reported that four new luxury liners would be built for the CPR and C-A services from the port to replace Empress of Russia and Empress of Asia and Niagara and Aorangi, citing the statement from Sir Edward Beatty that "if world conditions remain favourable the CPR will order five new luxury liners from British shipyards during the next three years at a cost of $55,000,000, four of them for the Pacific." The proposed C-A pair would be 25,000-grt with a speed of 23 knots, Beatty stating that "In view of the Canadian Australian Line, it is essential the ships for the Pacific be of a type that will enable the competition of foreign lines to be met effectively." An editorial in The Province on the 21st states "For the Australian-New Zealand service, it is now practically certain that two new luxury liners will shortly replace the Niagara and Aorangi, which are no longer able to compete on even terms with the faster, newer steamships plying between San Francisco and the Antipodes."
![]() |
| Credit: Times Colonist, 29 July 1938. |
It all came to a sudden end when, arriving at Quebec on 28 July 1938 aboard Empress of Britain, Sir Edward Beatty stated that it was unwise to commit to any newbuildings at the present time, citing current shipbuilding costs "are considerably higher and we consider it unwise to build at the present time." He said there was no plan to discontinue the C-A service which would have to compete as best it could in the meantime as world shipbuilding and steel prices soared amid global rearmament amid what seemed a certain second world war.
Proving that the even the existing fleet still could attract its fair share of custom, there were over 500 passengers booked for Aorangi's 3 August 1938 sailing from Vancouver for the Antipodes. With 55 destined for the British Commonweallth Relations Conference in Sydney. the list included many well known British, Canadian and Irish statesmen, leaders in government and labour including Ernest Bevin and James Walker, members of parliament and chamber of commerce executives. Intent on less serious things, were 50 members of the Hollywood Review, a theatrical group also bound for Sydney.
Pulling out of Pier A at 10:20 a.m. on 3 August 1938, Aorangi called at Victoria 4-5:00 p.m. by which time she had aboard 411 through passengers for the Antipodes and 144 to land at Honolulu on arrival, 12 hours early, at 1:00 p.m. on the 9th. She overnighted there and before departing at 11:00 a.m. took aboard a transhippment of mail from the arriving Lurline from San Francisco and Los Angeles. Calling at Suva on the 18th, Aorangi got into Auckland at 7:30 p.m. on the 21st, disembarking 240 there as well as a 2,500-bag consignment of mail there and another 1,084 bags of parcels. Her Commonwealth Conference delegates were accorded a civic reception during the call there. Embarking 137 for Sydney, she sailed at 11:00 p.m. that evening and arrived there at 8:30 a.m. on the 26th. Among those landing was another party of 43 Jewish refugees from Germany and Austria, the largest single group to arrive in one ship to date in Australia.
Aorangi left Sydney on 1 September 1938 on her return voyage to Canada and arrived at Auckland at 7:00 a.m. on the 5th with 218 passengers to land there and left at 1 p.m. the next day "with a fairly large list of passengers." On arrival at Honolulu at 7:30 a.m. on the 16th, this was defined as being 134 through passengers to the coast and 61 landing there. On departure that evening, she had 263 aboard. Aorangi came into Victoria at noon on the 22nd, landing 73 there before departing for Vancouver at noon and arriving at 9:00 p.m. Of her passengers, 157 were through booked to Britain or Europe.
During her turnaround at Vancouver, Aorangi's unique cosmic ray laboratory was checked over one more time by Dr. Arthur Compton before its removal. For three years, it had played an important part in the scientist's search for the source of cosmic rays and the equipment would be transferred to the Northland sailing between Skagway and Seattle. Based on his observations to date, Dr. Compton believed the rays originate from the Milky Way.
For the first time in years, the CPR ran a special dedicated Boat Train direct from Quebec, departing on 23 September 1938 from alongside the arriving Empress of Britain, to Vancouver to connect with the outbound Aorangi sailing on the 28th. This attracted more than 130 passengers and represented a continued commitment to the All Red Route by the company.
Also arriving at Vancouver to embark was another group of 63 Jewish refugees (53 adults, seven children and two babies) from Germany, Austria, Hungary and Czechoslovakia, bound for Australia, who were met at the station by members of the city's Jewish community.
Aorangi sailed on time, at 10:00 a.m. on 28 September 1938 despite uncertainty regarding the European situation at the height of the Munich Crisis then unfolding, and she went out with 550 passengers and 4,500-ton outbound cargo including 12,000 sacks of Okanagan onions and 500 boxes of apples for the Australian market.. She cleared Victoria late that afternoon, "Departure of Ms Aorangi for Australia was a gala occasion. More than 500 passengers crowded the liner's decks and a big crowd stood on the docks as the liner backed away and headed for sea." (Times Colonist, 29 September 1938). Aorangi had 468 through passengers for the Antipodes and 84 for Honolulu where she docked at 2:30 p.m. on 4 October and was on her way south by 11:00 a.m. the following morning. On arrival at Queen's Wharf, Auckland, at 3:00 p.m. on the 16th, there were no fewer than 615 passengers aboard, with 270 disembarking (including 10 of the Jewish refugees) and continued to Sydney at 11 the following evening after embarking another 112 passengers. Aorangi arrived at Sydney the morning of the 21st.
![]() |
| Credit: The Sun, 22 October 1938. |
The voyage down was not apparently without some tension between the "aliens" and some stewards as was reported by The Sun on arrival at Sydney:
Trouble started before the liner was far on the voyage from Vancouver. Stewards alleged that foreign passengers insulted them. They called a meeting of protest which was held in the liner's section Most of the stewards not on duty attended and the question of whether they should continue to wait upon the aliens was discussed.
Before any decision was reached, word was sent to the commander, Captain T. V. Hill, who went down and mediated. No further action was taken. Although the tension remained, the stewards carried on normally.
Captain Hill would not comment to-day beyond stating that he had intervened.
Officers said that friction occurred early into the voyage with aliens in the cabin class. Trouble was experienced in making them realise that they were not permitted to enter the first class reserves.
The Sun, 21 October 1938.
Another story in The Sydney Morning Herald of 24 October 1938 quoted a steward:
'We have always gone out of our way to please the Jewish people.' the stewards stated. 'We have been sorry for them and we have done our best to make them feel that they were coming to friendly country. But on this voyage there were some people who could not be pleased .They growled when they got on the ship at Vancouver, they growled all the way across the Pacific, and they are still growling.
We could not please them. The food was not good enough for them. They demanded special food. They found fault with everything. Most of the Jews were decent people. The arrogant, intolerant element spoiled everything.'
It was learned from passengers that many of the Jews travelling second class had asked soon after the Aorangi left Vancouver, if they might have the freedom of the ship. Permission to enter the First Class quarters was refused by Captain Hill.
The stewards paid a tribute to their captain. They said he had handled a difficult situation very tactfully.
Then The Daily Telegraph of 27 October 1938 reported:
A meeting of stewards on the Aorangi carried a resolution deploring the "highly exaggerated" newspaper reports last Saturday and Sunday concerning treatment of stewards by alien migrants during the ship's voyage from Vancouver. The resolution stated that the reports were harmful, not only to the ship and the crew, but to the migrants.
The following resolution was carried unanimously at a meeting of the members of the Federated Marine Stewards' Association employed on board the R.M.S. Aorangi:"That we, the members of the Federated Marine Stewards' Association greatly deplore the reports appearing in the Sydney highly exaggerated newspapers of Saturday and Sunday last, to do with alien migrants. As such reports are considered to do harm to both ship and the crew. and. lastly, to the unfortunate people who have been ousted from their homes and their country by the swing of the political pendulum.' (Sun, 27 October 1938.)
Union Steamship Co. issued a statement on 28 October 1938:
The commander's report for the voyage, referring briefly to the subject, makes it evident that what trouble did occur was largely the work of one" individual, who subsided after being remonstrated with by Captain Hill. The idea of some of the cabin-class passengers that they should be allowed the run of the first-class was probably due to some misunderstanding at the time of booking, no doubt on account of the language difficulty. It is, of course, out of the question that passengers should be allowed the use of accommodation of a higher class than that for which they had paid.
A considerable number of these passengers have been carried on previous trips without anything against them having been reported, and so far as the company is aware, they were quiet and well-behaved.
Torrential rain in Sydney on 25 October 1938 seriously effected cargo working in the port and delayed departing liners. Aorangi, due to sail at 4:00 p.m. on the 27th, was rescheduled to depart at midnight the 28th. She, in fact, did not get away until 12:30 a.m.:
Passengers and visitors, many of them in evening dress, joined in community singing before the Aorangi sailed for Auckland and Vancouver. at 12.30 a.m. to-day.
It was one of the gayest farewells seen on the Sydney waterfront for years. The departure of the liner was timed for midnight---the first Pacific departure at that hour tor several years.
Many of the passengers and visitors attended farewell parties ashore. and came down to the liner in Darling Harbor in evening dress. Nearly 400 passengers were aboard.
The Sun, 28 October 1938.
The Aorangi cleared the Heads 1.15 a.m. and after a "beautifully calm" Tasman transit, arrived at Auckland at 7:45 a.m. on 31 October 1938, landing 295 passengers. More rain and more delays greeted her there and two hours late, she proceeded north at 1:00 pm. on 1 November. and called at Suva on the 4th but left there with only 73 passengers. Armistice Day found Aorangi docking at Honolulu at 8:00 a.m. where she landed 32 passengers. "Immediately after the liner docked a large delegation, including crew members and ship's officers as well as passengers, departed to attend the Armistice Day memorial services at Kapiolani Park." (Honolulu Star-Bulletin). Aorangi, after embarking an additional 60 passengers for the mainland, sailed at 3:00 p.m. for Canada.
Aorangi came off William Head at 7:15 p.m. on 17 November 1938, an hour behind schedule, after fighting headwinds all the way from Honolulu to Swiftsure Light, and was alongside the Rithet Piers by 8:15 p.m. and of the 146 aboard, half disembarked there. When she docked at Vancouver at 7:00 a.m. the next morning, according to The Province, "some minor engine troubles, which developed on the run from Victoria, also annoyed the deck and engine room crews." One of those landing was Capt. C.C. Waters of Union S.S. Co. who was en route to Britain to being out the company's new freighter Karitane.
It was a classic southbound Christmas southbound voyage for Aorangi to close out 1938, Such was the amount of holiday mail and baggage for the close to 600 embarking that her departure from Vancouver on 23 November was set back from 10:00 a.m. to 11:00 a.m. But the Yuletide voyage took on a new and more poignant meaning as among those embarking was another party of 183 German and Austrian Jews bound for new lives in Australia and New Zealand. They had left England on the 12th and travelled overland by CPR and would be hosted by the local Jewish community until they embarked at 5:00 p.m. As it was, Aorangi did not clear Vancouver 11:30 a.m. and reached Victoria at 5:30 p.m. for a 7:30 p.m. departure.
![]() |
| Credit: The Province, 23 November 1938. |
Yesterday the Aorangi sailed out of the fog and murk on her long diagonal voyage to Australia and New Zealand.
Today she will be well clear of Cape Flattery and off the foggy-banks that have given the southwestern tip of Vancouver Island the name of 'The Graveyard of the Pacific.'
Her green hull will be rising to the long, lazy swells of the great ocean as she plows toward sunshine and summer. For the lucky passengers who left here on the threshold of winter will reach the Antipodes at the height of summer.
The German Jewish refugees, bundled up in great coats and furs yesterday will be coming out in summer things in another two days and soon will be sniffing the indescribably lovely breezes from Hawaii. They will see how Australia celebrates a summer Christmas without snow, or cold, or the familiar ever green Christmas trees.
The Vancouver Sun, 24 November 1938.
Aorangi called at Honolulu 8:00 a.m.-4:00 p.m. on 31 November, landing 58 passengers at Pier 7. Coming into Auckland at 8:00 p.m. on 11 December, she brought in huge consignment of Christmas mail, totalling 2,466 bags and had 278 passengers disembarking (including 22 Jewish refugees) and another 170 joined her for her trans-Tasman crossing beginning at 11:00 p.m. the next evening. About 24 hours before she arrived at Auckland, a passenger, A.B. Foxcroft of Melbourne, passed away and was buried at sea. Aorangi reached Sydney the morning of the 16th.
Destined for a trans-Tasman Christmas, Aorangi left Sydney at 4:00 p.m. on 22 December 1938. at noon and reached Auckland on Boxing Day. Among those making the crossing was Australian pianist and composer Percy Grainger and aboard for the full trip up was G. Max Warren, passenger traffic manager for Cunard White Star line and, as far as Honolulu, Lady Keith Smith, wife of the famous Australian flyer and composer Oscar A. Mendelsohn (of Melbourne and no relation to the "other" Mendelsohn) whose compositions were published under the name "Oscar Miller"). Aorangi resumed her passage north at 1:00 p.m. on the 27th.
![]() |
| Credit: University of British Columbia, Wallace B. Chung and Madeline H. Chung Collection. |
1939
New Year was rung in at sea on the broad expanses of the South Pacific between Suva and Honolulu (the voyage featured plenty of impromptu entertainments from her musical passengers) and Aorangi arrived at Honolulu at daybreak on 6 January 1939. There, she landed about 100 passengers including Lady Keith Smith who transferred to Matsonia for the U.S. mainland and on departure, had 161 passengers aboard for the final leg. Aorangi encountered unusual seas northbound, "There must have been a bad storm to the southward of us, I never saw such swells. They were mountain high and rolled in from the beam. It must have taken some wind to pile them up," Capt. Hill told The Province. An hour off her schedule, Aorangi arrived off William Head just before 1:00 p.m. on the 12th and alongside her Rithet pier an hour later to land 50 passengers and 60 tons of cargo as well as load 180 tons of roofing felt for her upcoming outward voyage before continuing on to Vancouver at 5:00 p.m where she docked around midnight.
![]() |
| Aorangi sails out of Vancouver's Lions Gate. Credit: Credit: Wallace B. Chung and Madeline H. Chung Collection, University of British Columbia. |
Aorangi numbered 120 German and Austrian Jewish refugees on her first voyage south of the new year, from Vancouver on 18 January 1939. Ninety-eight of the refugees arrived that morning in five special cars attached to CP's "Dominion" and taken directly to Pier B-C for embarkation. A half hour late arriving there at 4:30 p.m., On clearing Victoria at 5:30 p.m., Aorangi had 470 passengers aboard who had a rough first night: "Getting away from the Rithet docks last night on her outward voyage to Australia, Ms. Aorangi encountered the full force of the southwesterly gale as she cut through the heaving waters of the Straits. The probability is that the majority of the 470 passengers on the big motorliner did not enjoy their first meal aboard ship." (Times Colonist, 19 January 1939).
Later than originally expected, Aorangi arrived at Honolulu at daylight on 25 January 1939, rather than the previous evening and landed 91 there before continuing south at 3:00 p.m.
![]() |
| Credit: The Sun, 10 February 1939. |
Auckland was reached at 4:45 p.m. on 5 February 1939, Aorangi landing 237 passengers there before continuing on to Sydney at 11:00 p.m. the following evening. Sadly, the evening before the ship arrived news came that the wife of Capt. T.V. Hill had passed away in hospital in Sydney after a sudden illness. The ship's ensign and those from the company offices were lowered to half staff as token of respect. Aorangi and Awatea had a grand time of it racing each other to Sydney, the latter from Wellington:
Racing at full speed to the Heads this morning, the Union liner Awatea entered the Harbor more than two hours later than the Aorangi, but berthed before her.
The Aorangi entered the Heads at 5.10 a.m, and anchored for medical Inspection.
Before 7 a.m. the Awatea was sighted coming on at full speed. She had left Wellington 17 hours after the Aorangi had sailed from Auckland.
The Awatea came level with the Aorangi when the latter was getting under way again.
The trans-Tasman "greyhound" drew away and was four lengths ahead when she entered the straight at Bradley's Head. Captain Davey brought his vessel alongside at Circular Quay at 7.45 and the Aorangi moved round to Darling Harbor, berthing about half later.
The Sun, 10 February 1939.
![]() |
| Aorangi off North Head, Sydney, 1939. Credit: Samuel J. Hood photograph, Australian National Maritime Museum. |
Aorangi docked at Sydney the morning of 10 February 1939 and was off again north at 4:00 p.m. on the 16th but not until a faulty crankshaft in one of her engines was repaired just in time: "It was a bigger job than we had expected. All four engines are now working, and the vessel's running tome will not be affected. A further overhaul will be made when the Aorangi returns to Sydney," Union S.S. Superintendent Engineer W. W. Spargo told the Daily Telegraph.
When Aorangi arrived at Auckland on 20 February 1939 at 7:20 a.m., she ended another fast and fair weather Tasman crossing: "Captain T. V. Hill said the Aorangi has been extremely lucky lately and has not had a bad trip for a long time. Even when we go north we seem to just miss the rough weather. A good run in to Auckland made us a little early," (Auckland Star 20 February 1939). After landing 354 passengers there, she sailed north at 11:00 a.m. the following morning after embarking 200 more. "Because of shortage of time it was not possible to replace at Sydney a damaged half crankshaft with a spare part, with the consequence that it has been necessary to cut out three of the 24 cylinders on the main engine, this did not prevent the liner arriving at Auckland on schedule time on Monday morning, but it is anticipated that the Aorangi's speed on the long run to Vancouver may average about a knot less than usual. She is expected to reach Vancouver on her scheduled date, March 10." (New Zealand Herald, 22 February 1939).
Making Honolulu at 9:00 a.m. on 3 March 1939, with 212 through passengers and 66 for the port (22 of whom transferred to the Matsonia for the U.S. mainland), Aorangi resumed passage at 4:00 p.m. It proved a rough voyage to the mainland and Aorangi she did not reach William Head until 9:30 a.m. on the 10th, four hours later than expected. Coming in with 300 passengers, 38 landed there before she proceeded to Vancouver at 11:00 a.m., arriving at 5:00 p.m.
There were only 185 takers for Aorangi's 15 March 1939 sailing for the Antipodes from Vancouver and Victoria, clearing the latter port at 6:30 p.m.. She reached Honolulu at daylight on the 22nd with 39 disembarking there and continued south at 2:00 p.m. Aorangi arrived at Auckland at 1:45 p.m. before 2:00 p.m. on 3 April, late owing to weather and her slightly diminished speed where she landed 96 passenger. On account of the late arrival, special arrangements were laid on to permit the transfer of the Governor of Fiji, Sir Harry Luke, who boarded at Suva, to catch Awatea's evening sailing from Wellington. A launch met the liner off North Head and conveyed the Government and party to shore where a waiting car took them to Mangere aerodrome to board a flight to Wellington to catch Awatea's 10:00 p.m. departure for Sydney.
The Third of April 1939 proved a memorable one for the Port Of Auckland witnessing as it did the maiden arrival of the magnificent Shaw Savill liner Dominion Monarch as well as the arrival of the Matson-Oceanic Mariposa with Aorangi, plus Rangitata completed a meeting of New Zealand's finest liners, aggregating 85,000 tons of southern ocean splendour. Aorangi sailed for Sydney at 6:30 p.m. on the 4th where she arrived the morning of the 8th. She brought in no fewer than three stowaways who got on at Auckland and one of whom had his mother pay his fare when he discovered in mid passage.
Aorangi left Sydney at 4:00 p.m. on 13 April 1939 with 559 passengers, including Lord and Lady Runciman and former London Mayor Sir Harry Twyford and a party of Canadian prairie Indians from Alberta returning from participating in a Sydney wild west horsemanship show having gone out in Niagara in February. Whilst and while the Tasman trip "was marked by exceptionally fine weather and calm seas," heavy fog greeted her on arrival off Rangitoto Beacon the morning of the 17th and she was obliged to anchor to let it clear before proceeding to her berth around 10:45 a.m. to land 295; the inbound Monterey and Mahana were similarly detained. Aorangi sailed from Auckland at 11:00 a.m. on the 18th. She had 350 passengers to her credit on arrival at Honolulu at 3:30 p.m. on the 28th, landing 60 there and making quick work of that, was on her way north at 9:30 p.m..
Dominion-bound with the heaviest list for Victoria and Vancouver "since the palmy days of 1930" Aorangi had aboard 494 passengers, 411 landing at Vancouver. She came off William Head at 11:30 a.m., docking at Victoria at 1:30 p.m. on 5 May. Aorangi was still having engine troubles it seemed and had to be assisted to no. 2 dock by Salvage King when her port engine could not bring her around to berthing position. She left at 3:00 p.m. for Vancouver.
![]() |
| Aorangi on departure from Vancouver, photographed from the new Lion's Gate Bridge. Credit: State Library of South Australia. |
Again late waiting for English mails to arrive overland, it was announced on 8 May 1939 that Aorangi's departure for the Antipodes on the 10th would be set back from 10:00 a.m. to midnight and from Victoria at 9:00 a.m. She went out with 162 passengers.
Bound for the South Seas on a three weeks' voyage which will terminate at Sydney, Ms. Aorangi of the Canadian-Australasian Line, with Capt. T. V. Hill on the bridge, sailed from the ocean piers this morning with 200 passengers, her mail rooms full and her cargo holds carrying freight of all description.
The big green, red-funneled liner was behind time, having been delayed in Vancouver yesterday for mails from the British Isles. She backed away from her local dock on a perfect May morning and despite the hour many of her passengers were basking in the sunshine in steamer chairs.
Times Colonist, 11 May 1939.
Several hours late, Aorangi called at Honolulu at 1:30-6:30 p.m. on 17 May 1939, landing 42 passengers. Meeting with rough weather and head winds on the run down from Suva and although due at Auckland at 2:00 p.m. on the 29th, she did not come in until 7:00 p.m., disembarking 80 passengers. Five passengers aboard (destined for Sydney), four children and an adult, were in the ship's hospital with measels, in isolation, and recovering so the ship was granted practique and allowed to berth. Departing for Sydney the next day at noon, Aorangi docked the morning of 3 June. Arriving Chinese movie star Anna May Wong, the Vienna Boys' Choir and Olympic swimming champion Babe Didriksen Zaharias, kept the society pages busy for a day or two following her arrival and featured in that week's "Cinesound Review" newsreel.
Out of service and out of the limelight, Aorangi would remain in Sydney for two months missing a round voyage for survey and overhaul including the replacement of the damaged half of a crankshaft. Her round voyage that would be taken instead by Monowai which had just relieved Niagara for her own refit.
There was one more attempt to revive, at least in newsprint, the long muted replacement of Aorangi and Niagara with two new, 25,000-ton, 750-passenger turbine steamers. Upon his return from England and passing through Sydney, Union S.S. Managing Director on 26 June 1939 said "We still have the scheme for the construction of new liners well before us. The announcement will come from overseas concerning the new vessels." The Sun added, "Colonel Falla explained he was making a rush visit, and it was believed at the time that as the liners would be built in Britain his visit was connected with tenders and construction." It was also added, "Canada was blamed for the delay in reaching agreement at a time when both liners could have built for 2,500,000 sterling. Soon afterwards, because of rearmament demands, prices rose so steeply that each ship might have cost that amount."
When Monowai docked at Auckland from Vancouver on 27 June 1939 on her voyage relieving the refitting Aorangi, J.N. Greenland, general manager of Union S.S., told the Sydney Morning Herald, "It is hope there will not be any long delay in beginning construction. The vessels will have a speed of 22 knots and will carry 750 passengers. The liners will include the latest improvements in shipbuilding design and interior finish. The delay of a year which has already occurred, has been chiefly due to the high cost of shipbuilding, but lately the position has somewhat improved. It will take about 20 months to complete each ship, but it is not known yet whether both be built at the same time. No estimate has yet been made about the effect of air transport across the Pacific, but it is certain that a large demand will continue for accommodation on well-appointed liners."
On 23 July 1939 Union S.S. announced in Auckland that construction of the proposed liners would have to be again postponed; "inquiries made from shipowners showed no reduction was obtainable yet in earlier quotations for the construction of the liners. Moreover, the principal shipbuilding yards were fully occupied." A lead editorial in the Sydney Morning Herald stated: "The decision to take no action for the present will be widely deplored… it was understood that the Canadian-Australasian Line would be assisted to proceed with the modernisation of its Pacific service. But nothing has been, and nothing, apparently, is to be done, until shipbuilding costs decline-- though of that there seems to be no early prospect. Meanwhile, the cream of the traffic is to lost to the British flag, and the rehabilitation of an important section of the mercantile marine is indefinitely delayed."
Then, on 29 July 1939 The Sun reported that "negotiations are proceeding to replace the old liner Niagara with Canadian Pacific liner Duchess of York (20,000 tons) or one of the four Duchesses. With this liner altered to fit the Pacific trade, it is expected that she will maintain the Canadian-Australasian service in conjunction with the Aorangi until building costs drop and two new liners can be constructed."
Meanwhile, Aorangi's refit was proceeding apace and nearing its end, she was drydocked at Cockatoo on 24 July 1939 for shaft and propeller work and underwater hull cleaning and painting. She returned to no. 5, Darling Harbour on the 27th to load for Canada.
Gleaming as ships only do right out of drydock, Aorangi returned to service upon her sailing at 8:00 p.m. on 2 August 1939 from Sydney. She went out four hours late due to heavy rains delaying her cargo loading. Thing did not improve across the Tasman where strong head winds were encountered and she did not get into Auckland until late afternoon on the 8th at 5:30 pm., instead of that morning, landing 210 passengers at Prince's Wharf. On the crossing over, a 14-year-old girl stowaway was discovered. Aorangi's departure was put back to 5:00 pm. and in the event, she did not sail until 8:00 p.m., having embarked another 170 for the voyage north. She had 280 through passengers and 26 to land on arrival at Honolulu on the 18th at 11:30 a.m.
After embarking 245, including 15 navy wives, Aorangi left Honolulu on 18 August 1939 at 6:00 p.m. two hours later than scheduled. There was no end to the delays on this tardy transit and fog off the Straits of Juan de Fuca and then head winds off Cape Flattery further detained Aorangi's final approach and expected off William Head at 5:00 p.m. on the 24th, she did not arrive until 8:00 p.m. "Bringing one of the largest passenger lists she has ever carried," Aorangi had 120 passengers alone landing at Victoria. In all, she arrived with 549 aboard, the best list in nine years She finally arrived at Vancouver at 2:30 pm. on the 25th, 12 hours late.
Aorangi had some 600 passengers booked for her next southbound sailing, 30 August 1939 and a heavy cargo including 1,000 tons of potatoes from British Columbia to alleviate a shortage in New Zealand.
By then, war with Germany was imminent and events moved with extraordinary speed. Whilst she was loading at Vancouver, the British Admiralty in London put all British registered merchantmen, all over the world, under its direct control on 28 August 1939.
Meanwhile, it was business as usual and it was booming. When Aorangi headed south on 30 August 1939 from Vancouver's pier B-C at 10:00 a.m. and Victoria at 5:00 p.m., she had over 600 passengers, including 26 members of the Beta Sigma Phi Ramble from Washington and Oregon, bound for Honolulu.
Like so many liners which set off on their peaceful and lawful occasions in late August 1939, and had not reached their destinations by the time war broke out on 1 September, Aorangi was midway between Victoria and Honolulu when Britain declared war on Germany on the 3rd. She arrived at Honolulu on 4:00 p.m. on the 5th and alongside Pier 8 an hour later, arriving with 433 through passengers and 142 landing there.
'It was no fun,' chorused both American and British passengers, who arrived Tuesday afternoon on the Aorangi after a nerve wracking run from Vancouver under wartime conditions.
Honolulu Star-Bulletin, 6 September 1939.
Aorangi's arrival in Honolulu brought the war home to Hawaii and the local papers filled with reports and accounts of the first wartime arrival in the port and after the news of the torpedoing, without warning, of the Donaldson liner Athenia off the Irish coast the day war was declared.
As it was, Aorangi put on all speed on the trip down, arriving 14 hours ahead of schedule and Capt. T.V. Hill took the ship off her usual course, extinguished her running lights. prepared the lifeboats for immediate use with covers removed, forbade smoking on deck and painted the portholes black. Wireless communication was kept to a bare minimum. On approach to Honolulu, the ship made its landfall between Maui and Molokai instead of off Oahu and followed the windward coast of Molokai and past Makapuu point to reach port.
America may have been neutral but wartime restrictions immediately came into effect with her arrival with sailing times "secret" and departure times not published in advance and no visitors allowed. Passengers continuing south (a few cancelled their passages and opted to return home) were told to be aboard the ship by 11:00 a.m. on the 6th but no exact sailing time given. She sailed at noon after embarking 26 more passengers and was reported to be taking a "secretive, zigzag voyage" to avoid "four elusive German steamers somewhere in the North Pacific" which were Weser, Odenwald, Vancouver and Tacoma which had sailed from U.S. Pacific coast ports just before war broke out.
The Aorangi, along with other British liners, is maintaining a 24 hours' radio watch and the German vessels have been overheard talking with each other.
The Aorangi. which got under way at noon today for the Antipodes, is unarmed, but when she reaches either Auckland or Sydney guns will be mounted on her stern for defense against raiders.
The Aorangi steaming under orders from the British admiralty. She is not allowed to transmit radio messages except under exceptional circumstances and then she does in secret code and at times specified in the confidential orders which Capt. Hill of the Aorangi opened on the high seas.
This precautionary radio secrecy is so intense that the Aorangi's running mate, the liner Niagara, which is en route to Honolulu from Sydney, has so far refused to reply to the Aorangi's signals.
The Niagara, it is known, is steaming a zigzag course and under wartime blackout conditions such as the Aorangi used coming from Vancouver and will continue using to Australia.
The Niagara has a gun emplacement over the stern and Aorangi officers surmise that she is armed. The Aorangi has no emplacements but these will be installed quickly at Auckland or Sydney.
Honolulu Star-Bulletin, 6 September 1939.
The torrent of newspaper reporting on Aorangi's voyage and indeed her future movements was unique to Honolulu as an almost total news blackout was immediately in effect for Canada, New Zealand and Australia, the latter two Dominions declaring war on 3 September and Canada following on the 10th. So it was that Aorangi's future movements "for the duration" documented only her logs and "news" surrounding them limited almost entirely during her calls at Honolulu.
Proceeding south, Aorangi called at Suva (14-15 September 1939), Auckland (18-19) and arrived at Sydney on the 23rd. The Honolulu Star Bulletin of 3 October reported on her southbound voyage:
If British naval precautions mean anything, enemy raiders will have a lean time in the Pacific during this war.
The transpacific liner Aorangi, southward bound from Honolulu (she left here September 6), was hailed one night near Suva. The Aorangi, of course, was blacked out and so was the ship that hailed her.
Capt. "Mickey" Hill, of the Aorangi, fearing an enemy raider, clapped on full speed. The other ship gave chase and circled the Aorangi twice, ordering her to stop.
The Aorangi stopped and, as an indication of the fright given everybody aboard her, all the lifeboats were readied and manned. The crew and passengers assembled with lifebelts. Then the "raider" moved in.
She turned out to be the camouflaged New Zealand cruiser Achilles!
The northbound Aorangi, now painted grey and still unarmed, left Sydney on 28 September 1939 and stopped at Auckland (3 October), Suva (6) and arrived at Honolulu on the 13th, coming at 1:25 p.m. and landing three passengers of the only 26 aboard.
![]() |
| Credit: Honolulu Star-Advertiser, 14 October 1939. |
The Aorangi, Canadian-Australasian liner, was a ghost ship when she came into port yesterday. Dressed in a coat of deep bluish-grey, but without the expected mounted guns, she brought only three passengers from the Antipodes to Honolulu, and her total list amounted only to 26. Those disembarking were Ruben H. Wright, American wrestler who has been touring Australia, his wife, and Miss Elena Kunstadt, attractive young Austrian girl. The latter left the ship a last-moment decision because she did not wish to continue on to Vancouver, Canadian territory. She expects to sail for San Francisco next Friday on the Lurline.
Honolulu Star-Advertiser, 14 October 1939.
Aorangi embarked another 16 passengers before departing Honolulu the evening of the 14th and arrived at Vancouver on 20 October 1939.
On her first full wartime southbound voyage, Aorangi cleared Vancouver on 26 October 1939 with 395 passengers (of whom only 35 were American) and reached Honolulu at 6:00 p.m. on 2 November, landing 39 passengers and after embarking 19, proceeded southwards just before midnight. She carried an exceptionally heavy cargo with large consignments of lumber, canned food and other goods for the British garrison at Suva. One of her through passengers, Donald Hope Balmain, 25, of Sydney, was a survivor of the Athenia sinking. Aorangi called at Suva on the 10th, Auckland (13-15) and arrived at Sydney on the 18th.
![]() |
| Credit: Honolulu Star-Bulletin, 8 December 1939. |
Northbound, Aorangi sailed from Sydney on 23 November 1939, stopping en route at Auckland (27-28), Suva (1 December) and came into Honolulu on the 8th, docking at Pier 7 at 8:45 a.m., to land 10 passengers there and had 35 through fares aboard to which she added an equal number before before departing that afternoon for Vancouver. Among her passengers were five petty officers of the Royal Australian Navy, gunnery and torpedo specialists, travelling under "sealed orders" to Canada. She transhipped quite a bit of cargo to the supply ship Dickenson for delivery to Fanning Island including Christmas food, gifts and parcels for the lonely South Pacific cable relay station. Aorangi arrived at Vancouver on the 14th.
Christmas on a British vessel at sea in wartime, combined with a North Pacific gale, might not be considered inducive to the proper holiday festivities, but passengers arriving from Vancouver aboard the ship testified that they had had one of the merriest Yuletides, under the circumstances, that they had ever enjoyed.
The Aorangi was gay with the usual Christmas decorations, and a huge British Columbian pine tree spread tinselled branches all over the big dining room. There was plenty of fun and frolic aboard, passengers said, on Christmas Eve and Christmas Day, with goose, pudding and fixings. The bar stewards were kept busy, one of the crew played Santa Claus (only the Aussies call him Father Christmas), and there were special dinners in cabin and crew messes.
Honolulu Star-Advertiser, 28 December 1939.
Keeping to her original timetable, Aorangi cleared Vancouver for the Antipodes on 20 December 1939. The 96 through passengers and the 81 for Honolulu spent a stormy Christmas Day at sea and Aorangi reached Honolulu at 7:30 a.m. on the 27th, later than expected owing to the rough weather, and resumed passage south that afternoon. It was reported during her call there that Capt. T.V. Hill had married a Canadian in Vancouver the previous month (his first wife had passed away in Australia in 1938), but the skipper, suffering from influenza during the stopover, was unavailable for comment.
When World War II started, Aorangi, apart from a little engine-room trouble, was doing very well indeed. She was a proud old lady. But she went to war bravely. She steamed about a half-a-million miles on war service in every ocean. Mostly she was trooping. During the Normandy invasion Aorangi served as a casualty clearing station, and later as a submarine depot ship. At war's end she was in Hong Kong.
The Daily Telegraph, 13 June 1953.
There was never a "phony war" war at sea and the world war proved to just that first at sea. Even "faraway" New Zealand and Union S.S. Co. would be soon tested in the conflict although initially for Canadian-Australasian it was "business as usual" with both Aorangi and Niagara plying their peacetime route, their passenger mix changed to include the first drafts of Anzac air recruits bound for training in Canada as well as New Zealand troops to garrison the Fiji Islands.
"Normalcy" ended on 19 June 1940 when Niagara struck a mine in New Zealand waters laid by the German raider Orion and sank, although with no loss of life. Aorangi carried on but by 1941 assumed the more characteristic wartime role of transport and then more unusual assignments including being the "mother ship" for the fleet of tugs towing the Mulberry Harbour installation after D-Day and finally commissioned in the Royal Navy as the flagship of the Fleet Train of the Far East Squadron, at Hong Kong. Aorangi had her war and would be a survivor and indeed be the last of her breed when it was all over.
1940
![]() |
| Credit: Honolulu Star-Bulletin, 2 February 1940. |
![]() |
| A less furtive view of Aorangi's newly installed installed defensive armament. Credit Flickr, Phyllis Reeve. |
Ringing in a new and uncertain decade at sea, between Honolulu and Suva where she called on 4 January 1940, Aorangi reached Auckland on the 7th and proceeded to Sydney the next day where she arrived on the 12th. There, she was fitted with a single four-inch naval gun aft, the first of the line's ships so armed. Although initially painted all-grey at the outbreak of war, it was decided it was safer to proclaim her bona fides as a commercial passenger liner so at Sydney her full reverted to Union co. green but and most of her superstructure painted stone buff and her funnels remained grey.
Loaded with more than $10 mn. in gold bullion for deposit in Britain, Canada-bound again, Aorangi departed Sydney on 18 January 1940 and proceeded to Auckland (22-23), Suva (26) before arriving at Honolulu on 2 February. Berthing at no. 7 that morning, she landed three passengers (of the only 32 aboard) and 35 tons of cargo before resuming passage north at 12:30 p.m., embarking two for the mainland. Prior to the ship's arrival, a notice was circulated to the crew to "be guarded in any statements made when ashore regarding ship's course, speed, cargo, sailing or arrival dates." Aorangi reached Vancouver on the 8th.
![]() |
| Credit: Honolulu Star-Bulletin, 20 February 1940. |
Sailing from Vancouver on 14 February 1940, Aorangi reached Honolulu at 7:30 a.m. on the 21st after enduring one of the worst storms to date in the ship's career. "Seas were so rough, crew members said, that 40 New Zealand seamen travelling third class, were seasick," (Honolulu Star-Bulletin) and "tremendous seas flooded some compartments of the ship." As she was carrying military personnel, customs officials declared her a "ship of war" as defined by the American neutrality act and a $10,000 bond posted. Aorangi came in with 122 through and 38 landing passengers as well as 258 tons of cargo for the port. She sailed for the south at 12:30 p.m. after embarking 10 passengers. After calling at Suva (28) and Auckland (3-4 March), Aorangi arrived at Sydney on the 8th.
Aorangi left Sydney for Canada on 14 March 1940, calling en route at Auckland (18-19) and Suva (22) to arrive at Honolulu at daybreak on the 29th. She came in with only 70 through passengers, landing three. After embarking 30, Aorangi sailed for the mainland at noon. Once again, she transferred cargo and supplies to the cable station supply ship Dickenson for Fanning Island as well as one passenger, a cable operator. Aorangi reached Vancouver on 5 April.
When the Aorangi arrived here yesterday morning from Vancouver, she created momentary excitement at pier 7 by ramming her sharp bow into the Waikiki side, biting out a large chunk of the wharf during maneuvers to come alongside. Cause is still unknown, officials said yesterday. Repairs to the aged pier will be made immediately; officials said that if the bow had dug in a little further it would probably have cut the large oil pipes under the wharf.
Honolulu Star-Advertiser, 18 April 1940.
Off to the Antipodes again, Aorangi cleared Vancouver on 10 April and docked at Honolulu on the 17th but not before she rammed her bows into Pier 7, tearing off a 10 ft. wooden fender. After landing 18 passengers, she departed for Fiji and points south at 12:30 p.m. It was announced Aorangi would stay in Sydney a week longer to accommodate a change in Matson-Oceanic's schedules from there. Aorangi called southbound at Suva (25) and Auckland (28) and reached Sydney on 3 May.
It was announced on 23 April 1940 that owing to increased wartime censorship concerning shipping movements that Canadian Australasian would cease issuing press releases regarding the arrivals and departures of Aorangi and Niagara and only basic information released a day before arrival at Honolulu.
![]() |
| Aorangi in her green hull with stone upperworks and grey funnels at Auckland. Credit: Air Force Museum of New Zealand. |
It was not until 16 May 1940 that Aorangi departed Sydney for Canada after a 13-day turnaround there and she called at Auckland (20-21) and Suva (23-24) before coming into Honolulu on the 31st where she docked at Pier 7 at 7:30 p.m. to land 12 passengers. An exceptionally large number of passengers, some 100 in all, embarked for the trip to the mainland, commencing at 12:30 p.m. Aorangi reached Vancouver on 7 June.
The fall of the Low Countries and France left Britain and the Empire largely alone in the war against Germany, spurring a greater commitment by the Dominions to the war effort. Australian Prime Minister Menzies' "Now Or Never" call to arms put another 100,000 Australians in uniform and another 80,000 enlisted for for air training. The new scheme would see most sent to Canada for flight school training under Australian Air Vice Marshal S.J. Goble and many of the initial recruits were to travel to Canada by Aorangi and Niagara.
Leavng Vancouver on 12 June 1940, Aorangi came into Honolulu on the 19th with 91 through passengers and 84 to land there with another 6 embarking. The day before Capt. T.V. Hill had received a wireless from the Honolulu office advising him of the sinking of his old command, Niagara, by a mine off the New Zealand coast, fortunately without loss of life. As for Aorangi, she made the voyage down in total black out and no crew permitted ashore during her call. She proceeded south that afternoon and calling at Suva (27) and Auckland (1-3 July), arrived at Sydney on the 7th.
![]() |
| Credit: Honolulu Star-Advertiser, 29 July 1940. |
Aorangi departed Sydney on 12 July 1940 and called at Auckland on the 16-17th and Suva on the 21st-22nd before arriving at Honolulu late afternoon on the 29th. She landed 14 there. Among her 18 First and 80 Cabin Class passengers through to Canada, were more than a score who been survivors of the Niagara sinking as well as 40 of her former crew. After embarking 80 for the mainland, Aorangi sailed that evening at 11:30 p.m. and arrived at Vancouver on 4 August.
![]() |
| Credit: Honolulu Star-Bulletin, 21 August 1940. |
An account of her voyage from Honolulu to Vancouver by Ashley J. Cooper, who worked for the printing department of the Star-Bulletin, was published in that newspaper on 21 August 1940:
SS Aorangi. Somewhere a the Pacific. July 30. 1940. Editor The Star-Bulletin,
Sir: Very few of the passengers were up see the Aorangi slip silently out of Honolulu harbor. Those few who were on hand were well paid for their sleepless night. Some were enthused, some wept.
The steamer was not crowded by any means; in fact, several of us had cabins to ourselves and we noticed empty cabins closed.
We Honolulu passengers were put through a lifeboat drill in a very efficient way. The officer explained the drill as a war measure and was very emphatic in his instructions. About 26 of the crew members were on the ill fated Niagara when the vessel went down; also, some 12 or 14 passengers told of their struggle in the water till rescued. They said so many people rushed up with suitcases and gave them to the boat crew who in turn dumped all baggage overboard.
There is little drinking on this trip. We are sailing blackout, not even a cigar or cigarette being allowed. They serve Australian watermelon, paler red, white seeds and the flavor is poor. The Australian roast lamb makes up in flavor what the melon lacks.
The second day out at about 4 p. m. the whistle blew three times and the boat came to a stop. A man had jumped overboard. Passengers ran to the rail. Some thought a sub was sighted. Everybody was ordered in their places in the dining room here a check was made of the passengers, to ascertain who was missing.
It was learned that a man in third class was absent. He was one of the Niagara passengers who had lost everything but his life when the vessel went down.
Some donned their lifebelts. Several hours elapsed before order was restored. Some people laughed out of fear, with faces pasty white. On the lower decks the iron flood doors were shut and bolted. Some of the more jittery passengers slept on deck or played cards in the smoking room all night.
The ship made four complete circles and shot out several lifebelts, but to no avail as the drowning man made no effort to save himself. After several hours of endeavor the boat continued on its way to Canada. Rumors were current that a sub was following us. Whispering tales were as many as in a Honolulu election. Many went to bed dinner-less.
As the Battle of Britain raged, Britain's imperial overseas commerce continued and with it the maintenance, now singlehanded (until Awatea was put on the route replacing Niagara), by Aorangi of C-A's share of The All Red Route.
![]() |
| Credit: Honolulu Star-Bulletin, 14 August 1940. |
The Canadian-Australasian liner Aorangi, already more than 11 months technically at war and gun-guarded survivor of the line since the Niagara fell foul of a mine, carried a typical list, aboard for these tense days: Australians going home, Polish and Czech refugees seeking a haven 'down under' and far, from Hitler, and some 30 English and Scottish children being taken to sanctuary in the Antipodes. All were refugees from the Blitzkrieg: the Poles and Czechs had originally, sought safety in England and, rather than enter internment camps last June with other aliens, had been permitted to go to Canada; from there they now flee to friends in Australia.
Honolulu Star-Advertiser, 15 August 1940.
Aorangi sailed from Vancouver for the Antipodes on 8 August 1940 and came into Honolulu on the morning of the 16th with 115 landing passengers and 250 tons for the port. She arrived with President Coolidge, outbound for the Orient, and Matsonia inbound from San Francisco. Among Aorangi's through passengers was a party of 28 English children aged 8-13, being evacuated to the Fairbridge Farm School in Molong, NSW, and came from "destitute circumstances." Aorangi continued passage south that afternoon. Aorangi proceeded to Suva (22 August 1940), Auckland (25-27) and arrived at Sydney on the 31st.
Taking the month of September 1940 "off" (for drydocking and refitting), Aorangi was replaced, as announced on 5 September, by Awatea making her first voyage on the Vancouver service.
The Canadian Australasian liner Aorangi carried a group of soldiers when she arrived from the Antipodes late Friday afternoon with 110 air fighters from Australia and New Zealand. Khaki clad young men in shorts swung their legs over the ship's rail when she docked at Pier 7. They were eager to go ashore but did not do so because they would have been interned.
The soldiers second British contingent to pass through here continued with the ship this morning to Canada. One of the Australians, who outnumbered the New Zealanders, said they had completed two months of ground instruction and two months of actual flying. In Canada they will finish their training before going to England.
The Australians are from the same school as those who went through on the Awatea a month ago. These were the first New Zealanders to go to Canada, the first group being all Aussies. About 40 of the men are pilots, the rest gunners. Their, ages range from 18 upward to about 30.
All seemed cheerful and in good physical condition. There were only a handful of civilian passengers on board and no landing passengers for Honolulu.
Honolulu Star-Bulletin, 19 October 1940.
Slipping into port 12 hours earlier than expected in a dash to Canada with Anzac fliers and air corps trainees, the veteran Canadian-Australasian liner Aorangi flocked here at twilight yesterday, resembling a troopship more than a passenger, vessel. Swarming at the rails were more than 200 Australians and New Zealanders, most of them in their early twenties, and clad in regulation shorts and broad-brimmed campaign hats. The 20-odd civilian passengers were lost in the mass of khaki.
Honolulu Star-Advertiser, 19 October 1940.
Aorangi resumed the C-A service upon her departure from Sydney on 3 October 1940, numbering her passengers conductor Sir Thomas Beecham and the another contingent (Awatea taking out the first) of 110 young Australian and New Zealand pilots and air gunners bound for training in Canada before being posted to England. Aorangi also embarked at Auckland (7-8th), additional RNZAF trainees as well as the first group of New Zealand Army troops to garrison Fiji and landed at Suva on the 12th. Arriving at Honolulu at twilight of the 18th, 12 hours earlier than anticipated ("blown into port by a tail wind" according to Capt. T.V Hill), with no passengers landing there and departed for Vancouver the following morning, embarking 40 for the mainland, where she arrived on the 25th.
Departing Vancouver on 30 October 1940, Aorangi docked at Honolulu on the morning of 6 November to land 53 passengers and resuming passage that afternoon, bound for Suva (14), Auckland (17-20) and Sydney where she arrived on the 22nd.
![]() |
| Credit: Honolulu Star Bulletin, 17 December 1940. |
Vancouver-bound, Aorangi cleared Sydney on 30 November 1940, after stopping at Auckland (3-6 December) and Suva (9), she made Honolulu on the 16th, docking at Pier 8 at 8:00 a.m. The Honolulu Star-Bulletin reported on her voyage up amid fears of a German raider still loose in the South Pacific:
Precautions against a possible raider in the South Pacific are described by persons aboard the Canadian-Australasian liner Aorangi, which was in Honolulu Monday en route to Vancouver.
According to reports brought on the Aorangi, a German raider late in November sank two steamers in south Pacific waters, the Orari and the Rangitane.
As a safeguard against possible attack, they said the Aorangi was escorted from Sydney to Auckland by the Australian cruiser Adelaide. It was also said that 24 hours from Auckland the Aorangi was met by HMS Achilles, a New Zealand ware ship which figured in the successful battle of British war vessels against the Graf von Spee.
Informants added that from Auckland to Suva, Fiji, the Aorangi was escorted by auxiliary cruiser Monowai. Nearing Fiji the Aorangi and Monowai sighted an airplane, which might have been from raider. The Monowai noted the course the airplane took in retiring and made an unsuccessful attempt to locate the supposed raider.
Emergency precautions were taken aboard the Aorangi. Lifelines were draped over the sides and the lifeboats were kept readied. Anzac airmen aboard aided the crew in maintaining 24 hour observation watches.
All persons were barred from the boat deck after sunset.
After leaving Suva for Honolulu, according to the reports, the Aorangi took a zigzag course.
Honolulu Star-Bulletin, 17 December 1940.
For the first time in her career, Aorangi's officers and crew got to spend Christmas in port, arriving at Vancouver on 23 December 1940. After a four-day turnaround, they were again heading south on the 27th and Aorangi starting her third year "at war" yet still plying her commercial route.. for now.
1941
![]() |
| Credit: Honolulu Star-Bulletin, 7 January 1941. |
Honolulu welcomed Aorangi on the second day of the New Year at 5:30 pm. And she left seven minutes past midnight. There was no news as to her carryings or passengers but on the 7th, the Honolulu Star Bulletin quoted a report that Aorangi and Awatea were both to be removed from service. Awatea was to be converted into an armed merchant cruiser and it was rumoured that Aorangi, after one more trip to the Antipodes, would be used as a hospital ship and "will be used evacuating Anzac casualties from the Near East, where a major offensive is planned by Britain." The reports were discounted by C-A's Honolulu agents and, of course, not mentioned in the Allied press. In the event, Awatea was "called up" but in the meantime, Aorangi remained in service… alone and under soon changed circumstances.
Aorangi after departing Honolulu on 3 January 1941, called at Suva on the 11th, Auckland (14-15) and arrived at Sydney on the 23rd.
Northbound, Aorangi cleared Sydney on 27 January 1941 to call at Auckland (30 January-1 February), Suva (1-2) and she came into Honolulu… not. Although expected to call as usual on the 11th, she in fact did not and would not in future. On 3 February it was announced in Honolulu that no bookings would be taken from the port on this voyage and the 27 inquiries for space refused. The local agent told the Honolulu Star-Bulletin that "he interprets the information as meaning the vessel is loaded to capacity with fliers from Australia and New Zealand." On the 10th it was reported Aorangi had been taken over by the British Government "three weeks ago" and would no longer call at Honolulu. Aorangi arrived at Vancouver on the 16th. On the 26th, it was confirmed she would not be calling there on her southbound trip.
Thus ended Aorangi's overtly commercial career although she continued to carry fare paying passengers as well as increasing numbers of Anzac flier recruits on her regular route.
![]() |
| Australian air gunners aboard Aorangi en route to Canada as part of the Empire Air Training Scheme, c. April 1941. Credit: Australian War Memorial. |
With the total news blackout of her ensuing voyages, her logs provide the basic tabular data of her ensuing comings and goings:
Vancouver sail 20 February 1941
Suva call 6 March
Auckland call 10-11 March
Sydney arrive 15 March
Sydney sail 21 March 1941
Auckland call 27-30 March
Suva call 30 March
Vancouver arrive 17 April
Vancouver sail 21 April
Suva call 4-5 May
Auckland call 8-10 May
Sydney arr n/a
Sydney sail 20 May 1941
Auckland call 24-26 May
Suva call 30 May
Vancouver arrive 13 June
Vancouver sail 17 June
Suva call 1 July
Auckland call 4-6 July
Sydney arrive 9 July
Aorangi's arrival at Sydney on 9 July 1941 marked the end of her service on her regular route as a passenger liner. Requisitioned by the Ministry of War Transport as a "Defensively Equipped Merchant Ship," Aorangi's existing 4.7" naval gun aft was augmented by a 3" high angle gun and a pair of Oerlikon 20 mm "pom-poms" with a double emplacement of Oerlikons in tubs amidships and another set in the forecastle.
On subsequent voyages as a transport she carried reinforcements to Singapore, evacuee women and children from Singapore to Australia, and Allied troops between the United Kingdom and the Middle East, India and the Mediterranean; also between Canada and the United States ports and the United Kingdom. The time which elapsed between some of these voyages was up to six months and it is indeed a compliment to the skill and initiative of the Company's engineer officers on board that they were completed without serious delay at the time when repairs and overhauls were impossible to obtain at the ports of call or at the United Kingdom base where the turn-round was limited to a few days.
Daily Commercial News, 4 August 1948.
On 5 September 1941 H.M.T. Aorangi left Sydney for Britain, via Panama and showing her long range, stopped just once at Balboa (27 September-3 October) before reaching Halifax on 3 October. She left there on the 9th as part of Convoy TC.14, carrying 2,126 Canadian troops to make her first trans-Atlantic crossing since her delivery voyage, arriving on the Clyde on the 17th, thus returning to the river of her berth as well.
With 2,194 troops aboard, Aorangi's first Winston Special convoy, WS-12Z, was destined for Suez via the Cape, departing Greenock on 12 November 1941, calling at Freetown on 25-28th and arriving at Durban on 18 December. By then of course, Japan had attacked Pearl Harbor, the Philippines and Malaya and the whole character of the war changed as did the duties and deployments of ships engaged in it. Aorangi and the P&O's Narkunda were immediately dispatched to Singapore with 3,848 men to reinforce the garrison there.
1942
Stopping for an unknown reason at Addu (Maldives) on 4-5th January 1942, Aorangi arrived at Singapore on the 13th with Convoy WS.12 carrying a brigade of the 18th Division and a desperately needed consignment of Hawker Hurricane fighter planes on the eve of the Battle of Singapore itself. With civilian evacuees aboard, Aorangi left Singapore on the 16th, and proceeding independently, arrived at Sydney on the 19th. She proceeded to Fremantle, arriving there on the 25th and made the rounds of Australian ports (Adelaide 29-30) and Melbourne (1 February) returning to Sydney on the 3rd. By then, Singapore was a lost cause and it was decided to return Aorangi to U.K.-based transport duties, instead.
![]() |
| Aorangi's maiden arrival at New York on 22 June 1942. Credit: U.S. Coast Guard photograph, Mariners' Museum. |
Again showing her long-range capabilities to the full, Aorangi cleared Sydney on 14 February 1942 and sailed nonstop to Balboa, calling there 7-9 March, and arriving at Halifax on the 16th. There, she joined the eastbound convoy NA.6 departing on the 21st and reaching the Clyde on the 28th. From there, as part of convoy WS.18, she sailed on 15 April to South Africa, via Freetown (29 April-3 May) and reaching Durban on the 18th. Independently, Aorangi proceeded to Cape Town (24-30) and then trans-Atlantic to Hampton Roads, Virginia (20 June) and then to New York where she arrived on the 22nd With convoy AT.17, Aorangi was among eight transports sailing for Britain on 1 July, but with U.S.A.T. Siboney, diverted first to Halifax (3-5) before proceeding with Convvoy AT.17B to the Clyde where they arrived on the 12th.
Back to Middle East bound Winston Specials, Aorangi cleared the Clyde on 29 July 1942, with 3,090 troops aboard, with Convoy WS.21, calling at Freetown (10-15 August) and arriving at Cape Town on the 27th. She continued to Aden, arriving there on 16 September. Return voyages were made independently for ships of sufficient speed so Aorangi was on her own, departing Aden the same day for Suez (20-24), Durban (9-21 October) and then straight to the Clyde, arriving on 16 November. Aorangi was pretty much worn out by this time, earning overhaul time on the Clyde before departing for Liverpool on 10 December where she was "off duty" from arrival on the 12th until the following spring.
![]() |
| Aorangi as a transport. Credit: Australian War Memorial. |
1943
It was not until 20 April 1943 that Aorangi resumed transport duties with her departure, with convoy WS.29A, from the Clyde to Casablanca (26) and thence to Dakar (1-2 May), Freetown (4-5) and arriving at Durban on 21 May. New horizons beckoned for the ship when she departed Durban on 9 June, independently, for Mombasa, arriving there on the 15th. With convoy KR.5 she sailed the same day for Colombo where on arrival on the 27th, she proceeded with convoy MB.39 for Bombay, reached on 2 July.
Independently, Aorangi departed Bombay on 14 July 1943 for Cape Town where she arrived on 1 August. There, she joined convoy CF.13 to Point Noire and then Freetown (22-24 August) and Gibaraltar with convoy CF.13B. She reached Casablanca, on her own, on 31 August and departed for the Clyde on 1 September, arriving on the 7th.
Getting a doubtless well-needed refitting and repairs on the Clyde, Aorangi sailed on 27 October 1943 and at Liverpool joined convoy KMF.25A to Algiers, arriving on 6 November. She spent the rest of the year in the Mediterranean with short trips from Algiers to Palermo (15-16) and Oran (22) before arriving at Gibraltar on the 28th. She left there on 1 December to join convoy MKF.26 as far as the Clyde, reached on 9 December.
1944
Resuming service after a period of refit on the Clyde, Aorangi, with 1,551 troops, sailed with convoy KMF.29 on 22 February 1944 as far as Malta, arriving on 1 March and making a quick roundtrip, left there on the 5th with 3,143 troops with convoy MKF.29 back to the Mersey, arriving on the 16th.
Later the Aorangi was fitted out and stored as a mother ship for 150 tugs. Her equipment included an engine repair shop, a welding plant fitted on deck, accommodation for over 2,000 relief personnel of various ratings, and a small but efficient hospital of 120 cots with two operating theatres. Her stores included fresh water, distilled water, Diesel oil, gas oil, coal, ammunition, victualling and canteen supplies. She arrived in the Solent on the 1st May, 1941, to take over her duties and from then to the 6th July, when she was relieved, there were few days when less than five or six tugs were alongside at the same time and on some days they were three or four deep. Although she was designed to service 150 tugs, she actually had 261 tugs to look after during the operation.
Repair jobs larger than anticipated or provided for were carried out. Hospital and water ambulances serviced and attended to all casualties from ships berthed in the Solent and later from Normandy beaches. Altogether about 500 casualties were attended to and it is understood the first casualties to arrive back from the beach-heads on D-Day were accommodated and treated on board the Aorangi.
Daily Commercial News, 4 August 1948.
Aorangi then embarked on a brief but interesting career as an accommodation ship and depot ship for the enormous flotilla of 150 tugs that formed part of the large armada assembled for Operation Overlord, the landings on Normandy in June 1944. She would act as the mother ship for tugs and smaller auxiliaries serving the epic Mulberry artificial harbour installations off the Normandy coast, supplying them with provisions, fresh water, spares as well as accommodate rotating crews as well as have a hospital for medical care. For this, she was anchored in the Solent, off Lee-on-Solent, from 5 May-12 July but also stationed off Southampton. Aorangi served some 1,200 vessels and her hospital facilities used by wounded men from the invasion beaches. Aorangi was relieved in this role by Empress of Russia in mid July.
Aorangi was then assigned to the Pacific Theatre of Operation in anticipation of the invasion of Japan and for which she would be converted into a submarine depot ship and based at Trincomalee for the 4th Submarine Flotilla. For this, she would return to her builders, Fairfields, for conversion and arrived on the Clyde on 13 July 1944 and spent the rest of the year at the yard.
1945
Resuming service after a period of refit, Aorangi sailed with convoy KMF.42 from the Clyde on 31 March 1945 as far as Gibraltar (7 April) and then on her own all the way "Out East" with 433 military personnel calling at Port Said on the 13th, making her first transit of the Suez Canal (14-15) and continuing to Bombay where she arrived on the 24th. Departing there on the 29th, Aorangi sailed on to Colombo (2-3 May) and Trincomalee, reached on the 4th. By the time she got there, the rapidly changed military situation saw Aorangi dispatched, instead to Fremantle and she left Trincomalee on the 8th, V-E Day, with convoy WO.4B and docked there on the 18th. At Fremantle, Aorangi and H.M.S. Adamant, served as depot ships for the 4th Submarine Flotilla of nine T-class boats.
Aorangi spent the rest of the war in the Royal Navy's Fleet Train in the Pacific in the Admiralty Island and sailes from Fremantle on 8 June 1945 for Sydney where she remained from the 14th to 7 July. She departed on the 7th for Manus, Admiralty Islands (New Guinea) and arrived there on the 13th. There, she was additionally converted by H.M.S. Artifex (the former Cunarder Aurania) for her newly assigned role as flagship of the Fleet Train Commodore as well as Fleet Chart Depot and Fleet Medical Store Depot.
It was fitting that Aorangi's first duty would be supporting the ships sent to restore and reoccupy Hong Kong, recalling that Awatea had brought the 1,975-strong Canadian contingent composed of the Winnipeg Rifles and the Royal Rifles of Canada to reinforce the Colony on 16 November 1941 and which would so valiantly defend it barely a month later. Aorangi arrived at Hong Kong on 9 September where she would also act as tender for three submarines at Hong Kong as well as acting as transit barracks for demobbed servicemen.
![]() |
| Credit: Joseph Lebovic Gallery. |
Taking advantage of post-war dislocation of steamship lines, airlines have won the cream of the passenger traffic between the Pacific Coast and the Antipodes. When the Canadian Australasian Line MS. Aorangi resumes service this autumn she will be the only major passenger vessel in the service.
The Province, 21 June 1948.
Although in many parts of the war-ravaged world, mere survival assumed primacy in the immediate aftermath of the Second World War, among the victors an overwhelming desire "to return to normalcy" prevailed. For trade and transportation, however, a "new normal" of disrupted trade patterns and partners, the "all mighty dollar" and resulting currency devaluation and controls were more of a mitigating factor than lack of shipping or customers. Technology, specifically the remarkable advances in aviation, called into doubt the future of large, fast passenger liners on many routes.
For Canadian Pacific, the war had robbed them of two prime markets-- Japan and China. That and their embracing of long-range commercial airliner and the establishment of Canadian Pacific Airlines, resulted in them being the first completely replace ocean liners with airplanes when the North Pacific route's White Empresses were supplainted by Canadair North Stars which bore Empress names.
For Canadian-Australasian, the prospects were more favourable with a longer route not immediately favouring air travel, a still large passenger market especially with the prospect of increased immigration to Australasia and a desire to strengthen Commonwealth links after the war. Thus, it was decided to restore Aorangi to her pre-war route, singlehanded for the timebeing. Singlehanded being the operative word for Matson-Oceanic's superb Mariposa and Monterey were still engaged on trooping and austerity voyages for all of 1946 and would require far more extensive building for post-war service leaving the field wide open for C-A.
1946
Unlike many liners kept in government service long after the end of the war, Aorangi, being the last of the Canadian Australasian fleet, was quickly released and handed back to her owners. As it was, Aorangi would not resume service for some two and half years, her refit a statement more of post-war labour relations in Australia than it was about shortages or the scope of the work required for a ship far less altered in her military role than many. The British Government, too, would foot the entire and, as events, proved, considerable bill for a project that became synonomous for militant unions gone mad after the war as well as poor planning, shortages, theft, overtime padding and cost overruns.
Significantly, too, what was not returned "to normal" after the war was the payment by the Dominion Governments of any sort of subsidy towards maintaining the C-A service and this would prove a near fatal blow at the onset given the uncertainty of the cargo trade in the face of severe dollar restrictions imposed by the governments of Australia and New Zealand as well the eventual devaluation of the pound in 1949 which significantly reduced imports.
With the restoration of Hong Kong's shoreside naval installations and sufficient fleet auxiliaries on hand, Aorangi would be paid off in Spring 1946 and returned to her owners in Australia where she would undergo conversion back into a liner.
![]() |
| Aorangi shortly after her arrival at Sydney, alongside no. 5 Wharf Darling Harbor to begin her post-war refitting. Credit: State Library of South Australia. |
In late March 1946, with 108 former Allied POWs and civilian internees as passengers (who had arrived in Hong Kong aboard H.M.T. Strathmore), Aorangi sailed for Sydney where she arrived on 13 April, passing Sydney Heads at 9:54 a.m. and berthing at her once familiar No. 5 wharf, Darling Harbour.
![]() |
| Credit: The Province, 30 May 1946. |
In Wellington on 7 April 1946 Union S.S. official announced that Aorangi would be restored to the Vancouver-Antipodes service "within six months." The story was picked up in the Canadian papers by the end of May and by June the Vancouver Sun surmised that Aorangi would "is not expected to be back in… service until late this year or early in 1957." The Province reported on 23 September that she was "expected to be back on the run by next April."
Aorangi would, as she had previously, be refitted alongside her regular berth but almost from the onset, the project was plagued by labour issues and the ship hostage to militant unions of which there were no fewer than 22 involved in the project.. On 20 June 1946 work by the Amalgamated Engineering Union in overhauling her diesels and other machinery stopped over a dispute concerning the payment of extra "dirt money for working in dirty places" they had received during the war. When Union refused and the Courts refused to consider the matter, the work stopped when the 70 men walked off after giving a week's notice. Other unions "blacklisted" the ship and all work ceased on Aorangi and indeed other ships being refitted including Canberra and Westralia. On the 19th, New Zealand papers reported that "on present indications, it may be 12 months" before Aorangi would be restored to service.
The work of reconverting the Canadian-Australasian liner Aorangi, which is the biggest job of its type undertaken in Sydney since the war, is proceeding slowly and is not likely to be completed before April. Difficulties are being met in obtaining the services of skilled men, arid there are shortages of materials such as floor coverings, timber, and interior fittings.
Press, 28 August 1946.
On 17 September 1946 Union S.S. managing director, J.N. Greenland, stated that Aorangi "will be ready for service by June."
Then on 28 November 1946, 8,000 shipyard workers in Sydney and 64 yards locked out over a dispute between nine unions and Morts Docks which began on 15 October over a wage dispute with 29 crane drivers and escalated by radical communists into a complete shut down that last into the New Year.
![]() |
| Third Engineer Angus Brand, supervisor of Aorangi's machinery overhaul, 26 June 1947. Credit: Flickr. |
Meanwhile, some measure of passenger service had been resumed between North America and the Antipodes. On 3 December 1946 Matson-Oceanic announced the charter from the War Shipping Administration of the C4 transport, Marine Phoenix, to maintain an austerity passenger service from San Francisco to the Antipodes while Mariposa and Monterey were rebuilding. Beginning on the 13th from San Francisco, she continued in service (12 round voyages) until her arrival at San Francisco on 17 August 1947 ended The Oceanic Steamship Co. passenger service until the maiden voyage of Mariposa (III) on 26 October 1956.
1947
There is now little liklihood of any regular trans-Tasman passenger service operating until next year. The refit of the Monowai in Australia has been delayed by industrial disputes, and is unlikely to be completed before the end of this year, and the return of the Aorangi to its pre-war Sydney-Auckland-Vancouver run after refitting is also indefinite.
Press, 22 January 1947.
Union S.S. general manager M.B. Miller told the Press in Wellington on 12 March 1947: "The two Union Steam Ship Company vessels Aorangi and Monowai will not now finish their reconversion in Australia before the end of this year,” with Mr. G.S. Wilson, passenger traffic manager, adding: “ The ships will, be brand new as far as passenger accommodation is concerned,” said the passenger manager of the company, Mr G. S. Wilson, "Additional passenger facilities and comforts are incorporated, including improved air circulating systems. Running hot and cold water will be installed in every first and second class cabin. A high standard of workmanship is being maintained throughout the new construction, and both ships will be fitted with cabins de luxe. When completed, the Aorangi will carry 500 passengers in three classes on the Sydney, Auckland, Suva, Honolulu, Vancouver run. "
![]() |
| In between strikes, painters and fitters working aboard Aorangi, 26 June 1947. Credit: B. Rice photograph, State Library of New South Wales. |
Continuing the positive theme, the Vancouver Sun of 19 May 1947 lauded that "With all traces of her wartime trooping role removed, Aorangi will emerge as a new looking ship, fitted once more to accommodation about 500 first, second and third class passengers. Restored will be swimming pool, luxurious lounges, spacious deck facilities and other 'trimmings.'" But at the same time, adding: "Aorangi's conversion has been delayed by industrial strike and material shortages, and shipping officials thus are cautious about predicting exact date for her return to… service…. But at the latest she will be back in operation here by the beginning of next year"
![]() |
| Workers leaving Aorangi on 7 July 1947. Credit: B. Rice photograph, State Library of New South Wales. |
On 16 July 1947 Union S.S. told the Sydney Morning Herald "they had no indication when the Aorangi would be ready to re-enter the Pacific service," adding "it was stated in Sydney last night that the refitting of the Aorangi would be completed by February or March."
![]() |
| Credit: The Province, 29 November 1947. |
The Vancouver Sun of 2 August 1947 reported that Aorangi "may be ready by January for her inaugural run north." Then another walk-out by the painters union over demarcation issues occurred and not settled until late that month. On 5 November, it forecast "March or April". The Province on the 28th stated that "her first sailing from Vancouver is tentatively fixed for May"
![]() |
| Taking it easy: two "workmen" aboard Aorangi, 26 June 1947. Credit: State Library of New South Wales. |
The shortage of shipping and wharf space is desperate, yet for 18 months the Aorangi been tied up at No. 5 wharf, Darling Harbour. She's undergoing 'reconversion repairs' after her war-time trooping activities. The job was originally estimated to take 15 months, but now it looks more like two years. Shortage of skilled men and materials is the explanation.
The slug falls on the British Ministry of War Transport, which has to continue paying the ship's owners the full charter fee until repairs. are finished.
The Sydney Morning Herald, 24 October 1947.
1948
Union S.S. managing director, J.N. Greenland, on the eve of sailing from Auckland in Marine Phoenix, the ex-troop transport operated by Matson that represented the sole passenger vessel sailing from the Antipodes to North America at the time, stated on 10 January 1948 his hope that Aorangi would be commissioned in April and Monowai by June. "The actual date for the commissioning of the Aorangi would probably be known this month, said Mr. Greenland. Her schedule when she resumed the Vancouver run had not yet been arranged, and no bookings were being taken locally. There had been plenty of inquiries in Canada, however, and the names of prospective passengers were being noted at that end. He estimated that the cost of reconverting the Aorangi was now nearing £1.000,000," (Gisborne Herald, 12 January 1948).
In February 1948 another demarcation dispute stopped work on the ship for weeks which led on the 21st to a walk-out of 1,200 employees at the Cockatoo dockyards. On 11 June the date for the possible return to service of Aorangi was set back, once more, to "about July or August."
![]() |
| Credit: The Sun, 13 June 1948. |
By then, the long languishing Aorangi was a fixture in Darling Harbour and known locally as the "iron lung" for keeping upwards of 600 shipyard workers and their families alive on the never-ending job for a refit that cost considerably more… over £1.5 mn… and took four times as long as outfitting her when built. The costs were blamed on improvisation, not using a proper shipyard, material shortages, strikes, malingering and theft. Some workers pocketed £15-18 a week with overtimes.
Pilfering was rife. One worker took linoleum home to floor his kitchen and wrapped lengths of it around himself under his jacket to secret it ashore. A grand piano and an iron circular ladder from the engine room went missing. To prevent rampant theft of light bulbs, all of the light fixtures were changed to a sort that used specific bulbs not usable ashore.
Doing the work outside a proper shipyard meant that most of the equipment and materials for it as well as facilities for the workmen had to accommodated aboard. Eventually as work progressed they were displaced to the old ferry Kai Kai which was moored alongside to serve as a canteen, locker and shower rooms for 200 men at a time. Having men of different trades and different unions working side by side occasioned frequent demarcation disputes.
The design of the refitted accommodation, too, caused lengthy disputes with the steward and seafarers' union regarding improved crew accommodation. In the end, Aorangi's passenger capacity was reduced from 636 before the war (remembering it had been 947 as built) to 486 to provided the demanded better accommodation for 318 crew. During the job, 150 miles of wiring was replaced and 20,000 yards of copper piping for heating and 10,000 yards of refrigeration coils installed. Overseeing this protracted process was Union's marine supertintendent F.S. Miller.
Union S.S. could finally announce on 8 June 1948 a firm date for Aorangi's departure for Vancouver: 19 August from Sydney and from Auckland the 24th and from Vancouver on 16 September and make sailings every nine weeks. It was also revealed that the ship would be painted white, with a gold sheer line, and red boot topping, the first time one of the line's ship had been so attired since Matua (1936/4,193 grt) which was known as "The Banana Boat."
It was also announced that Aorangi would be commanded by Capt. W Whitefield, who had commanded her during part of the war. In addition to Capt. Whitefield, Aorangi's senior officers were: Chief Officer A.C. Crosbie, Second Officer E.M. Breneman, Senior Third Officer J.A. Crawford, Third Officer R.W. Mitchell, Purser G. Dickson, Deputy Purser R.J. Barlow, Surgeon C.S. Lawrence, Chief Engineer A.M. McIntyre, Second Engineer T.E. Barker, Third Engineer A.J. Steedman, Fourth Engineer A.C. Brand, Chief Steward G.H. Cooper and Chief Radio Officer C.F.G. Taylor. As refitted, Aorangi accommodated 212 First Class, 170 Cabin Class and 104 Third Class.
You know the story of the Aorangi how you for years she's been refitting in Sydney.
Well, yesterday, down there Sydney. at Darling Harbour, a bit of road work was going on.
"What's this for?" a citizen asked.
"Well," said one of the workmen, job. "it's a pretty expensive job. We're building a Wailing Wall for the dockers and painters-- the Aorangi is nearly finished."
The Sydney Morning Herald, 19 June 1948.
![]() |
| Canadian Australasian 1948 sailing list. Credit: eBay auction photo. |
The day she was drydocked at Cockatoo, it was announced on 27 July 1948 that Aorangi would run sea trials on 1 August and leave Sydney for Vancouver on the 19th.
There were labour squabbles right up to the end and The Sun of 9 August 1948 reported:
Carpenter of the Aorangi will eat in the second-class saloon when the vessel sails for Vancouver on August 19.
This agreement between Shipwrights' Union and the Union Steamship Co. was ratified by the Conciliation Commissioner, Mr. Hamilton Knight, today.
Previously, engineers had protested about the carpenter sharing their messroom, and stewards refused to service a separate messroom because it was too far from the kitchens.
Looking quite resplendent in her new pristine all white livery, complimented by a green sheer line, red boot topping and a bridge and wheelhouse now splendidly varnished instead of painted white, Aorangi pulled away from no. 5 Darling Harbour at 8:00 a.m. on 1 August 1948 for her trials, passing out the heads at 9:25 a.m. and returned at 3:40 p.m. the next day. She went to sea with 30 guests of the company and 200 men working overtime (of course!) to finish her interiors. She averaged 16.5 knots over eight hours and the trials described as being "highly satisfactory."
![]() |
| A magnificent looking Aorangi being maneuvered out of her Darling Harbour berth for her post-refit trials. Credit: Arbon Le Maistre collection, State Library of New South Wales. |
![]() |
| Aorangi in Darling Harbour departing on trials. Credit: F.R. Johnson photograph, State Library of New South Wales. |
![]() |
| Aorangi passes out of Sydney Heads on her trials. Credit: The Mariners' Museum. |
On 6 August 1948 it was reported that Aorangi was almost full booked for her first southbound voyages from Canada in September and November. On the 12th it was further mentioned she would take out the first export of Fijian bananas… 1,000 bunches and 200 cases… to Canada since the war. Such was the demand for trans-Tasman space, that it was announced on the 17th that no more bookings would be accept for Aorangi's first trip. Fares across the Tasman on the Aorangi were set at £22 10s first class, £l7 cabin class and £ll third . It was stated on the 19th that she would be "a full ship" on departure from Sydney.
Union's Vice President J.N. Greenland, on arrival at Sydney aboard Orion on 15 August 1948, stated that "a liner will be chartered as soon as possible to run on the trans-Pacific service with the Aorangi while the Canadian-Australian Line builds a new vessel." On the 19th, Greenland stated it would be three years before any new ship would join Aorangi and that "plans for these vessels were only in the negotiation stage and had not reached the stage of calling for tenders."
Of course, even Aorangi's departure from Sydney at 4:00 p.m. on 19 August 1948, with 482 passengers, occurred amid yet another strike, this time by pilots and tugboat crews. But she still got off on her own, despite bumping the berth as the pulled out with Strathnaver and Athenic also sailing that day.
Without the aid of tugs, because of the tugmasters’ and pilots’ strike, the liner Aorangi left Sydney late this afternoon on her first post-war transpacific voyage. She was dressed for the occasion, and a crowd of 4000 to 5000 gave her a rousing send-off. The liner was piloted by the deputy harbourmaster, Captain L. Simpson, who backed her out slowly and used hawsers to swing her at right angles round the end of the Darling harbour wharf. At one stage the ship’s bows scraped the end of the wharf and the police ordered the crowd back. The Aorangi cleared the wharf shortly before 5 p.m.
Press, 20 August 1948.
![]() |
| Her fresh white paint already looking a mite woebegone after a rough Tasman transit, Aorangi makes her return to Auckland. Credit: New Zealand Herald photograph, Auckland Libraries. |
With gales raging in the Tasman Sea, Aorangi's pre-war luck with the notorious passage deserted her on first post-war transit and she, like other vessels, "received severe buffetings," so much so that on the evening of the 21st, the liner radioed she would not reach Auckland until 10 a.m. on the 23rd but with conditions moderating, changed this to 8:00 a.m., not before the rough seas had already scoured some of the fresh white paint off her bows. Aorangi departed Auckland at 10:00 p.m. on the 24th.
Aorangi was afforded a tremendous welcome on arrival at Suva, on 28 August 1948:
Flags were flying, the band of the FMF were playing, the crowd was waiting, and the factory sirens were hooting when the liner Aorangi, from Sydney and Auckland, arrived at Suva at 7 a.m. on August 28.
Main attraction for the passengers was a hibicus show staged by women member of the Holy Trinity Pro-Cathedral congregation. The arrangement of the display, which included waterlilles, frangipanes, gingerettas, gerberas, crotons, etc. as well as hibicus in every variety and shade, equalled the famous Suva shows of pre-war days.
An enormous crowd farewelled the ship at 5 p.m. when she sailed for Honolulu.
For some curiously emotional reason, the return of the British Red Ensign to the Pacific service brought forth Suva's most demonstrative outburst of patriotism since the war.
Pacific Islands Monthly, September 1948.
There, she took on the first export shipment of 1,000 Fijian bananas for Canada since the war.
With new white topsides gleaming and bunting fluttering aloft, the Aorangi sailed into port this morning reconditioned after her wartime service, which began in 1940, when she landed the first contingent of New Zealand troops in Fiji. Hooters from the shore marked Auckland’s welcome to an old friend making a re-entry into the Vancouver-Sydney service. The liner sails tomorrow morning. The reconditioning has reduced the passenger accommodation from 636 to 486, allowing travellers more space and comfort. The main conversational topic was the tact that the Australian pound was worth only 15/9 here. The gale experienced by the Aorangi was not taken very seriously by the passengers, deck games having continued throughout the trip. An official luncheon was held aboard today.
Gisborne Herald, 24 August 1948.
![]() |
| Credit: Honolulu Star-Advertiser, 5 September 1948. |
Old Cloud Piercer herself-- the Canadian Australasian liner Aorangi-- looked like a piece of red, white and blue pastry when she arrived off port this morning.
Those who were lucky enough to board her after she docked at Pier 8 shortly after 7 a.m. found themselves inside an ocean liner of the past.
The 20,000 ton liner's interior appointments-- from open work steel grilled elevator shafts, to delicately fashioned, dark brown woodwork-- can best be described as elegant-- with an old world elegance associated with ladies' fan and the waltz.
Honolulu Star-Bulletin, 4 September 1948.
Honolulu Saturday morning had its first glimpse in seven years of the Canadian-Australasian liner MV Aorangi, only remaining one of several foreign flag passenger ships which used to be regular callers in this port before World War II. In her new white coat with green trim and her two familiar-orange stacks, she came alongside Pier 8 shortly after 7 a.m.
Honolulu Star-Advertiser, 5 September 1948.
Delayed in departure from Suva, Fiji, Aorangi which was to have arrived at Honolulu at 6:00 a.m. on 3 September 1948, did not come in until the following morning, docking at Pier 8. She landed 61 passengers and embarked 21 before departing for Vancouver at noon.
![]() |
| Credit: Honolulu Star-Bulletin, 3 September 1948. |
The return of Aorangi to Honolulu was afforded a full "Boat Day" Aloha, hula girls giving leis to every passenger. Aorangi was, after all, now the port's now oldest regular caller and the last survivor of that remarkable interwar fleet of trans-Pacific liners that once paraded past Diamond Head. After an absence of eight years, "The Cloud Piercer" was back and received a splendid welcome and major press coverage. This included an interview of Capt. William Whitefield by KPOA, who was last in the port some 25 years previously as Chief Officer of Wairuna.
With 495 passengers aboard and a cargo of 337 bales of wool, hides and fruit, Aorangi returned to British Columbia, arriving at Victoria at 6:00 p.m. on 10 September 1948, docking at Ogden Point docks. As soon as she was alongside, a welcoming delegation of local officials, including Mayor Percy E. George, three city Aldermen and members of the Chamber of Commerce, boarded her and presented Capt. Whitefield with a silk Canadian ensign. Aorangi departed at 11:00 p.m. for Vancouver.
Vancouver welcomed the Aorangi like an old friend this morning.
As the 17,491-ton Canadian-Australasian liner slipped into her berth at Pier B on her first visit to the port since 1941, a crowd of early-riser greeted her with a cheer.
It was a momentous arrival, for it marked resumption of luxury passenger traffic between Australia and Canada, disrupted by war seven years ago.
The gallant old Aorangi, gay with bunting, looked much as she did 23 years ago, when she arrived on her maiden voyage from the Fairfield yard in Glasgow.
The Province, 11 September 1948.
Aorangi the 'Cloud Piercer,' white-hulled monarch of the Pacific, this morning established Vancouver as North America's No. 1 link with Australia. Her strings of gaily-colored signal flags fluttering a hands-across-the seas welcome from the Dominions 'down under,' the 17,-491-ton Canadian Australasian liner hove in sight off Point Grey the dawn and slid majestically in under Lions Gate Bridge. Twenty-three days after steaming forth under Sydney Harbor's famed bridge, Aorangi's arrival brought a thrill to Vancouver's waterfront, as it did to Victoria's waterfront when she reached there Friday night.
Vancouver Sun, 11 September 1948.
![]() |
| Credit: The Vancouver Sun, 11 September 1948. |
![]() |
| Aorangi on arrival at Vancouver. Credit: Wallace B. Chung and Madeline H. Chung Collection, University of British Columbia. |
With 485 passengers still aboard, Aorangi passed under the Lion's Gate Bridge before 7:00 a.m. on 11 September 1949, her white paint helping to give her a ghostly appearance as she motored through a thick morning mist and came alongside Pier B. Of her passengers, 100 were destined to connect for eastern Canada or the United States and Canadian Pacific assigning extra cars to accommodate them on their trans-continental trains.
Among Aorangi's passengers for her first post-war southbound voyage were nine who had arrived at Montreal on Empress of France's (the former Duchess of Bedford) maiden voyage from Liverpool who would cross Canada via Canadian Pacific and be the first to take the resumed All-Red-Route.
![]() |
| Aorangi ready to sail on her maiden post-war voyage to the Antipodes. Credit: Walter E. Frost photograph, City of Vancouver Archives. |
If her first southbound voyage was any indication, Aorangi had bright prospects for her post-war return to service. She had 499 passengers, 1,400 tons of cargo and 700 bags of mail for the Antipodes when she sailed from Vancouver and Victoria on 16 September 1948. Indeed, cot beds for 15 children were added to cabins for a ship whose post-war capacity of 485 was not sufficient. Among those aboard were P.B. Cook, general manager; and William Howie, consulting engineer, for Canadian-Australasian, and E.E. Warren, director of Adelaide Steamship Co..
Aorangi's cargo included 500 tons of paper for Australia and 100 for Honolulu and 400 tons of paper products and 100 tons of sulphate of ammonia for New Zealand and a large consignment of wood shingles, 300 tons of B.C. fruits and vegetables including apples, potatoes, onions, celery, tomatoes and carrots to Honolulu which were all much needed when Hawaii was cut off from its normal food supplies from the U.S. mainland owing to a maritime strike of Pacific ports. Her sailing recalled pre-war days with streamers and over 500 saying their farewells from Pier B as she pulled away.
Lady's Return.
Sat on the front porch yesterday morning and watched the Aorangi outward bound for the first time in seven years and it was certainly a fine sight to see a big white liner on the horizon again.
Earlier in the week I'd joined the dreamers lining the waterfront rail to welcome the lady back to these parts and it was pleasant to find the old girl as stately as ever and still with the look of adventure in every port hole.
A lot of water has passed under the Lions Gate Bridge since 1941 when the old 'Cloud Piercer' was last this way, but she seems to have survived her war service without any noticeable effects and, in fact, in her new white paint she never looked better.
The old girl went through plenty of humiliating experiences during the war, including a period as mothership for a fleet of tugs, but she's bounced back like the queen she is.
Hadn't realized how much we'd missed the big liners in the harbor until I noticed a couple of youngsters who were obviously getting their first close-up look at one.
They were full of questions, staring up at the cuff sides ot the Dig snip, and their father was having the time of his life telling thorn what it was all about.. The kids were having difficulty understanding the difference between this ship and the warships they'd seen.
I suppose it dates me, but I never get the same kick out of looking at airplanes as I do at such a ship. The air liner makes the world seem small, the sea liner makes it seem big and mysterious and maybe even a little, more exciting than it really is.
Thrice welcome, Aorangi.
Jack Scott, Our Town, The Vancouver Sun, 17 September 1948.
![]() |
| Credit: The Vancouver Sun, 19 September 1948. |
It was like the old days and Aorangi arrived at Honolulu ahead of schedule, at 5:00 p.m. on 22 September 1948 instead of 7:00 a.m. the next morning, docking at Pier 8 a half hour later. Aorangi landed 14 passengers and 640 tons of reefer cargo, all of it much needed produce for an island cut-off from its normal supplies from the U.S. Mainland. This included 16,500 lbs. of celery, 50,000 lbs. of carrots, 75,000 lbs. of apples, 24,000 lbs. of tomatoes, 60,000 lbs. of onions and 50,000 lbs of potatoes. Aorangi sailed the next day at 4:00 p.m. after embarking 14 passengers and she went out with 6,542 bags of mail for the Antipodes, 5,288 bags transhipped from the American transport General A.W. Brewster and 1,252 from General William Mitchell, both from San Francisco.
In a poignant last tribute, when Aorangi arrived off North Head, Auckland, on 5 October 1948 at 12:25 p.m., the ashes of her former master, Capt. T.V. Hill, who had passed away in Vancouver back in August 1942, were cast onto the waters of the Waitemata, a wreath of flowers was cast from the pilot launch of the same name, by Capt. Hill's brother, Capt. E.T.R. Hill, of Devonport. It was Capt. Hill's last wish and waited for Aorangi's first return to New Zealand from Canada. Aorangi sailed for Sydney at 4:40 p.m. on the 7th where she arrived at 8:00 a.m. on the 11th.
When Aorangi arrived at Sydney it was noted that she came in with a full compliment of passengers but only a quarter capacity of cargo as a shortage of dollars continued cut into Australian imports from North America. From the onset of the revived service, the paucity of cargo not passengers would impact earnings.
Aorangi left Sydney for Vancouver at 4:00 p.m. on 21 October 1948 and arrived at Auckland on the 25th at 6:50 a.m. after a rough Tasman crossing. Delayed there six hours, she did not sail until the 27th and would be behind time for the rest of the voyage owing to poor weather most of the way north. Arriving with 409 through passengers and landing 49 passengers at Honolulu on 5 November, her cargo of 86 tons of New Zealand butter was of far more interest to local residents, still short on foodstuffs as the U.S. shipping entered its 66th day. The ship encountered "extremely rough weather" on the 4th and made her late in arriving. Even so, with the shipping strike, she was a welcome sight in the port, being the first passenger ship to call at Honolulu since 23 September when she last called there.
![]() |
| Credit: Honolulu Star Advertiser, 6 November 1948. |
Embarking 42 northbound passengers, Aorangi was off for the mainland after a brief three-hour call. Originally expected to reach Victoria on the afternoon of Armistice Day, she did not arrive until the following morning on the 12th at 7:45 a.m. and off for Vancouver at 10:30 a.m. where she arrived that afternoon. Her crew reported that it rained half of the 21 days of the voyage and Aorangi rolled heavily on the fringe of a tropical typhoon. She came in with a cargo of wool, rabbit fur, oranges and bananas but her most exotic cargo, two dozen parrots, bound for a Seattle zoo, were landed at Victoria.
For her second southbound voyage, commencing from Vancouver at 10:00 a.m. on 18 November 1948, Aorangi was again sold out with 498 passengers booked, including infants and children. When she cleared Victoria that evening, her cargo totalled 3,500 tons including 75,000 ft. of lumber for Suva and Australia, 300 tons of paper tissue, 580 tons of newsprint and 300 tons of sulphite of ammonia for New Zealand as well as 2,000 bags of Christmas mail.
She left Vancouver in a driving rainstorm and so far, Aorangi's pre-war reputation as a fair weather ship seems to have deserted her and it was continously rough all the way down to Hawaii. When she docked at Honolulu's Pier 8 at 7:00 a.m. on the 25 November 1948 she came in with five additions to the passenger list: four young stowaways and a baby girl born to Mr. & Mrs. Thomas E. Stephen, a former American G.I. and his Australian war bride who were emigrating to Queensland. Arriving on Thanksgiving morning, the ship's docking was serenaded by the Royal Hawaiian Band. She landed more foodstuffs for the city including 398 tons of fresh meat and fish and 62 tons of vegetables. Disembarking 13 passengers and adding 15 for the south, she departed at 4:00 p.m. that day.
![]() |
| Aorangi at Auckland. Credit: New Zealand Herald photograph, Auckland Libraries. |
Delayed departing Suva, Aorangi arrived at Auckland on 7 December 1948 at 10:00 p.m., too late to berth and she did so the next morning, landing 211 passengers, and two more stowaways, both "flaxen-haired Englishmen," aged 20, were discovered who had managed to avoid detection past Hawaii. Embarking 195 for Sydney, she sailed at 10:00 p.m. on the 9th. When Aorangi arrived there on the 15th, yet another stowaway, who got aboard at Auckland, was discovered-- Peter John Wilson, aged 19, who had claimed to have spent £700 on a 12-month jaunt through the South Seas-- "I think I spent most of the money on beer-- and having a good time," he told a reporter.
It was reported on 11 December 1948 that Aorangi would be withdrawn from service on arrival at Sydney on 22 August 1949 and laid up there until 22 September to have her old diesel generators replaced by new ones.
![]() |
| Credit: The Sydney Morning Herald, 17 December 1948. |
On 17 December 1948 the Sydney Morning Herald reported that Aorangi was losing money on every trip so far and her maiden voyage alone lost £150,000 owing to lack of cargo owing to continued dollar shortages in the Antipodes which hurt imports. This in spite of excellent passenger traffic.
Aorangi left Sydney for Auckland and the north at 4:00 p.m. on 23 December 1948. her passengers celebrating Christmas At Sea in mid Tasman and arriving at Auckland at 6:53 a.m. on the 28th. Part of her outward cargo loaded there was a record shipment of 20 tons of crayfish tails (135,000 in all) to Canada in addition to 350,000 lbs. of butter.
![]() |
| R.M.M.S. Aorangi in Auckand Harbour, December 1948. Credit: shipsnostalgia threebs |
![]() |
| R.M.M.S. Aorangi in Auckand Harbour, December 1948. Credit: shipsnostalgia threebs |
1949
Aorangi docked at Pier 8, Honolulu, at 9:30 a.m. on 8 January 1949, coming in with 394 aboard and landing 38 passengers there, as well as two more stowaways, Charles Ellis, 22, and Peter Milgate, 17, who got aboard at Auckland. before departing for the mainland at noon with a capacity list of 496 aboard.
![]() |
| Credit: The Province, 15 January 1949. |
Concluding her third post-war voyage and her 64th since entering service, Aorangi docked at Victoria at 8:50 p.m. on 14 January 1949, landing 23 passengers, nine tons of cargo and 1,150 bags of mail there. Other than some rough weather up from Honolulu, Capt. Whitefield told reporters "nothing startling" occurred during the voyage which had 40 young children and babies aboard. Aorangi docked at Pier B, Vancouver, on the morning of the 15th: "Arrival of the big white Mv Aorangi at the week-end was like a breath of spring-- a real 'June in January' touch-- to Vancouver's shivering waterfront. From the other side of the world where sun and balmy breezes of the day came the colorful, 17,000-ton liner-- her feminine passengers still dressed in the light and summery attire of the season they left two days before Christmas." (The Province, 17 January 1949).
![]() |
| Credit: The Province, 20 January 1949. |
![]() |
| Credit: The Vancouver Sun, 21 January 1949. |
Outbound for the Antipodes, Aorangi cleared Vancouver's Pier A at 10:00 a.m. on 19 January 1949 and Victoria late that same evening with another capacity list and a cargo that including apples and meat for Hawaii, lumber and canned salmon for Australia and newsprint and lumber for New Zealand. She had 463 through passengers and 15 landing at Honolulu where she docked at 7:00 a.m. on the 27th, and embarked a similar number before continuing her voyage at noon. Among those disembarking there was retired CPR President M.M. Neal and his wife, their first visit to Hawaii in 12 years.
Another birth at sea was recorded aboard Aorangi on 5 February 1949, less than a day out of Suva, when a five-pound baby girl was delivered to Mr. & Mrs. E. Fromer, of Wellington, by ship's surgeon Dr. Basil Williams, assisted by Sister Eileen Peich, of Brisbane, who was a passenger aboard and a registered nurse. Aorangi docked at Auckland at 9:35 a.m. on the 8th and at Sydney on the 14th.
![]() |
| Aorangi at Auckland, 9 February 1949. Credit: New Zealand Maritime Museum. |
Aorangi cleared Sydney Heads at 5:50 p.m. on 24 February 1949 for Canada, leaving behind 4,000 bales of wool owing to a wool storemen's dispute. She arrived at Auckland at 7:20 a.m. on 1 March and embarked four delegates returning from the Seventh Pacific Science conference there as well as M.B. Miller, Union S.S. general manager, making for a total of 458 aboard. Aorangi had 31 passengers to land at Honolulu, docking there at noon on the 11th and embarked another 11 for the mainland before sailing at 9:00 p.m. She reached Victoria at 7:00 a.m. on the 18th and after a three-hour call there, proceeded to Vancouver, docking there at Pier B that afternoon. Her cargo included frozen rabbits (her first such consignment for Canada since the war), hardwood and onions from Australia and some New Zealand wool.
![]() |
| Credit: The Province, 23 March 1949. |
Off again from Northern Star to Southern Cross, Aorangi sailed from Vancouver on 24 March 1949 and upon clearing Victoria that evening, had 490 passengers aboard. She arrived at Honolulu at 7:00 a.m. on the 31st, ten of Aorangi's passengers landed there and she embarked 20 additional fares for the trip south which resumed at 4:00 p.m. An appendicitis operation was performed at sea, on 2 April, by the ship's surgeon, Dr. K. Addison of Sydney, on Asst. Purser H.F. McQueeney, assisted by two doctors and two nurses aboard as passengers. The ship was stopped for two hours during the procedure and the patient recovered fully by the time the ship reached Sydney.
![]() |
| Credit: The Newcastle Sun, 19 April 1949. |
It was another stormy passage south and due at Auckland at noon on 12 April 1949, Aorangi did not arrive until 6:30 pm. Four stowaways were landed, all unemployed young men who came aboard in Vancouver. Rain delayed cargo working and Aorangi was finally off for Sydney at 4:25 pm. On the 14th with 300 through passengers and 180 who embarked at Auckland. Remarkably, during the Tasman crossing, Miss Joan Truscott, from Newcastle, NSW, who was one of the nurses who had assisted in the appendictomy earlier in the voyage, developed acute appendicitis herself and Dr. Addison performed his second successful operation on the voyage. Aorangi docked at Sydney on the 18th.
![]() |
| Credit: Times Colonist, 20 May 1949. |
![]() |
| Aorangi passing under Lion's Gate Bridge coming in Vancouver, May 1949. Credit: British Columbia Archives. |
With Viscount Leverhulme, founder of Lever Bros.,and Lady Leverhulme among her passengers (Viscount Leverhulme would pass away in Minneapolis on 26 May, aged 61), Aorangi left Sydney on 28 April 1949 and reached Auckland at 7:00 a.m. on 2 May. So fully booked was she on departure, that several New Zealanders flew to Suva, Fiji, to embark in Aorangi there, taking freed accommodation of those landing. The liner sailed from Auckland at 11:35 a.m. the following day and after calling at Suva, had 483 passengers aboard. She arrived at Honolulu at 4:00 on the 12th, landing 45 passengers and embarked 35 more for the mainland at 10:30 p.m. Aorangi got into Victoria at 7:00 a.m. on the 20th and used the newly re-opened Rithet wharves for the first time since returning to service, having previously use the Ogden Point Docks. She arrived at Vancouver's Pier B that late afternoon.
With 495 passengers, Aorangi sailed from Vancouver on 26 May 1949. A waterfront strike in Honolulu which began after she had sailed, resulted in Aorangi not being able to go alongside there on arrival on 1 June. Instead, she anchored off port at 3:30 p.m. and her nine landing passengers went ashore by tug as did her embarking 19 passengers for the south, and she was on her way at 7:25 p.m.. After calling at Suva, Aorangi arrived at Auckland on the 14th at 5:25 p.m. and left for Sydney at 3:30 p.m. on the 16th. It was another rough Tasman crossing for the ship and especially for the 86 children and their mothers aboard who "were knocked down many times by the terrific rolling and pitching of the ship during the last two days of their trip from Canada," (The Sun, 20 June 1949) which arrived at Sydney on the 20th.
The Vancouver-bound Aorangi left Sydney at 4:00 p.m. on 30 June 1949. She did not get into Auckland until 3:00 p.m. on 4 July, eight hours behind schedule owing to "for a period on the trip one engine was out of commission and speed had to be reduced." (Northern Advocate, 5 July 1949). She left for the north at 5:00 p.m. on the 5th. Among those embarking at Auckland were 16 sea cadets representing New Zealand (seven from Auckland, three each from Otago, Canterbury and Wellington) and two officers bound for an Empire camp in Canada at Choisy, Quebec, 25 July-5 August. They would return to New Zealand in Vancouver on 20 October.
The waterfront strike continued in Honolulu so that when Aorangi arrived at 8:00 a.m. on 16 July 1949 with 452 through passengers, her 53 landing passengers and 40 embarkees would be taken out to her by tug off port. Aorangi arrived at Victoria at 6:30 a.m. on the 23rd and departed at 9:30 a.m. for Vancouver. Those aboard who left the Australian and New Zealand winter, were disappointed to find chilly drizzle on arrival. There, she ended her 65th voyage. Some of her crew said it had been her smoothest voyage to date but her engine troubles had shut down the forced draught ventilation but "other than the discomfort of a few warm nights, the trip was fine, " a passenger told the Time-Colonist.
![]() |
| Shape of Things To Come: Canadian Pacific Airlines' Canadair Four Empress of Vancouver. Credit: Airhistory.net |
On 13 July 1949 Canadian Pacific Air Lines introduced their first direct air service to Australia when Canadair Four Empress of Australia departed Vancouver with 33 passengers for Sydney viaarrived at Vancouver airport for Sydney with 33 passengers via San Francisco, Honolulu, Canton Island and Fiji after 74 hours 35 mins in the air. The one-way fare cost $685 compared to a First Class fare in Aorangi at $575, although as the National Post observed, "The competitive position of the airplane is improved by the fact that the Aorangi, only vessel operated on the run is booked solid for the next year."
When Aorangi sailed from Vancouver on 28 July 1949 for Sydney, among her 753-ton cargo of foodstuffs were 3,000 bags of potatoes and 500 tons of meat for the strikebound people of Hawaii now into 90 days of a port shutdown. The ILWU union had, after nearly starving the islands of foodstuffs for three months, consented to working designated "relief" ships carrying supplies so that Aorangi would qualify as such and be permitted to berth under an agreement signed on the 12th.
However, when Aorangi docked at Pier 9 at 7:00 a.m. on 4 August 1949, stevedores who went aboard were off within an hour when AFL teamster pickets appeared. The stand-off lasted for hours and Aorangi initially put off her scheduled departure south from 6 to 10:00 p.m. that evening. It took a restraining order from a judge to remove the pickets and unloading commenced at 7:00 p.m. that evening so that Aorangi could not sail until 5:00 a.m. on the 5th, 11 hours late. She had come in with 485 through passengers, landed 18 and embarked another 26 before departure. In her holds, left over from her previous southbound voyage, was still three tons of grass seed for Honolulu which the union did not consider essential cargo and refused to unload.
Aorangi proceeded south only to arrive at Auckland in the middle of a watersiders strike there and it appeared that her cargo would not be worked but on 16 August 1949 it was announced she would be handled and be the first ship to enter the harbour since the dispute began. In the end, her cargo for the port, including 944 tons (measurement) of toilet paper, was left in her holds. Aorangi arrived on the 17th and docked at Princes Wharf at 2:00 p.m.. Company staff handled the passengers' luggage as well as mails and stores. She departed for Sydney the next day and had a rough crossing of the Tasman which delayed her arrival there until 11:00 a.m. on the 22nd as well as that of Wanganella. Thus ended a difficult voyage that included the death of two passengers aboard, Mrs. Mary Ella Trafford, aged 70, of New Zealand, who died of a cerebral heamorrhage before the ship reach Honolulu, and Mr. Alfred Fowler who died of pneumonia two days before arriving at Auckland.
Just as well perhaps, Aorangi was out of service for a month on arrival at Sydney for the replacement of her main generators and a general refit alongside No. 5 Darling Harbour. She was also fitted with radar, costing £2,000. On 13 September 1949 The Sun reported that Aorangi's distinctive white hull was being repainted in the traditional Union "copper green," "the white coating was too expensive to maintain," it was reported.
When the liner Aorangi leaves Sydney on September 22 for New Zealand and Vancouver, she will have the normal Union Company green hull and white upperworks. The white hull has been discarded, as experience shows it is difficult to keep clean looking on the long Pacific run. During her Sydney overhaul, new and larger generators are being installed to provide greater power for auxiliaries and ventilation.
Otago Daily Times, 14 September 1949.
Union's Matua, on the Raratonga trade, which, too was white, would also be repainted with a green hull during her refit at Auckland then in progress.
Looking her old self and no less handsome for it, the traditionally attired Aorangi returned to service upon her departure from Sydney at 4:00 p.m. on 22 September 1949, clearing the Heads at 5:24 p.m. Among her passengers was Mrs. M.E. Pettigrew, widow of the heroic master of the CPR Beaverford sunk at the same time as AMC Jervis Bay.
![]() |
| Looking her old self and marvelously so, Aorangi arrives at Auckland also showing her newly radar atop her wheelhouse. Credit: Auckland Libraries. |
Aorangi arrived at Auckland at 7:15 a.m. on 26 September 1949 and sailed north at 11:45 a.m. the next day. With 543 through passengers aboard, Aorangi made short work of her call at Honolulu on 7 October, anchoring off port again (the endless strikes there proving just that) and her 26 landing passengers, baggage and 30 bags of mail going off by tug and another 20 boarding before she sailed at 11:00 a.m. Heavy fog in the Juan de Fuca Strait had Aorangi more than an hour late arriving at what was now called the Victoria Machinery Depot (V.M.D.) Wharves (formerly the Rithet Piers) just after 11:00 a.m. on the 13th. Arriving at Vancouver at 8:15 p.m., she was a day early and her officers delighted with her improved performance following her overhaul, with new generators and improved accommodation ventilation. The devaluation of the Australian currency against the dollar which came in effect just before her departure did cause some cancellations but she still came in with 425 passengers. They were greeted on Pier B by a lone Scottish piper as they landed.
"With close to a full list of passengers," Aorangi cleared Vancouver at 10:00 a.m. Victoria at 6:00 p.m. on 21 October 1949 and among those embarking there were the 16 New Zealand sea cadets and their two officers returning home after a two-and-a-half-month stay in Canada. In addition to her 494 through passengers, Aorangi had 19 to landed at Honolulu at 3:45 p.m. on the 26th and she finally was able to dock alongside Pier 8 and a full cargo work with the final end of the strike. She embarked 22 there before continuing south at 8:25 a.m. the next morning. She actually cleared Pier 8 at midnight to make room for the arriving President Cleveland but awaited offshore for a New Zealand bound passenger who arrived by air that morning. Being the last ship direct from Honolulu to Australia to carry mails that would arrive by Christmas, she went out with a heavy consignment.
Calling at Suva on 5 November, Aorangi reached Auckland on the 8th where the most heralded arrival was 12-year-old David Lawrence Smith, a direct descendant of a long line of Mohawk chiefs in Canada, "stepped ashore wearing a picturesque dress of an Indian chief. He is an ambassador of from the chiefs of six nations of Indians to the kings of the Maori race and carries a message and gifts." (Greymouth Evening Star, 8 November 1949). Her sea cadets came home, saying "Canadian girls are wonderful," and laden with "mats from Fiji, hockey sticks from Canada, cowboy stetsons, outriggers, canoes and American clothes in their luggage." Aorangi left for Sydney at 3:50 p.m. on the 10th where she docked the morning of the 14th.
Aorangi departed Sydney for North American on 24 November 1949. Among her outbound cargo was the first trial shipment of 85 tons of Australian frozen bluefin tuna intended for the Californian market. Arriving at Auckland at 6:35 a.m. on the 28th, she proceeded north at 8:00 p.m. the following evening.
delayed 12 hours owing to a rough voyage, Aorangi did not reach Honolulu until 3:00 p.m. on 9 December 1949, instead of 8:00 a.m., coming in with 365 through passengers and landing 32 there before sailing at midnight after embarking 40.
Originally due on 15 December 1949, Aorangi made William Head Quarantine Station, Victoria, on the 16th at 6:00 a.m. after hitting two stormy days out of Honolulu. A true Christmas Mail Boat, she came in with 10,000 bags of mail, much of it for transhippment to the United States via Seattle. Coming alongside at 7:00 a.m. Aorangi landed 10 passengers there before sailing two hours later for Vancouver, arriving there at 3:00 p.m. to land her remaining 368 passengers to end her 69th voyage "north." It was her lightest list of her seven post-war trips to the coast as Australian currency devaluation continued to discourage bookings as C-A fares were calculated in dollars and converted at the prevailing exchange rates. She still had 1,800 bags of mail, 40 tons of tuna, 8,000 cases of New Zealand cheese (the first such shipment in some time), 250 cases of Australian rabbits, 600 cases of cooked and frozen crayfish and 1,200 bunches of Fijian bananas to land there.
![]() |
| Credit: The Province, 22 December 1949. |
![]() |
| Credit: The Province, 22 December 1949. |
The 1950 British Empire Games were held in Auckland 4-11 February and of Canada's 72-strong team, the first group of 36 would depart Vancouver aboard Aorangi on her next southbound voyage. Aorangi went out on 22 December 1949 a full ship amid a great send off for athlete passengers who paraded down Burrard Street to Pier B, headed by the Firemen's Band and waved off from the pier by officials including Mayor Charles Thompson. As Aorangi pulled out at 10:00 a.m. the tug Margaret McKenzie gave her a five-minute whistle blast as 200 cheered her off and the band played "Beer Barrel Polka" and "Now is the Hour." It would be a Christmas at Sea for all aboard for which Aorangi was well-equipped: four Christmas trees, 2,500 lbs of turkey, 200 pounds of Christmas cake, 200 chickens, 150 ducklings and 500 pounds of suckling pig in her larders. The chief baker made 100 Christmas pudding, 800 mince pies and 40 yule logs. Aorangi called at Victoria at 4:00 p.m. and sailed that evening with 496 passengers.
![]() |
| Credit: The Vancouver Sun, 22 December 1949. |
Aorangi arrived at Honolulu on 29 December 1949, docking at Pier 9 at 8:00 a.m. and landing seven passengers and embarking 12 before resuming passage south at 4:00 p.m..
![]() |
| Union Line poster featuring Aorangi and Tasman Empire Airways Solent flying boat, c. 1951. |
Returning to Pacific commercial service in August of 1948, the ship's recent history is one that could be called a fight for survival.
The Aorangi is a victim of a bad economic situation in a troubled world.
The owners have blamed a shortage of dollars in Australia and New Zealand plus the rise of air travel as the reason for the unprofitable operation.
Honolulu Star-Bulletin, 9 January 1951.
But there is another side to the withdrawal of a famous ship. A sentimental link is breaking and thousands of people in Sydney alone will regret her passing.
And thousands more will feel the same way about it all along the line-Auckland, Suva, Honolulu and Vancouver where her green hull, two red funnels with their black tops, were as well known as the town hall clocks. Even if she is replaced eventually, old friends will be sad. Nobody likes to see the passing of an oldtimer, inevitable though that passing must be.
It is the end of an era. New ships may come, bigger, newer, faster ships like the Oronsay, which will make two experimental voyages over the route next year. But the atmospheric Aorangi years have gone forever.
The Sun, 15 June 1953.
If Canadian Pacific's North Pacific route was the first major one to succumb to the airliner, Canadian Australasian faced even stronger post-war headwinds. An ageing ship with admittedly cranky diesels, operating alone without any subsidy, manned by a prohibitively expensive Australian crew on unsustainable wage and overtime pay scales and with cargo carryings decimated by the devaluation of the pound-based currencies of Australia and New Zealand all conspired to doom Aorangi without replacement and condemn Canadian-Australasian to a demise within years of its long delayed revival.
While the 1950s represented, quite contrary to the early prognostications of its early post-war doom, a revival of the ocean liner on many trade routes, it would, well before mid decade, see the withdrawal of Vancouver's sole remaining overseas liner service and the end, for the time being, of a direct sea link between North America and the Antipodes.
No longer the harbinger of The Motor Ship Era, Aorangi and her now aging and cantankerous diesels, was rather the last survivor, the last British-flag trans-Pacific liner, and coursing not to the Southern Cross but rather to oblivion.
1950
Canada-bound, Aorangi departed Sydney at 4:00 p.m. on 25 January 1950. In her outward cargo was a trial shipment of headless snap-frozen prawns for Honolulu with the prospect of forthcoming orders of 100,000 lbs..
Her arrival at Auckland on 30 January 1950 was enlivened when the ship was searched for three hours by 30 uniformed police and detectives for two men who had escaped from the central police station in Sydney and suspected of being aboard. They were not and after being detained in the stream, Aorangi finally was allowed to proceed to her berth by noon. Aorangi departed for Suva and points north at 5:30 p.m. on 1 February. It was a very stormy passage, Aorangi hitting the tail-end of a tropical hurricane south of Fiji which injured a passenger, Miss R.B. McLean, an American, who was flung to the deck, suffering cuts and bruises whilst another, Mrs. Nanny Wood, aged 69, also from the U.S., suffered a heart attack and died, being buried at sea. With 379 through passengers and 69 to land there, Aorangi docked at Pier 8, Honolulu at 4:15 p.m., two and a half hours late, on the 10th. Embarking 16 for the coast, she resumed passaged at 10:00 p.m.
On 17 February 1950 the Canadian-Australasian office in Vancouver announced the company was "seeking subsidies from the Canadian, Australian and New Zealand government to maintain a fast British Commonwelath passenger and cargo trans-Pacific service with Aorangi."
Aorangi arrived at Victoria on the morning of 18 February 1950, landing 46 passengers, 30 tons of cargo and 450 bags of mail there . A crewman, referring to the storm, told a reporter, "We had a bit of blow-- just the tail end of a hurricane." She arrived at Vancouver late the same day.
Departing Vancouver at 10:00 a.m. on 23 February 1950 and Victoria at 5:00 p.m., Aorangi went out with more than 500 passengers, including General Albert Orsborn, international leader of the Salvation Army, and even managed a stowaway for the short voyage en route who was removed at Victoria. Coming into Honolulu on 2 March, docking at Pier 8 at 7:00 a.m., Aorangi had 488 through passengers and 29 disembarking there as well as landing 472 tons of cargo and embarking 18 before continuing south at 4:00 p.m.. Among those landing at Auckland on the 14th was a party of joiners and cabinetmakers from Wolverhampton with three caravans and 20 cases of machinery with the intention of starting up a factory "somewhere in New Zealand." The liner left at 10:00 p.m. on the 16th for Sydney where she docked the morning of the 20th. Among those landing were two families of Australian war brides returning to the country with their families, one to live there and the other to spend six months with family in Brisbane. All had to help the crew to take off their baggage owing to a shortage of waterside labour.
Aorangi was off for Canada at 4:00 p.m. on 30 March 1950 and called at Auckland 3-4 April. On departure from Suva, she had 504 passengers aboard and arriving at Honolulu's Pier 11 at 4:00 p.m. on the 14th, landed 39 of them there and embarked 27 before sailing at 10:30 p.m.. Her unusual berth assignment was owing to Pier 8 being occupied by the APL General W.H. Gordon which was sailing to Japan with some 900 passengers and at the same time as Aorangi making for a very busy Honolulu waterfront that evening.
Coming into Victoria on the morning of 21 April 1950, upon arrival at Vancouver that afternoon, Aorangi's passengers received a special welcome to begin "Courtesy Week" in the city:
The skirl of the pipes sounded across the rain-misted waters of Vancouver harbor Friday afternnon as RMS Aorangi slid to her berth at Pier B.
The lilting strains of 'Bonnie Dundee' warmed the hearts of 600 passengers and crewmen on the ship from 'down under.' And a grim, grey welcome turned into a sunny one.
'What a reception! Best one we've had the while trip,' declared a blonde pretty Australian girl arriving here on her way to England.
The Vancouver Sun, 22 April 1950.
In addition to her human passengers, Aorangi arrived with seven wallabies who travelled up from Australia in special canvas cages on the Boat Deck, one was Joey who spent the voyage in his mother's pouch. Aorangi's cargo included lobster tails, tuna, grass seed, rabbit skins, wind and wool.
During her turnaround there, ANZAC Day was observed in Vancouver on 23 April 1950 (chosen as being a Sunday rather than the actual day on Tuesday) and a contingent of veterans from amongst Aorangi's crew took part in the parade along Burrard Street to the Cenotaph with Capt. Whitehead laying one of eight wreaths on the memorial at 3:00 p.m.
![]() |
| Credit: Honolulu Star-Advertiser, 5 May 1950. |
Aorangi sailed for the Antipodes from Vancouver and Victoria on 27 April 1950 with 445 through passengers and only two landing at Honolulu on arrival there at 7:00 a.m. on 4 May and 20 more embarking before she departed at 3:00 p.m.. During her call, Capt. W. Whitefield host a party of teenagers visiting the ship as part of "Career Day" in Honolulu for young people. Aorangi got into Auckland at 7:00 a.m. on the 17th and departed the follow day for Sydney where she arrived on the 22nd, docking at no. 5 Darling Harbour at 9:00 a.m., arriving also with Himalaya from London which went alongside at no. 20 Pyrmont an hour earlier. Among those landing was a party of 50 ex-American servicemen, their Australian warbrides and a total of 18 young children and all settling in Australia.
The first of June 1950 saw Aorangi clearing Sydney Heads at 5:17 p.m., outbound for Vancouver. Her outbound cargo included tuna fish and 300 tons of wool. The call at Auckland (where she arrived at the 5th) was extended from 6th to the 7th owing to the watersiders insisting on taking the King's Birthday off on the 5th. She left there at 4:30 p.m. and after clearing Suva, had 423 passengers for Canada aboard and 53 for Honolulu where she docked at 2:00 p.m. on the 16th at 2:00 p.m., and off again at 10:00 p.m. after adding 61 to her passenger list. Aorangi came into Victoria the morning of the 24th, disembarking 50 passengers before proceeding after a three-hour call to Vancouver where she docked at Pier B that afternoon. Two of her more than 400 passengers landing there, Sasa Rore and Ratu (Chief) Semi Vuloaloa, from the Fiji Islands, were bound for a world conference of Seventh Day Adventists in San Francisco.
![]() |
| Credit: The Vancouver Sun, 29 June 1950. |
Aorangi sailed from Vancouver on time on 29 June 1950 for the Antipodes… too on time for one intending passengers, A.J. Melanson, of Lowell, Mass., whose train arrived late and he missed the boat by minutes. He was able to catch up to her by taking the regular steamer to Victoria.
In the middle of her otherwise routine southbound passage came the sudden announcement in 3 July 1950 from Canadian-Australasian Line that they would discontinue operations on 29 January 1951 with the arrival, at Sydney, of Aorangi from Vancouver. "The company has sustained substantial losses since its inception in 1931, and future prospects, accompanied by high operating costs, are such as to make this decision necessary."
In Auckland, New Zealand Prime Minister Sidney Holland said that same night that Canada and Australia had decided not to follow his country determination to provide an operational subsidy to continue the operation and New Zealand committing to a £10,000 per annum subsidy for two years.
Mr Holland said that the Government had been informed that two major factors had led to the decision to discontinue the service. They were the very small amount of cargo that could be loaded and unloaded when the ship was in port, especially at Auckland, and the mounting cost of operating ships in general. He added that earlier this year details of the losses incurred by the Aorangi in the Pacific service had been brought to the notice of the Canadian, Australian, and New Zealand Governments. The Canadian Australasian Line had asked the three Governments to grant special financial assistance to enable it to maintain the vessel in service. The New Zealand Government had agreed to contribute a special and substantial payment to ensure the continuation of the service. The sum of £l0,000 a year for the next two years was New Zealand’s pro rata share of the sum required.
It appears inevitable that the service must cease, and an old British shipping line withdrawn from a route where it has been established for a considerable number of years.” said Mr Holland. “It is important that the public should know what has brought the position about. The Aorangi has been a popular vessel, and the service has been of great benefit to the travelling public. The existing scale of fares is as high as can compete with air travel, and the ship is invariably fully laden with passengers.
Press, 4 July 1950.
A typical two-sentence press release from the Canadian Australasian Line announces the withdrawal from service of RMS Aorangi, the only deepsea passenger liner operating out of Vancouver. No goodbyes. No regrets. No statement of thanks for past patronage. No explanation of company efforts, if any, to keep the service alive.
Just the statement in 60 words that the line has lost money in the past and sees no prospect of making any money in the future. So it shoves off and says it won't be back. This curt note is completely consistent with the line's lack of a proper public and press relations policy during the past 20 years. In spite of that lack, the public of Vancouver will be sorry to see the Aorangi leave on her final voyage next January and will wish her well in the undisclosed use to which the uncommunicative management may decide to put her.
The Vancouver Sun, 4 July 1950.
Editor, The Sun: Sir, Having read your editorial in The Sun of yesterday, my only criticism is that it is 'too little and too late.' No truer statement was ever made by your newspaper than that part of your editorial referring to 'the line's lack of public and press relations policy ...' As one who has travelled across the Pacific 12 times, 5 times on the Aorangi and twice on other vessels of the same company, my criticism of the way that the C&A Line and the Union Steamship Company of New Zealand, who used to run the Makura and Maunganui, operate their passenger vessels would hardly bear printing.
While to be fair, I have always had every courtesy at the, offices of these companies, the same cannot be said on their steamers. The off-handed rudeness and crudeness of the Australian crew of the Aorangi, which would lead one to believe that the vessel was run for them and not the passengers, was and is terrible. As a passenger on one of her more recent post-war trips, this was emphasized in ALL classes by the complete lack of order maintained by the ship's officers, when in spite of a number of complaints, life was an absolute bedlam with children being allowed to run around until all hours of the night.
Why was it SO different all round on the Matson boats when they were running?
I rejoice to see the Aorangi going off the run even if it does cause me and others some inconvenience. Perhaps now another company will be encouraged to put some fast, well run, courteously conducted passenger-freighters on the service. Only then should the Canadian, New Zealand and Australian governments concerned give a subsidy, if necessary, to complete the Empire link.
SERVICE WITH A SMILE..
The Vancouver Sun, 8 July 1950.
The announcement is much more significant than the withdrawal of one passenger ship would normally convey. It means the withdrawal of the flag of British passenger shipping from the N.E.-S.W. Pacific trade; it is symbolical and it concerns prestige. If Australians and New Zealanders, people in Canada and Britain wish to cross the Pacific next year the great majority of them will have to travel by air, a more expensive form of transport. Only a handful can be accommodated on cargo ships; in any event most tourists do not wish as a rule to travel that way.
The Gisborne Herald, 5 July 1950.
On 12 July 1950 the Sydney Morning Herald reported that the Australian Government "is still considering helping to subsidise the service of the liner Aorangi between Australia and Vancouver. It is understood that a decision against contributing has not yet been made in Canberra," but that the Canadian Government declined any payment as the ship is not government-owned as neither are the competing airlines.
The Otago Daily Times of 15 July 1950 cited some of the added expenses, especially regarding crew that had rendered the service uneconomic:
In an endeavour to have the transpacific service restored, the Wellington Chamber of Commerce has asked the Associated Chambers to approach Australian commercial interests with the idea of getting the Australian Government to reverse its decision not to pay a subsidy on the running of the Aorangi. At this week’s meeting of the Wellington Chamber Mr J. T. Martin said: 'We quite understand the owners’ position. No company can be expected to continue this kind of service at a loss, and I think the losses have been caused largely by matters outside its control.' Mr Martin said the Canadian Australasian Company had had to increase the Aorangi’s crew from 208 to 320 when hours of work were reduced to 40 and passenger accommodation had had to be cut down to house the extra crew. With penal wages for over 40 hours and delays in cargo handling at ports, the company had been faced with a long line of charges.
In the meantime, Aorangi, apparently already running on borrowed time, arrived at Honolulu on the evening of 5 July 1950 with 494 passengers, landing 17 there. Capt. Whitefield told the Honolulu Star-Bulletin, 'I'd hate to see her go and I'm pretty sure the whole crew is of the same opinion.' Aorangi reached Auckland at 12:35 pm. On the 19th and sailed for Sydney at 10:00 p.m. the next day. The ship, now so much in the headlines again for all the wrong reasons, arrived there on the 24th. Among the passengers she landed there was Mrs. Joe E. Brown, wife of the famous American comedian, and her teenage daughters, who immediately enplaned to Melbourne to join him there.
The Sydney Morning Herald of 22 July 1950 reported that negotiations between the Australian, Canadian and New Zealand Government "have temporarily broken down" and that the only possibility of Canada contributing might be a form of mail subsidy. To keep the service going, the three governments would have to contribute £156,000 per annum with a proposed split of New Zealand paying 8⅓ per cent (£13,000, Australia 25 per cent (£39,000) and Canada the remainder or £104,000.
Aorangi sailed from Sydney on 3 August 1950 at 3:00 p.m.. Among her passengers was Capt. J.G. Lewis, OBE, bound for Auckland to take command of the Port Liner Port Auckland. Aorangi arrived there at 6:45 a.m. and resumed passage at 5:30 p.m. the next evening, having embarked passengers including T.C.A. Hislop, high commissioner to Canada from New Zealand and R. Firth, New Zealand's travel commissioner. Arriving at Honolulu on the 18th at 10:30 a.m. at Pier 11, she had 464 passengers aboard with 53 landing there and another 20 boarding before setting off for the final leg at 9:00 p.m.
![]() |
| Credit: Times Colonist, 25 August 1950. |
Coming into Victoria the morning of 25 August 1950 with 608 passengers, Aorangi docked there at 8:00 a.m.. Railway booking agents were on hand to rebook those affected by the Canadian railroad strike on U.S. trains instead and many landed there to proceed to Seattle for their new connections east. Aorangi left for Vancouver two hours later and, owing to the strike closing the CPR docks there, she had to berth across the harbour at the terminal docks at the foot of Nanaimo Street, next to the Second Narrows Bridge, but at least the dockers did not blacklist her and worked her cargo and passenger luggage. She arrived at 5:00 p.m. and with local hotels packed owing to the strike, C-A allowed passengers to use the ship as an hotel for that night.
Amid continued lobbying in British Columbia to persuade Ottawa to provide the necessary subsidy to continue her service, Aorangi sailed from Vancouver at 10:00 a.m. from Terminal Dock on 31 August 1950, showing there was still a demand for her, going out with 483 passengers and 1,000 tons of cargo (newsprint, automobiles, lumber and lantern parts) and adding to each with her call at Victoria that afternoon before heading south. She docked at Honolulu at 7:00 a.m. on 7 September after a pleasant run down, "We didn't see rain until we docked here," a crew member told the Honolulu Star-Bulletin. After landing eight and embarking 18, Aorangi proceeded south at 4:00 p.m..
Arriving at Auckland on 19 September 1950, she had yet more strikes to contend with as the watersiders there were out. Aorangi was able to berth that evening but her 1,400 tons of cargo for the port remained in her holds and worse, it was on top of that for Sydney of course and all would have to be discharged on arrival there and reloaded again. The union did permit the loading of stores, by the crew, however,and the crew worked the luggage and mails. Scheduled to sail on the 22nd in the afternoon, a sudden settlement of the strike that day allowed her cargo to be unloaded but she did not sail until 5:50 p.m. the next day and docked at Sydney early on the 28th.
![]() |
| Credit: The Sydney Morning Herald, 28 September 1950. |
Aorangi departed Sydney at 4:00 p.m. on 5 October 1950, with the retiring High Commissioner for Canada, Major Gen. Le Fleche and family; and the returning wife and daughters of comedian Joe E. Brown, among those aboard.
After Aorangi arrived at Auckland at 6:40 a.m. on 9 October 1950 the Gisborne Herald reminded its readers that unless a subsidy was forthcoming, her arrival would be the second to last: "The ship's complement is keenly interested in the future of the liner, but time is now running short and hopes that Australia and Canada will assist are fading." The endless labour disputes which threatened her future as much as anything else, resurfaced during her call at Auckland when in heavy rain, Union S.S. only called a minimum of watersiders to work Aorangi and not their other ships in port, the workers went off the job on her until a full call for 150 men was made, "the waterside union's attitude is that unless labour is called for all ships of one company, none will be worked." (Gisborne Herald). As a consequence, Aorangi, scheduled to sail for Suva at 3:00 p.m. on the 10th, did not get away until 10:00 p.m.. After Suva, she had 316 passengers aboard and of these, 30 disembarked on arrival at Honolulu at 5:30 p.m. on the 20th and she embarked another 38 before departing at midnight.
Aorangi came into Victoria the morning of 26 October 1950 after a rough night with a storm of winds up to 50 knots 300 miles off Cape Flattery which caused her to hove-to for a time. It was too rough for her to anchor off the William Head quarantine station and she proceeded straight into port. There was little respite from the blow once alongside and an hour after docking, Aorangi snapped her mooring lines at V.M.D.'s outer wharf there and was pushed forward, smashing into the pier head, her gangway breaking away in the process.
When her lines snapped, she moved out of control about 500 feet forward and crunched through 12 feet of solid wharf timber before stopping.
C.P.R. agent R. J. Burland had a close call. He scurried from the gangway when the ship started to move. Seconds later an elevated platform leading to gangplank toppled over and fell between the ship and the dock. It was crumpled beyond recognition. The gangplank itself was left dangling over the side of the ship. As the Aorangi was blown ahead, she scraped the hull of a dismantled navy frigate moored on the opposite side of the pier.
Damage was negligible.
Victoria Daily Times, 27 October 1950.
The accident happened about' an hour after Aorangi had docked from 'down under.'
First the heavy steel 'spring line' snapped under the ship's weight as she was buffeted by the wind and heavy seas blowing in from the Royal Roads.
When this went other hawsers snapped one after another and the big ship slowly scraped along the side of the dock until her bow punctured the end of the wooden pier for a distance of eight feet.
The gangplank was smashed as the big ship moved down the dock. CPR passenger agent R. J.Burland was just coming off as it started to move and jumped to safety.
The Vancouver Sun, 27 October 1950.
If that was not bad enough, it was reported that "for the first time since she resumed trans-Pacific service after the war, the Canadian-Australasian Line's MV Aorangi arrived here from down under with less than a full passengers list. About 350 passengers were reported to be aboard. She sailed for Vancouver before noon."
![]() |
| Credit: The Province, 28 October 1950. |
When Aorangi came into Vancouver the evening of 27 October 1950, "except for a few shattered port holes and superficial damage about the bow, trans-Pacific liner MV Aorangi looked her usual self…" (Vancouver News-Herald).
The nostalgic chords 'Now Is the Hour' played by band of, amidships mingled with the shouted farewells of hundreds of passengers as RMS Aorangi moved out into Vancouver harbor this morning, bound for Australia. With 360 passengers aboard, the last big liner calling here will make only one more trip to 'down under.' Then, according to officials of Canadian Australasian Line Ltd., the well known visitor to this port will be 'retired for economic reasons.'
The Province, 2 November 1950.
With 360 passengers, composed of "a cross-section of Australian business life… wool buyers, flour millers, biscuit makers, bank managers, department store officials, importers and engineers," (The Vancouver Sun, 2 November 1950), Aorangi cast off from Vancouver at 10:00 a.m. on 2 November 1950 on her next-to-last sailing to the Antipodes. Intent on less serious pursuits, "Pretty, auburn-haired Irene Margelin, 22, steel company company receptionist and photographers model," was off to visit her parents in her Australia," spending the money she earned as a "pin-up girl."
As Aorangi coursed south, a "Save the Aorangi" campaign was announced on 7 November 1950 by Arthur Laing, Vancouver South M.P. , calling on the Vancouver Board of Trade to double its own efforts to try and retain her service. At the other end of her route, New Zealand's External Affairs Advisor, Frederick Doidge, said in Wellington that there were "reasonable prospects of returning the Canadian-Australasian Line's ship to its Pacific run."
Countering the optimism within 24 hours were authoritative reports that the Canadian Government was not going to grant any subsidy, citing that the Canadian Pacific Airlines service to Australia being "considered adequate" and that there was no precedent for paying a Canadian subsidy to a ship registered in another country and manned by a non-Canadian crew." Clearly, the era of the All Red Route linking distant Dominions in common purpose was over and Canadian papers referred to C-A as "an Aussie line."
Impervious to all of it, Aorangi continued south to arrive at Honolulu, early like in the good old days, docking at Pier 11 at 6:00 p.m. on 8 November 1950 instead of the follow morning. She came in with 485 passengers, landing eight there and embarking an equal number before departing at noon on the 9th. Aorangi reached Auckland at 5:00 p.m. on the 22nd and sailed at 10:00 pm on the 24th.
While she was in mid Tasman, word came from Canada on 24 November 1950. that "The Canadian Government was considering subsidising the liner Aorangi… said the Canadian Minister of Transport Mr. Lionel Chevrier today," in Vancouver, adding a final decision be made on his return to Ottawa. Aorangi ended her voyage at Sydney the morning of the 28th. Among those disembarking was American "millonaire" J.R. Miller who "admitted he was interested" in buying the ship.
The liner on the Pacific is dying. On Thursday the Aorangi will leave Sydney on her final round voyage, and every turn of her propellers will be a like a metronome, ticking away the last hours of comfortable and regular ocean travel.
The Sun, 4 December 1950.
Perched high in his tower atop the frowning cliffs of Vaucluse, the duty signalman at South Head signal station wrote carefully in his log book the entry: 'Aorangi, for Vancouver,' and added the date and time.
The date: Thursday, December 7, 1950. The time: 5:57 p.m. Significant day for Australia for it marked the last voyage of a mail liner between Australia and the North American continent.
Nodding gently to a lazy ground swell, the motor liner Aorangi slid through the Heads while shipping men in Sydney shook their heads in sorrow that such a calamity should be taking place because lack of a subsidy.
Truth, 10 December 1950.
Afforded last voyage rites and press coverage, Aorangi sailed from Sydney on at 4:00 p.m. on 7 December 1950 on what was to have been her final departure for Vancouver. The Sydney Morning Herald reported that the ship was already up for sale for the last six weeks and her she had lost the company 600,000 since returning to service in September 1948, mainly to the ship carrying on average only one-tenth of her cargo capacity owing to dollar exchange restrictions in Australia. American "millionaire" L.R. Millar was again aboard but disavowed any interest in purchasing the ship.
Aorangi arrived at Auckland at 6:35 a.m.on 12 December 1950. Among her cargo landed there was a Grumman Widgeon amphibian seaplane to be delivered a new company, Amphibian Airways, "which aims to keep open the trout fishing, deer and wapiti shooting areas of Southland, Otago and Westland."
On 16 December 1950 it was widely reported that "a London firm of shipbrokers is seeking offers for this trans-Pacific liner [Aorangi], with delivery offered in Sydney in the second week of January."
Upon his return on 21 December 1950, via Canadian Pacific Airlines, from New Zealand, John Diefenbaker, Conservative MP from Lake Centre, Sask. (and future Canadian Prime Minister), said that there was immediate need for federal aid to keep Aorangi in service, "emphasizing that Australia and New Zealand must not be allowed to feel isolated in face of Communist expansion in Asia."
In no particular hurry anymore, it was reported on the 19 December 1950 that Aorangi would arrive in Honolulu a day later than scheduled owing to another late departure from Auckland due to slow working by watersiders there. She was coming up with 388 passengers of whom 56 disembarked after she came alongside Pier 8 the afternoon of the 23rd and nine embarked before Aorangi resumed passage north at 11:00 p.m. Still trying to make up time, it was announced on the 28th, that she would bypass Victoria (the first time she had done that in her entire career) and sail direct to Vancouver to arrive on the 30th at 8:00 a.m. with 329 passengers.
In an evocative introduction that read astonishingly familiar to that penned by The Truth in Sydney upon her departure, The Vancouver Sun of 30 December 1950 wrote:
Perched high in his tower atop the Lion's Gate Bridge, the duty signalman at First Narrows Signal Station clocked in a 5:48 a.m. today a two-stacked ocean liner decked in green and gold paint and riding too high in the water for a profit.
He entered the time and the ship's nationality in his log, and it was a memorable entry, for it marked the last voyage of mail liner between Australia and New Zealand and the North American continent.
The ship, with several feet of anti-rust paint showing beneath the Plimsoll line, was the 17,490-ton diesel powered Aorangi of the Canadian Australasian Line.
![]() |
| Credit: The Vancouver Sun, 30 December 1950. |
The article went on to note that she came in with 329 passengers but had a capacity for almost 500, and a crew of 318 and a 2,309 tons of cargo out of a capacity of 6,000 tons. Aorangi had completed 75 round voyages on the route. Among her senior officer, Chief Engineer Allan A. McIntyre, 48, of Glasgow, had been aboard her since her maiden voyage as had Third Engineer Angus C. Brand, 42, of Sydney. Capt. William Whitefield, 59, had three and a half years left to go before retirement, and told the paper: "The Aorangi has been a happy ship, one of the best seaboats I've known."
![]() |
| Credit: The Vancouver Sun, 29 December 1950. |
On 29 December 1950 the Vancouver Sun reported that "Ottawa has reportedly turned 'thumbs down' on any federal subsidy to keep Aorangi in service and that "New Zealand officials in Ottawa are now resigned to the inevitability of the Aorangi service ending."
1951
Twenty-six years ago a ship called the Aorangi came to receive a boisterous welcome. There was waterfront happiness that day.
Today she departs for the last time; the waterfront is sad. The waterfront is wondering if ever again a huge passenger ship will link this port with distant lands.
There is always sadness when an old friend departs and you realize you may never see him again.
That's the way it is today along this wonderful waterfront of ours. Aorangi is going and she won't be back. And the thoughts of many Vancouver people go with this fine ship; they think of her arrivals and her departures, when serpentine broke in an orgy of color as she pulled away from her dock.
They think of gay parties in her suites as prominent people sailed away to spend the winter on sunbathed Hawaiian shores: they think of distinguished travellers who ran down her gangplank; they think of the Australian accents that filled our beer parlors when Aorangi was in port. And always they will see Aorangi majestically steaming in the harbor and everyone who saw her will remember how they envied those aboard.
If only I was sailing outbound! Well, they won't have those sad thoughts again: no more now will certain fortunate souls sail away from us in Aorangi.
The Vancouver News Herald, 4 January 1951.
The liner Aorangi sailed from Vancouver for Sydney for the last time today, and like an old lady reluctant to start out for home, hung on too long to CPR Pier.
The liner pulled off a heavy 'anchor.' solidly fastened to the pier, when one of the connecting hawsers wasn't cleared in time. The rope had to be sliced with a knife.
The ship sailed with a minimum of noise. A couple of hundred relatives and friends yelled their farewells but there were no streamers.
Today, a bellboy was asked if he would mind posing holding a valise. 'Sorry,' he said, 'it's against the union rules. I can carry flowers or other items, but not suitcases or trunks. That would be for the stewards. I cannot pick it up.'
The Province, 4 January 1951.
![]() |
| Credit: Times-Colonist, 5 January 1951. |
A burly stevedore standing near the freight hatch put in his own words what was felt by every person in the crowd of more than 1,000 that came down to CPR Pier B to watch the departure. 'There goes a great lady,' he said solemnly. 'It brings a lump to your throat, somehow. Sort of like your best friend was going away and never coming back.'
There was a lump in many a throat as the 17,491-ton liner pulled away from the dock and backed into the stream.
An unexpected incident took place as the dockhands prepared to cast off the last line. Before they could take up slack the green and white liner swung her full momentum against the steel hawser. There was an ear-splitting snap as the cable tore away the dock timbers under the iron cleat that holds the bow line. The 100-pound chunk of metal was swung clear of wharfside.For an instant it dangled from the end of the hawser at the vessel's bow; then it plunged into the oily green water of the harbor.
The incident, moved an Irish CPR policeman to philosophize. 'Almost like the old girl knew they were taking her away for the last time,.' he said quietly, "and she wanted to take some bit of Canada with her as a last memento."
The Vancouver Sun, 4 January 1951.
![]() |
| Credit: The Vancouver Sun, 4 January 1951. |
It's an impressive sight, though, seeing a liner draw put from her berth, a thousand window and port eyes ablaze, the starboard light shining bright green. It makes the night seem a little softer in its blackness. The voices of people leaving the dock seem unnaturally tight, high, anti-climactic. The gesture of the man who holds the souvenir kola-bear seems ineffectual. You feel that some mighty chorus, low pitched, should be singing, 'Now Is the Hour.' You went back in memory to other departures and arrivals if you saw the Aorangi off Thursday night.
The recollections kept crowding in while you made small talk with Ollie Goldsmith as he switched off the dock lights.
You sat in one of the silent cars on Dallas Road, watching the ship, hanging motionelss and jewel-studded in the black of Thursday night before nosing out toward Cape Flattery, and you wished wistfully that you could just be saying 'So long,' not 'Good-bye.'
Times Colonist, 6 January 1951.
![]() |
| Credit: The Province, 4 January 1951. |
A New Year and four days into it, witnessing the end of an era with the sailing of Aorangi from Vancouver at 10:00 a.m. on 4 January 1951 and from Victoria early that evening. Both ports were losing their last regular overseas liner that day and with it, The All Red Route. Part of her last outward cargo was 53 tons of paper from Sidney Roofing Ltd., Victoria although only a few additional passengers boarded there, including three being deported from the United States. In all, her final trip south started out with some 500 passengers seen off more than 1,000 and Aorangi managed to take a small piece of Vancouver with her or rather from Pier B, casting off, a line did not come off quick enough and plucked the bollard out of it concrete base like pulling a molar.
Not quite as rough as her first trip down from Vancouver to Honolulu when she was brand new with 70-ft. waves in a near hurricane, Aorangi's 75th voyage south was still, in the words of Capt. Whitefield, "the worst crossing in the past two a half years," with "several days of bad weather."
As the Aorangi tied up at Pier 11 at 7:45 this morning, the Royal Hawaiian band bid her a final aloha. Less than 100 people were on the pier to meet her 496 passenger, of whom 19 landed here.
The farewell salute by other ships in the harbor is scheduled at 4 this afternoon when the Aorangi sails for Australia and New Zealand. Harbormaster James Friel has asked for all ships to sound three blasts on their whistles.
Honolulu Star-Bulletin, 11 January 1951.
The Aorangi is not old as ships go. She is 25, still a graceful maiden, trim of line and sound of limb. But her day is slipping away. Few passengers can afford the time for an ocean voyage in these hectic days. And cargoes are for freighters.
It is to the air that man turns today for his conquest of time and space. And it may well be that when the Aorangi nudges up to the pier, one of the sky giants which have displaced her will be winging its way past Aloha Tower and into the far reaches of the Pacific.
Perhaps its sentimental pilot will dip a wing in salute to an honored and honorable predecessor. He can afford this magnanimous gesture. But for the people of Hawaii, the last coming and going of the Aorangi today will be the loss of an old friend, who has served long, faithfully and well, in peacetime and under fire of the enemy.
Let there be a special lei, a special 'Aloha Oe' as this old friend casts off her moorings and moves into the channel and heads for the southwest and home, for the last time. A veteran of the swinging seas is going hull-down over the horizon a lonely symbol of the passing of an era.
Honolulu Star-Bulletin, 11 January 1951.
![]() |
| Credit: Honolulu Star-Bulletin, 11 January 1951. |
It was on to Honolulu and more farewells by public and press when Aorangi, with 496 passengers, docked at Pier 11 at 7:45 a.m. on 11 January 1951, landing 18 there and embarking another 2 before departing at 4:00 p.m.. She also landed 95 tons of cargo and six bags of mail there. "Veteran Hawaiian travelers will remember the Aorangi as the most elegant liner to sail Pacific waters when it arrived on its maiden voyage in 1925." (Honolulu Star-Bulletin, 9 January 1951.). Interestingly, the Star-Bulletin also reported that "an Israeli firm is said to be interested in using the ship to carry passengers between New York and Haifa."
![]() |
| Credit: Honolulu Star Bulletin, 12 January 1951. |
A grand old lady of the seas said her last goodbye to Hawaii's tropical shores Thursday afternoon. Climaxing 26 years service, the Canadian-Australasian liner Aorangi, loaded to capacity, stood out of Honolulu harbor for the last time shortly after 4 p.m. The ship left for New Zealand and Australia with 493 passengers. 22 of whom boarded here.
Before lines were cast off, a warm and colorful panorama of aloha was visible at the dockside. Scores of visitors and hundreds of passengers hummed and swayed along with the traditional music of the island played by the aloha shirted Royal Hawaiian band. Except for slowly falling rain, the atmosphere was festive and happy.
Even the sun momentarily brushed aside thick overhead clouds to smile on the scene of activity at Pier 11. Those on board the 17,436 ton motorship seemed to be in open competition with persons on the dock, as hundreds of cameras maneuvered back and forth, up and down. One lei bedecked male passenger brought chuckles as he performed an original hula to the accompaniment of the band. In his hand were two beer cans, probably substituting for the usual gourds.
The air was heavy with the fragrance of multi-colored flower leis. Just as the gangway was about to be lowered, a young blonde traveler scurried up, her arms loaded with bundles. The crowd applauded and laughed. The deck officer shook his head slowly.
About 10 minutes after 5, two tug boats nestled against the green and white liner and gently glided her out of the harbor. The band played Aloha Oe and the now silent passengers began dropping their leis into the green water below.
Overhead, the sun broke through the clouds again in a last brilliant salute to one time queen of the Pacific.
Honolulu Star-Bulletin, 12 January 1951.
Arriving at Suva, Fiji, on 19 January 1951, a "large crowd of local people went down to the wharf when the Aorangi pulled out-- a crowd with a feeling of regret that this ship would no longer carry people from Fiji." (Pacific Islands Monthly, 1 February 1951).
Delayed by a gale with northeasterly winds of 48 mph which pummeled Auckland on 22 January 1951, Aorangi's last arrival there was delayed until the following evening: "A big crowd gathered to meet the Aorangi as she berthed at Prince’s Wharf with a full passenger list of about 480. More than 200 passengers disembarked at Auckland and an equal number is expected to embark before she leaves at the end of the week for Sydney on the last stage of her journey." (Press, 24 January 1951).
Departing for Sydney on 25 January 1951 with 455 passengers, Aorangi arrived there the morning of the 31st, passing the Heads at 5:36 a.m.. "Captain W. Whitefield, Canadian master of the m.v. Aorangi, stood on the 17,940-ton liner's bridge for perhaps the last time on Wednesday as the ship entered Sydney from Vancouver and Auckland. Captain Whitefield said "I have become quite attached to the old ship. I guess I'll be sorry to leave her when I do." (Daily Telegraph, 2 February 1951). Whitefield had been captain of the ship since 1944 other than her days under the White Ensign and her post-war refit.
As already announced on 10 January 1951, Aorangi would be laid up in Sydney pending sale or disposal. Capt. W. Whitefield was transferred to Union S.S. Co. to captain Waitamata on the Canada run and the crew paid off, including barman John McGregor who had served in her throughout her career. "I intend to have a few months' spell ashore to see what happens to old girl. If she is put in commission again for new owners, I will apply for a berth." (Daily Telegraph, 1 February 1951).
After destoring, Aorangi was moved to mooring at the Bradley Head dolphins on 16 February 1951.
The outcome of the talks between the Australian and New Zealand Governments on ways and means of restoring the Aorangi to service in the Pacific will be awaited with interest by many people on both sides of the ocean. The question goes far beyond whether a particular liner is available to carry passengers on the Sydney-Auckland-Vancouver run. A famous maritime link between four English-speaking nations has been broken--for the United States must be included, although served only indirectly -and this is the more deplorable because it was the last for mails and travellers. Of this extraordinary deprivation sight of a fine ship once the the largest motor vessel in world -anchored in Sydney Harbour is a pathetic reminder.
The Sydney Morning Herald, 21 February 1951.
All was not apparently lost for it was reported by the Sydney Morning Herald on 20 February that Australian Prime Minister Menzies had been in touch with New Zealand Prime Minister Holland regarding reviving a subsidy to facilitate Aorangi's return to service, with Canada, the three countries providing the required £156,000 per annum. This coincided with discussions in Ottawa by the cabinet on the matter which began earlier that month.
On 23 February 1951 Prime Minister Menzies announced in Canberra that "the steamer [sic] Aorangi would soon resume the Canada-Australia passenger service with financial aid from the Canadian, Australian and New Zealand Governments," and the issue of subsidy had been revived at the recent conference of Commonwealth ministers in London. In Sydney, C-A told The Sun that the service would resume in May and "application for berths was being accepted now." The biggest factor in the change about was Canada not only agreeing in principal to contribute to the joint subsidy but as per the original proposal, foot two thirds of the total cost with New Zealand and Australia. This was announced in Ottawa on the 23rd by Transport Minister Lionel Chevrier with Canada paying two-thirds of the $400,000 annual intervention. However, the initial agreement was for one year only.
In Wellington on 23 February 1951, Union S.S. stated their intention to dispatch Aorangi from Sydney on 5 April to Vancouver. This was followed on the 27th by the first newspaper announcement and release of sailing dates for the rest of the year from Sydney on 5 April, 7 June, 9 August, 11 October and 13 December.
A perhaps bewildered Aorangi, condemned and now reprieved in the space of a few months, was roused from her brief lay-up on 6 March 1951 and shifted from her moorings at Bradley Head to her familiar no. 5 berth in Darling Harbour to be refurbished, restored and readied for her 5 April return to service. On the 15th she was drydocked in Sutherland Dock for cleaning and painting of her hull and back at her berth by the 22nd.
Passenger accommodation on the R.M.S. Aorangi as far ahead as her August sailing from Sydney to Vancouver via Auckland is heavily booked, the Union Steam Ship Company announced this week.
All accommodation is booked for the Aorangi's April sailing from Sydney, and all cabin class and third class cabins are booked on her June sailing from Sydney. A limited amount of first class accommodation is still available. For her August sailing from Sydney first class and cabin class passages are still available, but the third class accommodation is booked out.
The Aorangi’s October sailing from Sydney is the first on which accommodation in all three classes is freely available. Beginning yesterday, when she left Sydney, she will make five trans-Pacific sailings this year.
Leaving Auckland in April, June. August. October, and December for Vancouver, the Aorangi will return to Auckland and sail for Sydney on May 24, July 26, September 27, and November 29. She arrives at Auckland from Sydney on April 9, June 11. August 13, October 15. and December 17.
Next year the Aorangi's first schedule voyage begins at Auckland on February 1 and ends at Sydney on February 4.
Press, 6 April 1951.
"Back in Business," Aorangi sailed from Sydney at her usual time of 4:00 p.m. on 5 April 1951 for Vancouver with 320 passengers, itself encouraging given the "off/on" status of the service. She went out minus 50,000 kangaroo skins intended for a U.S. shoemaker which were impounded as exceeding export quotas imposed by NSW even if the skins originated in South Australia and Queensland.
Once again Honolulu greeted me old familiar passenger and cargo ship Aorangi with the strains of Aloha Oe as she pulled into pier 10 yesterday morning. Her black and orange twin stacks were seen off port as early as 6:30 but it wasn't until 7 a.m. that she was securely tied and her gangplank lowered.
According to both crew and passengers, the trip up from 'down under' was unusually smooth except for some choppy seas on the Tasman between Sydney and Auckland
Honolulu Star-Advertiser, 21 April 1951.
After calling at Auckland 10-11 April 1951 and Suva, Aorangi returned to Honolulu at 6:30 a.m. on the 20th (arriving with President Wilson from the Orient), coming in with 405 passengers, landing 30 there along with 37 tons of cargo and embarking five for the coast before sailing at 3:00 p.m. She reached Victoria late on the afternoon of the 26th and Vancouver the next day.
Vancouver today welcome home a great lady and a queen of the seas.
RMS Aorangi returned to the long trans-Pacific run over which she has been for a quarter-century the proud mistress and unchallenged ruler.
Until a few weeks ago it looked as if the big diesel liner had sailed her last voyage on the 'All-Red Route' linking the three British Commonwealth countries of the Pacific.
Almost an hour off schedule, she nosed in under Lions Gate, Bridge at 6 a.m., a 'bone in her teeth' from the foaming bow wave that glistened white in the drizzly dawn.
She made what is believed her fastest passage from'down under' in her whole career-- 21 days.
Aorangi brought 2000 tons of, freight, a third of capacity, and 409 passengers.
She's booked solidly on subsequent runs for the next year.
The Vancouver Sun, 27 April 1951.
Keeping alive another tradition, Aorangi's mostly Australian crew again participated in Vancouver's Anzac Day wreath-laying ceremony at the Centotaph on Sunday, 29 April 1951, marching there from the Marine Building.
![]() |
| Aorangi at Victoria, 3 May 1951. Credit: British Columbia Archives. |
Aorangi cleared Pier B, Vancouver, at 10:00 a.m. on 3 May 1951. Among those sailing in her was Mrs. Olive Kelly, a war widow who lost two husbands in the war, and was now going home to Australia where her father would help look after her and her five young children: Tommy, aged 5; Joey aged 4; Claire aged 3, Danny, aged 2 and baby Jean who was six months old. The Vancouver Sun described cabin E-341 as "the liveliest spot on the ship" as well the most crowded with two infant cots shoe-horned in the space. Travelling in more style and certainly solitude were Canada's new high commissioner to Australia, C. Fraser Elliott; and N.J.O. Makin, Australian ambassador to the United States. In all, she cleared the B.C. Coast that early evening with 325 passengers aboard. On arriving at Honolulu at 1:00 pm. on the 10th, five passengers landed there along with 58 tons of cargo before she proceeded south after embarking 16 more.
For Aorangi, it was a welcome return to service but for her owners and shippers, a less welcome return to an endless cycle of strikes and labour unrest which increasingly crippled the economic life of both New Zealand and Australia after the war. When she reached Auckland at 4:50 p.m. on 22 May 1951, the port was well into another long walk-out by watersiders there and national servicemen had been detailed to fill their places. Even so, with no desire to get caught up in the endless delays or being "blacked" by Sydney longshoremen, Aorangi did not unload any of her 1,400-ton cargo for the port. When she sailed at 3:50 p.m. on the 24th, specatators were not permitted on Prince's Wharf.
The Sydney-bound Aorangi was crossing the Tasman right into another hornets' nest of communist led union action and was initially "blacked" by Sydney watersiders as she had been served during her Auckland call by the New Waterside Union there, itself created to rid the docks of communist agitators. When she docked at Sydney on the 28th, however, the union relented and the ship was unloaded as the Federal Cabinet in Canberra finally authorised prosecution of labour radicals.
With Aorangi ready to sail from Sydney at 4:00 p.m. on 7 June 1951 for Vancouver with 485 passengers, 69 of her seamen walked off the ship on the 5th to protest the government's issuing a summons for Federal Waterside Workers secretary Healy. After repeated unsuccessful attempts to sign on alternative crews, Union S.S. announced on the 6th that the sailing was "postponed indefinately" and sailings of Wanganella and Monowai also cancelled when their seamen also walked off.
Thus began the most protracted and tedious of the many labour issues Aorangi seemed beset with since her very reconversion since the war and would, more than even exchange issues and air competition, doom her commercial chances.
Aorangi's trans-Tasman passengers tried to book flights instead but for those bound for Canada, there were few prospects of alternate transportation and many were effectively stranded. Meanwhile calls to man the ship went unanswered day after day and on the 13th, reports came from Canberra that the government was considering replacing her seamen with ratings from the Australian Navy. To no avail, 150 seamen again refused the call for a crew made the next day even as most Australian unions stopped "blacking" New Zealand-bound ships. Subsequent calls were rebuffed into the 21st and by the 23rd, 30 such requests for seamen to man her went unanswered. The delay was costing the governments of Australia, New Zealand and Canada about £700 a day. Port charges for the idle ship stood at £12,000 by the 25th and men still aboard…. Stewards and cooks... were still being paid about 10/10/ a week.
![]() |
| Credit: The Sun, 27 June 1951. |
Suggestions to proceed with the proposal to man the ship with navy ratings increased by 27 June 1951 after some three weeks of endless delay, countered by the real logistical issues of repatriating them from Canada, etc. Meanwhile the decision by the Commonwealth countries to subsidize the service seemed ill-founded and Aorangi became a unwanted symbol of the anarchist and communist infested radical trade union movement in Australia and New Zealand. The ship and her passengers were going nowhere and her continued future seemed uncertain yet again just months after it appeared redeemed.
On 28 June 1951, Labour Minister Holt announced in Canberra that Union S.S. had been requested to make Aorangi "ready for sea as soon as practicable" and that the government would, if needed, ensure sufficient seamen would be provided from the Navy if needed. In response, Union S.S. set her sailing from Sydney on 5 July and the company would make a final good faith effort to call for a full crew before that. As a protest over the threat to use naval ratings, seamen walked off a number of ships in Australian ports. On the 30th, the line reported "big bookings" for the sailing and she was expected to depart fully booked with 480 passengers and 2,000 tons of cargo.
The deadline for Aorangi's civilian crew to sign on was 3 July 1951 and the Navy announced it had 69 handpicked ratings all ready to man the ship. When the deadline passed and with all departments manned except for seamen and firemen, her new naval crew embarked at 2:55 p.m. from a launch which came from Balmoral naval station amid tight police security.
Finally, after refusing a first call at 9:40 a.m. on 4 July 1951, most of her original seamen signed on to the second at noon that day and her naval ratings, most of whom were looking forward to the voyage, disembarked, "no longer required for duty" and after cleaning and preparing Aorangi "in naval fashion" for her voyage. Amid the traditional streamers of a Sydney "farewelling," Aorangi sailed at 4:00 p.m. on the 5th, after the most disulatory four weeks in her long career.
On reaching Auckland at 7:45 a.m. on 9 July 1951, Aorangi had 167 passengers landing there as well as heavy accumulation of 3,000 bags of mail and 484 tons of heavy baggage left over from earlier intending passengers who wound up flying to Auckland earlier during the strike. She embarked 190 for Suva, Honolulu and Canada for which she departed the following day.
With 305 passengers aboard, Aorangi arrived at Honolulu at 7:30 on 21 July 1951 where 23 landed at Pier 10, including U.S. Ambassador to New Zealand and his wife, who were there for a vacation, and she discharged 180 tons of cargo. For once, she benefited from another country's strike, and embarked 125 strikebound passengers from Lurline whose sailing from Honolulu was cancelled, and left at 4:00 p.m. with 329 passengers. Aorangi finally returned to British Columbia with her arrival, at 9:00 p.m. on the 27th, at Victoria, where she berthed just before 10:00 p.m., landing only 16 passengers there but 114 tons of cargo (including pineapple from Honolulu and Australian canned fruit and tinned fruit cake) and 700 bags of mail. Capt. W. Whitefield said that "the ocean was as smooth as a duck pond," on the run up from Honolulu but "passengers who recalled life aboard ship during the first few days after leaving Auckland were no so glib. Sea-sickness was a general complaint until the ship reached Suva." (Times-Colonist, 28 July 1951).
![]() |
| Credit: The Province, 28 July 1951. |
RMS Aorangi, proud survivor of a disappearing breed, slipped in with the sunrise this morning in the full swing of her second breather.
Delayed by strikes, half empty and bolstered by subsidies, the old lady never looked younger and she rounded into harbor on her seventy-seventh voyage.
The Province, 28 July 1951.
Aorangi docked at Pier B, Vancouver at 7:00 a.m. on 28 July 1951.
On 27 July 1951 the formal agreement implementing the subsidy paid to Canadian-Australasian Line was signed in Ottawa and 1 August New Zealand Prime Minister Sidney Holland praised the "spirit of British Commonwealth co-operation," which made it possible, adding "his government always had considered it essential that this service should be maintained."
![]() |
| Credit: The Vancouver Sun, 2 August 1951. |
The most important passenger sailing in Aorangi to the Antipodes from Vancouver on 2 August was a six-year-old "freckle-nosed young redhead named Donald," (Vancouver Sun) who, as grandson to Capt. William Whitefield, had a prize perch on the ship's bridge as she pulled out. "He was on the captain's bridge and he was proud as punch about it. He grinned a mile wide and climbed on a white-painted strut so he could see everything." Aorangi, encouragingly for a change, went out with almost double her normal lumber cargo, some 350,000 board feet of New Zealand as well as pulp and paper and a special load cotton tyre fabric for Australia. Just in time for sailing, came a supply of 200 drums of linseed oil from Alberta, for New Zealand. Aorangi cleared Victoria that evening and the last time she would do so at the V.M.D. Docks as the company was busy with its own shipbuilding and fitting work and no longer able to spare the sheds of the old Rithet piers. On her return and henceforth, Aorangi would use the Ogden Point piers.
With 427 passengers to her credit, Aorangi docked at Honolulu's Pier 8 at 7:00 p.m. on 8 August 1951, ten passengers leaving her there and 11 others embarking in time for her departure south at noon the following day. She had a longer than expected call at Auckland, arriving there on the 23rd amid the worst continuous downfall of rain so far that year, totalling some five inches in three days and badly delaying cargo working so that instead of sailing on the 25th, she did not clear for Sydney until the following day, two days late, where she passed the Heads at 6:22 a.m. on the 29th, docking at No. 5 Darling Harbour at 8:30 a.m..
Aorangi left Sydney at 4:00 p.m. on 6 September 1951 for Auckland and northern ports. Among those landing there on the 10th were nine sick and wounded New Zealand K Force troops returning from Korea who "had two topics of conversation-- the coldness of the Korean winter and how good it was to be home." (Press, 11 September 1951). On this trip, her 303 through passengers for North America included many Australian war brides making their first visit. Aorangi had 31 passengers to land at Honolulu on arrival, 13 hours behind schedule, at 4:00 p.m. on the 21st after more than 10 days of "constant bad weather" on the trip up and greeted by grey skies and persistent drizzle in "sunny" Hawaii. She was off at 11:00 p.m. for the mainland with 319 passengers.
Coming into Victoria on the morning of 28 September 1951, after making a splendid run north, averaging over 17 knots, but robbed of a possible record when she answered a distress call from the American 50-ft. yawl Dawn in distress, 30 miles south of Cape Flattery. After searching for the afternoon to evening over some 200 square miles, a U.S. Coast Guard patrol boat took over the hunt and Aorangi continued on her way, but instead of getting into Victoria the evening of the 27th, had to be content arriving at 7:00 a.m. the next morning where she landed 14 passengers at her Ogden Point pier before continuing to Vancouver at 9:30 a.m. where she docked at 4:00 p.m., seven hours late.
![]() |
| Credit: The Province, 4 December 1951. |
Vancouver Custom Guard Ridley F. Hawes saved the life of Aorangi steward Fred Paul on the night of 29 September 1951 when he slipped carrying two heavy suitcases alongside the ship and went straight into Burrard Inlet. Removing his jacket, Hawes dived in without hesitation seeing Paul out cold and floating towards the bow of the ship. He got hold of him and made their way to a fender log to hold onto until a line could be thrown to both. When Aorangi returned to Vancouver on 4 December, a special presentation of a set of cut glasses and silver tray was given to Hawes by George Christmas, Head Chef and Steward Fred Paul to the heroic customs guard.
![]() |
| Credit: The Province, 4 October 1951 |
From the moment the ship's bells chime out the 'hour before sailing' warning until the last handful of colourful confetti is flung, gaiety will reign. supreme at bon voyage parties on the Aorangi, when she sails, with her full complement of travellers bound for sunny climes, on Thursday, October 4. There'll be the strains of 'Auld Lang Syne' as fond farewells are said . . .there'll be cries of 'Don't forget to write" . . . as if any traveller ever had the time! There'll be excited laughter ...bright bon mots .. . . and, perhaps a few tears, soon to be flicked away. Gulls will circle in graceful swoops to., see what is all the excitement. For there is nothing quite like the exhilarating parties given oh the eve of departure of a big ship. And . . . when you go to say 'au revoir,' take a gift which says, 'Remember me!' Or, if you prefer, it may be sent directly to the ship from EATON'S! Elizabeth Yorke will assist you to choose appropriate gifts from the Hostess Shop.
Eaton's Department Store advertisement, The Vancouver Sun, 1 October 1951.
It was another busy, well-patronised sailing to the Antipodes for the revived Aorangi and when she left Vancouver on 4 October 1951, her Cabin and Third Class accommodation was sold out and only a handful of First Class cabins remaining. She also went out with another good cargo of 3,000 tons, mostly lumber and newsprint. Another 60 tons of newsprint and a few passengers went aboard during her short call at Victoria that late afternoon before Aorangi motored south with 468 passengers aboard. Putting in a fine run in good weather, she made Honolulu at 5:00 p.m. on the 10th, a day ahead of time, giving her through passengers a 20-hour layover there, not resuming passage until noon the next day. Of her passengers, 20 landed there with a few embarks for the south. Aorangi came into Auckland on the 23td and among those she brought to New Zealand was asylum seeker Countess Kinsky of Czechosloakia who had managed to escape the country to rejoin her husband who arrived in New Zealand two years previously. Aorangi arrived at Sydney the morning of the 30th.
![]() |
| Credit: The Daily Telegraph, 9 November 1951. |
Aorangi did not get far when she sailed from Sydney on 8 November 1951 after an eight-year-boy, Martin Miller, was found lost aboard after being separated from his mother, the two having gone aboard to farewell his aunt who was sailing. When he was discovered, a police launch went out to the ship off Sydney Heads to take him off and back to Darling Harbour for a tearful reunion with his relieved mother. With no more excitements, Aorangi reached Auckland on the 12th and on departure from Suva, had 356 passengers aboard. Arriving in beautiful weather at Honolulu at 9:00 a.m. on the 24th, she landed 46 passengers and 179 tons of cargo there before continuing to the mainland at 4:00 p.m..
"After a mild battering by high winds off Cape Flattery, " Aorangi reached Victoria at 6:30 p.m. on 30 November 1951, landing 44 passengers there and still had 317 disembarking on final arrival at Vancouver the following morning. She came in with a 2,158-ton cargo including 21,766 cases of New Zealand butter, 700 cases of fish, wine and wool. It did not impress The Vancouver Sun which wrote: "The motorship Aorangi arrived at Pier B today riding so high out of the water that her $400,000 annual tri-government subsidy was showing," pointing out that the crew outnumbered the passengers by one with 317 passengers out of a capacity of 500 and 2,158 tons of cargo out of a capacity of 6,000 tons. "A ship's officer said the subsidy shared by Canada, Australia and New Zealand now seems inadequate to cover the operating losses…"
![]() |
| Aorangi at Vancouver. Credit: University of British Columbia, Wallace B. Chung and Madeline H. Chung Collection. |
Aorangi's preparations for her Vancouver departure on 6 December 1951 included elaborate plans by the aptly named Chief Steward, George H. Christmas, for another holiday Down Under for the ship's passengers and crew, in Auckland:
First task will be the making of a 25-pound, three-decker Christmas cake for the first-class passengers' dining salon, a two-decker for cabin class, another for steerage, and a further half-dozen or so for the sailors, firemen, stewards and engineers. Responsible for cake-baking operations is head baker Ernie Hamilton. About a week out of Auckland the pre-Christmas preparaations in the galley will be stepped up by Chef Christmas'staff of 30 butchers, bakers and cooks. For there will be monster plum puddings to make at least 35 succulent 25-pound tom turkeys and other main course items to get ready such as eight pigs, 200 pounds of pounds of sucking, fish and half a dozen 18-pound hams.
On the Aorangi's Christmas dinner menu are such taste-bud tempters as Guinea fowl en casserole,; braized-pineapple ham with sauce Madeira; roast gosling, seasoning and apple sauce; roast tom turkey, split sausage and cranberry sauce; English chump chops and mushrooms; sheeps tongues en gelee; Melton Mowbray pie; Yule log en surprise; passion fruit; plum pudding with brandy sauce; mincepies, English style, and dozens of other delicacies.
A traditional tinsel-and-ornament atmosphere is assured for several 12-foot BC fir trees will be aboard when the ship sails. The Aorangi's five-piece orchestra under 'Spike' White will enliven the Christmas dinner. Later the evening will dance under there, ed lights in the open-air verandah cafe on 'B' deck. 'Down Under' temperatures during the Christmas season are usually close to 90 degrees.
The Aorangi's Christmas party this year, according to the ship's schedule, will take place in Auckland harbor, with the vessel arriving Sydney on New Year's day. Christmas Day aboard ship, according to tradition, will see the chief mate, chief engineer, chief steward and other department heads 'shout' (or treat) their men to a drink. There'll be drinks for all the crew regardless of whether they are 'cowboys', (young, first-trippers); old sea dogs; or 'shielas' (females) serving aboard as stewardesses..
It's shaping up for a memorable Christmas, 1951, for all aboard the Aorangi. All that is except Chef Christmas. For after planning and superintending a holiday meal for 750, he'll settle for an aspirin and a Christmas 'dinner' consisting of a roll and a bit of cheese.
The Vancouver News Herald, 5 December 1951.
"Aorangi sailed out of here today pretty much on time and with a full passenger list. She's a good ship. Every time I've ever been aboard her I've said the same thing. The 485 aboard her today will discover it." (Pat Terry, The Vancouver Sun, 6 December 1951) who added: "I see a question has been tabled in Commons by a local MP asking about the ship, according to reports. Canadian Maritime Commission in reply said "no consideration is being given to replacement of the Canadian-Australa sian liner Aorangi." What's all that mean? What I'd like to know, if that report is correct, is what or who inspired the question. She certainly isn't an old ship. And she's absolutely 100 Al at Lloyds. Right in her prime." This was further reported in the Province the same day: The Canadian Maritime Commission said Wednesday no consideration is being given to replacement of the Canadian-Australasian liner Aorangi. The statement was tabled in the Commons in reply to Arthur Laing (L., Vancouver South). He had asked if consideration was being given to assisting replacement of the Aorangi by a "fast combination passenger and reefer ship of Canadian registry capable of quick turnabouts?"
![]() |
| Credit: Honolulu Star Advertiser, 14 December 1951. |
Aorangi, with 270 through passengers and 30 landing there, reached Honolulu at 7:30 a.m. on 14 December 1951, docking at Pier 8 after a very rough passage south:
The Aorangi's veteran skipper, Capt. William Whitefield, said this week's crossing from Vancouver and Victoria, B.C., was 'the roughest I've ever known on this run.' We hit gales off Cape Flattery (the northwestern tip of Washington's Olympic peninsula, only minutes out of Victoria harbor) and during our second day out, the Aorangi was really rolling. Swells were exceptionally heavy most of the way.' Of course,' Capt. Whitefield said, displaying a captain's usual pride in his ship, 'the Aorangi took everything in stride.' Though a good many passengers were sick on the way over, most of them looked chipper on arrival here.
Honolulu Star-Advertiser, 14 December 1951.
After embarking 28 passengers, Aorangi sailed for Suva at noon. Arriving at Auckland on Boxing Day, she helped set a record of no fewer than 43 vessels, including 29 overseas ones, totalling 304,780 grt in the harbour or at anchor waiting for a berth that day. Aorangi proceeded to Sydney on the 28th where she arrived on New Years Day, Among those landing were 40 Australian war brides visiting their parents.
![]() |
| Aorangi at Vancouver, 1952. Credit: William Bros. photograph, City of Vancouver Archives. |
1952
![]() |
| Credit: The Daily Telegraph, 10 January 1952. |
When Aorangi departed Sydney's Darling Harbour on 10 January 1952, one passenger-- Gordon McKay, aged 2-- received special attention. Suffering from haemophilia, all precautions were set in place for his safe passage including a steward with the same blood type agreeing to be a donor if necessary and the ship's surgeon, Dr. Mobbs, having the ship's carpenters mask or smooth off any rough edges or fittings in his cabin that might cause unintended cuts or bruising. The Red Cross Blood Bank put aboard six bottles of blood serum as well.
![]() |
| Credit: Honolulu Star-Bulletin, 28 January 1952. |
Aorangi, passing Sydney Heads outbound at 5:21 p.m. on 10 January 1952, called at Auckland 14-15th and Suva and arrived at Honolulu at 8:30 a.m. on the 26th with 391 passengers, among them the newly appointed New Zealand ambassador to the United States, L.K. Munro, and family. Mr. Munro was also editor of The New Zealand Herald. Thirty-eight passengers landed there and another 15 embarked for the coast before the liner sailed at 4:00 p.m.. Aorangi got into Victoria at 9:30 p.m. on 1 February and Vancouver the following morning.
![]() |
| Credit: The Vancouver Sun, 2 February 1952. |
The year got off to an encouraging fiscal start when it was announced in Canberra on 18 January 1952 that the three Commonweath countries would continue their subsidy of the Canadian-Australasian service for another year under the same terms.
Among embarking in Aorangi at Vancouver's Pier B on 7 February 1952 was a group of newly ordained Irish priests bound for missionary work in Fiji. She embarked a few additional passengers and one automobile during her short ensuing call at Victoria making for close to 500 aboard. Making another smart passage south, she made Honolulu at 8:00 p.m. on the 13th instead of the following morning. The port was busy enough with shipping to require the ship, once she had landed her 35 passengers and cargo at Pier 8 at 7:30 p.m., to shift to Pier 7 at 7:00 a.m. the next morning to make room for the arriving President Wilson, inbound from the Orient. Aorangi proceeded south at noon after embarking 40 additional passengers. She arrived at Auckland at 11:56 a.m. on the 26th and left the following day to end her voyage at Sydney on 3 March.
Passing out of Sydney Heads at 5:11 p.m. on 14 March 1952, Aorangi was right on time and called at Auckland on the 17-18th and resumed passage north at 3:40 p.m. and after Suva, had 497 passengers aboard. There were 53 passengers (including Mr. Leonard P. Lord, chairman of the board and managing director of the Austin Motor Co., England, and family) and 140 tons of cargo to land at Honolulu on the 28th but arriving there at 4:20 p.m., she made fast work of the call and sailed for the mainland at midnight.
![]() |
| Credit: The Vancouver Sun, 7 April 1952. |
Aorangi arrived at Victoria on 4 April 1952, with 483 passengers discharging just a small portion of her 1,580 tons of inbound cargo before leaving for Vancouver at 11 p.m. to dock there at Pier B the following morning.
Bound for Down Under, Aorangi cleared Vancouver on 10 April 1952, with 346 passengers, and making her usual call at Victoria, reached Honolulu at dawn on the 17th, docking at Pier 8 at 7:00 a.m. and landing 10 passengers and 189 tons of cargo. She embarked another 28 passengers there, including five Maoris before resuming passage south at 4:00 p.m. Among those aboard was A.W. Broadbent, assist. New Zealand Trade Commission who was going home after five years in Canada who told the Honolulu Star-Bulletin that increased restrictions imposed by New Zealand and Australia would seriously affect foreign buying, something which was already impacting Aorangi's cargo carryings. She came into Auckland at 9:00 p.m. on the 30th and arrived at Sydney on 5 May at 9:55 a.m. where, according to The Sun, "customs officers made a big hail of contraband goods concealed aboard," including 10,080 American cigarettes and 58 tins of tobacco.
![]() |
| Credit: The Daily Telegraph, 16 May 1952. |
Four o'clock on a Thursday afternoon in Darling Harbour, Sydney, meant, every two months, R.M.M.S. Aorangi casting off her lines for Canada and true to the quarter of a century routine, she was off again on 15 May 1952. Not taking any chances with her group of 23 tourists off on a trip to Canada, United States and Europe, tour guide Mrs. J. Maxwell, had an overnight bag filled with sea-sickness tablets. After Canada and America, the group would sail to England in Empress of Scotland.
![]() |
| Credit: The Sun, 20 May 1952. |
Aorangi reached Auckland at 11:10 a.m. on 19 May 1952 where two girl stowaways, Shirley Craig, 20; and Shirley Barton, 26, who had been secreted aboard in Sydney by two ship's cooks, were remanded to the police, and the cooks sacked. At Auckland, Aorangi took on some special deck cargo for Suva:
Five 18-ft vachts are expected to leave Auckland for Suva aboard the Aorangi on Tuesday to compete in the James J. Giltinan 13-ft world championship trophy contest. About 40 crew members will leave by air on May 28. The yachts are the Intrigue, from Christchurch, and the Tarua, Komutu, Waimarie, and Kia Ora from Auckland. It is reported that only one boat, the Top Dog, will represent New South Wales and that Queensland will send two boats. The contest will be decided in three races on June 1, 4, and 8.
Press, 15 May 1952.
Coming in with 478 passengers of whom 19 were disembarking there, Aorangi made Honolulu at 7:00 a.m. on 31 May 1952. After embarking 29 passengers and loading 550 tons of pineapple and general cargo, she sailed north at 10:00 p.m..
With "a full passenger list [488] and somewhat larger cargo than usual." (Times Colonist, 6 June 1952) and a good five hours late owing to headwinds off Cape Flattery, Aorangi arrived at Victoria the afternoon of 7 June 1952, and made a hash of her docking, smashing her bows into the pier when she did not lose way fast enough, and damaging not only the pier but 24 ft. of her bows with the stem pushed backed about 10 ft. above the waterline. After a temporary patch was effected, she proceeded to Vancouver to dock there the next morning.
To properly repair the damage, however, Aorangi would have to be drydocked at Esquimalt and after unloading, sailed at 9:00 a.m. on the 10th back to Victoria for repairs by the Victoria Machinery Depot costing $4,000-5,000 and entailing bending steel plates over the damaged sections and pouring cement between the plates and the stem. Already scheduled, permanent repairs would be effected on arrival at Sydney when she would undergo her annual drydocking and overhaul. Aorangi would return to Vancouver on the 12th, her originally intended sailing date for the Antipodes, and that would be put back to the afternoon of the 17th.
![]() |
| Credit: Times Colonist 12 June 1952. |
On 11 June 1952 Aorangi entered the dry dock at Esquimalt at 6:00 a.m., becoming the fourth largest merchant ship (after Queen Elizabeth, Empress of Japan and Empress of Canada) to use the government-owned graving dock. It was announced on the 14th that plans for a temporary repair would be dropped in favour of a permanent job, installing a new stem and plates as well as considerable repainting, repairing sea valves, pulling and inspecting her tailshafts and in all respects, giving her a general overhaul in a very short amount of time.
A real credit to V.M.D., the repairs proceeded exactly on schedule and it was announced on 16 June 1952 (coinciding with her return to Vancouver's Pier B) that a fully repaired Aorangi would sail from Vancouver at 4:00 p.m. for the Antipodes. To make up some of the lost time, she would skip the outbound call at Victoria which The Province assured its readers was "no reflection on the dock." She went out with 480 passengers and an especially heavy cargo including a large consignment (1,300 tons) of food stuffs and perishables for Honolulu, once again crippled by a dock strike.
![]() |
| Credit: Honolulu Star-Advertiser, 25 June 1952. |
A most welcome sight to local residents with empty larders, Aorangi arrived at Honolulu at 6:30 a.m. on 24 June 1952 at Pier 10 with 143 tons of eggs, 19 tons of frozen eggs, six tons of fresh meat, 10 tens of canned meat, 10 tons of onions, four tons of potatoes,47 tons of buttermilk, 30 tons of bacon, 86 tons of butter, eight tons of garlic, 14 tons of yeast and 182 tons of malt. Coming in with 457 passengers, one stowaway from the northbound trip being returned to Sydney, landing 29 passengers at Honolulu and embarking 21 more before sailing that evening.
Aorangi got into Auckland on 8 July 1952, still five days late, and among those she landed there was Sir James Gunston, former Mayor of Auckland, returning from six-month visit to Britain. Interestingly, when interviewed on arrival, Capt. W. Whitefield told reporters that collision in Victoria "was caused by engine room trouble." Aorangi departed for Sydney the next evening where she docked at 8:30 a.m. on the 12th. There, customs agents descended on her, harvesting a haul of "5,000 cigarettes, some tobacco and two wrist watches."
Aorangi's arrival in Sydney and her ensuing overhaul and Lloyd's survey there coincided with a flurry of newspaper reports there on the doubtful future of the liner and that she "is likely to be withdrawn from the Pacific service soon," and that "shipping men close to the liner's owners have said that the cost of repairs and refitting will be so high as to be unjustified." (The Daily Telegraph, 2 July 1952). On the 18th, it was reported that Aorangi "is to tie-up in Kerosene Bay for two months, during which time she will undergo a survey" and would sail from Sydney for Vancouver on 25 September. She shifted to the Kurraba Point dolphins on the 19th. On 2 September, Aorangi shift back to no. 5 wharf, Darling Harbour to begin storing and loading for her return to service. She sailed for Auckland at 4:00 p.m. on the 25th.
Aorangi's ensuing arrival in Auckland coincided with the announcement by the Union Steamship Co. on 28 September 1952 that Aorangi would be retired that following May, without replacement, "because of her age." According to The Daily Telegraph, "the company said Aorangi was in her 28th year and operation in this service beyond May 25 could not "confidently be maintained," adding "shipping authorities said last night that cost of repairs and refitting was too high to be justified," and clearly her Lloyds survey had indicated concerns either with her structure or machinery or both. Aorangi, already scheduled to arrive in Sydney on 5 May 1953, upon which she would then be withdrawn from service.
As the only ship on the North America-Antipodes route, Aorangi's impending withdrawal was more than the inevitable demise of a ship after long and hard service, but the prospect of the sea connection being severed without replacement. This was now more keenly felt given the government commitments by Australia, New Zealand and Canada towards maintaining it by operating subsidy and the news revived rumours that Matson Line were already contemplating reviving their pre-war service but with smaller ships than their pre-war Mariposa and Monterey.
Meanwhile, Aorangi continued on her northbound voyage, only now coursing inevitably to oblivion. She called at Auckland 29-30 September 1952, the day after the announcement was made in Wellington:
Because of the age of the passenger vessel R.M.S. Aorangi, the Canadian Australasian Line will discontinue its service between North America and New Zealand and Australia, effective with the completion of the south-bound voyage at Sydney on May-25, 1953. The vessel is now in her twenty-eighth year, and operation in this service beyond the date mentioned could not confidently be maintained.
New Zealand Prime Minister Holland issued a statement on the impending withdrawal:
'I am sure that everyone will deplore the cessation of the liner Aorangi’s service, for it means the disappearance of the British flag from passenger ships between North America and New Zealand,' said the Prime Minister (Mr Holland). When the decision to withdraw the Aorangi next May was referred to him tonight.
He said that, as the public was no doubt aware, the three Governments concerned—Canada, Australia and New Zealand—had for some considerable time made the continuation of the Aorangi's service possible, and each country had provided a substantial subsidy.
Mr Holland said that, during the last Commonwealth Prime Ministers’ conference in London, he had had discussions with the Prime Minister of Canada (Mr Louis St. Laurent) and the Prime Minister of Australia (Mr Menzies), and they had made an arrangement to continue the service. 'I am sure that all three Countries would be prepared to continue a reasonable subsidy, but it is not finance that has been responsible for the decision to withdraw the Aorangi,' Mr Holland said. 'The question is entirely one of seaworthiness, and, of course, in that respect no risks can be taken.'
Press, 29 September 1952.
Aorangi's luck seems to have deserted her entirely and she was a full 16 hours late departing Auckland, on 1 October 1952, when workmen had to patch up a four-foot hole in her hull when a shell plating door was wrenched off on the 29th.
On 30 September 1952, Union S.S. Co. announced that upon Aorangi's withdrawal, the Canadian-Australasian Line would be wound up and any future services maintained with North America would be under the Union name and management.
In Canada, especially in Victoria and Vancouver, the news was greeted with dismay tinged with considerable nostalgia for Aorangi was their last overseas liner and the last remnant of the once fabled White Empresses that once maintained their share of The All Red Route in which Canada played such a pivotal role. Lead editorials in the B.C. press tinged nostalgia with the stark reality of a changing world:
All this is an indication that the South Pacific is experiencing the same changes as have already taken place on the North Pacific. The day of the luxury liner is past. Only freight ships, some of which carry a few passengers, now ply the greatest of oceans. Empresses, still ply out of Vancouver, but in the sky, not on the water.
The Province, 30 September 1952.
Hawaii's reaction to the news waited closer to Aorangi's arrival at Honolulu. "Her age has been telling on the Aorangi for some time. The vessel's estimated arrival times have been notoriously uncertain. Her expected Sunday arrival from Suva, for instance, is 48 hours behind the first announced schedule." (Honolulu Star-Bulletin, 7 October 1952). On reaching Honolulu on 12 October 1952, Aorangi had 432 passengers aboard when coming alongside Pier 10 at 7:00 a.m., landeding 47 there as well as 470 tons of cargo and embarking another 11 before sailing for Canada at 4:00 p.m.. Capt. Whitefield told the Honolulu Star-Bulletin: "I will have another year after that [Aorangi's final voyage] before I reach retirement. I'll get myself a nice quiet cargo ship for 12 months and that'll do it."
Aorangi arrived at Victoria on 19 October 1952, discharging wool from Australia, hides from New Zealand and tinned pineapple from Hawaii, and Capt. Whitefield told the Times-Colonist, it was a quiet, peaceful crossing, "one of the finest I've experienced in years." She was still a full two days late when docking later that day at Vancouver owing to the shell door repair and "further minor mechanical trouble," en route.
Departing Vancouver the morning of 23 October 1952, Aorangi arrived at Victoria at 3:00 p.m. for a brief call before and with 490 pasengers aboard, heading out into the Pacific which offered no solace to the old girl, either. On the 26th Capt. Whitefield radioed that the ship had just missed the centre of a gigantic 1,000,000 square mile storm with winds of 85 mph off the Washington coast. The ship reported at 10:30 p.m. to be bucking winds of more than 50 mph with 20 to 30-ft. high waves and had hit 80 mph winds off Cape Flattery. On arriving at Honolulu on 10:30 a.m. on the 31st, Aorangi bore the scars of the blow including one of the windows in captain's cabin broken out and patched with woodafter a wave hit the ship while Capt. Whitefield was in bed. She landed 10 passengers there and embarked 22 others before sailing at 6:00 p.m..
Participating in her own demise, Aorangi numbered among her cargo unloaded at Honolulu 16 cases of spare parts for the first Canadian Pacific Airlines Comet 1 jetliners due to be delivered in November 1952 and the first proving flights set for January from Vancouver, via Honolulu, to Sydney.
![]() |
| Aorangi in Mort's dry dock, Woolwich, Sydney in November 1952 reunited with Captain Cook (left) which as Letitia, she was built alongside at Fairfields in Govan. Credit: passengershipsandliners |
It was a long slog south for Aorangi with more engine trouble and when she finally reached Auckland at 6:40 a.m. on 13 November 1952, two days late, The Press reported "At no time on the voyage was she making full speed." She left Auckland the following afternoon for Sydney, arriving there on the 18th but not passing the Heads until 12:30 p.m. Things were obviously very amiss with one of her engines and on the 21st, she shifted from no. 5 Darling Harbour to Mort's Dock in Woolwich "where it was ascertain that special adjustments were necessary to one of the engines." (Daily Commercial News, 25 November 1952).
![]() |
| Credit: Daily Commercial News, 25 November 1952. |
On 23 November 1952 Union S.S. announced in Wellington "that engine adjustments have made necessary the postponement of the Aorangi's departure from Sydney by 14 days." She would now sail from Sydney on 11 December and from Auckland on the 16th for Vancouver. This caused serious anxiety for she was expected to take out a heavy Christmas mail consignment to arrive in North America by Christmas and now would not reach Vancouver until 3 January 1953. Aorangi returned to her Darling Harbour berth on the 24th.
In some end of the year accounting, Ottawa issued a brief report on the Canadian Government subsidy to Canadian Australian Line since 1 April to 30 September 1952:
The Canadian Government has paid $83,333 in subsidies to the Canadian Australasian Line Ltd since April 1 last for operation of the passenger ship Aorangi between Canada and Australia. From April 1 to Sept 30 the vessel carried 1,403 to Australia and New Zealand and 1,123 to Canada. The passenger run will be discontinued because it is uneconomical.
The Expositor, 11 December 1952.
With nary a mention in the press, Aorangi sailed from Sydney on 11 December 1952, passing the Heads at 5:27 p.m. and reaching Auckland at 9:30 a.m. on the 15th. It was another Christmas in the South Pacific for her 401 passengers and crew but the traditional newspaper accounts of it were missing as no one had much time for the Dowager Queen of the Pacific in her dotage and into her dying days. Aorangi docked at Pier 28 (normally a cargo only pier and even her berthing seemed downgraded now) owing to the simultaneous arrival of she, Lurline and President Cleveland, Honolulu at 8:45 a.m. on the 27th to land 35 passengers and 817 tons of cargo. She resumed passage north at 6:00 p.m.
![]() |
| Aorangi at Vancouver, 1952. Credit: William Bros. photograph, City of Vancouver Archives. |
1953
New Year. Last Year. Aorangi arrived at Victoria shortly before 10:00 p.m. on 2 January 1953, her 84th arrival at the port. "Scores of Victorians drove slowly along Dallas Road to watch the beautifully lighted ship sail into port." (Times Colonist). She managed to part a bow hawser coming into the Ogden Point dock but came safely alongside. Landing 12 passengers and a small amount of cargo (canned pineapples, wood and wine), she departed at 12:50 a.m., reaching Vancouver on the 3rd at 7:00 a.m. with 400 passengers and 2,000 tons of wool, skins and powdered milk. Capt. Whitefield said the trip "was completely routine," and her crew remarked that a "stiff tailwind" helped speed her passage up the coast. Among those landing was New Zealand's new Trade Commissioner for Canada, N.S. Mountain, wife and two sons.
Canadian Australasian's liner RMS Aorangi from Port of Vancouver on Thursday at 10 a.m., bound for Australia and way points on what will be her third last sailing from this side before she retires after long and faithful service.
The familiar vessel will be carrying a full list of 485 passengers, with every accommodation class filled.
The Aorangi's career on the Pacific will end like this: One complete voyage to Australia and back, starting on Thursday; a second complete voyage starting out of Vancouver about two months later, then a final one-way sailing from Vancouver to Australia on May 14. Her retiring date is set for June 8 in Sydney.
All told, she has five more Pacific crossings to make.
The Province, 6 January 1953.
![]() |
| Credit: The Vancouver Sun, 9 January 1953. |
Aorangi cleared Vancouver's Pier B at 10:00 a.m. on 8 January 1953. fully booked, an otherwise routine continuation of voyage 84 south that was anything but being the first of her final three sailings from the port as its last overseas liner. Victoria, too, began its own "countdown" upon the liner's call there between 4-5:00 p.m. that evening. She went out in a snowstorm as perfect foil to the sultry South Pacific climes that were her destination: "The white mantle of winter which the Aorangi took with her as she slipped majestically through First Narrows was expected to disappear later in the day as the vessel headed westward through the Strait of Juan de Fuca toward the Pacific. " (The Province, 8 January 1953). In additional to a capacity list of passengers of 492 to her credit, Aorangi's holds took out a good cargo, including 1,763 tons of cattle, chicken and hog feel from milling firms in British Columbia and Alberta, fresh eggs and malt.
A day late owing to "boisterous winds" on the way down, Aorangi came alongside Honolulu's Pier 8 at 10:15 a.m. on 16 January 1953 with 459 through passengers and 32 landing there and was off again at midnight having added 28 to her list. She reached Auckland at 3:35 p.m. on the 28th and reached Sydney the morning of the 3 February, passing The Heads at 5:36 a.m. and alongside no. 5 Darling Harbour by 8:00 a.m.. The Sun reported on the 5th that with her imminent retirement, her final passengers, eager for a souvenir, had taken to pinching teaspoons to the extent that they put out dessert spoons for the last breakfast before docking which were harder to secret away.
Maxine, six-year-old daughter of actress Marie Rubenfeld, liked being 'investigated' by reporters before her mother was ready to talk with them on arrival in the Aorangi this week.
Maxine said, 'The food in the ship was awful and I got a bad pain from eating it.'
The reporter supposed she was looking forward to some of Mummy's cooking, but the child hastened to assure her that this was not the case. 'Mummy isn't a very good cook, either,' she said.
The Sun, 5 February 1953.
In a soon to be ended routine, Aorangi sailed from Sydney's Darling Harbour at 4:00 p.m. on 12 February 1953 and called at Auckland 16-17th. Late again due to strong headwinds, Aorangi reached Honolulu on the 28th at 4:00 p.m. rather than the previous day as first announced. She came in with 492 passengers and landed 39 at Pier 8 and embarked 15 for the coast before sailing at midnight.
Now a day a half late after the relentless headwinds dogged her all the way north, Aorangi came alongside Ogden Point docks, Victoria, at 2:00 p.m. on 6 March 1953 where 32 passengers disembarked and 200 tons of cargo discharged before proceeding to Vancouver. She arrived there early on the 8th and remarkably, arrived with the only remaining liner on the North America-Antipodes route, Lakemba of the Pacific Ship Owners (Singapore) which had been given accommodation for 98 passengers in 49 two-berth cabins and like Aorangi after the war, began regular sailings between Vancouver and Sydney in 1948. It would be the first and only meeting with the very last of a dying breed. Lakemba would continue, alone, the traditions of The All Red Route until 1967.
As for Aorangi, The Vancouver Sun was gracious enough for the old girl, despite coming in a day and half late, saying she "showed her abilities during the passage battling strong headwinds and heavy seas." Capt. Whitefield added, "Weather was fine but winds slowed us down," and The Sun reported that her "engineers nursed the vessel's engines carefully during the voyage." Her inbound cargo included 200 tons of New Zealand onions, wool from Australia, tinned juices from Honolulu and 70 tons of fresh lobster from Sydney.
Like she had done so many times before, the familiar vessel made a very impressive sight today as she eased slowly away from the CPR pier and backed out into the harbor, and away.
The Province, 12 March 1953.
The only good thing about the ailing Aorangi is that she might be scrapped in England and the boys will get a chance to see the Queen crowned.
That's the latest rumor to sweep the seamen's decks these last days aboard the 29-year-old motor vessel, the last visible link between the luxury south sea cruises of a generation ago and the quick trans-Pacific flights of today.
She left Vancouver last week on her second-last voyage. Rumor has it, the seamen say, that the 17,000-ton ship will carry a pay load to the Coronation and then head for the junk heap at Glasgow, where she was built. And every seaman,steward, cook, greaser, wiper and handyman, polishing the ship's fading glories for the return half of her next-to-last trip, hopes he'll go along on the Aorangi's final (rumored) voyage.
For unless they go, most of the 300-odd crewmen will find themselves high and dry on the beach. The MV Aorangi has been for many years the only ship to ply the leisurely, three-week passenger route along the south sea lane between Vancouver and Sydney, Australia. All the crewmen admit she's been a good ship, a happy ship.'And a lot of the boys will be lost after the last trip,' muttered 32-year-old Vic Hayes of Sydney.
'Most of them will be like me; join another ship,' said crew member Matt Harrison, 24, of the same city. For Geoff Thomson, 28, of Red Cliff in Queensland, the Aorangi's last trip will mean the end of his life at sea. 'It's a good run,' he said. 'But I've been to sea too long. I feel like settling down.' Other crew members said Australia has no other deep-sea passenger ships.
Those who want to stay at sea will have to sign on with vessels of other nations or go into the coastal trade. Crewmen like 62-year-old Bert Jarvis of Sydney, who sailed in the original run through the Panama Canal and who remembers the Vanderbilts and other millionaires who crossed the Pacific on the Aorangi when they had more time, will miss the ship most.
'In those days we made a cruise of it,' he said. 'I'm very sorry to leave the old ship; she's been a good mate to me.' But he confided: 'The youngsters don't appreciate her.'
One of the 'youngsters,' 23-year-old Bruce Miller of Sydney, admitted the Aorangi was 'a nice old ship.'
'But she's a little bit too slow,' he said.'We need some thing speedier.'
The Vancouver Sun, 19 March 1953.
With 454 passengers aboard, Aorangi reached Honolulu on 20 March 1953, docking at Pier 8 at 7:00 a.m. and landing 17 of her passengers there and 18 more joining her before she headed south.
The olive-drab one-time queen of the Pacific, the Aorangi, will leave at 6 tonight for Suva, Auckland and Sydney, completing the second to her last trip before being retiring from service.
Aboard the motorship which has plowed the Pacific Ocean for more than a quarter of a century will be 456 passengers, of whom about 100 are under the age of 10.
Ships officers said many of the children may be offspring of ex-American servicemen and Australian and New Zealand women who are going home down under for a visit before the Aorangi is pulled out of service.
Honolulu Star-Bulletin, 20 March 1953.
Aorangi arrived at Auckland at 2:35 p.m. on 1 April 1953. A stowaway, Bruno Lisicicki, 19, was found aboard three days after leaving Honolulu but refused permission to land in New Zealand, being stateless and without papers. "He is being kept aboard the liner under heavy guard in a cabin with barred portholes." (Press, 7 April 1953). At Suva, he had disapppeared from his cabin and later found again and locked up. Aorangi reached Sydney on the 6th at 10:00 a.m.. Another large party-- 25 couples in all-- of Australian war brides and their American husbands and children were among those disembarking and were settling in Australia which was said to be cheaper and offer better opportunities than America. Plenty of "brain power" from America, in the form of 20 Fulbright Scholars, coming to study in Australia, also were among those aboard.
As a trial experiment as a possible replacement of sorts for the Canadian-Australasian service, Orient Line announced on 2 April two experimental voyages for Oronsay in 1954 from Sydney on 1 January and 21 May respectively routing the liner from Australia not via Suez, but via Auckland, Suva, Honolulu, Vancouver and San Francisco and then return to Sydney via the same ports and then to the U.K. via Suez.
When Aorangi reached Honolulu at 7:00 a.m. on 2 May, she had 516 passengers (56 to land there) and two stowaways including the unfortunate Bruno Lisicicki who no one seemed to know what do to with and still aboard, and another who came aboard at Suva. Aorangi brought in a large cargo for the port-- 601 tons-- including 254 tons of fresh meat and 34 tons of lobster tails. After embarking 17 passengers, she left for the coast at 9:00 p.m..
![]() |
| Credit: The Vancouver Sun, 11 May 1953. |
Sentimental shipping men shed a tear for the Canadian-Australasian liner RMS Aorangi when the 17,500-ton ship docked at Ogden Point today.
She is on the last voyage of her 29-year lifetime,driven from the sea lanes by the twin troubles of old age and keen competition from speedy air-liners. But the green hulled lady from 'Down Under' is playing out her string in regal style. She gave her full passenger list a pleasant crossing, from Australia to Hawaii to British Columbia, and will be booked to capacity for the return voyage, leaving Vancouver Tuesday.
Times Colonist 9 May 1953.
Arriving at Victoria on 9 May 1953, Aorangi had 50 passengers and over 200 tons for the port.
The proud old RMS Aorangi slipped quietly into the Port of Vancouver for the last time in her life late Saturday.
The weather was bleak and cold, one of the coldest May nights in Vancouver history, and was in keeping with the death-like chill that dogged the tired Canadian Australasian liner half way across the Pacific.
When she sails Thursday the Aorangi will head for Sydney and thence to a British bone-yard where she will end her 28-year career on the scrap heap.
Only hope for an extended life is if the 17,491-ton ship is purchased and registered in a country that doesn't require a particularly, high standard of safety and efficiency.
Steward George Allen is making his last trip for sentimental reasons, but he recalls that when he sailed aboard the Aorangi in 1934, American millionaires lunched in the dining saloon on caviar and Turkish figs. Today they would eat roast beef, if they took the Aorangi at all.
In those days, too, the Aorangi sailed from Vancouver with deckloads of automobiles and the holds bulging with Canadian newsprint, but development of Australia's own industry couple with, of caused by the country's inability to secure dollars, resulted in less and less cargo.
Several times, one or another of the four Sulzer diesels that once were the pride of the Pacific broke down, causing the ship to lose a little, speed while engineers completed repairs that have become more necessary on every trip.
When she finally arrived here the Aorangi was two days late, with the result that passengers bound for points beyond Vancouver had missed their train and plane connections and had to stay aboard overnight.
A scratchy record blared out Gracie Field's version of 'Now is the Hour' on the ship's PA system
The Vancouver Sun, 11 May 1953.
The RMS Aorangi has been a good ship, comfortable and safe, says Capt. William Whitefield, master of the 17,000-ton liner since he took over in 1944. If the Aorangi does go to Britain to be scrapped, Capt. Whitfield hopes that he will be on the bridge to guide her to her final destination. But to Radio Officer Joe Taylor, the RMS Aorangi has been more than a trans-Pacific passenger liner. She has been 'home.' Radio Officer Taylor is the veteran member of the crew, has been aboard for 26 years. 'She has served pretty well during those years,' says Mr. Taylor. 'She has kept going with hardly a rest, which is quite a record when you consider that she does about 15,000 miles on every voyage.'
The Province, 11 May 1953.
![]() |
| Aorangi at Pier B, Vancouver, prior to sailing on her last voyage to the Antipodes. Credit: Clinton H. Betz photograph, City of Vancouver Archives. |
Aorangi came into Vancouver for the final time late on 9 May 1953, but it all mere prelude to an genuine affection and sorrow expressed in the Canada's great Pacific port at the final sailing of its last overseas liner as to the strains of "Now Is the Hour" over her tannoy, Aorangi pulled out of Pier B, and into Burrard Inlet and turned towards Lions Gate at 10:00 a.m. on the 14th. Her longtime pilot, Capt. Andrew Sinclair, took her out for the last time and the city paused to say good bye as did the local newspapers:
A throaty chorus from every deepsea ship, tug and other vessels in the harbor was Vancouver's heartfelt farewell to RMS Aorangi today.
The veteran Vancouver-Australia passenger liner cast off its lines a few minutes after 10 a.m., backed slowly out into the harbor to begin its last voyage across the Pacific to Sydney. When she arrives there on June 4 she will be retired . . .the end of a career which began out of this port in February, 1925
Ships in the harbor, including; about 40 deep sea vessels, began blowing their great whistles when the Aorangi sounded its routine 'going astern' signal of three blasts, and kept it up until the liner headed out through First Narrows.
But for the sadness of the occasion, it sounded more like a riotous New Year's Eve than a farewell to an old friend.
For office workers whose buildings line the waterfront at Pier B, work slowed down or came to a complete stop as stenographers and executives alike took a minute out to watch the Aorangi's last sailing.
CPR ramp and the dock itself were crowded by others come to watch.
On the dock alongside the veteran ship as she sailed were a number of officials, among them William Manson, vice-president of the CPR and Capt. Gerald Lancaster, harbor master.
On the bridge was the Aorangi's master, Capt. William Whitefield, and the veteran Vancouver pilot, Capt.Andrew J. Sinclair, who was to guide her out of the harbor and take her to Victoria as he had done many times before.
It was a farewell which seemed to develop in feeling as deepsea ships, tugs and other' vessels one by one got into the spirit of the occasion.
And the Aorangi, the old lady of the Pacific passenger liner fleet, remembered her manners as she listened to the farewell chorus. She said goodby to Vancouver with a series of long and short blasts on her bass- voiced whistle.
The Province, 14 May 1953.
![]() |
| Aorangi departing Vancouver for the last time. Credit: Clinton H. Betz photo, City of Vancouver Archives. |
The shriek of hundreds of steam whistles and sirens signalled good bye to the RMS Aorangi today as the 17,461-ton liner sailed out of Vancouver on her last voyage home.
Freighters lined up in the stream awaiting berths at grain elevators formed a guard of honor as the tired old luxury liner, flanked by a fleet of little tugs, moved slowly out under Lions Gate Bridge.
The troubles that led to the Aorangi's removal from the Sydney-Vancouver run were still with her as she left. Her passenger list was "considerably less than capacity" and she rode high in the water indicating a lack of paying cargo.
As the 28-year-old Aorangi slipped away from CPR pier B, two passengers, William Barrie, formerly of 1967 Areola, Burnaby, and his son, Jim, took up their pipes and played the 'Skye Boat Song'.
Hundreds of people lined the dockside snapping pictures and a few threw, out streamers. Capt. William Whitefield, the Aorangi's skipper, could be seen taking pictures from the ship.
Then the CPR's Princess Patricia, standing by away from the dock to give the Aorangi sea room, hoisted the signal 'Good Bye and Good Luck'.
The Vancouver Sun, 14 May 1953.
![]() |
| Aorangi passing under the Lions Gate Bridge, outbound from Vancouver. Credit: City of Vancouver Archives. |
The familiar RMS Aorangi to which the waterfront today bid a last farewell was more than a passenger liner sailing the blue Pacific between Vancouver and Sydney. She was a world pioneer.
The green-hulled liner slipped her lines at 10 a.m., to back out into the harbor, then slowly gather speed to head out through First Narrows on the start of her final journey to Australia. When she arrives in Sydney June 4, her crew will be paid off or dispersed to other company ships, and the vessel retired.
And thus ends a colorful career which began out of Port of Vancouver one day early in February, 1925.
The Province, 14 May 1953.
Victoria, too, paid its respects and rekindled memories when Aorangi called there later that evening
A grand old lady, stately and proud of her years, will good-bye to Victoria this evening and leave behind her nostalgic memories of the romance and drama of blue water travel.
Although she'll be bound for the shipbreakers, Aorangi will wear her red duster and her Royal Mail flag serene dignity and fitting grace, just as she did 28 years four months ago when she first stood into Victoria harbor.
Times Colonist, 14 May 1953.
![]() |
| Credit: Times Colonist 15 May 1953. |
Several hundreds of Victorians were on hand to witness Aorangi's final call there. She would be, for sure, the port's last big regular liner and Oronsay would certainly not be be calling there, as Capt. Whitefield explained: "It is economically unfeasible for a large liner to call at this port," he said. "Cargo and passenger offerings do not justify the cost-nor the risk. "There is a definite risk every time you bring a big ship in here," he added. "Port of Victoria does not have adequate facilities for a liner the size of Oronsay (25,000 tons), which Orient lines plan to use on the run." Aorangi, with the assistance of two tugs, took nearly 40 minutes to dock Wednesday in a light cross-wind. 'The smallest miscalculation or accident could result in several thousand pounds damage the ship,' said Capt. Whitefield." (Times Colonist, 15 May 1953). Among those making a special visit to the liners were Major A.H. Jukes of Mount Newton who made the maiden voyage on her from Southampton to Victoria; "Cap'n Charlie" Harris, aged 86, who was her pilot on Aorangi's maiden arrival and Fred Snelling, longshoreman, who worked her on her first call there.
As Aorangi cleared Victoria, saying farewell to British Columbia and the Dominion, "cars still lined Dallas Road at dusk, as the ship's friends strained their eyes to watch her hull down on the horizon." (Times Colonist, 15 May 1953). Aorangi went out with 389 passengers aboard.
![]() |
| Credit: Honolulu Star-Bulletin, 21 May 1953. |
There were 31 passengers landing at Honolulu on final arrival there, two and a half hours late, at 9:30 a.m. on 21 May 1953 at Pier 8 including local resident Mr. & Mrs. David L. Oleson who always travelled in the ship and specifically wished to make one more trip in her. Among those watching her berth was Capt. Axel W.P. Jensen, Honolulu's Harbor Master who, as mate of a coastwise schooner in Sydney witnessed Aorangi's maiden arrival there. In addition to her passengers, Aorangi landed a heavy 958-ton cargo there and embarked 33 passengers before departing for Suva at 6:00 p.m.
What was already presumed to be the case was made official on 1 June 1953 when it was announced that "Aorangi has been sold to a firm in Britain for breaking up and will sail from Sydney this month on her final voyage" direct to the unspecified breakers.
When the Aorangi arrived at Auckland today it was gaily decked in flags, and although there was no organised welcome for it, the sterns of a good many other ships in the harbour were crowded with cheering crew members.
Press, 4 June 1953.
![]() |
| Aorangi at Princes Wharf, Auckland, on her final call there. Credit: New Zealand Herald photograph, Auckland Libraries. |
Auckland said a final farewell as did New Zealand to one of its most important and beloved ships as Aorangi called there one last time, arriving at 4:15 p.m. on 3 June 1953. When she came in, it was reported that there were more than 100 Australian and New Zealand warbrides and 117 of their children aboard who had made special "last trip home" in the old ship, with 30 mothers and 54 children landing there and the others bound for Sydney. "We had very fine weather all the way,” said Captain William Whitefield. “It has been a good voyage.” (Press, 4 June 1953).
![]() |
| Credit: The Vancouver Sun, 5 June 1953. |
It was to be a tender moment as several hundred persons gathered at the dock here today to bid nostalgic farewell to the liner Aorangi.
There were some damp eyes as the veteran liner, last seagoing passenger link between Canada and New Zealand-Australia, prepared to leave on the final leg of her voyage between Vancouver and Sydney, Australia.
A farewell message was broadcast over the loudspeaker system and a band played the Maori farewell song, 'Now is the Hour.' But, as it turned out, now wasn't the hour. A mechanical fault prevented the Aorangi from leaving the dock.
She didn't sail for Sydney until midnight and when the Old Lady of the Pacific slipped out she was watched by only a determined handful of spectators.
Vancouver Sun, 5 June 1953.
The liner Aorangi left Auckland last night for Sydney and a shipbreaker’s yard. Several hundred persons were on Prince’s wharf to give the ship a royal send-off, but only a staunch handful remained when it was announced at 11 p.m. that the ship would not leave for at least half an hour, because of a mechanical fault. The liner sailed at 11.50 p.m.
Press, 5 June 1953.
![]() |
| Credit The Daily Advertiser, 10 June 1953. |
Crew members said that the liner was developing engine defects all the way from Vancouver. Frequently she was running on three of her four engines, with speed down to nine knots. When one engine was repaired, another broke down.
Daily Advertiser, 10 June 1953.
What The Sydney Morning Herald called "The Grand Old Lady of the Pacific," limped into Sydney late on 8 June 1953 to end her final commercial voyage. Whilst crossing the Tasman for the last time, it was confirmed that she had been sold "to a British shipbreaking firm for an undisclosed figure." She finally passed The Heads at 9:00 p.m., and was expected at 6:00 a.m. and a good 15 hours late as the Tasman gave her a final dusting with strong westerly headwinds and more engine trouble made her late leaving Auckland.
![]() |
| Credit: The Sydney Morning Herald, 10 June 1953. |
A big crowd cheered the Aorangi as she berthed at No. 5 Darling Harbour. Ships at nearby wharves gave a friendly blast of welcome on their sirens.
The Sydney Morning Herald, 10 June 1953.
Arriving too late to dock that evening, Aorangi came alongside no. 5 Darling Harbour one last time at 9:00 a.m. on 9 June 1953. Among the 366 passengers disembarking were Mr. and Mrs. Roger Goodrich, of Rochester, New York, on a fleeting visit inspired only by Mr. Goodrich's passion for steamships and liners. A member of The Steamship Historical Society of America, he had numbered voyages in Noronic, its second to last trip before it destruction by fire in Toronto, and a number of steamers in the Great Lakes and Mississippi. Among those on the wharf as Aorangi came alongside was Capt. J.G. Macphall, wharf superintendent of Union S.S. Co. who supervised the liner's berthing at Circular Quay on her maiden arrival at Sydney.
The Daily Telegraph (10 June 1953) reported that "Aorangi's engines failed several times during her last voyage. Engineers yesterday begin repairs which take a week to finish."
On arrival at Sydney to end voyage 87, Aorangi chalked up 173 crossings of the Pacific, totalling some 1,350,000 nautical miles, not including her wartime transport voyages which were estimated to have added another 500,000 miles. Of her crew, John Gordon Macgregor, 58, Cabin Class barman, he had joined Aorangi on her third voyage and make 170 crossings in her whilst Chief Radio Officer C.F.G. Taylor has been aboard for 26 of her 29 years afloat, including her war years. Capt. William Whitefield, who assumed command of the vessel first in 1944, was completing his 50th Pacific crossing.
![]() |
| Credit: The Daily Telegraph, 10 June 1953. |
Although not reported in the general press at that time, the sale of Aorangi for scrap to British Iron & Steel Corporation was finalised on 9 June 1953 for an undisclosed sum.
On 9 June 1953 most of Aorangi's 317 crew were paid off and a skeleton crew would be engaged the following week to take her to "a British shipbreakers yard."
![]() |
| Credit: The Daily Telegraph, 13 June 1953. |
Ronald Monson penned a wonderful article on Aorangi's final arrival and history in The Daily Telegraph of 13 June 1953 that is quoted in part below:
On Tuesday a disgruntled old lady of the sea slipped into Darling Harbour and tied up at her birth.
The passenger liner Aorangi, 17,486 tons, once the pride of the Canadian Australasian Line, had steamed the last of her 1,300,000 miles on the Pacific run and had come to pay off her crew before starting on her voyage back to her birthplace on the Clyde for breaking up.
Aorangi did not trail the customary paying-off pennant at her stern. She was in no mood for such traditional frivolities.
Asked why she had dispensed with the pennant, one bitter deck-officer replied: 'Probably because we would have to pay someone time and-a-half to take it down.'
Many among the old-timers on the waterfront murmured darkly that the 'Old Lady' had been murdered.
Overtime rate for the crew, go-slow methods adopted by workers during her long-drawn-out refit after the war, and Red-inspired strikes, they said, had killed any chance she might have had of paying her way.
Others pointed out that she carried a full passenger list on her last voyage, and that the cargo she carried on her last outward voyage to Vancouver was the best loading she had had since she resumed her Pacific run in 1948.
'Why,' they said, 'she carried skins, wool, and timber, and, for the first time since the war she had shipments of mutton, lamb, and pork. Then she also carried about 50 tons of crayfish tails, and 150 tons of Australian cake for Vancouver.' Cake and crayfish tails! The Old Lady was certainly battling hard for cargoes.
There was a saying on the waterfront on that going until she broke her last crankshaft.
Passing her Chief Engineer (Mr. W. C. Falconer) on the main companionway, I asked him how her engines were shaping.
'As good as ever,' he replied cheerfully. 'Just need a few spare parts, and they'll be as good as ever.'
'As good as ever,' snorted an old hand, who heard this remark. 'Well, why is she always late at nearly every port?'
With all these remarks being tossed about the Old Lady was justifiably morose.
Some say that the strain of breaking the farewell streamers that bound her to the wharf on every sailing day strained those famous diesel engines.
But these days had to end. To use a touch of modern slang, her motors had 'had' it, apart from other considerations. On one recent departure, when she went stern-first out of Darling Harbor, her motors could not be induced for a time to go from astern to ahead. She went close to the Pyrmont wharves.
Her construction was soldily British, the steel so hard that in one modernisation of cabins, workmen had trouble in cutting bulkheads.
Now she is destined for shipbreakers in the United Kingdom. She may come back to us reincarnated as motor cars and refrigerators.
The Sun, 15 June 1953.
With repairs to her engines completed, Mr. W.E. Hancock, Sydney manager for Union S.S. Co. announced on 16 June 1953 that Aorangi would undergo engine trials alongside her wharf in Darling Harbour the following day and would depart for Glasgow on the 18th and travel out via the Suez Canal with only one stop, at Aden, for bunkers. She would be commanded by Capt. W. Whitefield with W. Falconer as Chief Engineer and G. Cooper as Chief Steward. No passengers or cargo would be carried and it was planned to repatriate her crew by air back to Sydney seven days after arrival. There were no lack of applicants to sign on for the "seamen regard the voyage to England as a first-class holiday on full pay, as because the Aorangi will carry neither passenger not cargo. The crew will be allowed a holiday in England before being flown back to Australia." (The Argus). In the end, it came down to drawing 100 slips of a total more than 150 from a hat outside the Shipping Master's Office on the 17th to pick her final crew. One of them, Harry Hammond, cabin steward, had been on Aorangi's maiden voyage to Sydney.
![]() |
| Credit: The Sydney Morning Herald, 18 June 1953. |
Aorangi's final departure from Sydney, fittingly enough, would her traditional one at 4:00 p.m. on Thursday, 18 June 1953.
Tearful Farewell for Liner's Last Voyage: More than 500 people gave the trans-Pacific Aorangi (17,490 tons) an emotional farewell as she sailed for Scotland from Sydney on her last voyage. Aorangi left Darling Harbour 75 minutes late. As she drew from the wharf women wept; spectators sang 'Auld Lang Syne' and 'Now is the Hour.' One of the crew dropped one of Aorangi's hand trolleys into the harbour as is a gesture.
Warwick Daily News, 25 June 1953.
Before she departed, W.E. Hancock entered business associates and locals who had for so many years been connected with the ship in port to a cocktail party in the music room. 'Aorangi at times has caused us many headaches, but on behalf of the company I thank you for your teamwork and co-operation,' he told them.
All the way down the harbour liners, freighters, ferries and small harbour craft sounded a friendly farewell on their sirens and whistles.
The Royal Australian Navy send the following farewell from H.M.A.S. Australia: 'We are sorry to lose an old friend of many years standing in these waters. Captain, officers and ship's company wish you luck on your last voyage.'
The Sydney Morning Herald, 19 June 1953.
Seventy-five minutes late due to a problem securing a shellplating door, Aorangi pulled away from No. 5 Darling Harbour at 5:15 p.m. as Otranto from the adjoining pier, flew signal flags saluting a fellow veteran.
After Aorangi cleared the Heads, her master, Captain W. Whitefiield, radioed to Sydney the following message: 'We are now on our last trip-- to the shipbreakers' yard. The ship is putting her best foot forward as though she is telling us 'there is life in old girl yet." (Sydney Morning Herald).
In a final post mortum on the ship's demise, The Sun of 21 June 1953 wrote:
Union leaders and many crew members claim that the Aorangi's four old six-cylinder diesel engines brought about her downfall. They were always breaking down and costing huge sums to repair they claim.
But the vessel's owners and engineers deny this.
A senior officer in the ship said on Thursday, two hours before the Aorangi cleared the Heads:
'These engines are old but they are as good as the day they were put into the ship. They were experimental and made the Aorangi the biggest and fastest motor vessel in the world when she was built. They don't compare with modern diesels which have reached their high standard largely through knowledge gained from these. We've had breakdowns, but we've maintained schedules reasonably well. The ship can still do 16½ knots.
The thing that really has crippled this ship is overtime and working conditions.
An example is in the galley staff aboard-- cooks, butchers, bakers. On her last eight weeks' roundtrip a number got between £150 and £200 overtime besides their wages plus accommodation. Every member of the crew ate the same food, from the master to the bellboy. That galley group's overtime alone was almost as much as my wages. Three men earned more than £300 for the voyage-- a rate of £1800 a year, and all found. Other overtime throughout the ship ranged up to £150.
The providor staff, under certain award conditions, looked after 1.2 passengers and crew. In the Oronsay, under British articles, which may come on to this Pacific run, the providor staff looks after 3.8 passengers and crew and get microscopic overtime.
But we sail under Australian articles and anyone who can successfully operate a deep-sea steamship line under them is a wizard.
Shipbreaking workers Dalmuir are ensured of continuity of employment until the end of the year with the allocation of the contract for the breaking up of the 17,190-lon liner. Aorangi. The vessel, built by Fairfield, Govan. in 1924, is due to arrive at the Dalmuir yard of Arnott Young and Co on Thursday while the employees are on holiday. Apart from the work provided at the yard, scrapping of the Aorangi will provide 12,000 tons of much needed scrap for Lanarkshire steel mills.
Aberdeen Evening Express, 21 July 1953.
With nary a press mention or any problems to occasion it, Aorangi came into the Tail of the Bank on 24 July 1953 and proceeded up the river of her birth the next day to the Dalmuir, Scotland, yard of Arnott, Young and Co.. On the 31st, it was reported that her crew was being flown home to Australia via BOAC. Aorangi was broken up beside the P&O liner Chitral (1925/15,248 grt) which had arrived that February.
![]() |
| Finished With Engines: Aorangi at the breakers, Dalmuir, Scotland. Credit: Trident, January 1954. |
I climbed her gangway with a sense of sadness… Eerie silence hung over the deck above. The long stretch of teakwood that ran forward, deck-quoit markings in white paint against the brown planking, climbing so slightly with her sheer, was empty and deserted. Then I was on boat deck, peering into cabins. There was about her an air of silent mystery like the Marie Celeste, as if her crew had vanished hurriedly, no man knew where. The New Zealand Herald and the Sydney Daily Telegraph, alien to Clydeside… lay on the Chief Officer's setter. A pair of abandoned white canvas shoes had been flung carelessly on the deck. My haunting sense of sadness increased. From the wheelhouse windows, the forecastle head was astonishingly clean and orderly, as if she could put to sea tomorrow. Then I was idly thumbing the Bridge Notice Book
Honolulu, February 28th, 1953. Blue uniforms will be worn tomorrow. But tomorrow was gone, and blue uniforms would never be worn in Aorangi.
Honolulu to Victoria, B.C. Clocks will be advanced thirty minutes to-night. But the brass clock was silent, the hands stopped at twenty minutes to eight.
And there was her last course marked on a chart of the Firth of Clyde. They had brought her up to Gourock where the pilot had taken over, and the steering compass now showed an immovable course N. 50 E., the card motionless as it nailed to the bowl. None now to peer into the binnacle and murmur 'Watch your steering!' Nobody to pace the bridge vigilantly examining the blue Pacific horizons. There was about it all a horrible sense of desertion, as if men had wantonly abandoned this gallant creature they themselves had created. I fought against the melancholy that oppressed me.
Passengers not allow forward of the breakwater read a notice up forward, and where no one again would muster was painted" "TO ALL MUSTER STATIONS… I pass through an oak-panelled smokeroom, with small tables, curtains still looped on windows, as they had been on long Pacific runs when the harder element of the passenger list thumbed poker decks and called for yet another bottle of Canadian rye. Today, 3.45, Children's Party, read another notice chalked on a blackboard. Ghost children!... Nor had I been the only pilgrim to Messrs. Arnott Young's yard. There had been one other, the designer of her diesel engines, a Mr. Tucker, once in the service of the Fairfield Shipbuilding Company. She had been his first motorship and he passed anxious, sleepless nights wondering if his design would be a success. Mr. Tucker had no need to worry. Had he in 1924 been gifted with second sight, he would have seen, as I did, his beautiful Aorangi speeding across the Pacific somewhere east of Fiji, a triumph of ship construction and design.
Now she had returned to die on the river where she was born.
Oliver Kemble, Trident. January 1954.
![]() |
| In a press photo dated 18 November 1953, Aorangi's forward funnel is removed at the breakers. Credit: eBay auction photo. |
The Aorangi had completed a career of twenty-eight years of useful employment as a mail and passenger liner and during the war had served with distinction. She was the last of the many interesting and valiant trans-Pacific liners which had become a tradition on the West Coast and main link for travel between the British Empire countries in the North and South Pacific.
The All-Red Route, 1893-1953, J.H. Hamilton.
R.M.M.S. AORANGI (1925-1953)
173 Crossings (Vancouver-Sydney)
1,750,000 nautical miles (including war service)
Like most truly successful pioneers and pacesetters, R.M.M.S. Aorangi is best remembered, on the occasion of the centenary of her maiden voyage, for her steadfast and enduring qualities over 28 years service. As such, she proved equal to her predecessors Makura (28 years) and Niagara (27 years) faithfully coursing from True North to Southern Cross on The All Red Route twixt far-flung Dominions across distant seas.
Now is the hour when we must say goodbye
Soon you'll be sailing far across the sea
While you're away, o, then remember me
When you return, you'll find me waiting here
Now is the Hour… the traditional farewell song of New Zealand and the Gracie Fields' recording (1948) which was always played over Aorangi's tannoy on departure from Vancouver, Victoria, Honolulu, Suva, Auckland and Sydney:
Built by Fairfield Shipbuilding & Engine Co., Govan, no. 603
Gross tonnage 18,724
Length: (o.a.) 600 ft.
(b.p.) 580 ft.1 in.
Beam: 72 ft. 2 ins.
Machinery: four six-cylinder two-stroke single acting Fairfield-Sulzer diesels
13,000 bhp, quadruple-screw
Speed: 17.5 knots service
18.24 knots trials
Passengers 436 First 284 Second 227 Third Class (as built)
248 First 266 Cabin 125 Third Class (post-1937)
212 First 170 Cabin 104 Third Class (post-1948)
Officers & Crew 328
Across the Pacific, Liners from Australia and New Zealand to North America, Peter Plowman, 2010
The All-Red Route, 1893-1953, J.H. Hamilton, 1966.
Glamour Ships of the Union Steam Ship Co., Jack Churchouse, 1981
Merchant Fleets: Union Steamship Company of New Zealand, Duncan Haws, 1997
North Star to Southern Cross, John M. Maber, 1967
Ships that Passed, Scott Baty, 1984
Aberdeen Evening Express
Auckland Star
Auckland Weekly News
Belfast Telegraph
Daily Commercial News
Daily Mirror
Daily News
The Daily Record
The Daily Standard
The Daily Telegraph
Edinburgh Evening News
The Evening News
Evening Post
Evening Star
Greymouth Evening Star
Hampshire Advertiser
Honolulu Star-Advertiser
Honolulu Star-Bulletin
The Islander
Los Angeles Times
Liverpool Journal of Commerce
Lloyd's List
New Zealand Herald
New Zealand Times
Northern Whig
Otago Witness
The Press
The Province
Poverty Bay Herald
San Francisco Daily Journal of Commerce
San Francisco Examiner
The Scotsman
The Sun
The Sydney Morning Herald
The Times
Times Colonist
Vancouver Daily World
Victoria Daily Times
Vancouver Sun
The Blue Peter
The British Builder
The Engineer
Marine Engineer
Marine Engineering
Pacific Marine Review
Sea Breezes
The Shipbuilder and Marine Engine Builder
Shipbuilding and Shipping Record
The Sphere
Syren and Shipping
Trident
The Motor Ship
Auckland Libraries
Auckland National Library
British Columbia Archives
City of Vancouver Archives
Lyttleton Museum
The Museum of Transport and Technology
National Australian Maritime Museum
National Library of Australia
National Library of New Zealand
New Zealand Maritime Museum
New Zealand Ship and Marine Society
Power House Museum
State Library of South Australia
University of British Columbia, Wallace B. Chung and Madeline H. Chung Collection.
https://www.britishnewspaperarchive.co.uk/
https://www.clydeships.co.uk/
https://www.derbysulzers.com/
https://digitalnz.org/explore
https://www.greatwarforum.org/
https://www.hathitrust.org/
https://historicengland.org.uk
https://www.newspapers.com/
https://open.library.ubc.ca/
https://www.mediastorehouse.com/
https://lostinwatersdeep.co.uk/index.html
https://news.google.com/newspapers
https://paperspast.natlib.govt.nz/newspapers
https://www.rmg.co.uk/national-maritime-museum
https://www.royalnavyresearcharchive.org.uk/
https://searcharchives.vancouver.ca/
https://www.shipsnostalgia.com/
https://www.shipspotting.com/
















.jpg)




















































.jpg)





















































.jpg)

-002.jpg)
-002.jpg)
-004.jpg)






.jpg)














.jpg)



.jpg)










.jpg)




















.jpg)






















.jpg)













.jpg)














.jpg)
.jpg)


































.jpg)




















.jpg)























.jpg)





















































































.jpg)

































































































.jpg)
















.jpg)




















.jpg)


















.jpg)



















































































.jpg)





























.jpg)
















.jpg)






.jpg)
.jpg)


.jpg)




.jpg)





































.jpg)




















